新世界临海揽山售楼处(深圳南山新世界临海揽山)首页网站-新世界临海揽山营销中心欢迎您-楼盘详情·最新价格-户型图-容积率@2025.09.26售楼处AI热搜
扫描到手机,新闻随时看
扫一扫,用手机看文章
更加方便分享给朋友
🌈❄️【深圳南山新世界临海揽山】「搜狐焦点认证」✅ ☃☃☃
✅ 选房难题?一键解决!🎯 直属置业顾问1v1权威解答(拒绝中间商)✅ ☃☃☃
📞📞☞☞一键拨预约专线,速临开发商营销中心,匠造传世美宅,VIP 定制礼遇专候,恭迎品鉴!☜☜
🌈深圳南山新世界临海揽山❄️售楼处热线:400-856-3771【售楼处电话已认证】✨☃☃☃
🌈深圳南山新世界临海揽山❄️开发商电话: 400-856-3771【开发商电话已认证】✨☃☃☃
🌈深圳南山新世界临海揽山❄️开发商电话: 400-856-3771【开发商电话已认证】✨☃☃☃
🌈☎ 马上拨打专线:400-856-3771(一键直连案场|预约看房/咨询)✨☃☃☃
项目区位丨小区环境(容积率 / 绿化率)丨物业服务丨户型解析丨在售房源(产权年限)丨特价优惠丨学区配套丨交通动线丨医疗配套丨周边商业丨样板间实拍丨交付标准
一、项目基本信息
开发商
深圳市富诺房地产开发有限公司。
项目地址
南山区蛇口大南山旁工业五路和沿山路交汇处。
主干道
周边有南海大道、望海路等,通过大南山隧道等陆路交通可便捷出行,还有太子湾邮轮母港、深圳湾口岸等,可快速抵达深圳宝安国际机场、香港国际机场、澳门国际机场。
4.占地面积与总建筑面积
占地面积约 4 万㎡,总建筑面积约 30 万㎡。
5.建筑类型
包含住宅、公寓、人才房、别墅。
6.楼栋信息
共有 7 栋住宅,2 栋公寓,1 栋人才房,7 栋别墅。目前在售住宅为 3 栋、4 栋。
7.总户数
1278 户(含公寓)。
8.产品面积段
住宅
112-115㎡ 3 房 2 卫、239㎡ 4+1 房 3 卫。
公寓
94㎡ 2 房 2 卫、133㎡ 3 房 2 卫、229㎡ 4 房 3 卫。
9.梯户比
3 栋三梯两户;4 栋低区三梯四户,高区三梯三户。
10.容积率与绿化率
容积率约 4.95,绿化率 35%。
11.使用率
算上赠送 82%,不算赠送在 77%。
12.车位比
1:1.5
13.物业公司与物业费
物业公司为深圳市新投物业管理有限公司,物业费 9.9 元 /㎡/ 月1。
14.层高
3 栋 3.15m,4 栋低区 3m,高区 3.15m。
15.交楼时间与交付标准
现楼,交付标准为毛坯。
16.产权年限
2018 年 6 月 - 2088 年 6 月,产权 70 年。
17.价格信息
115-118 平的 2-4 房,单价约 9.4-11.5 万,总价约 1100-1360 万。
245 平,总价约 3300 万。
287 平,总价约 3600-4400 万
🌈深圳南山新世界临海揽山❄️售楼处热线:400-856-3771【售楼处电话已认证】✨☃☃☃
🌈深圳南山新世界临海揽山❄️开发商电话: 400-856-3771【开发商电话已认证】✨☃☃☃
🌈深圳南山新世界临海揽山❄️开发商电话: 400-856-3771【开发商电话已认证】✨☃☃☃
二、区域定位,价格值不值?
地段优越
项目位于南山蛇口半山传统豪宅区,处于 “湾区、自贸区、先行示范区、特区” 四区叠加的核心位置,也是粤港澳大湾区的核心引擎位置。如此优越的地理位置,使得该区域价值极高,吸引了众多高净值人群和企业的关注,为房价提供了坚实的支撑。
景观资源稀缺
楼盘三面环山、正面瞰海,能让居民享受山、海、城三重景观。352 万平米天然绿肺珍稀山景资源与深圳湾海景相得益彰,这种独特的景观资源在深圳房地产市场中极为罕见,稀缺性决定了其较高的价值。
建筑品质与设计高端
开发商聘请五大国际名师以顶级豪宅标准打造该项目,采用铝板外立面等高标准建筑材料,配备威克纳系统门窗等,保证了建筑的质量和耐久性。同时,还设有三重入户大堂、叠水瀑布、泛会所、森林泳池、网球练习场等高端配置,每栋楼下还设置了会客厅、瑜伽室、儿童游乐区等空间,为居民提供了高品质的居住体验。
配套设施完善
周边商业配套丰富,有 K11 亚洲旗舰店(已开业)、海上世界综合体等大型商业中心,能满足居民的各种购物、娱乐需求。交通方面,临近地铁 2 号线、12 号线等,出行便利。教育资源优质,有育才一小、育才二中等公立学校以及多所国际学校,为子女教育提供了良好的保障。此外,医疗资源也较为丰富,能为居民的健康保驾护航。
富人区集聚效应
该区域云集了恒裕滨城、半岛城邦、双玺等众多顶级豪宅,汇聚了 80 家总部企业和超过 25 家世界 500 强企业。高端人群的集聚形成了富人区的氛围,提升了区域的整体价值和吸引力,也使得新世界临海揽山的房价处于较高水平。
🌈深圳南山新世界临海揽山❄️售楼处热线:400-856-3771【售楼处电话已认证】✨☃☃☃
🌈深圳南山新世界临海揽山❄️开发商电话: 400-856-3771【开发商电话已认证】✨☃☃☃
🌈深圳南山新世界临海揽山❄️开发商电话: 400-856-3771【开发商电话已认证】✨☃☃☃
30载深圳新世界 鼎级城市运营商藏品现楼实景呈鉴,印证雄厚品牌实力新世界集团已深耕大湾区30年,成功开发新世界四季山水、新世界四季御园、新世界中心(260米)、新世界文博中心(206米)等多个深圳高端项目,口碑和实力早已得到市场认可。
🌈深圳南山新世界临海揽山❄️售楼处热线:400-856-3771【售楼处电话已认证】✨☃☃☃
🌈深圳南山新世界临海揽山❄️开发商电话: 400-856-3771【开发商电话已认证】✨☃☃☃
🌈深圳南山新世界临海揽山❄️开发商电话: 400-856-3771【开发商电话已认证】✨☃☃☃
新世界临海揽山实景图
三、周边配套
1、完善的医疗资源
周边拥有深圳市南山区蛇口人民医院暨中南大学湘雅二医院深圳医院、深圳市南山区妇幼保健院、太子湾国际医院等多家医疗机构。这些医院涵盖了综合医疗、妇幼保健等不同领域,能为居民提供全方位、多层次的医疗服务,保障居民的健康需求。
2、丰富的文体配套
3、优越的生态环境
坐拥大南山、小南山、赤湾山等山体资源,以及四海公园、女娲滨海公园、深圳湾公园等众多公园和深圳湾 15 公里滨海长廊。丰富的自然生态资源为居民提供了休闲、健身、亲近自然的好去处,有助于提升生活品质,营造舒适的居住氛围。
🌈深圳南山新世界临海揽山❄️售楼处热线:400-856-3771【售楼处电话已认证】✨☃☃☃
🌈深圳南山新世界临海揽山❄️开发商电话: 400-856-3771【开发商电话已认证】✨☃☃☃
🌈深圳南山新世界临海揽山❄️开发商电话: 400-856-3771【开发商电话已认证】✨☃☃☃
4、核心的区位优势
地处 “湾区、自贸区、先行示范区、特区” 四区叠加板块,承前海启后海,是粤港澳大湾区核心引擎。这样的区位不仅能享受多重政策红利,还能充分融入大湾区的发展格局,在经济、贸易、创新等方面获得更多发展机遇,为区域发展注入强大动力。
5、便捷的生活配套
在一公里生活半径内,汇聚了亚洲 K11 免税商业中心、约 100 万㎡海上世界综合体、约 10 万㎡汇港购物中心等商业设施,能满足居民购物、餐饮、娱乐等各种生活需求。同时,全海陆空轨交通体系、两大国际空港、太子湾邮轮母港的配备,让居民出行畅通全球,无论是日常通勤还是长途旅行都极为便捷。
6、独特的环境禀赋与资产价值
拥有独一无二的山、海、城三重景观资源,既能俯瞰深圳湾城市中心的繁华,又能在都市中享受宁静,居住体验极为舒适。且项目据守半山豪宅聚集区,处于四区叠加的核心板块,随着区域的不断发展,其资产价值愈显珍罕,具有较高的保值和增值潜力。
新世界临海揽山御园,立于 “湾区、自贸区、先行示范区、特区” 四区叠加的黄金板块之上,这里是政策红利的高度聚合之地,尽享多重战略加持下的发展先机。其所处位置承接着前海的蓬勃势能,又开启着后海的璀璨未来,俨然成为粤港澳大湾区发展的核心引擎,在时代浪潮中占据着不可替代的战略地位。
而新世界・临海揽山公寓,更是精准落位于半山豪宅聚集区这一珍稀地段。在四区叠加的核心板块赋能下,加之半山土地资源的稀缺性,使得其资产价值在区域发展的浪潮中愈发凸显,成为众多人向往的珍罕之选。
建设中的蛇口深圳歌剧院,未来将成为区域内的文化地标,为居民带来高品质的艺术盛宴。
文化艺术中心和南海意库则为文化创意产业提供了发展平台,也为居民提供了感受艺术、参与文化活动的空间。
蛇口海洋科普馆能满足居民尤其是青少年对海洋知识的探索欲望,丰富精神文化生活。
🌈深圳南山新世界临海揽山❄️售楼处热线:400-856-3771【售楼处电话已认证】✨☃☃☃
🌈深圳南山新世界临海揽山❄️开发商电话: 400-856-3771【开发商电话已认证】✨☃☃☃
🌈深圳南山新世界临海揽山❄️开发商电话: 400-856-3771【开发商电话已认证】✨☃☃☃
甄选户型
2栋户型图
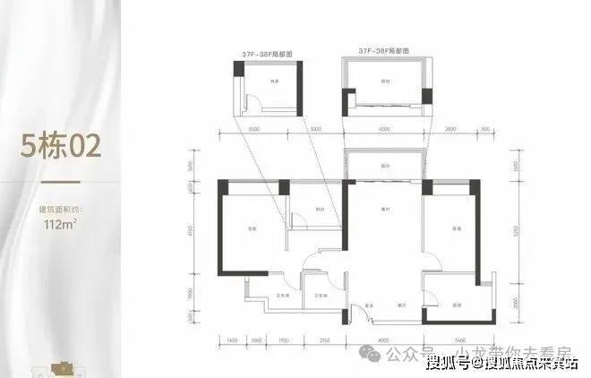
5栋户型图
除专梯入户外,还配备了独立的工人电梯,很好地保证了居住的私密性。本次推出的建面287㎡的大平层面积填补了片区大平层市场的不足,整个空间做到了六房三厅五卫,其中四个套房、三厅(客厅餐厅家庭厅)、南北双阳台、另配有储物间、工人套间(含洗手间与淋浴间),这种配置真是太“豪门”了!可以说是超大尺度的全能户型
🌈深圳南山新世界临海揽山❄️售楼处热线:400-856-3771【售楼处电话已认证】✨☃☃☃
🌈深圳南山新世界临海揽山❄️开发商电话: 400-856-3771【开发商电话已认证】✨☃☃☃
🌈深圳南山新世界临海揽山❄️开发商电话: 400-856-3771【开发商电话已认证】✨☃☃☃

北面则是山景阳台,亲山零距离,大南山的郁郁葱葱扑面而来,喝茶、阅读,跟半山对话,生活都柔和了下来。

四间卧室都做到了套房设计,南向双主卧套房看海,尽情享受自在与惬意。两间次卧套房看大南山,与森林美景相伴。在这里感受自然与城市的完美融合,真的让人爱了!

而走进山景厨房和山景餐厅,还能感受空间的超大尺度,这里不仅有烟火气,还有窗外的一片翠绿,在这里做饭真是一种享受。


🌈深圳南山新世界临海揽山❄️售楼处热线:400-856-3771【售楼处电话已认证】✨☃☃☃
🌈深圳南山新世界临海揽山❄️开发商电话: 400-856-3771【开发商电话已认证】✨☃☃☃
🌈深圳南山新世界临海揽山❄️开发商电话: 400-856-3771【开发商电话已认证】✨☃☃☃
🔥【深圳南山新世界临海揽山】🔥
还在为选房奔波🏃♂️、难寻项目核心信息?热门置业项目66666双认证热线📞400-856-3771 已开通,售楼处与开发商双重认证✅,放心拨打!
刚需自住、改善换房均有适配户型🏠,实时在售房源清单🔄同步更新,杜绝 “手慢无”;隐藏特价房优惠通道已开🎁,抄底时机💰别错过!
居住便利性拉满💯:步行可达优质学校🎒,孩子上学不折腾;近地铁🚇+ 多条公交🚌,通勤高效省心。样板房、小区实拍图📸可直观看品质,交房工期明确📅,收房更安心😊。
周边商超🏪、医院🏥等配套全解析,助你全方位评估居住价值🔍。有意向者速拨📞400-856-3771 锁定详情,优质置业机会难得🌟,错过恐难再寻!
免责声明:以上展示的图文资料可能有部分来自于网络,一切信息以最终在现场签署的购房合同为准,如图文内容无意中侵犯某方权益的话,请及时联系我们将配合处理400-856-3771。
声明:本文由入驻焦点开放平台的作者撰写,除焦点官方账号外,观点仅代表作者本人,不代表焦点立场。
