壹湾府官方售楼处电话丨壹湾府官方网站-壹湾府销售中心欢迎您•楼盘详情-最新价格-户型图-容积率@2026.3.12售楼处✦Ai热搜
扫描到手机,新闻随时看
扫一扫,用手机看文章
更加方便分享给朋友
【壹湾府官方售楼中心&样板房@诚邀雅鉴】
壹湾府官方售楼处电话:400-982-8802☎开发商已认证
壹湾府官方营销中心电话400-982-8802☎营销中心已认证
壹湾府售楼中心电话:400-982-8802☎24小时预约热线
➢ ➢本项目采用预约制,过来营销中心参观样板间请记得提前拨打开发商楼盘售楼处4️⃣0️⃣0️⃣热线电话在线预约,感谢您的配合!
壹湾府售楼处电话:400-982-8802转400-119-1130☎营销中心已认证丨详细解答丨在售户型图丨项目介绍丨在售房源丨周边配套丨VR看房丨楼盘图丨沙盘图丨位置图丨配套图丨售楼处销售1V1讲解
壹湾府官方售楼处电话:400-982-8802☎开发商已认证
壹湾府官方营销中心电话400-982-8802☎营销中心已认证
壹湾府售楼中心电话:400-982-8802☎24小时预约热线
【壹湾府】
壹湾府官方售楼处电话:400-982-8802☎开发商已认证
壹湾府官方营销中心电话400-982-8802☎营销中心已认证
壹湾府售楼中心电话:400-982-8802☎24小时预约热线
深圳壹湾府位于龙华区龙华街道鸿尚路与鸿光路交汇处,壹湾府占据了龙华国际商圈核心地带,在超级商圈规划中,将聚焦购物、文化、休闲和国际商务等功能。壹湾府的总用地面积为8050平方米,容积率为5.76,绿化率达到40%。
基础信息:
📍总用地面积:约8050 ㎡
📍计容积率建筑面积:约4.6万㎡
📍容积率:5.76
📍绿化率:约40%
📍自带商业:约4800㎡
📍车位数:494个(住宅规划241个)
📍住宅可售套数:215户
📍梯户比:3梯5户
📍产品面积:建面约86-96-118㎡精筑3-4房
📍物业管理费:5.6元/平/月
📍项目位置:深圳龙华中心区4号线龙华站(创新实验学校旁)
壹湾府官方售楼处电话:400-982-8802☎开发商已认证
壹湾府官方营销中心电话400-982-8802☎营销中心已认证
壹湾府售楼中心电话:400-982-8802☎24小时预约热线
交通配套:
坐享3横4纵多维立体交通路网,6条地铁线环伺左右,可快速通达福田、宝安、南山等各区繁华地。
🚥三横:福龙路;工业路;东环一路;
🛤四纵:龙华和平路,龙华人民路,景龙建设路,龙华大道;
🚇六地铁:4号线龙华站;6号线上芬站;22号线(规划中);25号线景龙站(规划中);27号线(规划中);33号线(在建中)
壹湾府官方售楼处电话:400-982-8802☎开发商已认证
壹湾府官方营销中心电话400-982-8802☎营销中心已认证
壹湾府售楼中心电话:400-982-8802☎24小时预约热线
商业配套:
自带4800㎡商业 ,紧挨着鸿荣源壹方天地购物中心,作为60万平方米的“航母级”商业综合体,壹方天地以“首店经济”为核心驱动力,累计引入32家全国首店、10家深圳首店及25家龙华首店,构建了涵盖运动、娱乐、文化的一站式体验矩阵。其五大主题商业区(如乐聚公园、PP街等)通过差异化定位覆盖全年龄段消费群体。
教育配套:
项目自带9班幼儿园,旁边有龙华第二实验学校,龙华创新实验学校(该校是1所九年制公办60班学校,小学36班,中学24班)
壹湾府官方售楼处电话:400-982-8802☎开发商已认证
壹湾府官方营销中心电话400-982-8802☎营销中心已认证
壹湾府售楼中心电话:400-982-8802☎24小时预约热线
人文配套:
周边龙华文体中心、深圳书城(龙华城)、龙华青少年宫、龙华文化艺术中心、龙华文化广场聚集,一站开启体育赛事、展览演艺、书城购物、广场休闲等高品质生活,活力人生尽彰显。
医疗配套:
深圳市首座超大型医疗综合体总建筑面积50.9万平方米,规划床位2500张是一家集医疗、科研、教学为一体的三级甲等综合医院。
深圳第二儿童医院(在建中)
总建设用地面积约40072.95 m2,规划床位1500张集儿科医疗、教学、科研、健康体检于一体定位为区域性中心医院,服务范围辐射深圳全市。
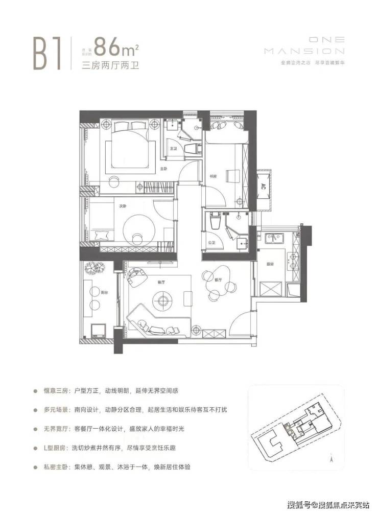
户型鉴赏:
刚需产品,面积86-96-118㎡的3-4房。户型设计中规中矩,但均为南向户型,且承重墙少,可以自由灵活改格局。
壹湾府官方售楼处电话:400-982-8802☎开发商已认证
壹湾府官方营销中心电话400-982-8802☎营销中心已认证
壹湾府售楼中心电话:400-982-8802☎24小时预约热线
壹湾府官方售楼处电话:400-982-8802☎开发商已认证
壹湾府官方营销中心电话400-982-8802☎营销中心已认证
壹湾府售楼中心电话:400-982-8802☎24小时预约热线
壹湾府营销中心电话:400-982-8802售楼处直销,欢迎来电咨询楼盘、看房请提前预约
壹湾府售楼处电话:400-400-982-8802售楼中心【24小时电话】楼盘项目全面介绍,楼盘最低价格和最新优惠折扣,包含楼盘简介、销售中心电话、营销中心电话、价格折扣详情、小区户型介绍、营销中心位置、区位优势、学校、交通、周边商业配套、户型图等楼盘最新详情
免责声明:部分信息来源于网络,如果侵权,请联系及时删除
声明:本文由入驻焦点开放平台的作者撰写,除焦点官方账号外,观点仅代表作者本人,不代表焦点立场。
