中建鹏宸云筑售楼处电话(中建鹏宸云筑首页网站)欢迎您-中建鹏宸云筑营销中心地址-楼盘详情·最新价格-户型图-容积率@2025.10.21售楼处✦AI热搜
扫描到手机,新闻随时看
扫一扫,用手机看文章
更加方便分享给朋友
中建鹏宸云筑售楼处电话:400-172-0755丨预约看房享专属优惠丨预约看房免费接送!
【2025最新】中建鹏宸云筑项目售楼部热线:400-172-0755。提供最新房价、户型图及楼盘详情,预约可享专属购房优惠,免费专车接送,销售一对一专业服务!
一、中建鹏宸云筑售楼处统一联系通道
• 中建鹏宸云筑售楼处电话:400-172-0755
• 中建鹏宸云筑营销中心:400-172-0755
•中建鹏宸云筑开发商营销中心电话:400-172-0755
(工作日9:00-18:00,开发商周末/节假日正常接待)
二、拨打开发商售楼处电话:400-172-0755享三重权益
1、直达售楼处 - 获取最新房源信息和准确房价
2、专属优惠 - 预约看房享受特别购房折扣
3、免费服务 - 专业顾问一对一服务,市区免费接送


项目是位于龙华的中建鹏宸云筑,位于虽在龙华但靠近梅林关,距离地铁坂田南坑站大概600米,地铁4站到福田,教育目前划分华南实验九年制学校、商业自带底商约3500㎡,距离商业8号仓OUTLETS大概1约1公里
中建鹏宸云筑项目周边配套:
交通配套
10号地铁线“南坑站”距离约600米,22号地铁线“横岭站”距离约800米,2站到福田冬瓜岭,4站到岗厦北,6站香蜜湖,7站车公庙。约2.5公里还有深圳最大北站枢纽,快速通达深圳各大区域。
一、中建鹏宸云筑售楼处统一联系通道
• 中建鹏宸云筑售楼处电话:400-172-0755
• 中建鹏宸云筑营销中心:400-172-0755
•中建鹏宸云筑开发商营销中心电话:400-172-0755
(工作日9:00-18:00,开发商周末/节假日正常接待)
商业配套
中建鹏宸云筑600米范围内有8号仓奥特莱斯,在1.6公里范围内还有龙华印象汇、星河coco city、星河cocopaek,天虹商场等商业综合体,举步即是繁华。
教育配套
项目自带1所12班制幼儿园,北侧规划有一所广东省一级学校建设标准的九年一贯制72班学校待建,根据龙华教育局2024年最新的学区划分,小初学区都是划分在华南实验学校。
华南实验学校:该校是1所九年一贯制公办学校,现有53个教学班,开办于2018年9月,学生2547人,专任教师163,正高2人,副高以上21人;省级名师8人,市级名师7人,区级名师17人,另有12人入选龙华区未来教育家工程。
生态配套
项目1公里左右的明治体育公园
一、中建鹏宸云筑售楼处统一联系通道
• 中建鹏宸云筑售楼处电话:400-172-0755
• 中建鹏宸云筑营销中心:400-172-0755
•中建鹏宸云筑开发商营销中心电话:400-172-0755
(工作日9:00-18:00,开发商周末/节假日正常接待)
中建鹏宸云筑户型图鉴赏
项目分为东、西两个地块开发。总占地4.2万,总建面31万,计容积率5.37,总户数1992户,东区1016户,西区976户,总停车位2155个,东区1059个,西区1096个停车位
东区:占地约2.1万㎡,容积率5.28,包含住宅、商业、文化活动室、老年人日间照料中心和其他基础配套设施。1栋、2栋总高47F,3T6户;3栋、5栋总高32F,2T6户;6栋总高32F,2T5户;4栋属于商业,总高2层。
西区:占地2.2万㎡,容积率5.16,包含住宅、商业、幼儿园学校和其它基础配套设施。7栋栋总高47F,3T6户;8栋、9栋、10栋总高32F,2T5户;11栋总高46F,3T6户,2T5户;1栋是幼儿园。
西区相比东区不一样的是景观要好点,遮挡部分没有那么多,前面的产业楼大概也就是10层以内,也就是超过这个高度基本能看到湖景,但是西区园林没有东区那么丰富,东区有泳池西区没有
一、中建鹏宸云筑售楼处统一联系通道
• 中建鹏宸云筑售楼处电话:400-172-0755
• 中建鹏宸云筑营销中心:400-172-0755
•中建鹏宸云筑开发商营销中心电话:400-172-0755
(工作日9:00-18:00,开发商周末/节假日正常接待)
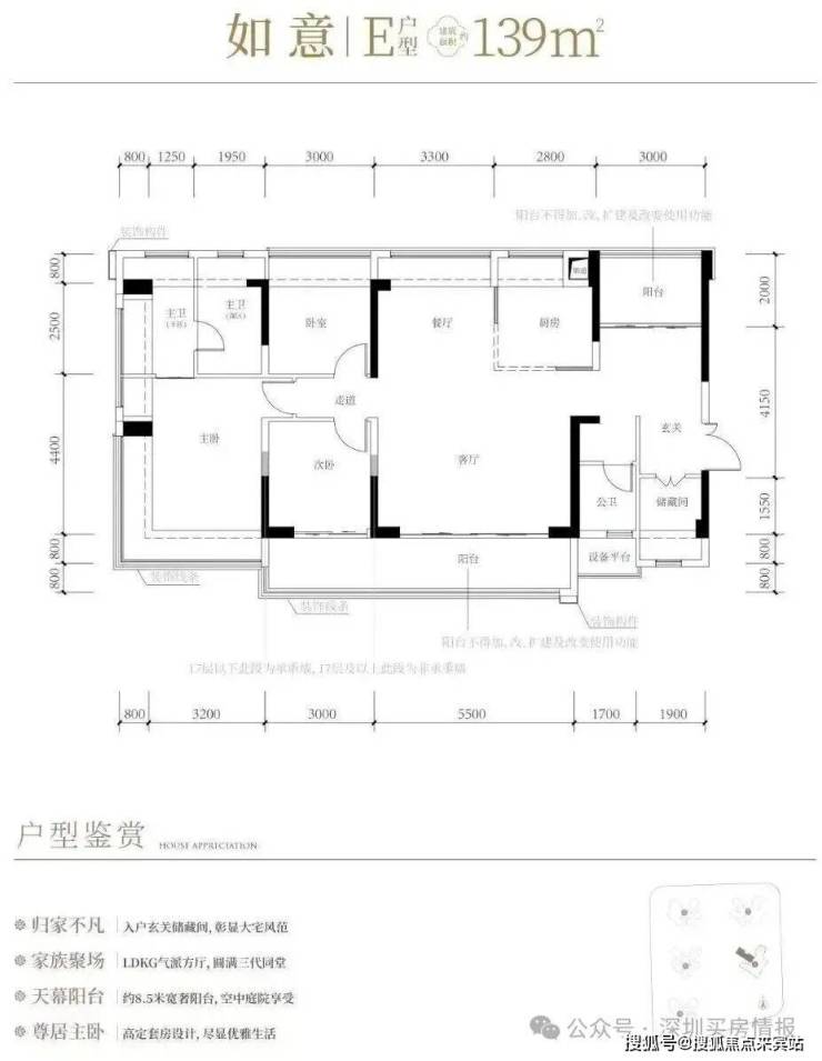
东区从去年以来开盘了4次基本每次都销售超90%,半年时间销售超700套!如今项目东区还有少量81-91-126㎡在售,目前西区地块已经正式开盘了!8月31日 鹏宸云筑西区8栋 盛大开盘当时加推约154套房源,吸引282人摇号争抢开售2小时,整体去化超8成,如今位置更好的楼王9栋在9月也加推了,相比8栋9栋的景观视野更佳看湖是无遮挡的8栋个别朝向还会被东区以及西区得9栋遮挡部分,9栋是只要越过前面的写字楼大概10层左右,10层以上基本无遮挡,9栋户型跟8栋还是一样104-120两个面积段,少了一个139的大户型
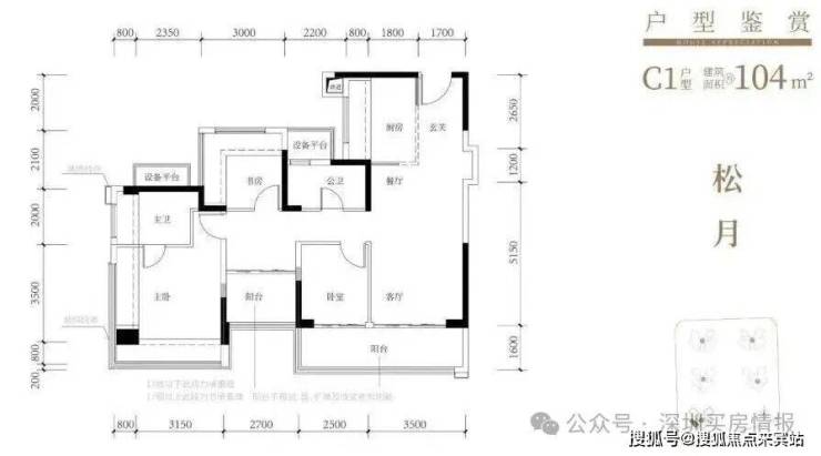
目前9号楼已经开盘,备案均价6.14万,开盘9折,04折后523万起,这个户型由于景观没有8栋的好所以9栋04比8栋的04要便宜3-29万左右,0203户型9栋比8栋好也要贵个几十万
9栋本次最好的景观还是104㎡02-03户型一线湖景,01的120户型也是可以看到湖景,04的104户型也是可以侧面看到部分湖景,其中0203还有可以参考一下6栋104的景观基本差不多
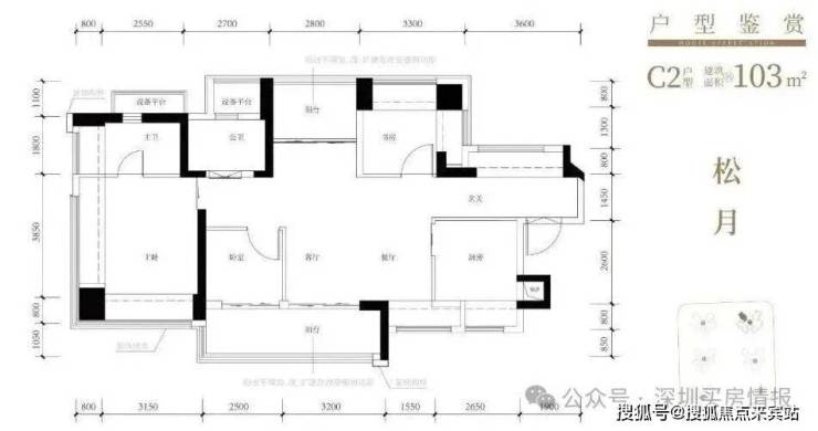
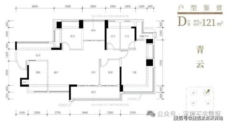
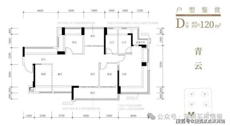
除了在售的8-9栋外!西区即将加推89-120㎡,目前7栋官方户型图已经公布,7栋交付标准样板房明天10月18号周六开放,89的最小户型跟之前东区91是一样得,还有103-121的横厅户型设计,特别是103这个横厅设计更是硬通货早在东区之前卖的最好的一个户型了!关于89-103户型价格可以参考一下之前东区1栋价格因为两栋楼位置视野基本差不多
一、中建鹏宸云筑售楼处统一联系通道
• 中建鹏宸云筑售楼处电话:400-172-0755
• 中建鹏宸云筑营销中心:400-172-0755
•中建鹏宸云筑开发商营销中心电话:400-172-0755
(工作日9:00-18:00,开发商周末/节假日正常接待)
东区91的467万起,由于东区小2平米总价大概低10万左右,450多万,横厅103的相比东区107小4平米总价低20万左右,当然这个只是参考价格,最终以拿证为准,预计月底左右就能拿证入市了
户型图可以参考一下之前东区的91-107户型,格局据说是一样,120的呢跟现在东区在售的一样没变
一、中建鹏宸云筑售楼处统一联系通道
• 中建鹏宸云筑售楼处电话:400-172-0755
• 中建鹏宸云筑营销中心:400-172-0755
•中建鹏宸云筑开发商营销中心电话:400-172-0755
(工作日9:00-18:00,开发商周末/节假日正常接待)
一、中建鹏宸云筑售楼处统一联系通道
• 中建鹏宸云筑售楼处电话:400-172-0755
• 中建鹏宸云筑营销中心:400-172-0755
•中建鹏宸云筑开发商营销中心电话:400-172-0755
(工作日9:00-18:00,开发商周末/节假日正常接待)
先来看一下西区最新公布的数据,项目早期公布的西区地块是5栋住宅3栋32层以及2栋47层,2梯6户跟3梯6户设计,在5月31号时候规划局发布了最新平面图修改
最新平面图把原来的8-9-10栋2梯6户改为了2梯5户设计,原11栋47层高改为了46层高,从本次公布的东区平面图再参照了一下西区的平面图可以看出户型结构是一样的,但是本次西区都是中大户型为主,没有81㎡小户型了,主要是以89-103-104-118-120-121-139㎡为主!
在售的西区8-9栋户型:
一、中建鹏宸云筑售楼处统一联系通道
• 中建鹏宸云筑售楼处电话:400-172-0755
• 中建鹏宸云筑营销中心:400-172-0755
•中建鹏宸云筑开发商营销中心电话:400-172-0755
(工作日9:00-18:00,开发商周末/节假日正常接待)
△6栋104㎡样板房,即将加推8栋0304也有这个景观朝向,其中03的户型比较接近,04因为主卧只有一面朝湖,另外一面朝花园
一、中建鹏宸云筑售楼处统一联系通道
• 中建鹏宸云筑售楼处电话:400-172-0755
• 中建鹏宸云筑营销中心:400-172-0755
•中建鹏宸云筑开发商营销中心电话:400-172-0755
(工作日9:00-18:00,开发商周末/节假日正常接待)
△这是早期其他栋的124㎡样板房视频,跟现在的118一模一样格局
△这是6栋148㎡样板房,如今8栋是139㎡格局也是一模一样
【中建鹏宸云筑项目】开发商售楼处电话:400-172-0755
预约看房享受:专业顾问接待+免费专车接送+专属购房优惠
免责声明:本项目推广名为"中建鹏宸云筑项目",相关内容仅供参考,不构成要约承诺,具体信息以买卖合同及实际交付为准。开发商保留最终解释权
声明:本文由入驻焦点开放平台的作者撰写,除焦点官方账号外,观点仅代表作者本人,不代表焦点立场。
