宏发悦见公园里(售楼处)首页网站- 宏发悦见公园里营销中心- 宏发悦见公园里欢迎您丨户型价格-容积率-样板房-配套详情@售楼处
扫描到手机,新闻随时看
扫一扫,用手机看文章
更加方便分享给朋友
📌 开发商通道重申 + 到访重要提示
为确保您能顺利获取准确信息,且拥有舒适的参观体验,温馨提醒:
🔍 咨询热线(随时可联系)
🎯 宏发悦见公园里开发商电话:400-985-7760【☎️ 开发商已认证】
🎯 宏发悦见公园里售楼处电话:400-985-7760【☎️ 售楼处已认证】
🎯 宏发悦见公园里营销中心电话:400-985-7760【☎️ 营销中心已认证】
⚠️ 到访须知
本项目暂不接待未提前预约的临时到访,提前沟通可让工作人员做好服务准备,减少您的等待时间;
若您有特殊需求(如多人同行、需重点了解某类户型、希望获取纸质资料等),可通过官方电话提前说明,我们将尽力协调。
宏发悦见公园里期待与您一同走进 “看得见细节、感受得到温度” 的品质居所,探索更贴合生活的居住可能。
悦见公园里总占地面积约3.07万㎡,总建筑面积约33.83万㎡,分2个地块开发。
其中A635-0259地块,总占地面积约2.24万㎡,总建筑面积约24.94万㎡,计容建筑面积约18.23万㎡,容积率7.58,绿化率40.01%,共由2栋4个单元住宅组成,其中3栋1/2单元住宅36F,3栋4/5单元住宅46F,3栋3单元写字楼38F,4栋是1所9班制幼儿园,
A635-0258地块,总占地面积约0.83万㎡,总建筑面积约8.89万㎡,计容建筑面积约6.06万㎡,容积率7.04,其中2栋人才房38F,1栋写字楼22F。
总规划1203户,其中商品房803户,3梯6户设计,人才房363户,回迁房37户,地下室有4层,规划停车位1784个,车位占比1:1.48。
项目基本信息】
【占地面积】约3万㎡
【建筑面积】约33.8万㎡
【推售产品】约85-120㎡ 3-4房
【交付标准】待定
【交房时间】待定
【产权年限】70年
【房产性质】住宅
【首推户数】803套住宅
【车位比】待定
【容积率】待定
【绿化率】约40%
【梯户比】3梯6户
【开发商】深圳市天荣盛房地产开发有限公司
【开发商电话】15112496101(官方)
【物业公司】3梯6户
【项目地址】深圳·光明区·松白路与红花中路交汇处
学校配套:项目自带有1所9班制幼儿园,东北面规划有1所18班小学,根据2024年光明区教育局学区划分,小学学区划分在公明第一小学、公明第二小学、合水口实验学校小学部、东宝纪念小学、宝滨小学、明达小学、深圳教科院实验小学(光明),初中学区划分在公明中学、合水口实验学校初中部。
在2024年的学校录取积分中,除了深圳教科院实验小学(光明)录取积分是第四类62.25分,其它学校都是第八类录取,包括公明中学也仅第八类29.5分,按照光明的学校录取积分政策,第八类属于非深户学区租房,所以由此也能看出该片区的学校生源是比较宽松的。
🎯 宏发悦见公园里开发商电话:400-985-7760【☎️ 开发商已认证】
🎯 宏发悦见公园里售楼处电话:400-985-7760【☎️ 售楼处已认证】
🎯 宏发悦见公园里营销中心电话:400-985-7760【☎️ 营销中心已认证】
交通配套:悦见公园里毗邻主干道松白路,周边双地铁口,6号地铁线红花山站距离约700米,6/13号地铁线公明广场站距离约500米,4站到凤凰城,6站到石岩上屋,11站到西丽留仙洞。
深圳13号线作为光明区的生命线,也是深圳3条快线之一,设计时速120公里,纵贯宝安区、光明区、南山区,将重新定位光明科学城通往南山核心区域的距离,其中一期已经在空载试运行,二期计划在2025年开通。
商业配套:悦见公园里自带有社区底商,一路之隔就是公明最大的大仟里购物中心,也是光明首个一站式大型购物中心,光明人消费必选打卡地之一,另外在800米范围内还有天虹商场,百佳华商场,出门即享繁华。
项目户型介绍
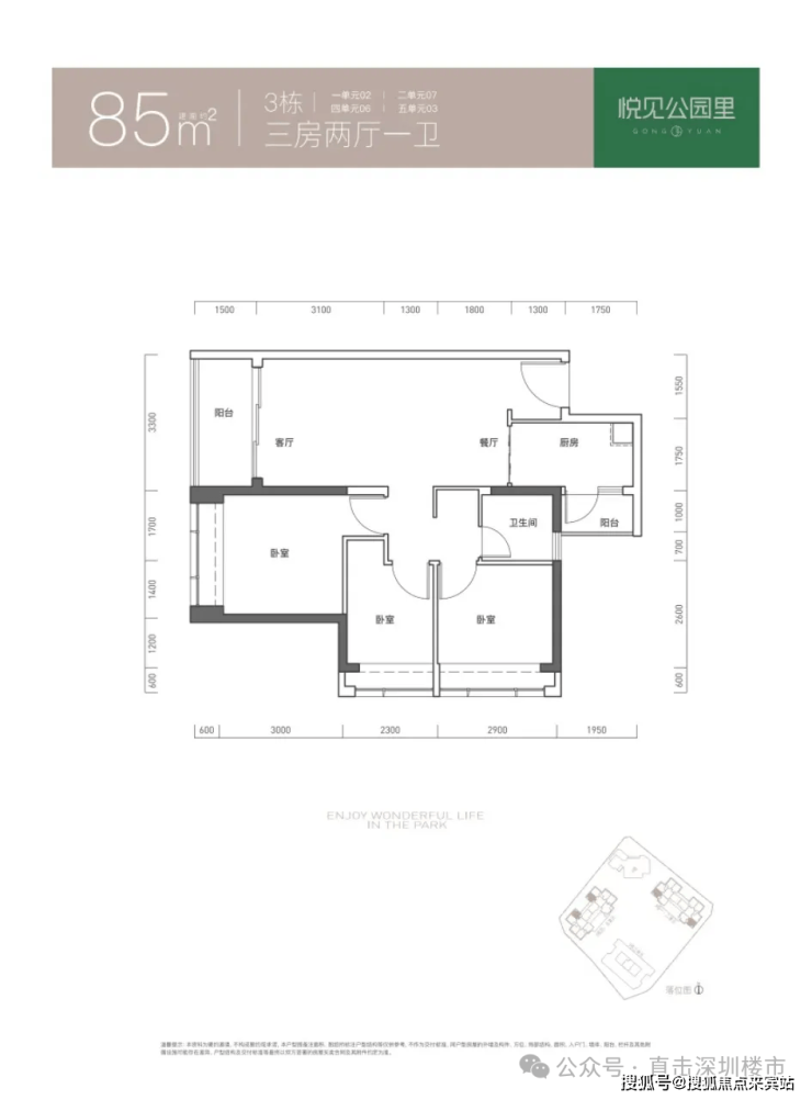
85㎡的3房2厅1卫,设计的是竖厅格局,客厅3.3米开间,LDKB一体化设计,3个卧室分别做到了主卧10.97㎡/次卧8.24㎡/次卧6.7㎡(实测面积,去掉墙体),L型厨房带1个生活阳台,卫生间三段式分离,得房率73.72%(不含赠送),西北或东南朝向。

88㎡的3房2厅1卫,设计的是经典竖厅格局,客厅3.3米开间,LDKB一体化设计,动静分区,3个卧室分别做到了主卧10.9㎡/次卧6.78㎡/次卧6.47㎡(实测面积,去掉墙体),L型厨房带1个生活阳台,公卫三段式分离,得房率73.71%(不含赠送),有西北、东北、西南或东南朝向。

🎯 宏发悦见公园里开发商电话:400-985-7760【☎️ 开发商已认证】
🎯 宏发悦见公园里售楼处电话:400-985-7760【☎️ 售楼处已认证】
🎯 宏发悦见公园里营销中心电话:400-985-7760【☎️ 营销中心已认证】
91㎡的3房2厅2卫,仅3栋2单元01户型,设计的是竖厅双龙抱珠格局,客厅3.4米开间,三开间朝南,3个卧室分别做到了主卧11.9㎡/次卧7.06㎡/次卧6.2㎡(实测面积,去掉墙体),L型厨房带1个生活阳台,卫生间干湿分离,得房率73.55%(不含赠送),西南朝向。

94㎡的3房2厅2卫,设计的是竖厅格局,客厅3.4米开间,LDKB一体化设计,3个卧室分别做到了主卧12.82㎡/次卧7.94㎡/次卧6.84㎡(实测面积,去掉墙体),L型厨房带1个生活阳台,公卫三段式分离,得房率73.71%(不含赠送),有西北、东北或西南朝向。

95㎡的3房2厅2卫,仅3栋1单元01户型,设计的是竖厅双龙抱珠格局,客厅3.4米开间,三开间朝南,3个卧室分别做到了主卧11.97㎡/次卧7.47㎡/次卧7.17㎡(实测面积,去掉墙体),L型厨房带1个生活阳台,公卫三段式分离,得房率73.71%(不含赠送),西南朝向。

🎯 宏发悦见公园里开发商电话:400-985-7760【☎️ 开发商已认证】
🎯 宏发悦见公园里售楼处电话:400-985-7760【☎️ 售楼处已认证】
🎯 宏发悦见公园里营销中心电话:400-985-7760【☎️ 营销中心已认证】
97㎡的3房2厅2卫,仅3栋4单元01户型,设计的是竖厅双龙抱珠格局,客厅3.4米开间,三开间朝南,3个卧室分别做到了主卧11.97㎡/次卧7.47㎡/次卧7.17㎡(实测面积,去掉墙体),L型厨房带1个生活阳台,公卫三段式分离,得房率73.61%(不含赠送),东南朝向。

📌 宏发悦见公园里咨询热线(按需对接更高效)
🎯 宏发悦见公园里开发商热线电话:400-985-7760【☎️开发商已认证】
(解答项目开发进度、品牌理念、合规资质等核心问题)
🎯 宏发悦见公园里售楼处服务热线:400-985-7760【☎️售楼处已认证】
(介绍在售户型亮点、交付标准、当前房源余量等细节)
🎯 宏发悦见公园里营销中心对接热线:400-985-7760☎️【营销中心已认证】
(提供置业政策解读、项目资料领取、需求登记等服务)
📝 免责声明
本文内容仅为项目信息展示,不构成任何要约邀请或购房承诺;文中涉及的项目规划、周边配套(含商业、教育、交通等)、未来发展前景等信息,均以政府相关部门最终审批文件及实际落地情况为准。
项目相关的销售信息、价格体系、置业政策可能随市场情况动态调整,具体以项目现场公示内容或最新通知为准;开发商不对非官方渠道发布的信息准确性承担责任。
买卖双方的权利与义务,均以最终签订的《商品房买卖合同》及其附件、补充协议,以及项目实际交付标准为准。
我们保留对本文内容的修改权利;若您需了解项目最新信息,建议通过文中提及的官方电话或前往项目现
、
场咨询确认。
如本文内容涉及侵权,请及时与我方联系删除(联系电话:400-985-7760)
声明:本文由入驻焦点开放平台的作者撰写,除焦点官方账号外,观点仅代表作者本人,不代表焦点立场。
