中建鹏宸云筑营销中心电话(深圳中建鹏宸云筑)官方网站-中建鹏宸云筑售楼处电话-2025最新价格-户型图-楼盘详情-容积率@最新售楼处AI热搜
扫描到手机,新闻随时看
扫一扫,用手机看文章
更加方便分享给朋友
💫中建鹏宸云筑💫
💫中建鹏宸云筑营销中心电话☎:400-8028-628【营销中心官方已认证】(一对一热情服务)
💫中建鹏宸云筑售楼处电话☎:400-8028-628【售楼处官方已认证】(一对一热情服务)
💫中建鹏宸云筑开发商电话☎:400-8028-628【开发商官方已认证】(一对一热情服务)
💫中建鹏宸云筑贵宾热线☎:400-8028-628 【售楼处官方已认证】(一对一热情服务)
💫中建鹏宸云筑展示中心电话☎:400-8028-628【展示厅官方已认证】(一对一热情服务)
💫无论是咨询楼盘详情,还是预约实地考察,只需一个电话,全部轻松搞定!营销中心/销售中心/开发商售楼处/_tel:400-8028-628(官方售楼处已认证)
01.最新动态
鹏宸云筑这次加推7栋可以直接认购,给出了8.7折的折扣优惠,折后均价5.34万/㎡,折后单价5.04-5.43万/㎡,总价在450-660万/套,另外有2套174㎡的大平层,总价1044-1088万。
89㎡的4房2厅2卫,折后总价450-496万/套,折后单价5.04-5.55万/㎡。
103㎡的4房2厅2卫,折后总价525-560万/套,折后单价5.12-5.44万/㎡。
121㎡的4房2厅2卫,折后总价611-660万/套,折后单价5.05-5.43万/㎡。
💫中建鹏宸云筑营销中心电话☎:400-8028-628【营销中心官方已认证】(一对一热情服务)
💫中建鹏宸云筑售楼处电话☎:400-8028-628【售楼处官方已认证】(一对一热情服务)
💫中建鹏宸云筑开发商电话☎:400-8028-628【开发商官方已认证】(一对一热情服务)
龙华核心区4房门槛被击穿
鹏宸云筑的户内空间,是深圳一众老牌房企“偷师”的重点,因为真的做到了没对手。
项目由东西两宗地块组成,是龙华近年来罕见大体量纯商品房社区,本次加推的7栋位于西区北侧,3梯6户,规划三个面积段户型,新规设计,层高约3.1m,飘窗宽80cm。
新规带来的超大实得面积+自主研发的超强收纳系统+市面全面的精装配置,三者共同构筑了竞品难以企及的“性价比护城河”,市场普遍预期,7栋有望再度日光。

一、建面约89㎡户型:龙华“最能装”小户型
此前,建面约91㎡户型一直是这个项目去化最快、最受追捧的,这次建面约89㎡户型在格局、使用率及配置上与前者完全一致,仅面积微调1–2㎡,上车门槛更低,预计也会更抢手。

“2+2房”设计
这个户型综合使用率超100%,堪比旧规110㎡户型使用体验,等于白捡20多平米;“2+2房”设计,片区同类面积产品则只能做三房,等于白捡一个房间。
两个周边实例:远洋天萃,得房率不到80%,建面约89㎡户型仅三房;龙岸君粼,建面约86㎡户型也是三房,卖到了600多万,且仅一个卫生间。
全生命周期户型
得益于“2+2房”设计,该户型可适应二人世界、三口之家、二胎或三代同堂等不同阶段需求,省去巨额换房成本。
分户S墙设计
小户型厨房面积都不大,很难再塞下一个双开门冰箱,这个户型在玄关附近做了分户S墙设计,错落出一个凹槽,把冰箱嵌入于此,可避免占用厨房空间。
💫中建鹏宸云筑营销中心电话☎:400-8028-628【营销中心官方已认证】(一对一热情服务)
💫中建鹏宸云筑售楼处电话☎:400-8028-628【售楼处官方已认证】(一对一热情服务)
💫中建鹏宸云筑开发商电话☎:400-8028-628【开发商官方已认证】(一对一热情服务)

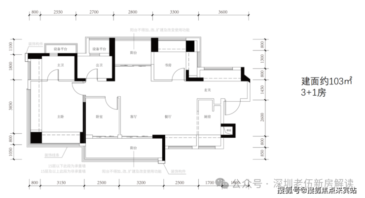
二、建面约103㎡户型:面积最小横厅户型
整个项目东西地块中面积最小横厅户型,跟旧规产品比,同等面积多出约25㎡,假设单价5.5W/㎡,总价便宜近140万。

综合使用率103%
这个户型位于端头位置,独门独户,还在户型外围做了一圈不计面积的飘窗、设备平台,综合使用率最高约103%。
全明户型+南北通透
全屋每个空间都有窗,室内采光无死角;南北双阳台布局,可形成有效对流,清风与阳光常伴左右。
超6000升玄关收纳
入门左侧设内凹空间,可量身定制鞋柜;右侧是一个长约3.6m大飘窗,可整体改造为收纳区,总容量超过6000升,等于多了一个储藏室。
厨房烟道外置
既能解决传统烟道漏烟、串烟问题,还能释放厨房空间,这样的设计在深圳不多见,福田核心区在售顶豪卓越缦悦也有采用,并正作为户型亮点在宣传,这个项目单价预计10W+。
三、建面约121㎡户型:堪比旧规140+㎡户型
这个户型是建面约103㎡户型PLUS版,镜像布局,具备前者全部优势。同时,也是7栋综合使用率最高户型,享受到的是堪比旧规产品140+㎡户型的阔绰体验,假设单价5.5万/㎡,总价便宜110万元。

综合使用率高达104%
这个户型的综合使用率应该是龙华在售天花板了!独门独户+全屋飘窗+L型设备平台+双阳台,将空间实得价值拉满。
超大横厅
餐厅+客厅面宽约6.35m,再加上相邻卧室可达约8.8m,空间极为开阔。在这里,孩子的玩具车可以自由骑行,周末约上三五好友在家开派对也毫无压力。
270°环幕视野套房主卧
主卧开间约4m,套房设计,有一个L型设备平台,为未来生活预留了可拓空间。三面飘窗,可改造一面为衣帽间。转角是无柱设计,可实现270°无遮挡观景,32层以上看的是银湖山景观。
💫中建鹏宸云筑营销中心电话☎:400-8028-628【营销中心官方已认证】(一对一热情服务)
💫中建鹏宸云筑售楼处电话☎:400-8028-628【售楼处官方已认证】(一对一热情服务)
💫中建鹏宸云筑开发商电话☎:400-8028-628【开发商官方已认证】(一对一热情服务)
精装方面,鹏宸云筑可以说是市面上配置最全的精装项目,基本不需要再花什么装修费了。
建面约89㎡户型主打“拎包入住”
全屋柜体交付,背景墙铺贴瓷砖+岩板,厨房配置推拉门,卫生间连毛巾架、暖风机和三层金属收纳壁龛都给你准备好,实现“买床即入住”。
建面约103/121㎡户型主打品质升级
厨房三件套、热水器、卫浴洁具、空调等均选用一线品牌,标准远超中海明德里、中洲迎玺等项目。

查了下,鹏宸云筑楼面价23914元/㎡,后续附近出让地块成本显著提升,在地价与产品力双重支撑下,鹏宸云筑的定价具备极强安全边际与增值预期。
01
项目区位

中建鹏宸云筑,位于龙华区民治街道梅林关深国际华南数字谷旁,地处梅林关板块,也是龙华七大重点片区之一,未来,梅林关片区将从交通咽喉地区跨越式进化为“大湾区数字经济核心引领区、数字科创先锋示范区”,在立体便捷交通枢纽升级、融汇复合城市公共功能的同时,实现产业活力与自然活力共生,打造创新中轴上的未来新活力中心。
💫中建鹏宸云筑营销中心电话☎:400-8028-628【营销中心官方已认证】(一对一热情服务)
💫中建鹏宸云筑售楼处电话☎:400-8028-628【售楼处官方已认证】(一对一热情服务)
💫中建鹏宸云筑开发商电话☎:400-8028-628【开发商官方已认证】(一对一热情服务)
去年开盘的两栋楼现在已经全部售罄,足以见得这个楼盘的火爆程度。这次加推的6号楼,是两梯五户、32层的设计,有西南向和东南向104平的4房,还有121平和148平南北通透的5房。和之前的楼栋相比,6号楼在视野上有很大优势,部分户型不会被写字楼遮挡,采光和观景效果都更好
02
项目介绍

开发商:华展置业有限公司(中建壹品+湖北文旅局)
物业公司:中建壹品物业
总占地面积:约4.67万㎡
总建筑面积:约21.65万㎡
容积率:5.0
绿化率:30%
栋数:10栋,首推3栋和5栋
总户数:2000多户,首推368套
总层高:32F/47F
梯户比:2T5/2T6
车位:2155个
物业费:-
产权:70年
房产性质:住宅
交楼时间:-
交楼标准:精装修
面积段:79-142㎡3-4房
导航:鹏宸云筑·岭南美学馆
💫中建鹏宸云筑营销中心电话☎:400-8028-628【营销中心官方已认证】(一对一热情服务)
💫中建鹏宸云筑售楼处电话☎:400-8028-628【售楼处官方已认证】(一对一热情服务)
💫中建鹏宸云筑开发商电话☎:400-8028-628【开发商官方已认证】(一对一热情服务)
03
项目户型

💫中建鹏宸云筑营销中心电话☎:400-8028-628【营销中心官方已认证】(一对一热情服务)
💫中建鹏宸云筑售楼处电话☎:400-8028-628【售楼处官方已认证】(一对一热情服务)
💫中建鹏宸云筑开发商电话☎:400-8028-628【开发商官方已认证】(一对一热情服务)
平面图及户型图

04
项目配套

01
交通配套
10号地铁线“南坑站”距离约500米,22号地铁线“横岭站”距离约700米,2站到福田冬瓜岭,4站到岗厦北,6站香蜜湖,7站车公庙。约2.5公里还有深圳最大北站枢纽,快速通达深圳各大区域。
02
商业配套
中建鹏宸云筑500米范围内有8号仓奥特莱斯,在1.5公里范围内还有龙华印象汇、星河coco city、星河cocopaek,天虹商场等商业综合体,举步即是繁华。
03💫中建鹏宸云筑营销中心电话☎:400-8028-628【营销中心官方已认证】(一对一热情服务)
💫中建鹏宸云筑售楼处电话☎:400-8028-628【售楼处官方已认证】(一对一热情服务)
💫中建鹏宸云筑开发商电话☎:400-8028-628【开发商官方已认证】(一对一热情服务)
教育配套
目前所属学区可上龙华区华南实验学校,九年一贯制,在龙华大概属于第三梯队。还有一所民办九年制万科双语学校,这个学校在本地口碑还是不错,就是民办的入读成本会高些。
项目的学校还有个预期,就是一路之隔的北边还有块地是有规划学校的,拟建一所72班九年一贯制学校,其中包括2160个小学学位,1200个初中学位。目前算是有些许期待,以后家门口的学校也算是个优点吧。
04
医疗配套
深圳市新华医院(三甲级别,建设中)、深圳市第二儿童医院(三甲级别,建设中)、广州医科大学附属第一医院(规划中)
05
休闲配套
项目南边是民悦公园和民治水库,目前能看到民治公园建设工程方案设计图流出。
💫中建鹏宸云筑💫开发商电话:400-8028-628(开发商官方已认证)项目基本信息,楼盘价格,区域板块,开发商资料,楼盘详细地址,物业类型,产权年限,销售信息,销售状态,装修情况,交房时间,开盘时间,售楼处地址,营销中心地址,楼盘户型图,小区规划,绿化率,容积率,占地面积,建筑面积,总户数,物业费,车位数,物业费,楼盘介绍,踩盘报告,梯户比,标准层高,交楼标准,项目有缺点有哪些?是否有团购?找开发商买房便宜?还是找中介买房便宜?最新折扣是多少?最新房价是多少?房价走势,楼盘最新资讯,楼盘最新动态,价值分析报告,周边商业配套,教育配套,交通配套,医疗配套,周边热门楼盘,房价行情解读
💫温馨提示:本楼盘暂不接受临时到访,看房需提前来电预约!即可尊享独家折扣
💫将为您安排楼盘专业销售一对一接待服务!让你买的放心!
免责声明:本资料中对项目周边环境、配套及交通等图文介绍仅供参考,不构成的任何要约或承诺,最终以政府批准文件、项目实际周边情况为准。本项目的图文资料仅供参考、非要约,具体以交付时现状及买卖合同的约定为准。本公司保留修改宣传资料的权利,敬请留意项目最新资料,最终的解释权归本公司所有。
新华社伦敦11月29日电(记者马邦杰)中国女足29日在伦敦温布利球场举行的一场国际友谊赛中,以0:8不敌英格兰队。
11月29日,中国女足球员在英格兰队球员进球后。新华社记者 李颖 摄 根据官方公布的数字,共有74611名观众在现场观战。主场作战的英格兰队球员在技术、速度和力量等方面全面占优。第12和第14分钟,她们先后在两个边路发动进攻,由米德连进两球。第16分钟,亨普再下一城。随后,斯坦威在第23、38和52分钟时连进三球,完成“帽子戏法”。第71分钟,中国队后卫与门将之间配合失误,被英格兰中场球员图恩抢断轻松破门。第78分钟,英格兰队依靠娴熟的进攻配合再次得手,拉索完成破门。
11月29日,中国队门将潘红艳(右)在比赛中扑救。 新华社发(文斯·米格诺特摄) 两队上次交锋是在2023年的世界杯赛场上,当时中国队以1:6失利。
中国队在开场两分钟时,由陈巧珠掷界外球制造了一次射门,这是球队上半场唯一的射门机会。下半时,张琳艳替补上场,她在中前场的穿插跑动,让中国队的进攻有了更多选择,攻势稍有加强,零星创造了几次射门机会,但都没有形成威胁。整场比赛,英格兰队有9次射门打正,比中国队多7次。
11月29日,中国队球员王妍雯(左)在比赛中进攻。 新华社记者 李颖 摄 赛后,英格兰队主教练威格曼评价球队在比赛中表现得“冷酷无情”。她说:“我认为我们开局非常顺利,对方采取了不同的阵型,因此我们必须做出调整。她们给了我们太多控球时间,而当我们获得这样的空间时,就能展现出真正的实力。队员间的配合十分默契,有几粒进球相当精彩。”
中国队球员王爱芳表示,和对方实力差距较大,虽然球员都竭尽全力,但很难与对方抗衡。
11月29日,中国队门将潘红艳(右)未能扑出英格兰队球员的射门。 新华社记者 李颖 摄 本场比赛之后,中国队将赴西班牙继续拉练,备战明年三月在澳大利亚举行的亚洲杯比赛。
声明:本文由入驻焦点开放平台的作者撰写,除焦点官方账号外,观点仅代表作者本人,不代表焦点立场。
