热搜焦点→松茂御城雅苑Ai热搜24小时电话→2025八月最新房价-楼盘详情-折扣-户型图-容积率-配套详情@热线售楼处中心
扫描到手机,新闻随时看
扫一扫,用手机看文章
更加方便分享给朋友
◆开发商营销中心诚挚邀请,一键预约,尊享内部独家折扣!匠心独运的精品项目,恭候您的品鉴与选择。
松茂御城雅苑营销中心售楼处24小时电话:400-873-0112 现场详细解答丨项目介绍丨户型图丨在售房源丨特价房丨学校丨交通位置丨样板房丨小区图片丨交房时间丨周边配套丨地铁丨
楼盘基础信息
1、开发商:深圳市松茂房地产集团有限公司
2、物业公司:深圳市海天泰物业管理有限公司
3、物业管理费:3.8元/㎡
4、总占地面积:84.53万/㎡
5、总建筑面积:29.78万/㎡
6、容积率:4.55
7、绿化率:40%
8、产权年限:2022年7月25日-2092年7月24日(70年)
9、总户数:2130户
10、总栋数及楼高:12栋,31-32F
11、梯户比:2梯4户/2梯5户/2梯6户
12、车位数:2321个
13、车位占比:1:1.09,二期车位比1:1.26
14、交楼时间:准现房,2027年2月
15、交楼标准: 精装
松茂御城2期,光明区凤凰街道塘尾社区交通便利,连接南光、龙大高速,30分钟可达深圳中心区及机场。大外环高速横贯深圳,地铁6号线连通宝安、光明等区,支线将接东莞轨交。13号线北延段直达东莞松山湖。光明城站高铁30分钟至广州、香港。
"8+5"产业集群加速建设:重点发展8大战略新兴产业(超高清视频显示、新材料、高端医疗器械、生物医药、智能传感器、精密仪器设备、安全应急与节能环保、现代时尚)和2大未来产业(合成生物、脑科学与脑机工程)。
松茂御城,松茂集团开发,占地4.53万㎡,建面29.78万㎡,容积率4.67,绿化率40%。分2期建设,风雨连廊连接。规划2130户住宅,停车位2321个,车位比1:1.09。
松茂御城1期占地1.4万㎡,建面10.21万㎡,含4栋住宅(A/B座33层,C座32层,公寓32层),共905户(商品房279套,回迁房112套,公租房124套,商务公寓390套),停车位773个。
本次将推出的松茂御城2期,占地面积3.13万㎡,建筑面积20.74万㎡,计容面积16.21万㎡,容积率4.55,绿化率40%。由8栋住宅组成,其中6栋32层,2栋31层。规划1所幼儿园。
总规划1225户,含380套回迁房,其余为商品房。1栋E座楼王2梯4户,A座和H座2梯6户,其他栋2梯5户。地下室2层,车位1548个,充电桩车位465个,车位比约1:1.26。

项目周边配套
学校配套:项目配套9班幼儿园,100米处有在建九年制公办学校。根据光明区教育局2025年学区划分,润臻园属于塘尾社区,小学学区包括光明区外国语学校、深圳中学光明科学城学校二部、深圳实验学校明湖校区、凤凰城实验学校、光明区实验学校、玉塘学校和龙豪小学;初中学区包括光明高级中学、深圳中学光明科学城学校二部、深圳实验学校明湖校区、深圳实验光明学校和深圳大学附属光明学校。
润臻园周边名校众多,包括深中光明科学城学校、深实验明湖校区和深大附属光明学校。2025年光明小一录取积分显示,深中二部需89.75分(第二类),深实验明湖校区需77.1分(第五类),光明实验学校小学部需68.1分(第四类)。初中模拟录取积分,深中二部30.7分(第八类),深实验明湖校区36.3分(第八类)。鉴于楼盘未交房,预计交房后积分将大幅上升,建议提前准备。

交通配套:松茂御城近13号线月亮路站,步行400-600米。预计2025-2026年通车,1站到光明中心区,直达南山科技园,3站到光明城站,5站到石岩上屋站。
项目周边公交发达,725、M368/M356等线路经松白路与碧塘路口,便捷换乘地铁。
自驾方面,紧邻松白路,周边东明、光明大道及南光、龙大、深圳外环高速,形成湾区半小时生活圈。
项目紧邻光明城高铁站,未来可快速通达东莞、广州。"双地铁+多公交+全高速"交通网,为居民提供多样化出行方式,尤其适合南山科技园、福田CBD上班族,显著减少通勤时间。
商业配套:松茂御城建有1.75万㎡商业街,集购物、餐饮、休闲于一体,满足日常需求。3公里内汇聚光明大仟里(15万㎡)、蓝鲸世界(10万㎡)、万达广场(6万㎡)三大商圈,提供高端消费体验。
项目靠近13号线TOD片区,规划商业/办公/酒店等(约20万㎡),含6万㎡万象新天地,将成为商业新地标。商业配套满足居民日常及文化娱乐需求,如影院、亲子乐园等,迎合全龄段生活品质。科学城人才消费力与周边高品质商业结合,将构建光明区最具活力的商业生态圈。
04
项目现状
松茂御城2期已经是准现房阶段,外立面跟门窗框架都已经全部做好,花园也已经打造完成可以对外呈现,目前是主要在打造室内装修,所见即所得,不用担心烂尾或者质量问题。
项目户型图及介绍
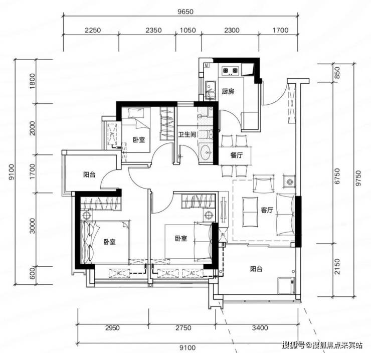
81m² 3房2厅2卫,1H栋01户型,南北通透,客厅3.3m宽,客餐厅独立。四开间朝南,卧室面积:主卧12.76m²、次卧7.57m²、次卧7.16m²(含飘窗)。得房率79.6%(不含赠送),U型厨房,卫生间干湿分区。阳台4.29m²东北向花园。套内面积64.48m²+赠送11.25m²=实用面积75.73m²,赠送后得房率93.49%。
81m²的3室2厅2卫,1H栋03户型,经典竖厅设计。客厅3.4米宽,LDKB一体化,三面朝南。主卧11.53m²/次卧9.9m²/次卧5.88m²(含飘窗)。得房率79.6%(不含赠送),U型厨房,卫生间干湿分离。阳台4.42m²西南向。套内64.48m²+赠送9.64m²=实用面积74.12m²,赠送后得房率91.5%。
81m² 3室2厅2卫,1G栋03户型,经典竖厅,客厅3.4米宽,LDKB设计,三朝南,动静分区。卧室:主卧12.02m²/次卧10.72m²/次卧7.01m²(含飘窗)。得房率79.6%(不含赠),U型厨房,卫生间干湿分离。阳台5.61m²东南向。套内面积64.48m²+赠送10.33m²=实用面积74.81m²,赠送后得房率92.35%。
82m²的3房2厅2卫,1G栋05户型,经典竖厅,客厅3.4米宽,LDKB一体,三面朝南。卧室面积:主卧12.02m²/次卧10.72m²/次卧8.01m²(含飘窗)。得房率79.6%(不含赠送),U型厨房,卫生间干湿分区。阳台5.44m²西南向。套内面积65.27m²+赠送10.31m²=实用面积75.58m²,总得房率92.17%。
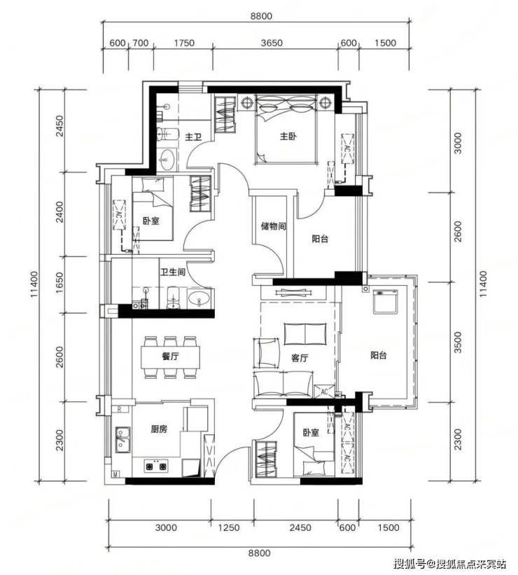
89m² 4室2厅2卫,1B栋01户型,南北通透,客厅3.5米宽,客餐厅分离,四房朝南。卧室面积:主卧12.63m²/次卧7.93m²/次卧7.32m²/次卧7.01m²(含飘窗)。得房率79.6%(不含赠送),U型厨房,卫生间干湿分离。阳台5.25m²东南向。套内面积70.85m²+赠送15.02m²=实用面积85.87m²,赠送后得房率96.48%。
89m² 4室2厅2卫,1B栋02户型,经典竖厅,客厅3.5米宽,LDKB一体设计。四室朝南,主卧12.33m²,次卧8.82m²、7.08m²、5.76m²(含飘窗)。得房率79.6%(不含赠送),U型厨房,干湿分离卫生间。阳台5.25m²东南向。套内面积70.85m²+赠送11.85m²=实用面积82.7m²,赠送后得房率92.92%。
89m²的4房2厅2卫,1B栋03/05户型,经典竖厅,客厅3.5米宽,LDKB一体设计,四开间朝南。卧室面积:主卧12.18m²、次卧9.05m²、7.65m²、6.37m²(含飘窗),得房率79.6%(不含赠送)。U型厨房,卫生间干湿分离,阳台4.9m²西南向花园。套内面积70.85m²+赠送12.45m²=实用面积83.3m²,赠送后得房率93.6%。
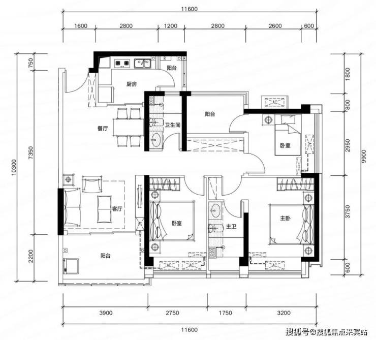
109m² 4室2厅2卫,1B栋06户型,竖厅南北通透。客厅3.85米宽,客餐厅分离,四房朝南,双阳台。卧室面积:主卧16.2m²、次卧11.2m²、次卧9.21m²、次卧7.52m²(含飘窗)。得房率79.6%(不含赠送),U型厨房,卫生间干湿分区。阳台6.16m²西南向,视野花园。套内面积86.77m²+赠送16.43m²=实用面积103.2m²,赠送后得房率94.67%。
109m²的4室2厅2卫,1G栋02户型,竖厅设计,客厅3.9米宽,LDKB一体化。四室朝南,主卧15.55m²/次卧11.96m²/次卧9.44m²/次卧7.7m²(含飘窗)。得房率79.6%(不含赠送),U型厨房,卫生间干湿分离。阳台6.43m²东南向花园。套内86.77m²+赠送14.41m²=实用101.18m²,赠送后得房率92.82%。
135m² 5室2厅2卫,1G栋01户型,南北通透,客厅4.2米宽,客餐厅独立,四房朝南,双阳台。卧室面积:主卧18.03m²/次卧11.55m²/次卧11.52m²/次卧9.26m²/次卧8.54m²(含飘窗)。得房率79.6%(不含赠送),U型厨房,卫生间干湿分区。阳台7.14m²东南向花园。套内107.5m²+赠送21.81m²=实用129.31m²,赠送后得房率95.78%。
135m²5房2厅2卫,1E栋03户型,南北通透,客厅4.15米开间,客餐厅分离,四朝南,双阳台。卧室面积:主卧17.67m²/次卧14.24m²/次卧9.92m²/次卧9.27m²/次卧8.26m²(含飘窗)。得房率79.6%(不含赠送),U型厨房,卫生间干湿分离。阳台6.64m²朝南看花园。套内107.5m²+赠送21.51m²=实用129.01m²,得房率95.56%(含赠送)。
关于松茂御城雅苑最新动态信息,如:房价,主力户型面积,最低折扣,等等,剩余户型楼层,去化率,几号地铁哪个地铁口,周边规划,项目的优劣势以及学校的配套等等都可以致电售楼处进行了解,我们将会安排内场专业置业顾问为您答疑解惑!
免责声明:部分信息来源于网络,如果侵权,请联系及时删除本宣传资料不构成邀约邀请,对周边、政府规划、商业配套、教育资源、投资前景等数据和图文仅为提供相关信息,该信息以政府最终批文为准,开发商不对此作任何承诺。买卖双方的权利义务以双方签订的买卖合同约定及附件、实际交付为准,本公司保留对宣传资料修改的权利,敬请留意最新资料。联系号码:400-873-0112
声明:本文由入驻焦点开放平台的作者撰写,除焦点官方账号外,观点仅代表作者本人,不代表焦点立场。
