会展湾泊悦府(售楼处)→首页网站→会展湾泊悦府营销中心→会展湾泊悦府欢迎您→楼盘详情→最新价格→户型图→容积率→最新售楼处

搜狐焦点来宾站 2025-06-10 15:22:32
用手机看
扫描到手机,新闻随时看

扫一扫,用手机看文章
更加方便分享给朋友

前海2.0湾区核芯全球领秀会客厅规划布局“三城一港”战略的区域,承接会议会展、航空航天、海洋经济、智能装备及新一代信息产业,并在300万㎡会展经济体赋能下注入经济发展的活力,成为深圳面向国际的专属秀场。建面约…

✨✨会展湾泊悦府售楼处电话:400-805-9003【售楼处电话已认证】✨✽✽✽✽

✨✨会展湾泊悦府营销中心电话:400-805-9003【营销中心电话已认证】✨✽✽✽✽

✨✨会展湾泊悦府开发商电话:400-805-9003【开发商电话已认证】✨✽✽✽✽

✨✨会展湾泊悦府销售电话:400-805-9003【销售电话已认证】✨✽✽✽✽

✅本项目暂不接受临时到访,过来参观样板房请记得提前来电预约!

✅为您安排楼盘现场销售全程接待并讲解,给您更贴心的看房体验!

✅✅☞☞Vip贵宾置业==欢迎来电预约尊享内部折扣===匠心钜制恭迎品鉴☜☜

如有问题欢迎来电咨询,来电即可享受买房优惠!

预约来电尊享购房优惠,可预约案场内部销售人员,专业一对一热情服务,让您用专业眼光去买房

项目基本信息

【项目地址】:宝安区福海街道

【总占地】:约3.9万㎡

【总建面】:约21.5万㎡

【产权年限】:40年

【容积率】:4.08

【商务公寓】 :约15000㎡

【总套数】:141套

【物业公司】:深圳华侨城湾区发展有限公司

【物业费】:9.8元/平/月

【交付时间】:2023年9月30日

前海2.0时代,汇聚全球资源配置能力

1、前海2.0湾区核芯 全球领秀会客厅规划布局“三城一港”战略的区域,承接会议会展、航空航天、海洋经济、智能装备及新一代信息产业,并在300万㎡会展经济体赋能下注入经济发展的活力,成为深圳面向国际的专属秀场。

区域价值

[海洋新城及会展新城]总建筑面积3284万平方米,总就业人口48.7万人,总居住人口34.05万人。

[深圳国际会展中心]年参展约1000 万人次,总产值超过1350亿。2035年达到总产值3000亿元,带来6万高端人才引入。

[深圳国际机场]年旅客吞吐量8000万,日均发送客流8万人,带动产业总产值1600亿元。

[融创冰雪世界]建成后预计总产值520亿元/年,年游客量也将超1000万人次万。

交通配套

地铁、陆路、航空、高铁、港口,五维交通枢纽,海纳全球商旅潮,其中双地铁上盖举步即达世界 高效链接全球资源。

商业配套

建面约154万㎡国际会展配套包罗万象,商业、酒店、公园全维满足,以约19万㎡花园天地-购物中心,项目配建约1.6万㎡下沉式日咖夜酒主题商业配套,构建高端娱乐休闲平台,打造国际大都会繁华生活中心。

生态配套

前环会展河,后通空中花园长廊,一线水景、园景。

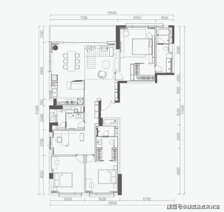
户型鉴赏

A1户型 | 81㎡

(样板房实景图)

A3户型 | 93㎡

(样板房实景图)

B1户型 | 127㎡

(样板房实景图)

C户型 | 192㎡

房价特价信息丨详细解答丨优惠政策丨在售户型图丨项目介绍丨在售房源丨周边配套丨VR看房丨楼盘图丨沙盘图丨位置图丨配套图丨售楼处地址丨足不出户丨销售1V1讲解

免责声明:

1.本文为第三方观点,不作为开发商要约或承诺。其中涉及的文字、数据、图片仅供参考,相关内容不排除因法律法规调整、政府规划调整及开发商无法控制的原因而发生变化。

2.资料中所载房屋面积均为建筑面积,最终面积可能存在差异。

3.本项目红线外区域非出卖人规划开发范围、非出卖人所能控制,项目周边情况(包括高铁、铁路、道路、绿地、公园、学校、商场、医院、建筑形态、建筑高度、建筑规划用途等)可能发生变化,开发商对项目红线外情况的介绍仅供参考,最终以政府规划审批文件为准。

4.买卖双方权利义务以双方签订的《商品房买卖合同(预售)》(含附件、补充协议)及《置业指南》等签约文件约定及政府最终批准文件为准。

5.首开优惠具有时效性,具体优惠政策以开发商制定的细则为准,详情请垂询售楼处,敬请留意最新资料。

4月29日晚间,万科(000002.SZ)公布了2025年一季度报告。

财报显示,今年一季度万科实现营收近380亿元,实现销售金额349.2亿元,回款率超过100%,按期保质完成1.04万套房的交付。

报告期内,万科实现大宗交易签约金额38亿元,涵盖办公、商业、公寓、教育业态等7个项目;实现盘活回款24笔,合计40.9亿元;投资设立“万新金石(厦门)住房租赁基金”,用于购买厦门泊寓院儿•海湾社区项目,并由泊寓继续提供资产运营服务。

在融资端,万科继续获得各类金融机构支持,今年一季度合并报表范围内新增融资和再融资139亿元,新增融资综合成本3.39%,较2024年一季度下降21个基点。今年一季度,万科完成98.9亿元公开债务的偿还。截至报告期末,万科持有的货币资金为755亿元,资产负债率为73.5%。

发布2025年一季报同日,万科在另一则公告中披露,公司董事会审议通过出售A股库存股的议案。万科计划采用集中竞价交易方式,在公告日起15个交易日后至2025年7月2日期间出售7295.6万股,占公司总股本的0.61%。

“本次出售A股库存股后,公司将收回资金,有利于补充公司的流动资金。根据企业会计准则的相关规定,本次减持股份价格与回购股份价格的差额部分将计入或者冲减公司资本公积,不影响公司当期利润,不会对公司的经营、财务和未来发展产生重大影响。”万科方面称。

此外,万科4月29日晚间还发布了《关于深铁集团向公司提供33亿元借款暨关联交易的公告》,大股东深铁集团拟向万科提供33亿元股东借款,借款利率2.34%,低于全国银行间同业拆借的1年期贷款市场报价利率(LPR)。

据了解,本次借款将用于偿还万科在公开市场发行的债券的本金与利息,借款期限为36个月,经双方协商一致,可提前还款;经出借人同意,可进行展期。

公开资料显示,去年以来,深铁集团已通过大宗交易、REITs认购、股东借款等多种方式支持万科,今年深铁综合运用业务支持、资金支持、战略融合、轨道赋能等市场化、法治化手段持续支持万科。

而在万科公布一季报前一日,万科旗下长租公寓品牌泊寓与深圳地铁置业集团签署深铁项目租赁运营合作框架协议,进一步深化双方在住房租赁领域的融合发展。根据协议,深铁置业将发挥其丰富的项目资产优势,与万科泊寓在租赁领域的品牌影响力和运营优势相结合,对适配长租公寓业务的深铁项目开展合作运营。

分析人士认为,未来万科与大股东深铁的融合发展,有望为万科在轨道物流、TOD综合开发等方面提供新的业务空间。同时,万科在REITs、Pre-REITs方面的突破,将帮助其进一步盘活存量资产、回笼资金。

声明:本文由入驻焦点开放平台的作者撰写,除焦点官方账号外,观点仅代表作者本人,不代表焦点立场。