合生缦云(售楼处)首页网站-合生缦云营销中心-2025-合生缦云欢迎您-楼盘详情-最新价格-户型图-容积率@售楼处中心
扫描到手机,新闻随时看
扫一扫,用手机看文章
更加方便分享给朋友

缦云广州:天河畔的半山奢居蓝本
项目简介
缦云广州,作为合生缦品牌在南中国的开篇之作,承载着全球高端生活方式的理念。它落子于广州天河区这一第一商务中心,与天河 CBD 和金融城 CBD 两大经济引擎保持约 6 公里的宜居距离,驾车约 20 分钟可畅达繁华都市。项目总建面约 37 万㎡ ,聚合城市与半山核心资源,匠心打造建面约 145 - 315㎡的半山森幕美宅,为广州带来别具一格的理想生活体验。
项目优势
价格虽未明确,但结合其高端定位与稀缺资源,面向追求高品质生活的高净值人群。户型丰富,145 - 315㎡的三至五房设计,专梯专户并享有私家电梯厅,保障居住私密性。楼盘周边生态资源优越,教育、医疗、商业等配套完善,还配备特色会所与先进科技系统及全方位服务体系。地段处于天河国际生态区核心,位置得天独厚。
最强户型
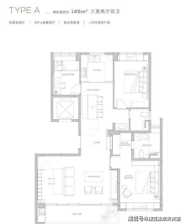
145㎡户型
:独享私家电梯厅,约 7.2m² 森幕宽厅搭配 LDKB 全明户型,空间开阔且采光极佳,适合追求精致生活的家庭。
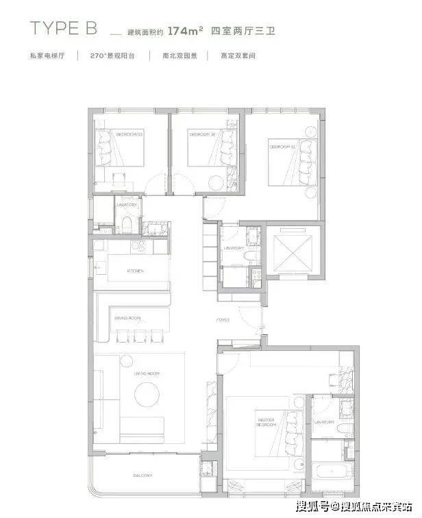
174㎡户型
:不仅有独享的私家电梯厅,还配备 270 度环幕观景阳台与高定双套间,可尽情欣赏周边美景,提升居住品质。
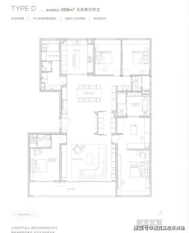
260㎡户型
:超 10 米南向景观阳台,南北双景观设计,主套步入式衣帽间及独创灵动岛设计,可实现生活场景多重切换,满足对高品质生活有较高追求的人群。
315㎡户型
:南北双阳台、独立保姆房、巨幕大宽厅以及私家电梯厅,空间尺度奢华,为追求极致居住体验的高端客户量身打造。
交通详情
交通出行较为便捷,与 4 大快速路紧密相连。北接沈海高速、环城高速,南连广园快速路、华南快速路,能够快速通达各大商圈。虽最近地铁站信息未明确,但结合其与 CBD 的距离及周边交通干线,自驾出行可轻松畅达城市各处。
商业配套
商业配套丰富多元。驱车约 20 分钟即可抵达太古汇、珠江新城、金融城这 3 大国际级商圈,满足高端购物、餐饮、娱乐等全方位消费需求,尽享都市繁华。
最优教育
教育资源堪称豪华。周边 6 所名校环绕,涵盖 2 所国际学校、2 所重点小学、2 所省级中学,如奥体东小学、灵秀小学、执信中学、清华附中、贝赛斯国际学校、爱莎国际学校等。项目还自建 12 年公立教育配套,已引进广州天河外国语教育集团办学,配建 45 班九年一贯制公立学校(18 班小学 + 27 班中学),为业主子女提供从幼儿园到初中的一站式优质教育。
文体 + 休闲 + 医疗
休闲景观方面,位处天河国际生态区,被约 71 万㎡城市林海景观环绕,紧邻约 5 万㎡月亮湖、太阳湖,负氧离子丰富,占据市中心稀缺生态资源,为业主营造宁静舒适的居住环境。项目配置 5800㎡星际会所,涵盖文化、运动、健康、宠物、教育、购物等日常需求;在楼宇中打造多个共享泛会所,包含儿童书吧、共享办公、社交茶室等功能,满足全龄段业主的休闲娱乐需求。医疗配套上,6 公里内有 4 家三甲医院,包括中山大学附属第六医院珠吉院区 (在建中)、暨南大学附属第一医院东圃院区、广州医科大学附属中医医院 (天河新院)、中山大学附属第三医院岭南医院,为业主的健康保驾护航。此外,项目的缦系无边际服务,涵盖时间、空间、专属等全方位服务体系,365 全天候响应,提供 24 小时管家服务、15 分钟日常维修响应等,为业主带来贴心周到的服务体验。

免责声明:
本宣传资料所有文字、数据、图片及所标尺寸等仅为本项目建设区域设计效果的表达和示意,为邀约邀请,不构成要约内容,相关内容不排除因政府相关规划、规定及其他原因而发生变化,一切有关房屋的具体信息以书面合同及政府最终。
财联社6月3日讯(记者 王海春)今年端午假期,新房市场成交冷热不一。
中原地产6月3日公布的数据显示,今年端午假期(5.31-6.2)上海新建商品住宅共成交4.61万平方米,同比增长87.4%。
“按我们监测到的数据,端午假期上海超过100个项目有签约记录,大部分楼盘签约只是个位数,不过今年假期仍有部分热门楼盘出现规模不小的签约。这其中,一些品质较高的楼盘,因签约量较大,从而推高了交易数据。”中原地产高级研究经理卢文曦表示。
在武汉,中指院今日公布的数据显示,今年端午假期期间,武汉市新建商品住宅网签571套,网签面积为6.49万平方米,较去年假期增加26%。
据了解,武汉今年端午期间交易量上升,主要是因为开发商抓住假期时机,加大推盘及营销力度,多个项目节前取证开盘销售,销售情况不错的楼盘多为新规划项目,产品力优势明显,使得去化情况较好。
在深圳,据深圳中原研究中心统计,今年端午假期(5.31-6.2),深圳全市一手住宅现售+预售成交194套,其中一手住宅预售成交167套,较去年端午假期下滑23.4%;二手住宅成交97套,较去年上升32.9%。
中指院高级分析师孟新增介绍,今年端午小长假期间,部分城市一些楼盘的确表现不错,不过整体来看,多数城市的项目虽然延续之前促销活动,但市场整体表现相对平淡。
其表示,从5月市场交易情况来看,百城新房价格环比涨幅扩大,二手房延续“以价换量”态势。
据中指院监测数据,2025年5月,全国百城新建住宅均价16815元/平方米,环比上涨0.30%,涨幅较4月扩大0.16个百分点,同比上涨2.56%。
多位业内人士告诉记者,均价上扬,与成交结构的推动因素有一定关系
“改善盘活跃,推动了5月的均价继续上涨,尤其是一线城市涨幅更加明显。这其中,一线城市环比上涨0.9%,增幅比上月上升0.53个百分点;同时也要看到,二线城市环比仅微增0.06%,较上月0.1%的增幅出现下降,三四线城市环比继续下跌。”广东省住房政策研究中心首席研究员李宇嘉称。
对于这种现象,58安居客研究院院长告诉记者,从供应端角度观察,年中通常是房产销售的重要节点,开发商们会在高能级城市加快推盘速度,优质房源供应的增加,因此成为推动市场交易活跃度提升的一股重要力量。
“不少房企目前押注‘高端改善盘’,使得核心城市优质项目集中入市。另外,核心城市土地侧的热度,也会传导至新房市场,北京、上海、杭州等城市均拍出高总价及高单价地块,尤其是杭州总体溢价率明显领先于其它城市,这对于提高市场热度及预期,也起到了一定作用。”张波在接受记者采访时说。
业内人士指出,部分高能级城市核心地段项目热销之际,也应注意到,5月二手住房价格环比跌幅扩大,各线城市均出现程度不等的回落。
中指院数据显示,2025年5月,百城二手住宅均价13794元/平方米,环比下跌0.71%,跌幅较3月扩大0.02个百分点;同比下跌7.24%。
李宇嘉介绍,4月以来二手房挂牌量继续增加,尤其是出现大户型在市场挂牌量增长的现象。
“部分业主置换需求增加,使得挂牌量有所增长,而改善型新盘的入市,与存量房的竞争效应变得明显,加上愿意降价卖房的业主有所增加,导致二手房价格调整较为明显。”李宇嘉说。
对此,张波也指出,由于新房市场政策的调整和开发商让利,可能会有一些购房者转向新房市场,导致二手房市场的竞争加剧。其预计,二手房挂牌量如果继续增加,可能会倒逼二手房价格继续回落。
“从二手房市场来看,热点城市的核心地段由于土地稀缺、人口流入量大、经济发展水平高等因素,房价有望保持相对稳定,部分具有地段优势的稀缺房源甚至可能出现小幅上涨。而那些并无独特地段、资源等优势的房源,则面临市场竞争压力。对于一些库存较大的中小城市,二手房市场去化压力仍然较大,还需继续通过降价等方式来促进成交。”张波补充道。
孟新增也认为,二手房的学区需求阶段性得到释放后,年中成交预计逐步趋稳,在高挂牌量因素影响下,短期内二手房市场“以价换量”仍是市场主流。
声明:本文由入驻焦点开放平台的作者撰写,除焦点官方账号外,观点仅代表作者本人,不代表焦点立场。
