翰熙典居售楼处电话→翰熙典居售楼中心电话号码→翰熙典居咨询热线→24小时电话→容积率-样板房-配套详情@售楼处
扫描到手机,新闻随时看
扫一扫,用手机看文章
更加方便分享给朋友
————【深圳翰熙典居】————
线上预约看房【享】专属优惠折扣
在售户型图丨项目介绍丨最新房源丨周边配套丨详细解答〢
翰熙典居售楼处24小时VIP电话:400-962-6159温馨提示:来电预约看房、尊享更多现场优惠!(中介勿扰)
翰熙典居售楼中心热线:400-962-6159(售楼处)【VIP贵宾专线】
楼盘最新介绍:备案价、折扣、学区、地铁、交通、户型图、特价房、优缺点、得房率、优惠活动、小区图片、开盘时间、交房时间、周边配套、最新详情等咨询。
本文内容为广告推广,涉及房价或现有房源可能出现变更,请致电详询并以售楼部为准。
为了您更好的看房体验,可致电预约!(置业顾问一对一对接、项目定位预留停车位)
深知家的真谛远超越砖瓦构筑,它是心灵的港湾,情感的归宿。我们秉承品质至上的原则,以服务为灵魂,匠心独运,只为构筑一个集安心、信赖、惬意与健康于一体的理想居所。展望未来,我们将不遗余力,确保项目精准无误地按期呈现,让您的心愿家园触手可及,早日沉浸于梦寐以求的幸福生活之中。
欢迎来电咨询楼盘、线上预约看房可享专属活动哦~~
➤➤➤➤VIP贵宾置业〢欢迎来电咨询〢品鉴!!

项目基础数据
【开发商】深圳市阳光华艺房地产有限公司
【占地面积】总7万㎡
【建筑面积】总37万㎡
【总户数】02地块872户(其中回迁544套+可售328套)
【户型面积】105-120-140㎡3-4房
【停车位】02地块747个
【物业及物业费】--物业,--元/㎡/月
【绿化率】35%
【容积率】02地块9.32
【总楼栋】02地块含3栋住宅+1栋办公楼
【总层高】2栋1单元住宅174米53层,2单元办公130米27层,3单元住宅168米51层,4单元住宅175米53层
【梯户比】待定
【交楼时间】预计2027年7月16日,精装修交付
【产权年限】70年(2023.9.14-2093.9.13)
【项目位置】深圳市南山区粤海街道白石路与学府路交叉口西北侧

三、项目户型图
01
项目平面图
02
项目户型介绍
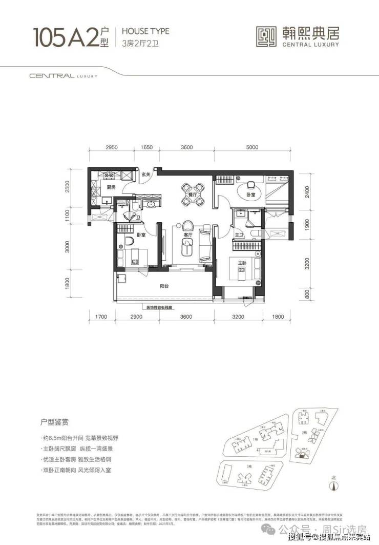
105㎡的3房2厅2卫,经典的双龙抱珠布局,主人空间与客卧空间互不干扰,具备私密性优势。并且户型方正,实用三房两厅两卫。朝南向四开间面宽共约 13.2m,全明空间,采光极佳。这个户型含赠送半阳台和飘窗的面积后使用率可达约 83%,这在超高层中是比较高的使用率。
本次首推的 02 地块 ,户型有这个双龙抱珠的,还有一个户型是竖厅格局,各有优势,看个人喜好选择。
120㎡的3+1房2厅2卫,户型为大三房两厅两卫,东南朝向,含赠送半,阳台和飘窗等平台部分后使用率可达约 88%左右,这在超高层中是非常高的使用率。其中主客卧、客厅、双阳台合计开间超 12m,大尺度四面宽朝南,带约 6.15 米奢阔观景台,堪比一线豪宅的观景尺度;主卧超奢阔大套房,且预留了室内后期业主自行改造的灵动空间。
140㎡的3+1房2厅2卫,该户型为 02 地块的唯一一条腿,非常稀缺。户型南北通透,带大主卧套房的奢居型三房。带 5.4m 观景台,大横厅奢阔空间设计,主卧同客厅阳台、餐厅三面宽朝西南。北向双次卧、双卫生间、拓展空间共五面宽一字排开,视野全面俯瞰社区内园林,静谧舒适。
四、交通出行
项目距离9号线/15号线(在建中)交汇处——深大南站不到300米,地铁出行十分便利。
此外,自驾出行也很方便。项目临近南海大道、滨海大道,去往深超总部基地、前海自贸区、宝中等西部核心区域仅要20分钟内。
五、商业配套
项目自带约5000㎡的商业规划。2公里范围内有海岸城、茂业百货、海雅百货等大型商超,日常购物娱乐皆能满足。
海岸城购物商场
六、周边学校
根据2024年南山学区划分,项目对口学校是南山区第二外国语学校(集团)学府一小和南山区第二外国语学校(集团)学府中学。根据坊间学校排名,两所学校均属于第二梯队。(具体入学以当年教育局公布为准)
学府中学成立于 2003 年,是南二外教育集团目前孵化的成员学校当中,综合实力仅次于南二外海德初中部的存在。学校现有 50 个教学班,2400 余名学生和 201 名教职员工,师资力量雄厚。

学府一小地处南山商业文化中心区,2001年建校,近年来刚刚扩建完成,扩建后学校环境、设施都进行升级,配备了未来教室、创客实验室等多种功能教室,生源主要覆盖深大周边,是学府中学的主要生源地小学。
七、休闲配套
在文体休闲方面,3公里范围内汇聚文心公园、南山书城,荷兰花卉小镇、南头古城、荔香公园、深圳人才公园等,各种休闲娱乐设施一应俱全。
在医疗配套方面,项目距离深圳大学医院约828米,距离三甲医院——南山区人民医院约1.2km,基本可满足居民日常看病就医需求。
八、片区规划
翰熙典居项目坐落于“深圳最牛街道”——粤海街道,一侧是深圳大学,另一侧是大厂云集的南山科技园,地理位置十分优越。
要知道,粤海街道被誉为“中国的硅谷”,走出了华为、腾讯、大疆等一大批著名企业,传说曾凭一己之力抗住了贸易战,于2020年开始火出圈。
年轻的90后——粤海街道,到底有多厉害?
粤海街道办成立于1991年,至今才“32岁”。面积约20.99平方千米,占深圳不到0.6%的面积,开车绕一圈10多分钟即可逛完。
但这样的“小身板”却创造约超过4000亿的GDP,这个规模甚至超过了一些省份的GDP总量,综合排名连续多年位居全国前三。人均GDP约为6.32万美元,排名世界第十二,是北上广深四个一线城市的10倍。
粤海街道的心脏,是深圳科技园,也称为深圳高新区(南山园区)。每个城市都有一个科创担当,例如北京的中关村,上海的张江高科技园,而在深圳,它是南山科技园。
片区内坐拥130+家上市公司,总市值超过5万亿。这里各种科技公司俯拾皆是,不仅有腾讯、百度、大疆、迈瑞、大族激光、金蝶软件等国内著名科技公司,很多国外科技公司如苹果、微软、高通也将其办事处或者研发中心设置于此。
值得一提的是,粤海街道还拥有深圳大学等高等学府,为区域提供了丰富的人才资源和科研支持。同时,街道内还设有多个创新平台、孵化器和加速器,为初创企业和创新项目提供了良好的成长环境。
深圳✅翰熙典居开发商售楼处电话400-962-6159温馨提醒:我们楼盘开发商售楼部400电话没有设置任何所谓的“分机号”,拨打前请仔细甄别,注意保护个人隐私!谨防上当!
过来售楼中心看房请提前预约,可尊享内部特惠,价格包您满意!
为您安排楼盘内场专业销售人员一对一接待服务!让你买的放心,住的舒心!
楼盘详情介绍(楼盘项目怎么样?多少钱一平?什么时候交楼?有什么户型?周边有什么学校?物业费多少?楼盘项目会不会烂尾?)含开盘时间、交房时间、楼盘详情、房价、户型、详情、得房率、售楼处地址、首页网站、降价了吗?目前房价情况、楼盘项目有升值吗?值不值得买?能不能投资?为什么这么便宜?读什么学校?包读吗?有多少学位?销售中心、楼盘地址、户型图、交通、备案价、项目配套、营销中心、周边配套等详情咨询。
666666售楼处电话☎:400-962-6159✅
翰熙典居营销中心电话☎:400-962-6159✅
翰熙典居开发商售楼处咨询电话:400-962-6159【营销中心】楼盘怎么样?值不值得买?读哪个学校?价格多少?户型怎样?位置在哪里?有没有潜力?几点下班?开盘时间?产权多少年?批地时间?有没有问题?什么开发商?能买吗?打几折?周边配套楼盘详情。
翰熙典居售楼处电话:400-962-6159;首页网站最新介绍:房价、价格、折扣、规划、户型图、特价房、样板房、优缺点、得房率、车位比、折扣优惠、交通出行、周边配套、商业配套、销售中心位置、楼盘地址、户型介绍、营销中心电话、最新动态详情咨询。
翰熙典居营销中心电话400-962-6159
翰熙典居开发商电话400-962-6159免责声明:部分信息来源于网络,如果侵权,请联系及时删除
本宣传资料不构成邀约邀请,对周边、政府规划、商业配套、教育资源、投资前景等数据和图文仅为提供相关信息,该信息以政府最终批文为准,开发商不对此作任何承诺。买卖双方的权利义务以双方签订的买卖合同约定及附件、实际交付为准,本公司保留对宣传资料修改的权利,敬请留意最新资料。联系号码:400-962-6159免责声明:部分信息来源于网络,如果侵权,请联系及时删除,联系电话:400-962-6159
2024房产最新信息:
美联储本次降息,对国内房地产市场有何影响?
受美联储降息利好因素影响,今日包括万科、金地、融创、世茂集团、建发国际等多只房地产股走强。
广东省城乡规划院住房政策研究中心首席研究员李宇嘉指出,美联储降息,有效缓解了国内实施货币宽松政策决策时,对于人民币贬值和人民币资产价格进一步下跌的顾虑和掣肘。
“这预示着后续降准降息的通道会更加宽敞,国内按揭利率进一步调控的空间变得更大。这对于缓解开发商资金链紧张,降低购房者按揭成本,促进住房需求,均会产生积极影响。”李宇嘉称。
易居研究院副院长严跃进认为,美联储本次降息对国内货币政策、宏观经济和产业经济也将形成利好,这其中,对房贷利率的影响可能会更加明显。
陈文静也认为,美联储本次降息,为我国后续货币政策调整释放出更大的空间,预计后续我国降准、降息的调整或加快落地,有助于进一步降低企业融资成本。“对房地产市场而言,5年期以上LPR有望进一步下调,居民购房成本也可能随之下降。”
国内降息预期走强
“美联储降息后,按当前的经济形势,国内降息预期随之走强,市场还预期调整幅度可能不会小。”中原地产首席分析师张大伟表示。
在对8月金融统计数据的解读中,央行有关部门负责人表示,“着手推出一些增量政策举措,进一步降低企业融资和居民信贷成本,保持流动性合理充裕。”
就此,严跃进认为,今年9月份至年底LPR降息概率加大,界时房贷成本如果进一步下降,将有助于降低购房成本、提振购房消费意愿。
事实上,“517新政”实施以来,首套房、二套房房贷款利率持续走低。
中原地产研究院统计数据显示,2024年8月全国首套房平均利率已经跌到3.25%左右,二套房贷款平均利率为3.6%。
目前,多数城市首套房贷利率已降至2.9%~3.4%之间。其中,5年期以上房贷利率最高是北京和上海,这两城该项利率均为3.4%,广州低至2.9%;二线城市普遍为3.1%,南京低至2.95%。
张大伟认为,在资本宽松环境下,预计未来部分股份制小银行的房贷政策可能会出现全面宽松,房贷利率或进入“2字头区间”。
存量房贷利率方面,严跃进表示,间接来看,此次美联储降息,或有助于存量房贷利率的进一步下调。
房企融资环境或得到改善
从盘活存量房地产市场角度来观察,有分析师认为,美联储降息有助于吸引外资进入中国市场,房地产领域的大宗投资有望升温。
“从机会点来说,经过持续三年的房地产深度调整,存量房地产资产价格出现幅度不小的调整,价格已基本跌到底部。这为投资机构后续展开收购和盘活存量资产,创造了不错的条件。”严跃进称。
当前在“盘活存量、优化增量”的总体制度框架下,预计未来盘活存量商业地产的机会和需求会有所增加。
与此同时,多位房地产行业分析师表示,美联储降息对存量美元债和新发行美元债等都会形成利好。
张大伟表示,对国内房地产企业而言,房企未来海外融资成本会有所降低。“人民币升值的可能性加大,这将减轻房企偿还海外债务的压力,并可能利好房企增加融资规模,降低其融资成本,进而有利于房地产企业的资金周转和项目开发。
而融资渠道改善后,房企拿地积极性或将有所提高。
“2024年房企整体拿地积极性降低,如果我们也在贷款利率方面做出进一步优化,部分房企融资环境得以持续改善,其拿地意愿可能稍有好转。”一位房地产行业分析师表示。
“美联储降息通常被视为全球经济政策转向宽松的信号,这会影响国内购房者对房地产市场的预期。市场可能认为经济环境将更加有利于房地产市场的发展,对房价上涨的预期增强,从而进一步刺激购房需求。不过,如果购房者对未来经济形势仍存在担忧,这种预期的改善可能会受到一定限制。”张大伟称。
对此,李宇嘉指出,尽管国内降准降息预期走强,但考虑到当前工业品价格低迷,实际利率仍偏高,实体投资回报率能否超过实际利率,还有待观察。
“因此,美联储降息虽然会对国内市场产生间接利好,但短期来看,无论是房企展开投资,还是居民按揭购房,对房地产的实际影响也不应持过高预期。”李宇嘉补充道。
最新地产动态:
1、统计局:1-8月,全国房地产开发投资69284亿元,同比下降10.2%;房屋施工面积709420万平方米,同比下降12.0%;房屋新开工面积49465万平方米,下降22.5%;新建商品房销售面积60602万平方米,同比下降18.0%;新建商品房销售额59723亿元,下降23.6%;8月末,商品房待售面积73783万平方米,同比增长13.9%。
2、统计局:8月,一线城市新建商品住宅销售价格环比下降0.3%,降幅环比收窄0.2个百分点;二、三线城市环比分别下降0.7%和0.8%,降幅均环比扩大0.1个百分点。一线城市二手住宅销售价格环比下降0.9%,降幅环比扩大0.4个百分点;二、三线城市环比分别下降1.0%和0.9%,降幅比上月分别扩大0.2个和0.1个百分点。
3、辽宁省大连市:缴存人使用住房公积金贷款在本市范围内购买配售型保障性住房的,最低首付款比例为15%。缴存人可提取个人账户住房公积金支付保障性住房首付款,提取首付款金额与贷款金额累计不超过购房款总额。
4、第一财经:今年以来,房企公司债的发行规模呈现上升趋势。与此同时,因为国资背景的房企融资通道更加顺畅,房企债券市场的融资成本再创新低,8月低至2.54%。
5、上海市:9月14日出让2宗地块,起始出让总价106.79亿元。最终,2宗地块全部成交,成交总金额120.25亿元。其中,曹家渡地块楼面价11.41万元/平方米,溢价率31.2%,成为全国楼面价第二高的地块。
6、澎湃新闻:去年至今,广东、山东、安徽、浙江等多个省份的部分城市均表示将推进现房销售试点,这一趋势也扩展到一线城市,近期深圳推出的现房交易地块,被业内认为是新的尝试
2024年9月地产动态:
1、北京市:完善租购并举的住房制度。优化房地产政策,适时取消普通住宅和非普通住宅标准,优化商品住宅用地交易规则,改革房地产开发融资方式和商品房预售制度。
2、上海市:9幅地块组成4个出让组合,起始总价147.71亿元,出让面积为19.68万平方米,规划建筑面积50.69万平方米。本次出让地块的现场交易会将于10月25日开始举行。
3、山东省德州市:新增提取公积金支付购房首付款业务类型。购买德州市行政区域内首套新建商品房,可以提取住房公积金支付购房首付款,提取人可以是购房人和直系亲属。此政策暂定执行至12月31日。
4、浙江省杭州市:新挂牌1宗宅地,总起始价约26.62亿元,将于10月22日正式出让。该宗地块所建商品住房毛坯销售均价不高于61500元/平,且毛坯销售最高单价不高于67650元/平。
5、广西省北海市:提高住房公积金贷款额度,即单身职工最高贷款额度由45万元调整为50万元,已婚职工最高贷款额度由55万元调整为60万元。生育三孩家庭的最高贷款额度由65万元调整为70万元。
6、中国房地产网:9月20日,成都市锦江区迎来一场重磅土拍。该地块位于金融城三期,最终贝好家以楼面价27300元/平方米、总价约10.77亿元竞得,溢价率42%。该成交楼面价刷新成都市土地拍卖楼面价新高。
声明:本文由入驻焦点开放平台的作者撰写,除焦点官方账号外,观点仅代表作者本人,不代表焦点立场。
