玺玥麓坊(营销中心)2025首页网站-玺玥麓坊欢迎您@玺玥麓坊最新详情-玺玥麓坊售楼中心-户型-备案价@玺玥麓坊售楼处24小时(服务热线)
扫描到手机,新闻随时看
扫一扫,用手机看文章
更加方便分享给朋友
玺玥麓坊售楼处电话:400-969-0396【☎☎开发商认证✅】
玺玥麓坊售楼中心热线: 400-969-0396【VIP预约专线✅】
玺玥麓坊开发商营销中心电话:400-969-0396【☎☎售楼中心✅】
在售户型图丨项目介绍丨房源丨周边配套丨详细解答
温馨提示:看房需提前预约,开发商直销来电预约享受线上折扣,中介勿扰!✅
深圳宝安公寓#玺玥·麓坊 地铁口小面积低总价
44㎡-53㎡-56㎡
标准一房一厅,总价210万起;
63㎡-65㎡-71㎡,
双龙抱珠两居室,357万起;
玺玥麓坊,前海湾芯地标综合体:集高端住宅、商务公寓、甲级办公、集中商业、保障房及多类型配套为一体的区域标志性项目。本次推出公寓产品:共1栋楼(预售套数:529套,总共46层),建面约44-71㎡平层商务公寓。
宝安都市核心圈+5/15号线双地铁口品质现楼+本项目可按照积分政策入学
项目详情
项目地址: 深圳·前海·新安三路27号(地铁5号线洪浪北D出口)
占地面积: 9662.66㎡
建筑面积: 33650㎡
推售产品: 建面约44-71㎡ 1-2房公寓产品
梯户比: 6梯13户
公寓层高: 2.95米
公寓产权年限: 40年
公寓内部配置: 户户带阳台通燃气
交楼标准: 毛坯交付
物业服务公司: 深圳市宏发物业服务有限公司
——区域介绍——
世界前海核芯版图,擎领湾区增长极:大湾区国际门户枢纽地位,对标世界超级城市,大前海总体发展规划,共推区域统筹、功能统筹、陆海统筹、岸线统筹,共建全球先进城区,宝安中心区成为国际化城市新中心,宝安都芯强势崛起,全面接轨前海标准。
【九大必买理由】
【核芯地段】宝安都市核芯资产,地段决策价值
【便捷交通】家门口,双地铁(5/15号线(在建中)洪浪北站约100米)
【品质现楼】毗邻千万级豪宅社区,高端品质现楼打造,即买即享受
【舒适梯户】44-71㎡舒居1-2房,6梯13户,便捷通达
【至臻产品】双大堂设计,户户通燃气,带阳台
【大城配套】30万㎡大城综合体,一路之隔勤城达K+/中洲•πmall,缤纷生活
【优质教育】3所中学+6所小学环绕,一站式教育
【绿意生态】6大公园环绕(宝安/灵芝/新安公园等),健康绿意生活
【品牌保障】宏发43载,深圳开发20余城;宏发物业,国家一级资质
城芯所在稀贵之地,新安都市核心区
位于西部黄金中轴发展线上的——新安,占据前海“腹地”,前海+宝安中心区双中芯辐射,城市核芯资源尽皆于此。
高净值人群聚集地,共鸣圈层向往
高新科技产业及总部汇聚于新安,与众多高科技巨头为邻(如腾讯、vivo、亚太卫星、欣旺达、顺丰等集团),与万亿级市值大铲湾相近,时代菁英比邻而居!
休闲配套资源:纵享宝中的休闲配套,如海滨广场、宝安体育馆、宝安图书馆、宝安青少年宫、欢乐港湾等地方休闲娱乐
商业资源:中洲πmall、勤诚达K+广场、海雅缤纷城等大型购物中心环伺
教育配套【名校环绕,6所小学+3所中学】
6所小学:孝德学校、上合小学、宝民小学、灵芝小学、宝安中学(集团)外国语小学部、宝安中学(集团)实验学校(小学部)
3所中学: 宝安中学(集团)(初中部)、宝安中学(集团)外国语中学部、宝安中学(集团)实验学校(中学部)
【多维地铁环绕,串联深圳顶豪圈层】
地铁5号线(洪浪北地铁口):向南3站到达宝安中心站(串联1号线)、6站到达前海湾站(串联1/11号线);向北2站到达留仙洞总部基地、7站到达深圳北站;
地铁12号线:从5号线洪浪北一站抵达接驳12号线灵芝站换乘,轻松贯穿蛇口、南山中心区以及宝安区;
地铁15号线(在建中):深圳“一环线”,联通大铲湾(预计未来将容纳8-10万就业人口)、南山西丽、南山科技园,打造前海内环黄金圈,本项目7站抵达企鹅岛,核心地段,好租又好住。
【多元醇熟配套,纵享人文艺术高地】
6大生态资源:约12万㎡灵芝公园、约72万㎡宝安公园、新安公园、洪浪公园和尖岗山公园等生态绿境;
医疗资源:距离深圳宝安中医院(三甲医院)约1公里,距离深圳市宝安人民医院(三甲医院)约1.5公里,距离宝安妇幼保健院约3.5公里,医疗资源丰富。
【登峰作品,献给人生喜悦时】
双入户大堂,精奢小户型,至臻归家礼遇。
建面约44-71㎡臻品现楼,致敬时代峯层。
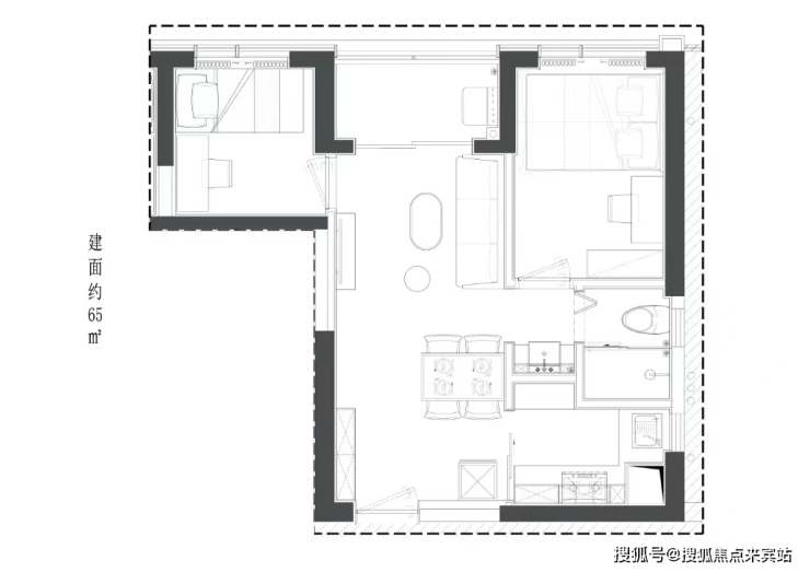
项目标准层平面图

44㎡1房总价:280-300万 单价6.3-6.8万

53-56㎡1房320-400万 单价6-7.1万


63-65㎡2房2厅1卫 总价380-460万 单价6-7万


71㎡2房2厅1卫 总价450-520万单价6.3-7.3万

总结
综上所述,宏发玺玥麓坊以其卓越的地理位置、完善的周边配套、丰富的教育资源、繁华的商业氛围、宜人的生态环境以及多样化的户型设计,成为了前海湾芯的一颗璀璨明珠。虽然项目存在一定的劣势,但瑕不掩瑜,对于追求高品质生活的购房者来说,宏发玺玥麓坊无疑是一个值得考虑的选择。
(Architecture is the very mirror of life. You only have to cast your eyes on buildings to feel the presence of the past, the spirit of a place; they are the reflection of society.)

如阅读完以上内容还未解决您的问题,欢迎致电售楼处电话:☎400-969-0396。我们会让专业的现场销售为您一一解答!
免责声明:✴
本宣传资料仅作为邀约邀请,不作为合同约定或承诺,具体项目信息与权利义务以商品房买卖合同为准。项目周边环境、交通及其他公共设施介绍,旨在提供相关信息,不代表本公司对此作为承诺。如有变化,恕不另行通知。在撰写文章时,可能使用图片、视频、音频等多媒体素材,这些素材均来源于网络,其版权归原作者所有。如若侵犯了您的权益,请联系我们,我们将及时予以更正或删除。联系电话:400 969 0396
声明:本文由入驻焦点开放平台的作者撰写,除焦点官方账号外,观点仅代表作者本人,不代表焦点立场。
