都市茗荟二期售楼处(都市茗荟二期)首页网站→ 都市茗荟二期欢迎您→ 交房时间→户型图→备案价→楼盘详情→线上营销中心|欢迎来电咨询
扫描到手机,新闻随时看
扫一扫,用手机看文章
更加方便分享给朋友
♎都市茗荟二期♎
♎都市茗荟二期售楼处电话: 400-863-7726【已认证】
♎♬都市茗荟二期꧁ 售楼处:400-863-7726【☎☎售楼处电话已认】꧂✨✽✽✽✽
♎♬都市茗荟二期꧁ 营销中心电话:400-863-7726【☎☎售楼处电话已认证】꧂✨✽✽✽✽
♎♬都市茗荟二期꧁ 开发商电话:400-863-7726【☎☎开发商电话已认证】꧂✨✽✽✽✽
当前房地产市场环境下,宝中润恒「都市茗荟二期」的开盘动态备受瞩目。该项目此次开盘热度未达预期,其毛坯住宅均价11.8万元/平方米,这一价格或在短期内成为宝安中心区房价的上限标杆。
最新数据显示,本次开盘推出272套房源,选房结束后成功售出178套,去化率为65.4%,弃选人数达320人。尽管销售成绩未达理想状态,但此次开盘影响力显著,尤其对南山区域开发商冲击较大。在前海项目销售本就不及深圳湾的情况下,宝安中心区凭借「都市茗荟二期」的开盘表现,实现了对前海的超越,这一市场变化令人始料未及。
润恒「都市茗荟二期」此次开盘筹备中,推出272套房源吸引498批客户入围,入围比例约1:1.83。项目备案均价11.8万元/平方米,为促进销售,开盘期间设置多重优惠折扣体系:通过i深圳登记享99折,开盘当天选房再享99折,按时签约额外享99折。经折扣叠加后,最终折后均价约11.4万元/平方米,房源总价约从958万元起。
项目首次推出A、C两栋共272套住宅产品,户型面积跨度90-147平方米,涵盖三至五房,满足不同家庭结构的居住需求。房屋交付标准为准现房毛坯,预计2025年6月交付。
宝安中心区近年来新房供应极为稀缺,近五年几乎无新房入市。在此背景下,都市茗荟二期作为区域内少有的新盘,一举一动备受市场关注。项目地理位置优越、周边配套完善且临近名校,交通出行、生活购物、子女教育均极为便利,这些优势使其自筹备阶段便话题度极高,热度远超周边如前海的多个新盘。此次首次入市推出272套住宅仅是开端,后续还有约450套住宅待推向市场,其未来市场表现无疑将持续引发业内和购房者的密切关注。
01.产品分析
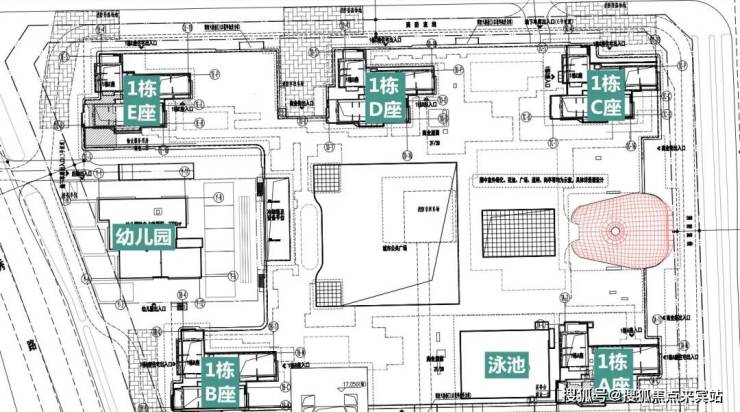
都市茗荟二期位于前海核心拓展区的宝安中心区,紧邻熙龙湾、壹方城等高端住宅区,周边生活配套完备成熟。与一期隔路相望,占地约3.29万平方米,总建面约20.6万平方米,容积率3.96,规划呈低密度,居住舒适度高。
该小区的总体规划匠心独运。小区内共建5栋住宅楼,规划住宅724套,同时配套两层底商及一栋独立幼儿园,全方位满足居民日常生活与子女教育需求。尤为特别的是,小区内部精心打造游泳池,为业主提供了休闲健身的好去处。
在楼栋布局上,整体呈别具一格的凹字形,楼栋中间采用下沉镂空设计。这种创新布局不仅巧妙地与城市公共广场及商业休闲街道有机融合,极大拓展了居民的公共活动空间,还让小区在繁华都市中营造出开放、包容的氛围。不过,受限于这一独特设计,小区内部花园面积相对有限,虽无法打造大型园林景观,但园林设计师巧妙构思,通过精致小品与错落有致的绿植,营造出“小而美”的花园景致,为居民打造温馨惬意的休憩角落。
本项目在规划设计中充分考量居住与商业的多元需求,对车位与住宅空间进行精心布局。项目规划停车位总数达1100个,构建起完善的停车体系。其中,住宅区配备900个车位,以1:1.2的高车位配比,妥善解决住户停车难题,从容应对日常出行与车辆停泊需求;商业区设有200个车位,有效满足商业活动带来的停车流量,助力商业运营畅行无阻。
住宅区域内,楼栋挺拔,楼层设计为41至43层,每梯精准服务4户人家,既保障居住私密性,又兼顾高效出行。在户型规划方面,项目提供丰富多样的选择,适配不同家庭结构与居住偏好:建筑面积约90平方米的三房两卫户型,空间布局紧凑合理,功能分区明晰,为小家庭打造温馨港湾;120平方米和123平方米的四房两卫户型,拓宽生活尺度,从容容纳家庭成员的多元需求,孩子的成长空间、长辈的舒适休憩皆能妥善安置;147平方米的五房两卫户型,以奢阔格局诠释品质生活,满足大家庭群居需求,尽享阖家欢乐。
此外,项目特别推出少量建筑面积约159平方米的顶层复式单位。复式空间灵动开阔,搭配超大露天阳台,不仅为业主提供一方专属休闲天地——可于此凭栏远眺,尽揽城市风光,沐浴阳光清风,更以独特空间设计,赋予生活更多想象与可能。值得一提的是,所有户型均采用朝南设计,确保充足采光与通风,让每一位业主在屋内时刻拥抱温暖阳光、畅享清新空气,营造健康舒适的居住环境。
截至目前,本项目已取得重大建设进展。主体结构已圆满封顶,施工团队凭借精湛技艺与高效协作,顺利完成这一关键节点任务,为项目后续推进筑牢坚实基础。目前,外立面与公共区域建设已进入收尾阶段,工程进度符合预期,基本完工状态清晰可见。根据项目计划,预计明年上半年实现毛坯交付,向业主兑现高品质人居承诺。
在项目设计方面,外立面采用蓝白铝板与玻璃幕墙相结合的经典方案。明快色泽的蓝白铝板与通透的玻璃幕墙相互映衬,在阳光照耀下呈现独特视觉效果。这种兼具美观与实用性的设计方案在当下市场极为常见,备受市场青睐与好评。项目整体外观呈现时尚大气风格,不仅提升了辨识度,更能融入现代都市景观,彰显不凡品味。
值得一提的是,项目规划时充分考量住户居住体验,精心设置楼宇间距。科学合理的间距设计,有效避免相邻楼栋间的视线干扰,为住户营造私密、安静的居住环境,充分保障每一位住户的隐私,让业主在自家空间内尽享舒适与自在。
本项目开发周期较长,户型设计仍沿用旧规标准。设计过程中,为最大限度提高空间利用率、扩大居住面积,设计团队对阳台区域进行改造,将其纳入卧室空间。同时,基于建筑结构安全等因素考量,保留了原本不可拆改的飘窗结构。
经测算,若不计入飘窗面积,项目预计得房率约为75%;若包含飘窗面积,得房率可提升至约85%。但与新规实施后推出的多数住宅相比,本项目得房率处于较低水平。在新规要求下,当下新建住宅得房率普遍接近100%,这凸显出本项目在得房率方面与市场新趋势存在一定差距。
下面来看看户型做得怎么样:
C栋约90平的3室2厅2卫户型,为东南朝向,横厅设计实现南北通透,可欣赏小区花园景观。餐客厅与厨房采用一体化设计,借助生活阳台拓展厨房空间,满足个性化需求。不过,作为04户型,客餐厅一侧视野存在遮挡情况。主卧配备双面飘窗,采光和视野效果良好。经计算,赠送面积使得实际使用率达86.99%-87.74%。
120平左右的四房两厅两卫户型,有02、03、04三种设计。其中,04户型位于A座和C座,02户型仅位于C座,03户型位于A座,实际使用率约85%(含赠送)。03、04户型为东南朝向,采用对称布局和竖厅设计。客餐厅一体化,动静分区合理,厨房、阳台可灵活改造。户型具有大开间短进深的特点,采光充足,主卧配备三面大窗,进一步提升了居住舒适度。
02户型西南朝向、横厅布局,四房皆朝南,卧室面积分别为7.29㎡、5.67㎡、5.63㎡及13.7㎡(主卧)。但一个次卧与主卧视野受相邻03户型影响,通透性欠佳。
A栋01号四室两厅两卫户型,建面约123平,东南朝向、南北通透,居住舒适。客餐厅进深宽敞、面积大,可隔出储物间成五房,提升性价比,赠送面积使实际使用率约84.5%。但有不足:缺玄关,一次卧仅约5.14平。
C栋03户型建面约147㎡,为五房两厅两卫格局,西南朝向,采用传统竖厅设计,动静分区合理。其亮点在于配备双套房,主卧宽敞且功能齐全,部分高层房源可观赏摩天轮与海景。美中不足的是走道较长,客厅与阳台开间4.2米,稍显局促。该户型使用率约85%(含赠送面积)。
都市茗荟花园二期
2019年底,都市茗荟花园一期取得现售许可证,并在深圳市住建局官网公示。一期备案房源包含ABCD四栋,共413套住宅,单套总价区间为448万-5071万元。二期预计推出724套住宅,项目位于宝安中心区核心地段,周边居住氛围浓厚、配套设施完善、交通出行便捷。作为区域内稀缺的小户型新建住宅项目,该项目供应紧张,凭借区域潜力和价值,无论是自住还是投资,均具有较高吸引力。


都市茗荟花园
该项目位于深圳市宝安区新安街道,地处新湖路与甲岸路交汇处,与地铁1号线新安站相邻,出站后可快速到达项目所在地,交通优势显著。作为宝安中心区(宝中)的重点项目之一,其周边生活氛围浓厚,已形成成熟的居住格局。金泓凯旋城建筑风格典雅大气,内部配套设施完善,居住舒适度高;熙龙湾以高品质物业服务和优美园林景观著称,吸引了众多追求品质生活的业主;西岸观邸凭借独特建筑设计和丰富多样的户型选择,满足了不同家庭结构的居住需求。这些成熟社区环绕项目四周,为其注入了浓厚的生活气息,轻松满足衣食住行等各类生活需求。
值得注意的是,项目靠近滨海的区域目前正处于积极开发阶段。未来,这里有望建设现代化商业综合体、高端写字楼,以及规划更合理、景观更优美的新型住宅小区。随着开发的逐步推进,区域城市形象将进一步提升,项目也将迎来更多发展机遇与增值潜力,商业价值和居住体验均具备极大的上升空间。
位置:宝安中心区新湖路与甲岸路交汇处
梯户比:三梯四户
总建面:203501.38平
容积率:3.26
首推272套
套数:724户
停车位:1100个
栋数:总5栋
较多数据等待更新中.....
都市二期项目地理位置稀缺、配套完善,但户型设计不足、产品力薄弱。作为千万级房产,需权衡优缺点。
都市茗荟一期2019年8月首开,含大户型,整体均价10.9万元/平,成交量低,小户型成交少。
都市茗荟二期产品力弱,预计二手房市场情况类似一期。海纳公馆部分户型因得房率高、配套丰富成交活跃,云玺锦庭品质高,成交价有上涨。
第一梯队次新小区成交价普遍11-12万元/平,都市茗荟二期折后加装修近12万元/平,得房率低、户型不佳,性价比不高,无倒挂,是宝安中心区三大网红盘中唯一用飘窗当卧室的项目。
其同一户型不同楼层差价大,中低楼层有“捡漏”机会,部分周边项目性价比更高。
预算千万级向上改善客户,自住选周边二手房更佳;投资者若楼市平稳,短期难获利需长期持有。二期部分户型进入二手房市场,将面临周边项目竞争,后者居住舒适度优势明显。
🦋本项目暂不接受临时到访,过来参观样板房请记得提前来电预约!
🦋为您安排楼盘现场销售全程接待并讲解,给您更贴心的看房体验!
✨✨Vip贵宾置业=欢迎来电预约尊享内部折扣=匠心钜制恭迎品鉴温馨提醒:我们楼盘售楼部400电话没有设置任何所谓的“分机号”,拨打前请仔细甄别,注意保护个人隐私!谨防上当!
♎♬都市茗荟二期꧁ 售楼处: 400-863-7726【☎☎售楼处电话已认】꧂✨✽✽✽✽
♎♬都市茗荟二期꧁ 营销中心电话:400-863-7726【☎☎售楼处电话已认证】꧂✨✽✽✽✽
♎♬都市茗荟二期꧁ 开发商电话:400-863-7726【☎☎开发商电话已认证】꧂✨✽✽✽✽
声明:本文由入驻焦点开放平台的作者撰写,除焦点官方账号外,观点仅代表作者本人,不代表焦点立场。
