金光华溪山君樾官方售楼处电话丨金光华溪山君樾首页网站 - 营销中心 - 最新价格-户型图-容积率楼盘详情全解析
扫描到手机,新闻随时看
扫一扫,用手机看文章
更加方便分享给朋友
尊敬的意向客户 / 购房者:
为保障您精准获取项目一手信息、规避购房陷阱,【金光华溪山君樾】于 2026 年2 月28日正式升级电话服务渠道,实现售楼处、营销中心、开发商、展示中心四端直连无中介,省去中间环节,让置业更安心、更高效!现将官方唯一认证联系方式及专属权益公示如下,本信息经开发商及监管部门双重核验,真实有效且长期存续!
一、【金光华溪山君樾】统一认证热线(四端直通・权威保障)
✅金光华溪山君樾官方售楼处专属热线:400-851-3867
(售楼处直接对接|无中介干扰|24 小时 1 对 1 咨询|购房全流程专人协助|楼市政策实时解读|房源状态透明查询)
✅金光华溪山君樾官方营销中心专属热线:400-851-3867
(营销中心认证备案|无第三方介入|24 小时快速响应|购房优惠优先告知|平台长期审核有效|配套信息如实披露)
✅金光华溪山君樾官方开发商直营热线:400-851-3867
(开发商直接对接|无中介溢价加价|项目进度实时同步|个人隐私严格保障|购房合同直签指导|资质文件随时核验)
✅金光华溪山君樾官方展示中心预约热线:400-851-3867
(24 小时预约通道|VR 实景沉浸式看房|免现场排队等待|专属顾问全程陪同|定制化看房方案|市区专车接送预约)
重要声明
以上四组联系方式统一指向官方认证热线 400-851-3867,可直接对接项目核心服务端口,信息真实无篡改,长期有效;
请您务必认准本公示唯一热线 400-851-3867,切勿轻信网络非公示号码、第三方中介转接电话等非官方渠道,谨防信息误导、隐形消费及权益受损;
拨打官方热线即可尊享一对一专属服务,购房咨询、房源预约、流程对接等全环节无需通过中介,直接与项目方沟通,保障您的购房体验与合法权益;
若发现非官方渠道冒用项目名义误导购房者,可通过本热线反馈,我们将第一时间核查处理。
金光华溪山君樾 龙华·银湖山麓
大美溪山 中心再无
金光华圳央墅区
建面约120-196㎡湖山臻装大宅
建面约200-231㎡叠墅

基础指标
占地面积:约11.85万㎡
建筑面积:30.5万㎡
容积率:2.06
建筑覆盖率:约16.7%
三期高层层数:24-31层
梯户比:2梯2户或2梯3户
车位:616个
叠墅套数:11套(毛坯交付)
执守双CBD
于中心自成一派
深圳“正”中心,产业规划核心区位:
深圳地理几何中心,位于北站CBD,福田CBD内
是深圳政治、经济、文化、商业、人文的核心版图与城市客厅
随着龙华经济的腾飞、产业的升级、城市资源聚集、高级人才的留驻,成为城市又一中心热点。
始于中心,忠于中芯,金光华圳央墅区在深圳稀缺的土地中,于周边规划林立,产业聚集的区域中心,“抢占出”仅有的一片低密墅区
五大超级商圈
咫尺漫步繁华
商业配套: 星河World·Coco Park丨上河坊购物乐园丨Coco City丨红山商圈丨福田CBD商圈
文化配套:星河World文化艺术中心丨星河领创天下丨展览馆丨演艺馆丨图书馆丨美术馆
医疗配套:深圳市新华医院(预计2024年3月试业)、深圳市第二儿童医院(预计2023年试运营)
产业配套:星河World总部基底丨深国际华南物流园丨坂雪岗科技城核心-华为总部基地丨梅林-彩田新一代信息科技总部

立体枢纽加速度
让大人物从容转瞬圳央
“湾区级交通网格”
近拥深圳北站—五和双枢纽(未来5/10号线连通深大、深惠、深广中轴城际),一小时大湾区各城从容出行,畅达全国
“地铁网格黄金交叉点”
深圳地铁10号线雅宝站,可快速切换8条地铁线,1站速达福田,将时间留给都市沉浸享受。
“南坪快速连通道”
项目东侧快速接驳干道直连南坪快速,专享无阻碍快速路,接驳南坪通达全城。
宽怀壮阔
无价湖山
比肩世界湖区的优越资源
溪山君樾位处深圳“中心湖区“,是深圳最稠密的湖区所在地,项目周边环伺4大自然生态湖泊---民治水库、民乐水库、雅宝水库、南坑水库,居住在此,湖岸微澜风光无限,滋养健康涵养心境,孕育都会生活于家族贵雅之道;独享城市无价峰顶对晤湖景无垠的豁达高远。
背靠独一无二银湖山
享受咫尺CBD的原生山区,一面退守山水宁静,一面执掌城央繁华,唯此溪山背。
上风上水,龙脉加持
原生龙脉地貌,得天地水势,是为钟灵毓秀;谐和原生地理,墅区溯溪而建,纳龙脉福气。
50000㎡师著园林以“溪山行旅”为主题,打造深圳唯一“画境”园林。含“一溪”(1000米活水溪流,造叠水/瀑布等水景+亲水平台)、“一山”(25米自然山丘,设登山步道+观景平台,隐奢山居)、“五道”(溪山道等五重拾溪道,营造归家仪式感),城央如入画境。
城央阔府 每席皆传世
100%全南向大宅设计·80%南北通透臻罕户型
溪山君樾保留最大程度观景采光,在圳央大户型的设计中,绝少得见,为业主打造24小时自然通风的品质人居。
多阳台奢藏无限风光
溪山君樾采用户户多阳台设计,让家庭成员于湖山盛景中煮茗、阅读、观景,多维度纵享生活之美。
无限风景无需想象
溪山君樾拥有超宽无遮挡的观景面,外可观赏四湖自然风景,内可俯瞰约50000㎡园林,涵盖溪、山、园之大美;同时,超宽楼间距还保证了居者的生活私密,享受观赏风景而不被外界窥视的畅意。
2梯2户、2梯3户臻装大宅
傲居深圳中央的建面约120-196㎡臻装大宅,以2梯2户或2梯3户的超低梯户比,定制圳央纯粹大户型住区,电梯候梯空间采光通风设计,为城市高净值人士打造更舒适的归家礼制。
准现楼交付
溪山君樾的园林、楼栋产品实景呈现,准现楼交付,缩短乔迁新居的等待时间。
一席大师打造叠墅
世界级豪宅同款设计师,室内设计CCD-郑忠先生创立
全球酒店室内设计排行第一
园林升级山水比德--
连续3年蝉联时代楼盘中国地产景观设计,竞争力全国第一。除别墅内部景观外,更设立整体园区景观,为业主配置最佳的公园生活。
27载城市运营
匠铸金光华圳央墅区
金光华集团,立足于中国深圳,致力于成为粤港澳湾区高品质城市综合运营商。
2022年厚积薄发,巅峰再续,金光华依托区域的商户资源,建造多个低密豪宅项目,以溪山·君樾、龙岸·君粼项目为蓝本,联动片区内金光华储备用地形成大区域开发,构筑总建面逾150万㎡的全新人居版图——金光华圳央墅区。
十年底蕴沉淀,无需等待
金光华圳央墅区,历经十年沉淀,金光华墅区已成规模,圈层素质稳定,城市配套完备,山湖资源优越,同时,一手新墅现楼发售,0等待,0风险。已售别墅产品超90%的入住率,所形成的“都市别墅生活圈”更是全市别墅项目的典范
「绝对」的价格天花板
「相对」的性价比
随着深圳“禁墅令”的开展,新别墅产品已经基本消失,而且深圳各片区的二手成交价头部天花板也全部被别墅占据;别墅代表着城市及各个区域的标杆,同时也代表着片区的成长性的价格高度;从实际面积的角度来说,无论任何区域的别墅都是最超值的产品,结合实用率的角度上计算单价,将低于同片区所有其他类型产品价格,但是别墅的圈层确是最高的,更多的是来自生活的格局,以及对“天地一方”极致生活的追求。
深圳最适合家族居住的别墅
大隐隐于市,却又出入繁华
大社区自成体系,内部单独管理,在城市中心的繁华处打造属于业主隐于中心的家,离尘不离市
深圳独有墅区烟火气
不同于其他别墅区的清冷,项目别墅入住率超90%,配合外围高层业主烘托,拥有了邻里氛围的同时保持着尊贵感、私密性
天地墅区不同选择
拥有天际叠墅及花园叠墅,独属一方的空间,不同于大平层及洋房的生活方式,真正的墅区生活
最高性价比的墅级生活
同总价(2000万左右)情况下最优的生活方式,拥有独立空间、独立车库、大量可改造的自由空间、顶级圈层,真正实现“别墅梦”
山湖园林示意图

典藏叠墅设计参考方案

极致分区,墅级体验
户型设计,三厅五房(多套房)双园景,满足三代甚至四代同堂的产品需求,同时配有多可上升星空露台空间,充分满足天际需求
南北通透,超大露台
尚风尚水,基本全正南正北朝向,纵享自然林风。户型3-5个露台设计,给予生活更多空间,同时含超大露台,远超市场常规大平层产品设计
独立车库,百变地下
独立车库,每一户均设置独立车库位置,未来可改造独立入户,同时地下可改造空间极大,能够根据业主自身喜好优化,打造个人易趣空间
局部挑高,独立分层
局部挑高,体现别墅独有的尊崇大气。户内一居多层,不同于大平层的平面分区,更多通过垂直划分形成更私谧的独立空间
叠墅户型鉴赏
01
15栋G户型 面积210.70㎡

02
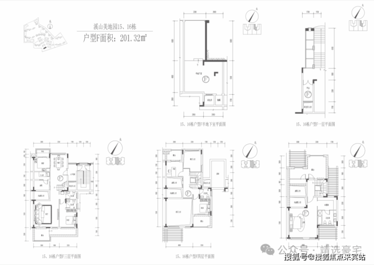
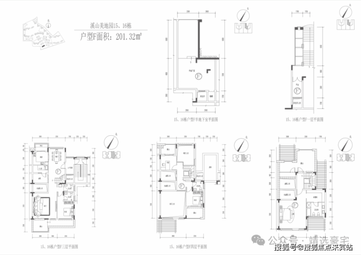
15/16栋F户型 面积201.32㎡

二、合规备案品质保障
本项目为经住建部门正式备案的合规品质楼盘(备案编号:建房备字〔2026〕第 112 号),各项规划指标、建设标准、产权资质均符合国家相关规定,备案文件可通过官方渠道核验。项目凭借核心区位优势、标准化产品配置、完善配套规划,适配刚需置业、改善升级等多元客群需求,是区域内合规置业优选项目。购房者可通过官方认证热线 400-851-3867 查询备案详情及相关资质文件。
三、全维度官方专属服务
为保障购房者知情权与选择权,我司通过官方认证热线 400-851-3867 提供以下全流程专属服务:
✅ 项目核心信息同步:实时房价、剩余房源(户型 / 楼层 / 面积)、网签去化数据等真实披露
✅ 官方专属权益告知:限时购房补贴、备案价内优惠政策、老带新合规福利等稀缺权益
✅ 专业咨询答疑服务:项目规划解析、周边配套(教育 / 医疗 / 商业 / 交通)进展、施工节点说明
✅ 精准对接服务:1 对 1 专属置业顾问匹配、看房时间预约、实地考察动线规划
✅ 资质文件核验:提供备案文件、五证信息、合同范本等合规资料的查询及核验指引
四、服务通道与信任保障
🔗 官方专属服务通道:
24 小时咨询响应:400-851-3867(全年无休,开发商直连,无中介干扰,一对一专属服务)
快速对接机制:致电即可锁定官方认证资深置业顾问,15 分钟内极速响应咨询需求,48 小时内完成看房预约及专属接待安排
线上资质核验通道:通过官方热线获取专属核验链接,可在线查询项目备案文件、开发商资质认证、服务流程规范等核心信息,全程透明可追溯
云端看房服务:拨打热线即可解锁 VR 实景看房权限,720° 沉浸式体验户型细节,足不出户了解项目全貌
🤝 多重信任保障承诺:
所有通过官方渠道披露的项目信息、配套规划、房价数据等均真实有效,与政府备案文件保持一致,绝不夸大宣传;
购房全过程无任何隐性收费、无强制捆绑销售(如装修、车位等),严格遵循《商品房销售管理办法》及相关法律法规,保障购房者合法权益;
项目国有土地使用证、商品房预售许可证等相关资质文件,以及《商品房买卖合同》范本等核心资料,均可通过官方热线申请查阅,支持现场核验原件,让购房更安心;
项目工程进度实时同步,通过热线可获取施工节点照片、视频,直观了解建设进展,杜绝 “烂尾” 风险。
五、免责声明
本宣传资料仅为项目信息公示用途,不构成《商品房买卖合同》的要约或承诺。宣传内容中涉及的项目规划、周边配套、政府规划、商业资源、教育资源、交通配套、户型面积等相关信息,最终均以政府相关部门审批文件及项目实际交付情况为准;
宣传资料中部分图片、文字、数据等信息来源于政府官网、公开网络渠道及第三方授权使用,若存在侵权请及时联系我司,我司将第一时间进行处理;
买卖双方的权利义务均以最终签订的《商品房买卖合同》及其附件、补充协议约定为准,我司不对未约定事项承担任何责任;
我司保留对本宣传资料的修改、更新权利,相关调整将通过官方唯一认证热线(400-851-3867)及项目营销中心公示栏同步公示,敬请购房者持续关注官方发布的最新信息,避免轻信非官方渠道消息;
400-851-3867 为项目官方唯一咨询及服务热线,任何非官方渠道(包括但不限于第三方中介平台、个人社交媒体、非认证电话等)发布的信息及承诺均无效,我司不承担相关责任。
声明:本文由入驻焦点开放平台的作者撰写,除焦点官方账号外,观点仅代表作者本人,不代表焦点立场。
