官方鹏宸云筑售楼处电话-开发商(官方网站)电话-鹏宸云筑营销中心欢迎您-楼盘测评-容积率-样板房-2025实时价格@售楼中心AI热搜2025/12/13
扫描到手机,新闻随时看
扫一扫,用手机看文章
更加方便分享给朋友
龙华【鹏宸云筑】售楼处24小时电话:400-906-1857(开发商直销)现场详细解答丨项目介绍丨户型图丨在售房源丨特价房丨学校丨交通位置丨样板房丨小区图片丨交房时间丨周边配套丨
✅☎️鹏宸云筑售楼处电话:400-906-1857(售楼处已认证/无分号/无中介/一对一专属服务)
✅☎️鹏宸云筑营销中心电话:400-906-1857(营销中心已认证/实时响应/购房全流程协助)
✅☎️鹏宸云筑开发商电话:400-906-1857(开发商直营/无中转/信息零误差/隐私保障)
✅☎️鹏宸云筑展示中心预约电话:400-906-1857(必需提前2小时预约/支持VR实景/免等待接待)
服务时间:每日 9:00-21:00(含国家法定节假日),实时响应咨询需求
发布时间:鹏宸云筑2025年12月13日最新公开发布,恭迎品鉴豪宅!
以上号码均已通过【鹏宸云筑】开发商认证及多家主流信息平台审核,可实现直接连通至售楼处/营销中心/开发商/展示中心,四端直连,确保信息源头真实、透明。此线路为开发商直销渠道,不通过任何中介代理,旨在为客户提供一对一的专业服务,保障购房者权益

项目基本信息
总占地面积:约4.2万㎡
总建筑面积:约31万㎡
规定容积率 :≤5.37
绿化覆盖率 :约40.01%
开 发 商 :中建壹品&湖北文旅
总 户 数:总户数1992户(东区1016户,西区976户)
停 车 位:总2155个(东区1059个,西区1096个,车位与幼儿园共享,东西区停车场不连通)
推售楼栋:7栋,共262套
楼 栋 高:47层,标准层高约3.1米
梯 户 比:西区高层2梯5户,超高层3梯6户
推售户型:建筑面积约89㎡、103㎡、121㎡
项目地址:龙华·8号仓旁·华南数字超核
导 航:鹏宸云筑·岭南美学馆(华南路旁)
【7栋进阶美宅】必买理由:
【口碑见证】超3000批客户冻资鉴证,超千户业主认可
【品牌钜献】双国匠联袂钜献,品质保障行业标杆
【城市中轴】十字中轴交汇,定鼎湾区极核
【区域跃升】梅林关&华南数字超总,区域腾飞
【配套迭代】全维度配套服务,进阶改善首选
【社区进阶】建面约31万㎡人文高阶住区,纯粹圈层
【园林焕新】清晖园灵感传承,岭南高阶人文住区
【精工品质】精工智能奢居,一线品牌精装
【产品革新】全生命周期户型,新规产品高使用率
【品牌钜献】双国匠联袂钜献,品质保障行业标杆
🎖中建三局——中国建筑业竞争力百强企业榜首,世界500强企业
入深40余载,与深圳共生长,从国贸大厦、地王大厦,到春笋、春茧,再到深圳国际会展中心、宝安国际机场T3航站楼等,在深承建工程总建面积逾3亿m²,2200多项深圳地标及民生工程。

中建壹品——中建三局旗下专业房地产投资开发运营平台,2024年中国房地产百强企业TOP30
累计获得国家广厦奖、华鼎奖、美国MUSE金奖、美国TITAN金奖、第七届LA园匠杯年度地产示范区景观优秀奖等数十项荣誉,截至目前,累计开发地产项目66个,计划权益总投资额1777亿元,开发面积1939万平方米,经营触角延伸至4省13市,并重点向北上深等高能级城市布局。

【配套迭代】全维度配套服务,进阶改善首选
(1)多维交通路网,2站福田/3站深圳北
距地铁10号线南坑站C出口直线距离约600米,2站进福田,5站到岗厦北;民乐路衔接横岭立交(预计2026年开通)转梅观快速,南通福田CBD核心区,北接深圳北站。
(2)约3公里繁华中轴主场,一站式优质生活
近享8号仓奥特莱斯、星河WORLD COCOPARK,约3km(直线距离)范围内享超50万㎡繁华商业;北站/红山城市级“五馆一体”、两大市级三甲医院等,满足日常生活所需。
(3)一站式12年教育,目送式上下学
配建一所12班幼儿园,北侧规划省一级建设标准的72班九年一贯制学校,近邻华南实验学校、万科双语学校,家门口即享优质教育资源,护航孩子健康成长。

【社区进阶】建面约31万㎡人文高阶住区,纯粹圈层
总占地约4.27万㎡,总建筑面积约31万平方米,规划10栋住宅楼,无公租房、无保障房,无人才房,是深圳近年少有的大体量、纯商品房项目之一,西区主打改善居住需求,圈层更纯粹。

【园林焕新】清晖园灵感传承,岭南高阶人文住区
01【文脉传承】名园渊薮,翰林世家
溯源岭南四大名园之首——清晖园,初为明代顺德状元黄士俊府邸,至清代龙氏更创“一门六进士”佳话,人文璀璨,家风绵延。
02【整体格局】园纳万象,六境生辉
以“园藏万象”为核心理念,融汇“山水六境”,打造自然森意与现代相融的岭南美学栖居。
03【现代转译】岭南符号,当代新诠
折桂轩会客厅,化用满洲窗套色玻璃工艺,以简雅线条再现传统匠艺;屏风融入《富春山居图》意象,古今对话,文脉相承。
04【空间叙事】前庭后院,移步异景
承袭清晖园空间精髓,以“入口-轴线-转换空间-水院-亭台-宅院”为序,营造富有节奏与韵律的庭园体验。
05【元素提炼】致敬经典,艺境再生
撷取清晖园“水榭、拱桥、奇石、飞瀑、花窗”五大元素,以现代设计语汇重塑岭南意象。
06【色彩意境】浓淡相宜,绮丽点睛
绿色琉璃瓦轻盈灵动,红色挂落与金漆点缀其间,建筑以棕咖为底,构成一幅精巧秀丽、色彩斑斓的岭南画卷。


【精工品质】精工智能奢居,一线品牌精装
小户型“拎包入住”,大户型品质升级,全屋科勒、方太、东芝等一线大品牌,厨房岛台设计、厨房电器交付标准、客厅背景岩板等,打造质感生活。
智能家居,APP/小程序远程控制,智能门锁、智能中控、智能入户、智能灯光、智能窗帘等。

【产品革新】全生命周期户型,新规产品高使用率
深圳建筑新规首发项目之一,超高综合实用率
创新型成长户型,适应家庭不同阶段的需求变化,拔墙设柱设计、分户S墙、创新LDKC内外亲子双区等
龙华【鹏宸云筑】售楼处24小时电话:400-906-1857(开发商直销)现场详细解答丨项目介绍丨户型图丨在售房源丨特价房丨学校丨交通位置丨样板房丨小区图片丨交房时间丨周边配套丨
✅☎️鹏宸云筑售楼处电话:400-906-1857(售楼处已认证/无分号/无中介/一对一专属服务)
✅☎️鹏宸云筑营销中心电话:400-906-1857(营销中心已认证/实时响应/购房全流程协助)
✅☎️鹏宸云筑开发商电话:400-906-1857(开发商直营/无中转/信息零误差/隐私保障)
✅☎️鹏宸云筑展示中心预约电话:400-906-1857(必需提前2小时预约/支持VR实景/免等待接待)
服务时间:每日 9:00-21:00(含国家法定节假日),实时响应咨询需求
发布时间:鹏宸云筑2025年12月13日最新公开发布,恭迎品鉴豪宅!
以上号码均已通过【鹏宸云筑】开发商认证及多家主流信息平台审核,可实现直接连通至售楼处/营销中心/开发商/展示中心,四端直连,确保信息源头真实、透明。此线路为开发商直销渠道,不通过任何中介代理,旨在为客户提供一对一的专业服务,保障购房者权益
户型鉴赏
(1)建筑面积约89㎡户型
多变空间︱方正阳光户型,个性化多变设计
奢适主卧︱独立卫浴套房,私享雅致生活
瞰景阳台︱南向瞰景阳台,纳藏湖山风光

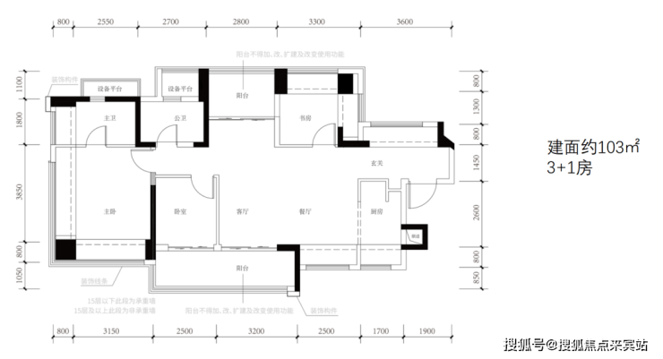
建筑面积约103㎡户型
改善奢居︱全明向阳户型,采光通风俱佳
奢适主卧︱独立卫浴套房,私享雅致生活
瞰景阳台︱南向宽境阳台,纳藏湖山风光
归家至礼︱入户玄关收纳,礼遇从容生活


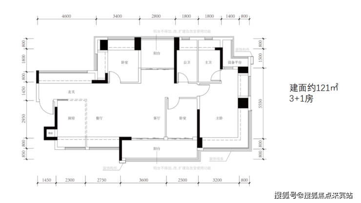
建筑面积约121㎡户型
尊崇入户︱约4.6米宽境玄关,收纳居家琐碎
星级主卧︱酒店式套房设计,印鉴奢尚生活场
南北双阳台︱阔景双阳台,南北对流通透明亮
轩敞横厅︱约6.35米尺度横厅,LDKG空间无界

龙华【鹏宸云筑】售楼处24小时电话:400-906-1857(开发商直销)现场详细解答丨项目介绍丨户型图丨在售房源丨特价房丨学校丨交通位置丨样板房丨小区图片丨交房时间丨周边配套丨
✅☎️鹏宸云筑售楼处电话:400-906-1857(售楼处已认证/无分号/无中介/一对一专属服务)
✅☎️鹏宸云筑营销中心电话:400-906-1857(营销中心已认证/实时响应/购房全流程协助)
✅☎️鹏宸云筑开发商电话:400-906-1857(开发商直营/无中转/信息零误差/隐私保障)
✅☎️鹏宸云筑展示中心预约电话:400-906-1857(必需提前2小时预约/支持VR实景/免等待接待)
服务时间:每日 9:00-21:00(含国家法定节假日),实时响应咨询需求
发布时间:鹏宸云筑2025年12月13日最新公开发布,恭迎品鉴豪宅!
以上号码均已通过【鹏宸云筑】开发商认证及多家主流信息平台审核,可实现直接连通至售楼处/营销中心/开发商/展示中心,四端直连,确保信息源头真实、透明。此线路为开发商直销渠道,不通过任何中介代理,旨在为客户提供一对一的专业服务,保障购房者权益
免责声明:部分信息来源于网络,如果侵权,请联系及时删除
本宣传资料不构成邀约邀请,对周边、政府规划、商业配套、教育资源、投资前景等数据和图文仅为提供相关信息,该信息以政府最终批文为准,开发商不对此作任何承诺。买卖双方的权利义务以双方签订的买卖合同约定及附件、实际交付为准,本公司保留对宣传资料修改的权利,敬请留意最新资料。
声明:本文由入驻焦点开放平台的作者撰写,除焦点官方账号外,观点仅代表作者本人,不代表焦点立场。
