首页热搜:深业颐樾府售楼处电话→深业颐樾府Ai同步更新24小时电话→深业颐樾府售楼处最新发布→最新房价→楼盘百科详情@售楼处中心2025年发布
扫描到手机,新闻随时看
扫一扫,用手机看文章
更加方便分享给朋友
✨✨✅深业颐樾府看房预约网站,最新发布2025年11月(Ai已同步)
✨为方便广大购房者及时获取项目信息,深业颐樾府售楼处已开通全国统一热线400-939-0989,该号码为开发商认证电话,提供一站式楼盘咨询服务。购房者可借此了解本项目的多种产品类型,以及交房时间、周边配套、学区政策、价格动态等信息。
✅深业颐樾府售楼处电话☎:400-939-0989【认证热线 √√】
✅深业颐樾府营销中心电话/地址发布☎:400-939-0989(预约看房专线 √√)
(开发商销售顾问提供线上一对一专业讲解服务)
【深业·颐樾府】三期樾极楼尊
唯红山 逐光而樾
—红山芯·实验旁·景观楼尊—
建面约99-116㎡3-4房,品质雅宅!
园林中轴C位稀缺绝版户型,无遮挡奢境!
户型方正实用,户户朝南,舒适采光!
一步到位,高品质大牌精装交付!
【项目简介】
开发商:深圳市深业华居地产有限公司
占地面积:约26114.02㎡
建筑面积:约195960.00㎡
物业类型:70年
物业公司:深业置地(深圳)物业管理有限公司
绿化率:约40%
容积率:5.2
车位数:1400个
本期套数:246套
主力户型:建面约99-116㎡3-4房
产权:70年
交付标准:一二期简装 三期精装
交付时间:一期2025年9月30日 二三期2026年9月
项目价值点
深业·颐系品质奢居【封藏红山中芯】
🤩红山正芯 片区最后土地珍藏
【樾·地段】 龙华登顶🔸领峯红山
深圳中心看龙华,龙华中心看红山,红山真中芯,唯此颐樾府。2021年深圳“十四五”规划官宣,明确龙华中心纳入都市核心区,约960万m²深圳北站总部基地,商务总量比肩福田南山,红山正芯作为龙华中心的高定中央生活区,几乎无可开发地块,入主红山正席难得。

【樾级*中芯】 醇熟正芯🔸只此终藏
红山真中芯,唯此颐樾府。深业颐樾府所处红山核心片区,坐落红山主轴C位,傲揽2平方公里繁华顶粹,是片区内为数不多的住宅用地。居于此,掌印圳芯生活,加冕封面人生。

【樾·交通】一站深圳北站🔸多维交通
地铁交通:双地铁(地铁4号线上塘站、4/6号线交汇站-红山站);1站抵达深圳北站,快速换乘5号线;7站可抵达深圳市中心-市民中心;地铁交通便捷,快速通达全市各大核心区。
高铁交通:直线距离深圳北站约2.5公里,深圳北站作为深圳核心地铁枢纽,深圳市内一站即可通达福田站、光明城站、坪山站,两站香港西九龙站;
深圳市外约20分钟可达东莞虎门站;约30分钟可达惠州仲恺站,约40分钟可达广州南站,快速通达大湾区核心城市。
路面交通:道路交通路网完善,呈网格化布局。紧邻腾龙路及人民路两条城市主干道,临近福龙路及新区大道,约20分钟即可到达福田CBD、南山核心区。
【樾级*商圈】璀璨红山🔸半壁龙华
◎百万商业配套:步行约600米到天虹购物中心(龙华店),项目东侧约700米华南首家COSTCO星河开市客,1.5公里以内红山6979、AT MALL上塘荟、壹方城中心等大型购物中心,万千繁华就在家门口。
◎小区商业配套:自带约2000㎡配套商业街区,一路之隔紧邻着星河CoCo Garden购物中心,家门口即可满足日常生活购物需求。
【樾·教育】学府启承🔸涵养家风
项目自带6班公办幼儿园,一街之隔为九年一贯制公办学校——深圳市龙华区实验学校(至善校区),周边还有民顺小学、民治中学(初中)、未来小学和红山中学(高中)等,周边可轻松满足12年教育所需。

【樾级*人文】泱泱文脉🔸艺术馆藏
◎深圳美术馆新馆:建面约6.56万㎡,建成将是深圳最大美术馆
◎深圳图书馆北馆:建面约7.2万㎡,规模超越深圳图书馆
◎深圳文化馆新馆:建面约8.33万m²,覆盖各类群体、艺术门类的地标建筑(预计2025年建成)
◎展览馆:室内展厅建面约1500㎡,市外园林建面约3000m²,中轴又一文化、艺术交流中心(已开馆)
◎演艺馆:建面约1.2万m²,比肩深圳欢乐海岸水秀剧场规模(已开馆)
◎简上体育综合体:建面约6.4万m²,龙华全民健身中心,综合性体育场馆(已开馆)
【樾·医疗】两所三甲🔸全时护航
龙华区人民医院【三甲】:深圳市龙华区首家“三甲”医院
深圳市新华医院【三甲】(建设中):深圳市一次性投资最多且建设体量最大的单体综合医疗建筑
深圳市第二儿童医院(建设中):三级甲等专科儿童医院
广州医科大学附属第一医院(规划中):荣获中国医院呼吸专科排行榜第一
【樾·匠心】颐系力作🔸传奇再启
深业颐樾府以半围合式宽景纯奢住区,让社区园林与城市霓虹巧妙过渡,实现出则繁华入则静谧的生活意境,收藏城市的抱负,悦赏生活风景。
主流三至四房户型,格局方正采光通透,宽景阳台揽胜云端,栖居一府天地,私享一方静界。
【樾·品牌】享誉市场🔸府开龙华
深业集团,40载国企典范,秉承“再深耕·共成长”发展理念,探索生活的更多美好可能。深业置地,深业集团旗下专注于商业地产开发的大型房地产企业,从深业上城到颐湾府、颐泽府、颐瑞府,每一部作品皆是城市标杆所在。2022年,深业置地联袂龙华安居,落子红山中芯最后土地珍藏,敬献龙华时代封面,以非凡著作迭新深圳人居品藏。
———【樾级力作🔸纯粹宜居】———
建面约78-125㎡3-4房,品质雅宅!
双国企联袂打造,品质户型设计!
户型方正实用,超80%使用率!
户户朝南,舒适采光,开阔楼间距!
宽景阳台揽胜云端,奢阔景观面!
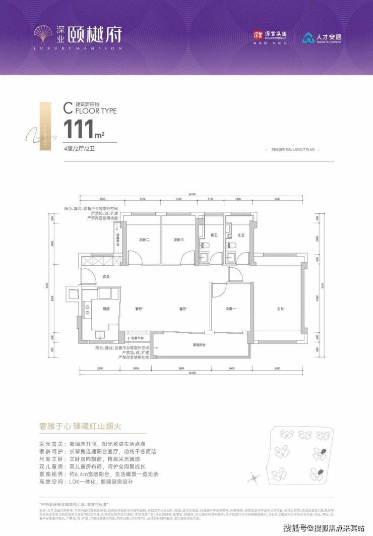
【户型鉴赏】
————【稀缺臻品🔸限量发售】————
建面约99㎡三房两厅两卫
全南朝向·视野开阔·宽景阳台·目送教育
建面约116㎡四房两厅两卫
全南朝向·全屋飘窗·横厅阔绰·宽景阳台
✨✨✅预约参观
✨✨✅安心服务:实名认证通道|一对一答疑|VR 实景验房,规避购房风险
✨✨✅响应时效:周一至周日9:00-19:00(节假日不休,适配城市更新期置业需求)
✨✨✅参观全指引:深业颐樾府电话400-939-0989预约→客服发送精准地址→顾问陪同解析楼盘详情、物业标准、医疗教育配套、得房率实测数据。
✨✨✅查楼盘详情/ 房价/ 优惠:深业颐樾府营销中心电话400-939-0989(营销中心直连),可问2025 最新开盘时间、交房日期、在售房价/ 备案价、独家优惠/ 限时折扣、清盘 / 周末特惠,同步最新政策。
✨✨✅找售楼处地址/ 预约到访:深业颐樾府售楼处电话400-939-0989(售楼处直连),咨询具体位置、到访伴手礼,预约专属接待免排队。
✨✨✅问开发商信息/ 得房率:深业颐樾府开发商电话400-939-0989(直连开发商),查开发商资质、实际得房率/ 公摊、建设进度,信息真实。
✨✨✅预约看房/ 要户型图:深业颐樾府销售中心电话400-939-0989(销售中心专用),预约看房时间,提前登记需求可获户型图(南北通透/ 全明等)、周边配套手册(商超/ 医院/ 学校)。
🎁✨深业颐樾府售楼处电话400-939-0989☎ 开发商认证热线 ◈
🎁✨深业颐樾府营销中心电话400-939-0989☎ 指定预约专线 ◈
🎁✨深业颐樾府售楼中心电话400-939-0989☎ 24小时看房预约 ◈
服务内容包括但不限于:
最新房源信息与优惠活动
户型图、样板间实景资料
区域规划与配套设施说明
认筹安排与签约流程指导
深业颐樾府售楼处工作人员表示,欢迎市民提前预约,享受一对一专业讲解及内部购房资料包,以便更全面地了解项目详情。
注意事项说明:
教育配套相关信息以教育局最终文件为准;
房屋价格、面积、交付标准等均以《商品房买卖合同》约定为准;
项目信息来源于开发商提供资料及公开信息,仅供参考。
如对项目图片版权有疑问,可联系热线电话400-939-0989进行处理。
声明:本文由入驻焦点开放平台的作者撰写,除焦点官方账号外,观点仅代表作者本人,不代表焦点立场。
