华侨城新玺(售楼处)首页网站-华侨城新玺营销中心-华侨城新玺欢迎您-楼盘详情-最新价格-户型图-容积率@辉煌售楼处
扫描到手机,新闻随时看
扫一扫,用手机看文章
更加方便分享给朋友
华侨城新玺售楼处电话:400-861-9050, 华侨城新玺售楼中心电话:400-861-9050, 华侨城新玺营销中心电话:400-861-9050,提前预约看房尊享额外优惠!为您安排楼盘现场销售全程接待并讲解,给您更贴心的看房体验!
华侨城新玺售楼处电话:400-861-9050, 华侨城新玺售楼中心电话:400-861-9050, 华侨城新玺营销中心电话:400-861-9050,提前预约看房尊享额外优惠!为您安排楼盘现场销售全程接待并讲解,给您更贴心的看房体验!
◆华侨城新玺位于蛇口南端,项目占地面积25147.13㎡,建筑面积288268.36㎡,包含 办公、商业、酒店、商务公寓,还有一个1800㎡的海洋博物馆!
项目分为两期开发,主要由三栋高层建筑组成,其中:一期为两栋38层的商务公寓及公寓+办公综合楼,建筑高度约156.5米+171.1米;二期为1栋57层的商务办公及酒店综合楼,建筑高度约250米。
项目基础指标
开发商:深圳华侨城新玺发展有限公司
占地:2.5万㎡
建面:17.6万㎡
产权年限:40年
1栋公寓:约230-700㎡大平层
总楼层:38层
层高:3.6米
梯户比:三梯一户、三梯两户
交楼标准:豪装
交楼时间:2023年12月
管理费:14.8元/m²
物业公司:华侨城至尊物业华管家
展厅地址:南山区湾厦路1号华侨城新玺展示中心
华侨城新玺售楼处电话:400-861-9050, 华侨城新玺售楼中心电话:400-861-9050, 华侨城新玺营销中心电话:400-861-9050,提前预约看房尊享额外优惠!为您安排楼盘现场销售全程接待并讲解,给您更贴心的看房体验!
【多维立体交通 高效畅达湾区半小时生活圈】
新玺项目毗邻蛇口国际邮轮母港可快速辐射深圳国际机场、香港国际机场等城市核心交通要塞。更有“七纵三横一高速”的便捷交通路网环伺,高效畅达湾区核心城市半小时生活圈。

【顶级商圈环绕 畅享都市万千繁华】
新玺周边荟萃海上世界、太子湾K11艺术购物中心、太子湾邮轮母港
(总建面约170万㎡)、兰桂坊等一系列国际化商业,都市万千繁华生活一站式尽享。

医疗配套: 项目周边2公里范围内有深圳市南山区人民医院(三甲)、蛇口人民医院;还有南山区妇幼保健院等
(二甲)综合性医院,为您和家人的健康保驾护航。
项目步行范围内,还可轻松到达海上世界文化艺术中心、深圳歌剧院等城市文娱配套,其中深圳歌剧院,是比肩悉尼歌剧院的全球级歌剧院,建筑面积达22.2万平,将成为世界级的艺术殿堂。试想,日后的某个傍晚时分,伴着夕阳,迎着海风,在黄昏中漫步到达你家“后花园”中的某个城市地标,惬意生活不过如此。
华侨城新玺售楼处电话:400-861-9050, 华侨城新玺售楼中心电话:400-861-9050, 华侨城新玺营销中心电话:400-861-9050,提前预约看房尊享额外优惠!为您安排楼盘现场销售全程接待并讲解,给您更贴心的看房体验!

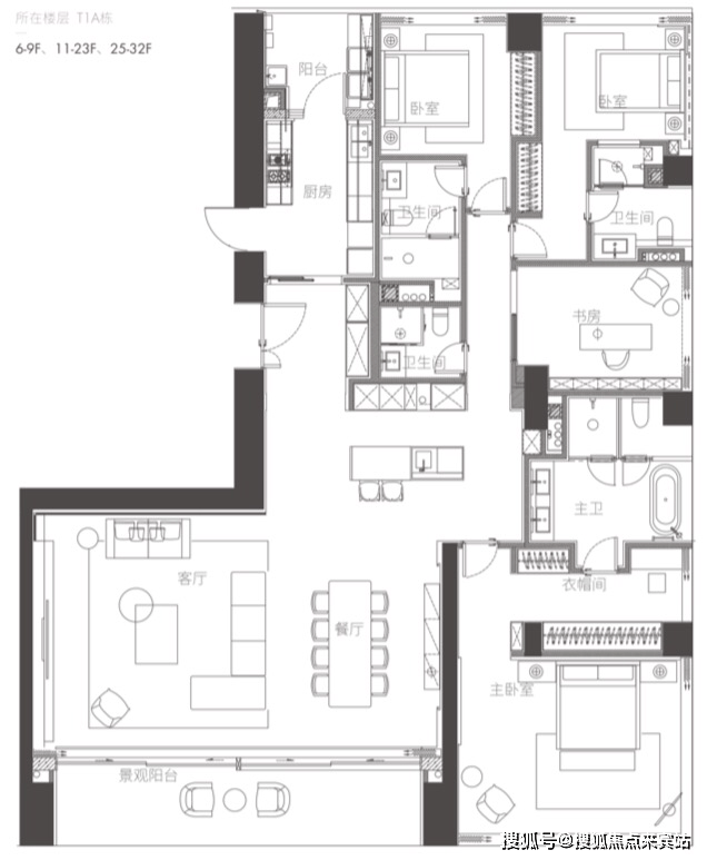
户型布局
华侨城新玺提供多种户型选择,满足不同购房者的需求。户型面积范围广泛,从232㎡到700㎡不等。具体户型包括1室1厅1卫、2室2厅2卫、3室2厅3卫、4室3厅5卫、5室3厅6卫以及6室3厅7卫等多种配置。户型设计合理,空间宽敞明亮,注重人性化需求。部分户型还配备了超大阳台和全景落地窗,让居民能够尽享海景和城市美景。
【一栋 一、二单元】
(6-32层)
三梯两户

华侨城新玺售楼处电话:400-861-9050, 华侨城新玺售楼中心电话:400-861-9050, 华侨城新玺营销中心电话:400-861-9050,提前预约看房尊享额外优惠!为您安排楼盘现场销售全程接待并讲解,给您更贴心的看房体验!
1户型 西端户 约350㎡ 四房两厅四卫
(01、04镜像对称)
南、西、北,三面景观视野
看深圳湾海景、内海景、城市景观

04户型 东端户 约350㎡ 四房两厅四卫
(01、04镜像对称)
南、东、北,三面景观视野
看深圳湾海景、内海景、城市景观

华侨城新玺售楼处电话:400-861-9050, 华侨城新玺售楼中心电话:400-861-9050, 华侨城新玺营销中心电话:400-861-9050,提前预约看房尊享额外优惠!为您安排楼盘现场销售全程接待并讲解,给您更贴心的看房体验!
✅ 本项目暂不接受临时到访,过来参观样板房请记得提前来电预约!
✅ 为您安排楼盘现场销售全程接待并讲解,给您更贴心的看房体验!
如有问题欢迎来电咨询,来电即可享受买房优惠!4008619050
声明:本文由入驻焦点开放平台的作者撰写,除焦点官方账号外,观点仅代表作者本人,不代表焦点立场。
