中信城开红树湾-深圳福田(中信城开红树湾)楼盘详情-房价-容积率-小区环境
扫描到手机,新闻随时看
扫一扫,用手机看文章
更加方便分享给朋友
————中信城开红树湾————
深圳福田【中信城开红树湾】售楼部24小时电话:400-898-8805售楼中心
楼盘项目怎么样?开盘消息、交房时间、楼盘详情、房价、户型、详情、得房率多少钱一平?什么时候交楼?有什么户型?周边有什么学校?物业费多少?
【项目名称】:中信城开·红树湾
【建筑面积】:约32000㎡
【占地面积】:约9467平米
【 总层高】:15层
【 梯户比】:2梯2户/3户(亮点)
【可售房源】:317套
【户型面积】:约60-119㎡
【车位数量】:340个
【交楼标准】:待定
【产权年限】:70年
【项目地址】:福田区红树林公园东侧红花道与香樟道交汇处
●●● 自然宝地●●●
红树林自然保护区,城市的心腹臻藏,自然的永恒宝地国家级战略,科技创新轴,深港科创合作区深圳一线湾区海景站位,城市价值腹地福田CBD升级CAZ中央活力区,1800万平米科创圈,湾区之都60-80-120-143平1-4房低密度生态住宅 ,天赋自然藏品。
交通配套
在地铁方面,地铁3号线南延线福保站通车,不过中信红树湾距离地铁口约1.2公里,需要公交换乘地铁。地铁出行相对较为不便;目前规划的地铁22号线尚在公示阶段,线路规划从福保通往观澜,从规划站点来看,项目或靠近本地铁的福保西站。
高速方面,中信红树湾临近京港澳高速皇岗站出入口,车行距离约2公里,经由京港澳高速可以通往南山、宝安相关区域;经由福荣路可通往深圳交通主干道之一的滨河大道,通往全市各个方向。
项目距离福田口岸约2.5公里,距离皇岗口岸约3.5公里,属于双口岸辐射区;另外福田口岸有双地铁口,可搭乘4号线、10号线。
外国语名校加持
中信红树湾所在位置小学学区为福苑小学。福田福苑小学于2018年9月投入使用,规划建设30个班,共提供1345个公办小学学位。
中学学区为福田外国语学校南校区初中部,幼儿园则在距离项目约350米处有福田第八幼儿园。
福田区外国语学校南校区,原为福田保税区实验学校,是一所48个班的九年一贯制公办学校,其中小学24个班,初中24个班。该校2018年引入了福田区外国语学校办学,福田区外国语学校是深圳仅次于深圳四大名校的一流学校,历年来排名都比较靠前。
【深圳福田中信城开红树湾售楼处咨询热线:400-898-8805】
✅看房提前预约尊享内部特惠,价格包您满意!团购预约更享折上折、赠送豪华家电!
✅为您安排楼盘内场专业销售人员一对一接待!让你买的放心,住的舒心!
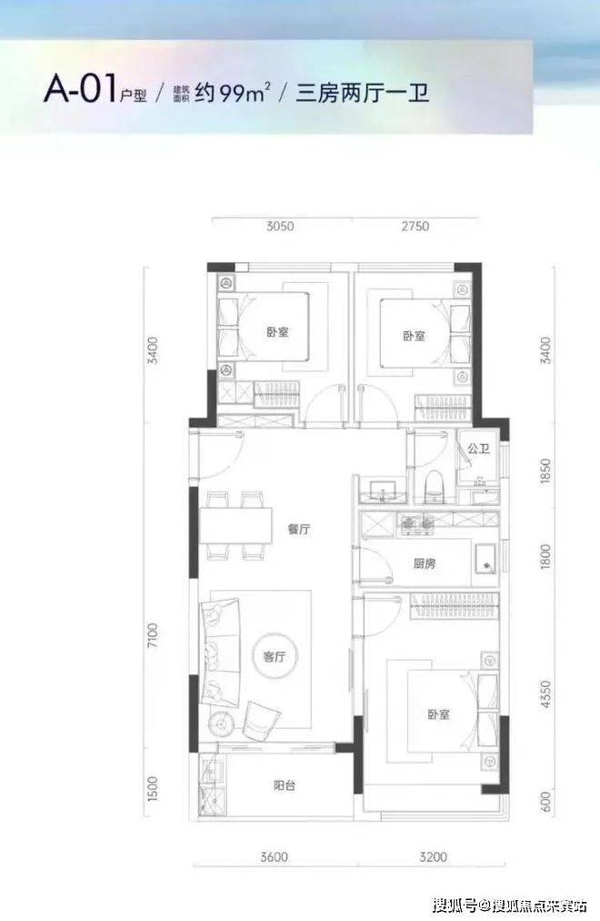
户型鉴赏
红树湾主推户型为79-143㎡单,共397套房源,其中小户型1-2房主要分布在H座、J座,从户型分布上来看,主力户型为102-119㎡的3房户型,135-143㎡的4房户型和60㎡的1房户型较少。梯户比方面,多为2梯2户、2梯3户,H座多为小户型则是2梯6户。
项目户型面积段跨度大、选择空间大,刚需和改善型购房者都可以关注。不过部分户型不是很方正,可能会影响使用率。
1房2厅1卫
约59㎡
2房2厅1卫
约63-69-75-76-77-79-80㎡
3房2厅1卫
约93-99㎡
3房2厅2卫
约103-104-105-112-111-114-115-119㎡
4房2厅2卫
约134-142㎡
深圳福田【中信城开红树湾】
售楼处电话:400-898-8805【楼盘电话】
房价,价格,地址,户型图,规划,备案价,位置,配套,楼盘详情,售楼处电话,多少钱,规划怎么样,周边配套,最新详情欢迎来电售楼处网上营销中心。
免责声明:部分信息来源于网络,如果侵权,请联系及时删除,联系电话:400-898-8805
声明:本文由入驻焦点开放平台的作者撰写,除焦点官方账号外,观点仅代表作者本人,不代表焦点立场。
