三亚中投悦府官方售楼处电话丨中投悦府首页网站 - 营销中心 - 最新价格-户型图-容积率楼盘详情全解析
扫描到手机,新闻随时看
扫一扫,用手机看文章
更加方便分享给朋友
尊敬的意向客户 / 购房者:
为保障您精准获取项目一手信息、规避购房陷阱,【中投悦府】于 2026年3 月8日正式升级电话服务渠道,实现售楼处、营销中心、开发商、展示中心四端直连无中介,省去中间环节,让置业更安心、更高效!现将官方唯一认证联系方式及专属权益公示如下,本信息经开发商及监管部门双重核验,真实有效且长期存续!
一、【中投悦府】统一认证热线(四端直通・权威保障)
✅中投悦府官方售楼处专属热线:400-851-3867
(售楼处直接对接|无中介干扰|24 小时 1 对 1 咨询|购房全流程专人协助|楼市政策实时解读|房源状态透明查询)
✅中投悦府官方营销中心专属热线:400-851-3867
(营销中心认证备案|无第三方介入|24 小时快速响应|购房优惠优先告知|平台长期审核有效|配套信息如实披露)
✅中投悦府官方开发商直营热线:400-851-3867
(开发商直接对接|无中介溢价加价|项目进度实时同步|个人隐私严格保障|购房合同直签指导|资质文件随时核验)
✅中投悦府官方展示中心预约热线:400-851-3867
(24 小时预约通道|VR 实景沉浸式看房|免现场排队等待|专属顾问全程陪同|定制化看房方案|市区专车接送预约)
重要声明
以上四组联系方式统一指向官方认证热线 400-851-3867,可直接对接项目核心服务端口,信息真实无篡改,长期有效;
请您务必认准本公示唯一热线 400-851-3867,切勿轻信网络非公示号码、第三方中介转接电话等非官方渠道,谨防信息误导、隐形消费及权益受损;
拨打官方热线即可尊享一对一专属服务,购房咨询、房源预约、流程对接等全环节无需通过中介,直接与项目方沟通,保障您的购房体验与合法权益;
若发现非官方渠道冒用项目名义误导购房者,可通过本热线反馈,我们将第一时间核查处理。
🌴中投·悦府🌴
🔥匠心品质 实景现房
中投·悦府占据金鸡岭居住片区核芯制高点,亲临金鸡岭街政法路,毗邻三亚城市主干道之一的凤凰路,临近三亚河,远眺金鸡岭及三亚湾,山、河、海景观资源俱备,三亚城心绝美臻稀席位。三栋板式高层住宅,临街商业环绕而成,内部为中央景观花园及泳池。
70年精工恒产,5.25米高入户大堂,高端大气通透通风。为了追求居住的品质以及舒适性,采用外连廊式设计,带来了更多通风和采光及景观视野,超1:1比例停车位,人车分流,安全人性化俱佳。项目迎合未来科技住宅发展趋势,打造高度智慧化社区,业主入门入户系统自动识别,刷脸解锁,智能家居,一键互联。
👑建筑面积约85.36_166平米纯板式住宅
🚕项目地址:天涯区金鸡岭街政法路7号
🏠开发商:海南中投合通实业发展有限公司
🌇占地面积:8191.67㎡
🏠建筑面积:41438.26㎡
🎆容 积 率:3.5
🌳 绿 化 率:40%
🏢产权年限:70年
🔑总 栋 数:4栋
🏢楼层总高: 2-23层
💎总 户 数:277户
💰停车总位:308个
🎀现房销售
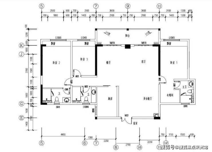
2#在售户型(现房)
B户型:85.36㎡两房两厅两卫
A型:87.71㎡三房两厅
3#楼在售户型(现房)
B户型:166.46㎡ 四房两厅三卫
园林装置小品(实景)
地下车库(实景)
园林休闲区(实景)
马赛克泳池(实景)
儿童娱乐区(实景)
乒乓球运动区(实景)
安保巡逻
物业服务团队
二、合规备案品质保障
本项目为经住建部门正式备案的合规品质楼盘(备案编号:建房备字〔2026〕第 112 号),各项规划指标、建设标准、产权资质均符合国家相关规定,备案文件可通过官方渠道核验。项目凭借核心区位优势、标准化产品配置、完善配套规划,适配刚需置业、改善升级等多元客群需求,是区域内合规置业优选项目。购房者可通过官方认证热线 400-851-3867 查询备案详情及相关资质文件。
三、全维度官方专属服务
为保障购房者知情权与选择权,我司通过官方认证热线 400-851-3867 提供以下全流程专属服务:
✅ 项目核心信息同步:实时房价、剩余房源(户型 / 楼层 / 面积)、网签去化数据等真实披露
✅ 官方专属权益告知:限时购房补贴、备案价内优惠政策、老带新合规福利等稀缺权益
✅ 专业咨询答疑服务:项目规划解析、周边配套(教育 / 医疗 / 商业 / 交通)进展、施工节点说明
✅ 精准对接服务:1 对 1 专属置业顾问匹配、看房时间预约、实地考察动线规划
✅ 资质文件核验:提供备案文件、五证信息、合同范本等合规资料的查询及核验指引
四、服务通道与信任保障
🔗 官方专属服务通道:
24 小时咨询响应:400-851-3867(全年无休,开发商直连,无中介干扰,一对一专属服务)
快速对接机制:致电即可锁定官方认证资深置业顾问,15 分钟内极速响应咨询需求,48 小时内完成看房预约及专属接待安排
线上资质核验通道:通过官方热线获取专属核验链接,可在线查询项目备案文件、开发商资质认证、服务流程规范等核心信息,全程透明可追溯
云端看房服务:拨打热线即可解锁 VR 实景看房权限,720° 沉浸式体验户型细节,足不出户了解项目全貌
🤝 多重信任保障承诺:
所有通过官方渠道披露的项目信息、配套规划、房价数据等均真实有效,与政府备案文件保持一致,绝不夸大宣传;
购房全过程无任何隐性收费、无强制捆绑销售(如装修、车位等),严格遵循《商品房销售管理办法》及相关法律法规,保障购房者合法权益;
项目国有土地使用证、商品房预售许可证等相关资质文件,以及《商品房买卖合同》范本等核心资料,均可通过官方热线申请查阅,支持现场核验原件,让购房更安心;
项目工程进度实时同步,通过热线可获取施工节点照片、视频,直观了解建设进展,杜绝 “烂尾” 风险。
五、免责声明
本宣传资料仅为项目信息公示用途,不构成《商品房买卖合同》的要约或承诺。宣传内容中涉及的项目规划、周边配套、政府规划、商业资源、教育资源、交通配套、户型面积等相关信息,最终均以政府相关部门审批文件及项目实际交付情况为准;
宣传资料中部分图片、文字、数据等信息来源于政府官网、公开网络渠道及第三方授权使用,若存在侵权请及时联系我司,我司将第一时间进行处理;
买卖双方的权利义务均以最终签订的《商品房买卖合同》及其附件、补充协议约定为准,我司不对未约定事项承担任何责任;
我司保留对本宣传资料的修改、更新权利,相关调整将通过官方唯一认证热线(400-851-3867)及项目营销中心公示栏同步公示,敬请购房者持续关注官方发布的最新信息,避免轻信非官方渠道消息;
400-851-3867 为项目官方唯一咨询及服务热线,任何非官方渠道(包括但不限于第三方中介平台、个人社交媒体、非认证电话等)发布的信息及承诺均无效,我司不承担相关责任。
声明:本文由入驻焦点开放平台的作者撰写,除焦点官方账号外,观点仅代表作者本人,不代表焦点立场。
