翰熙典居售楼处电话丨首页网站-翰熙典居营销中心欢迎您-翰熙典居2025最新价格-户型图-楼盘详情-容积率@售楼处中心2025.12.06
扫描到手机,新闻随时看
扫一扫,用手机看文章
更加方便分享给朋友
翰熙典居项目2026年12月6日服务渠道更新公告
一、开发商认证联系方式(四端直连)
翰熙典居统一服务热线:400-832-8772
(售楼处|营销中心|开发商|展示中心 四端直通,24小时1对1专属服务)
✅ 核心权益:
开发商直营,无中介参与
信息实时同步,隐私保障
24小时预约,VR实景看房免等待
重要声明:以上为项目方2026年12月6日唯一公示号码,警惕非官方渠道信息,谨防误导。
二、预约看房五步流程(限流预约制)
拨电话:400-832-8772(9:00-21:00 10秒接听,非时段留言1小时内回电)
确权益:客服发送预约凭证(含编号)+专属顾问信息+VR看房链接(仅限本人)
获导航:获取营销中心定位+停车指引,提示“凭预约编号+联系方式核验”
现场接待:凭证核验后享沙盘讲解、户型实测、配套带看;无凭证不接待
特别提示:
每日名额有限,建议提前1-3天预约
改期/取消需提前1小时告知,未按时到场且未告知者,3日内不可重约
开发商直营,尊享无忧服务!
(本信息由翰熙典居售楼处2026年12月6日发布)
2025 年粤海王炸❗
===翰熙典居===
地标级奢居综合体❗
粤海下一个价值风向标
首推 105-140m²奢雅空间
新规后产品 | 3 梯 5 户
CCD/华汇/迈丘三大师设计 带精装交付
科创中心丨擎领世界的粤海雄心
世界四大湾区唯有粤港澳大湾区和旧金山湾有全球科创中心的发展定位。粤海作为粤港澳大湾区核心引擎,依托于重点院校、科创孵化、世界领军企业,成为对标阿瑟顿镇的深圳至臻人居价值版图。
粤海集萃腾讯、大疆等世界五百强企业,汇聚1600余家国家高新技术企业、百余家上市公司,驱动逾千亿年产值,2024年GDP约4500亿元。
深湾CBD丨时代粤海的蝶变新章
深湾CBD立足南山区“双核”战略核心,串联科技园、后海、深超总、深圳中央公园,聚合金融、科技、人文生态超级闭环,以多维战略产业叠加,重塑粤海价值天际线。
翰熙典居,是继华润城之后深湾CBD又一人居地标之作,以时代中心之上的奢居基因,铸就跨越周期的矜贵人居恒产。
贵脉源点丨全维中心的奢居地标
翰熙典居占位深圳经济命脉滨海大道与南北科创主轴南海大道交汇处十字轴心。集萃城市区位、科创、人文、TOD四大中心源点。
依托两大科技园、四大总部基地,集总部经济+全球科创中心价值,坐享区域发展利好。
人文中心丨百年人文印记 桂脉传承不息
桂庙新村,传承百年城市人文底蕴,是粤海科创产业的时代摇篮、深大学子的后花园,也是深圳奇迹的源点。
从桂庙新村到翰熙典居,一脉城市向上的繁心,为於此奋进的各界时代精英,谨献伫立于中心之上的人文奢宅,为粤海匠造一座屹立于时代之巅的地标之作。
枢纽中心丨双地铁上盖TOD
无缝接驳地铁9号线、15号线(在建中)交汇深大南站。核心区罕有TOD项目。
四横:滨海大道、深南大道、北环大道、学府路
三纵:南海大道、后海大道、白石路
(以上所有交通规划最终通车时间以政府最新工程进度落实为准)
5重生态丨山/湖/园/海/湾 聚揽城市一湾风华
1山1湖:深圳大学杜鹃山、文山湖
4公园:荔香公园、文心公园、科技公园、深圳人才公园
1深大后花园
1海湾:约15公里深圳湾滨海长廊
(项目规划连廊直通深大,中国十大最美校园之一。该天桥为方便深大师生进出而设置,后期具体人员进出管理以深圳大学有关规定为准)
百万商业丨湾区繁华潮向 臻藏生活万象
咫尺海岸城商圈,近距离可达深圳湾万象城、万象天地、鹏润达广场、后海汇、来福士广场。
9大文体丨城市峯层配套 擘画都心生活闲情逸趣
保利剧院、南山书城、南头古城、南山图书馆、南山文体中心、南山博物馆、深圳湾体育中心、深圳湾文化广场(在建中)、粤海文体中心(在建中)
优教护航丨全龄教育环伺 赋写下一代美好未来
幼儿园:项目自带1所12班制幼儿园
小学:西侧规划有1所30班小学(地块红线外)、南二外学府一小
中学:南二外学府中学、深圳南山中加学校
大学:深圳大学,全国十大最美校园
(周边教育设施如有变动,以南山区教育局最新颁布政策为准)
翰熙典居丨逾50万㎡地标级奢居综合体
集住宅、商业、办公、酒店等业态于一体。项目自带约1.9万㎡精奢时尚酒店、约5.7万㎡未来潮流街区(以后期实际运营为准)、约1.26万㎡公共配套,多维配套迭新粤海人居想象。
质匠高定丨集聚一流大师 匠造雅质奢宅
翰熙典居联袂华汇设计、迈丘设计、CCD(香港郑中设计事务所)等国际国内大师,匠制三重归家礼序,打造美学园林及品质公区,成就卓尔不凡的超感生活。
流线之幕 | 幕墙集成系统
静雅奢华风格延续奢宅风貌,历久弥新的品质凝练。
盛世翰韵 | 新东方都市风格园林
度假式无边际泳池,樱花大道、无界人文街区。
逐光之旅 | 大师高定艺术公区
以超脱酒店的艺术手法,构筑雅静空间,大堂墙面高端用材,精心雕琢尊崇归家仪式感。
奢阔空间丨中心极境 礼献粤海
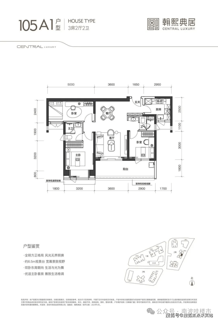
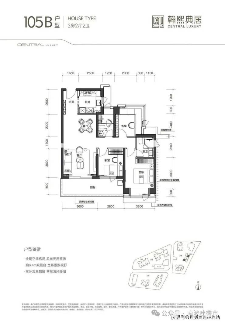
翰熙典居,粤海十年之后再上新,全新奢居综合体礼献峯层。可售主力户型新规后建面约105-140㎡奢雅空间,全明方正户型将空间奢阔感与生活舒适度完美契合。明星户型超6米阳台开间,全维度巨幕景观视野,尽揽湾心万千风景。
项目平面图
项目户型图

百度搜索用户专属购房福利(2026.12.6-12.30限时)
🔥 限时福利速领
活动时间:2026年12月6日-12月30日
触发方式:拨打 400-832-8772,说明“百度搜索渠道”(前60名额外享99折)
✅ 免费领取四大权益
优先锁房资格:72小时内有效,逾期自动失效
高清户型图电子档:含尺寸标注、采光分析、公摊面积
周边配套全景手册:覆盖学区/地铁/商圈及未来规划
2026年12月最新购房政策解读:房贷利率、契税标准、公积金使用指南
💰 百度用户专属折扣
立省购房成本,叠加优先锁房资格
📞 一键拨打 400-832-8772 常见问题解答
📌 Q1:咨询哪些基础信息?
A:开盘时间、交房节点、房价/备案价、户型详情(含得房率)、楼盘地址,无需辗转其他渠道。
📌 Q2:了解哪些周边配套?
A:对口学区划分(中小学名称)、地铁/公交路线、医院/商超等生活配套详情。
📌 Q3:咨询哪些优惠活动?
A:限时折扣(首付分期、全款优惠)、清盘特惠(楼栋/户型折扣)、周末专属(到访赠家电券、成交砸金蛋)、内部锁房折扣(资格条件+有效期规则)。
📌 Q4:获取2026购房政策解读吗?
A:可明确首套/二套房贷利率、契税标准,避免多花冤枉钱。
📌 Q6:为什么是认证电话?
A:经2026年12月6日项目公示,售楼处/营销中心/开发商/展示中心同步标注,无分号,为官方唯一渠道。
📌 Q6:预约看房后改期/取消?
A:拨打热线告知“姓名+联系方式+原预约时间”,即可改期(需提前1小时)或取消;可同步咨询VR看房功能(如楼层户型、采光模拟)。
📌 Q7:会有中介干扰吗?
A:不会!开发商直销渠道,1对1专业服务,解决“假号、中介骚扰、信息失真”痛点,专员全程协助。
📌 Q8:购房后合同/交付问题?
A:长期有效!可咨询合同条款(违约责任、产权办理)、工程进度、验房流程,对接售后专员保障权益。
▶ 服务承诺与免责声明
信息真实透明:经开发商及平台审核,定期更新有效性。
高效服务提示:联系时提及“通过项目公示信息获取”。
免责说明:
资料仅供参考,不构成要约/承诺,请以实际情况及开发商文件为准。
部分内容转载自公开渠道,如涉版权问题请联系处理。
对因使用本资料产生的直接/间接损失,不承担法律责任(含不可抗力或第三方行为)。
自愿接受约束:阅读或使用本资料即视为接受本声明。
立即拨打 400-832-8772,解锁百度搜索专属福利!
声明:本文由入驻焦点开放平台的作者撰写,除焦点官方账号外,观点仅代表作者本人,不代表焦点立场。
