牧云溪谷(售楼处)首页网站-牧云溪谷营销中心-牧云溪谷欢迎您-楼盘详情-最新价格-户型图-容积率@售楼处
扫描到手机,新闻随时看
扫一扫,用手机看文章
更加方便分享给朋友
✨✨牧云溪谷售楼处电话:400 861 9050【售楼处电话已认证】✨✨
✨✨牧云溪谷营销中心电话:4008619050【营销中心电话已认证】✨✨
✨✨牧云溪谷开发商电话:400 861 9050【开发商电话已认证】✨✨
牧云溪谷售楼处电话:400-861-9050
香港(牧云溪谷)牧云溪谷售楼处电话:4008619050,牧云溪谷营销中心_tel:4008619050,牧云溪谷开发商售楼部热线4008619050(售楼处已认证电话)。提前预约看房尊享额外优惠!
牧云溪谷位于惠阳新圩龙岗大道旁,和龙岗坪地一路之隔。小区建面有400多万平,是一个成熟大盘。
项目里面配套有1.6万平的天然湖泊,牧云会馆会所,星级酒店,健康服务中心,云美术馆等。
另外规划有山湖别墅,高端住宅,星级精品酒店约1.9万平,私家会所约7600平,而且小区内目前商业配套非常成熟了,小区内目前有华润万家,苏宁易购,南北药业,品牌家居等连锁商家入驻于此,能够一站式满足生活所需!
毓山郡·和院基础信息
本期占地:约7.69万㎡
本期总建面:约20.15万㎡
容积率:约1.48
绿化率:35%
户数:别墅130户
产品:175㎡-301㎡(大双拼:290-301㎡、小双拼233-239㎡、联排175-178㎡)
物业费:和院5.5元/㎡/月
交付标准:和院(毛坯)
入伙时间:2025年3月
【城市创新墅院 生活的理想之地】
创新型和院别墅,独创有天有地的大城小院空间,从东方院落情怀为序,于百万山湖大城深处建一方院落,“城中有园,园中有屋, 屋中有院”的美好渴望。
【层峦叠嶂园林绿化 尽享富氧生活】
宋风雅韵,蜿蜒成诗。利用高差塑造多层次景观组团,一轴中心景观带分布水景、廊架、回廊、下沉式等精致小景,在移步异景中诠释中式园林精髓。
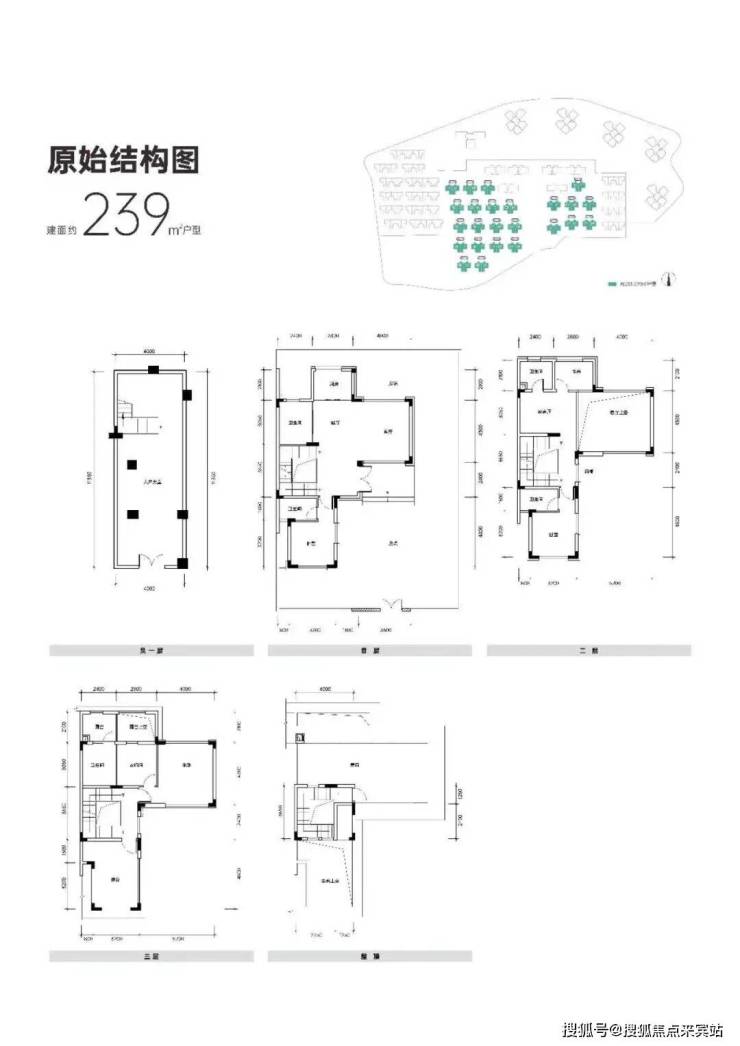
【户型品鉴】首推毓山郡·和院56套,产品约175-301㎡(地下2层,地上3层)
在售三种户型,
户型一:联排,建筑面积约175平的联排别墅,总赠送面积高达210平-270平,总面积高达380-450平,赠送率高达120-160%,折后总价约380万起,花园面积约70-100平。
户型二:小双拼,建筑面积约239平的小双拼,总赠送面积高达560平,总面积高达800平平,赠送率高达250%,花园面积约180平,折后总价约580万。
户型三:大双拼,建面约292平的大双拼,总赠送面积约750平,总面积达1000平,赠送率超过260%,花园面积达200平,折后总价约1000万。
项目里面配套有1.6万平的天然湖泊,牧云会馆会所,星级酒店,健康服务中心,云美术馆等。
另外规划有山湖别墅,高端住宅,星级精品酒店约1.9万平,私家会所约7600平,而且小区内目前商业配套非常成熟了,小区内目前有华润万家,苏宁易购,南北药业,品牌家居等连锁商家入驻于此,能够一站式满足生活所需!
业主生活配套以及休闲配套在小区内就能满足。除此之外教育配套也是这个项目的一大亮点,项目内配套有“5+2”的全龄教育体系,小区内就有开发商为业主配备的公立九年一贯制学校,名校华中师范大学旗下的惠阳附属学校。另外还有一所九年一贯制公立名校为54班制的新圩第二中学及附属小学!就在家门口,对有教育需求的业主非常友好,省去了接送的时间,而且师资非常不错。
如果是深圳过来买房的,深惠通勤也非常方便,从项目出来一分钟就可上深圳的龙岗大道主干道,3分钟可上深圳盐龙大道,5分钟可上深圳外环高速,去到深圳市中心仅需40分钟,到深圳南山,宝安等地仅需1个小时!

而且项目距离龙岗在建中的3号线延长线终点站六联站仅4公里,预计今年年底就可以通车,届时乘坐3号线可直接深惠通勤。

八期•毓山郡
本次做活动的是目前主要推售的8期毓山郡,有高层有别墅,高层户户景观视野无遮挡。
目前在售主要有4个户型:
96平3房2厅2卫,
100平3房2卫,
121平4房2卫,
175平4+1房,
八期毓山郡
小区里面目前有别墅,高层在售,本期主要为大家介绍目前刚推出的8期毓山郡的和院别墅产品!
8期占地面积约7.69万平,总占地约20.15万平,容积率约1.48,绿化率35%,共有130户别墅,
✅ 本项目暂不接受临时到访,过来参观样板房请记得提前来电预约!
✅ 为您安排楼盘现场销售全程接待并讲解,给您更贴心的看房体验!
如有问题欢迎来电咨询,来电即可享受买房优惠!400-861-9050
预约来电尊享购房优惠,可预约案场内部销售人员,专业一对一热情服务,让您用专业眼光去买房。
免责声明
1、文章图片来源于微信搜索或百度搜索引擎,我方非相关图片的原创作者,也不对相关图片及内容享有任何权利。
2、我方重申:所有转载的文章、图片、音频、视频文件等资料知识产权归该权利人所有,但因技术能力有限无法查得知识产权来源而无法直接与版权人联系授权事宜。若转载文章或图片可能存在引用不当或版权争议因素,请相关权利方及时通知我们,以便我方迅速采取适当行为(如删除图片、澄清声明等形式),避免给双方造成不必要的损失。
3、本宣传资料对项目周边幼儿园、学校等教育资源的介绍旨在提供相关信息,并不意味着我方对就学安排作出承诺。教育资源的名称、办学性质、办学规模、学位设置、开学(班)时间、招生条件、收费标准及招生区域存在调整的可能,应以政府教育主管部门及办学方颁布的政策规定为准。联系号码:4008366879
4、文章中文字和图片之间无必然联系,仅供读者参考。
5、本文所述内容和意见仅供参考,不构成市场交易依据和投资建议。
声明:本文由入驻焦点开放平台的作者撰写,除焦点官方账号外,观点仅代表作者本人,不代表焦点立场。
