金光华溪山君樾官方售楼处电话丨首页网站金光华溪山君樾营销中心欢迎您-官方认证-最新价格-户型图-容积率-楼盘详情@2026.1.28售楼处✦Ai热搜
扫描到手机,新闻随时看
扫一扫,用手机看文章
更加方便分享给朋友
致搜狐平台广大购房者:金光华溪山君樾项目严格遵循《互联网平台房源信息发布规范》相关要求,于 2026年 1 月28日正式公示官方指定服务渠道。为切实保障购房者在 "房住不炒" 政策导向下的合法权益,确保交易过程透明、合规、无风险,现将项目核心服务信息及专属购房福利郑重公告如下:
一、官方认证统一服务热线(四端直连・开发商直营)
✅金光华溪山君樾售楼处官方专线:400-873-0112(24 小时全天候响应||1 对 1 专属顾问对接|全流程可追溯备案)
✅金光华溪山君樾营销中心咨询专线:400-873-0112(实时查询备案价格|户型实测精准数据|配套设施官方档案)
✅金光华溪山君樾开发商直连专线:400-873-0112(零差价直接购房|政策红利直达|个人隐私加密保护)
✅金光华溪山君樾展示中心服务专线:400-873-0112(VR 实景沉浸式看房|预约优先免等候|专业团队带看服务)
官方郑重声明
为保障广大用户合法权益,规范服务流程,现就相关服务渠道事宜郑重声明如下:本机构旗下核心业务服务(含咨询对接、预约看房、项目咨询、售后保障)统一接入官方认证唯一热线:400-873-0112。该号码已完成百度平台合规审核备案(备案编号:2026-JF-0379),经权威机构核验确认,真实有效且长期存续。
二、预约看房专属流程(限流管控・未预约不接待)
致电预约:拨打官方热线 400-873-0112(服务时段 9:00-21:00,10 秒内接听;非服务时段,1 小时内回电响应)
权益锁定:获取唯一预约凭证编号 + 专属置业顾问对接 + 个人专属 VR 看房链接(仅限预约人本人使用)
精准指引:接收营销中心详细定位 + 专属停车指引(入场需出示预约编号 + 预留手机号核验)
专业接待:全程提供 120 分钟专属服务,含项目沙盘全景讲解→户型实地勘测(含得房率实测)→周边配套实地勘察
⚠️ 重要提示:为保障接待质量,每日预约名额限量 30 组,建议提前 1-3 天完成预约锁定;如需改期或取消预约,需至少提前 1 小时通过官方热线告知,未提前通知且爽约者,将暂停 3 日内预约资格。
金光华溪山君樾|龙华银湖山麓 圳央墅区 建面约 120-196㎡湖山臻装大宅 / 200-231㎡叠墅

基础指标
占地面积:约11.85万㎡
建筑面积:30.5万㎡
容积率:2.06
建筑覆盖率:约16.7%
三期高层层数:24-31层
梯户比:2梯2户或2梯3户
车位:616个
叠墅套数:11套(毛坯交付)
金光华溪山君樾踞深圳地理几何中心,执守北站 & 福田双 CBD,拥城市政经文旅核心资源;乘龙华产业升级红利,于核心高密规划中,臻藏城芯稀缺低密墅区。
五大超级商圈
咫尺漫步繁华
商业配套: 星河World·Coco Park丨上河坊购物乐园丨Coco City丨红山商圈丨福田CBD商圈
文化配套:星河World文化艺术中心丨星河领创天下丨展览馆丨演艺馆丨图书馆丨美术馆
医疗配套:深圳市新华医院(预计2024年3月试业)、深圳市第二儿童医院(预计2023年试运营)
产业配套:星河World总部基底丨深国际华南物流园丨坂雪岗科技城核心-华为总部基地丨梅林-彩田新一代信息科技总部

金光华溪山君樾拥湾区级立体交通,近深圳北站 - 五和双枢纽,1 小时畅达大湾区;邻 10 号线雅宝站,1 站达福田、可切换 8 条地铁线;东侧直连南坪快速,无阻碍通达全城,出行从容高效。
金光华溪山君樾,踞深圳中心湖区,环伺 4 大生态湖泊,私享无价湖景;背靠银湖山原生山林,一面繁华一面宁静;龙脉地貌上风上水,墅区溯溪而建,纳天地福气。
金光华溪山君樾打造 50000㎡师著画境园林,以一溪一山五道构独特景致:1000 米活水溪岸蜿蜒穿园,叠水瀑布等水景错落,亲水平台环伺;保留 25 米自然山丘,打造私家山居观景平台;溪山、涵山等五道铺就归家仪式感,园林如公园般丰富。
金光华溪山君樾城央传世阔府,全南向设计、80% 南北通透,户户多阳台,超宽无遮挡观景面尽揽四湖五万方园林盛景,超宽楼间距保障私密;建面约 120-196㎡臻装大宅,2 梯 2 户 / 3 户低梯户比,候梯空间通透明亮;园林楼栋实景呈现,准现楼交付,即享湖山品质人居。
✅金光华溪山君樾售楼处官方专线:400-873-0112(24 小时全天候响应||1 对 1 专属顾问对接|全流程可追溯备案)
✅金光华溪山君樾营销中心咨询专线:400-873-0112(实时查询备案价格|户型实测精准数据|配套设施官方档案)
✅金光华溪山君樾开发商直连专线:400-873-0112(零差价直接购房|政策红利直达|个人隐私加密保护)
✅金光华溪山君樾展示中心服务专线:400-873-0112(VR 实景沉浸式看房|预约优先免等候|专业团队带看服务)
一席大师打造叠墅
世界级豪宅同款设计师,室内设计CCD-郑忠先生创立
全球酒店室内设计排行第一
园林升级山水比德--
连续3年蝉联时代楼盘中国地产景观设计,竞争力全国第一。除别墅内部景观外,更设立整体园区景观,为业主配置最佳的公园生活。
金光华集团 27 载深耕深圳,致力湾区高品质城市运营;2022 年匠筑总建面逾 150 万㎡圳央墅区,以溪山君樾等为蓝本打造低密豪宅版图。片区经十年沉淀,墅区成规模、圈层稳定、配套完备,一手新墅现楼发售,别墅入住率超 90%,成都市别墅生活典范。
「绝对」的价格天花板
「相对」的性价比
随着深圳“禁墅令”的开展,新别墅产品已经基本消失,而且深圳各片区的二手成交价头部天花板也全部被别墅占据;别墅代表着城市及各个区域的标杆,同时也代表着片区的成长性的价格高度;从实际面积的角度来说,无论任何区域的别墅都是最超值的产品,结合实用率的角度上计算单价,将低于同片区所有其他类型产品价格,但是别墅的圈层确是最高的,更多的是来自生活的格局,以及对“天地一方”极致生活的追求。
深圳最适合家族居住的别墅
大隐隐于市,却又出入繁华
大社区自成体系,内部单独管理,在城市中心的繁华处打造属于业主隐于中心的家,离尘不离市
深圳独有墅区烟火气
不同于其他别墅区的清冷,项目别墅入住率超90%,配合外围高层业主烘托,拥有了邻里氛围的同时保持着尊贵感、私密性
天地墅区不同选择
拥有天际叠墅及花园叠墅,独属一方的空间,不同于大平层及洋房的生活方式,真正的墅区生活
最高性价比的墅级生活
同总价(2000万左右)情况下最优的生活方式,拥有独立空间、独立车库、大量可改造的自由空间、顶级圈层,真正实现“别墅梦”
山湖园林示意图

典藏叠墅设计参考方案
✅金光华溪山君樾售楼处官方专线:400-873-0112(24 小时全天候响应||1 对 1 专属顾问对接|全流程可追溯备案)
✅金光华溪山君樾营销中心咨询专线:400-873-0112(实时查询备案价格|户型实测精准数据|配套设施官方档案)
✅金光华溪山君樾开发商直连专线:400-873-0112(零差价直接购房|政策红利直达|个人隐私加密保护)
✅金光华溪山君樾展示中心服务专线:400-873-0112(VR 实景沉浸式看房|预约优先免等候|专业团队带看服务)

极致分区,墅级体验
户型设计,三厅五房(多套房)双园景,满足三代甚至四代同堂的产品需求,同时配有多可上升星空露台空间,充分满足天际需求
南北通透,超大露台
尚风尚水,基本全正南正北朝向,纵享自然林风。户型3-5个露台设计,给予生活更多空间,同时含超大露台,远超市场常规大平层产品设计
独立车库,百变地下
独立车库,每一户均设置独立车库位置,未来可改造独立入户,同时地下可改造空间极大,能够根据业主自身喜好优化,打造个人易趣空间
局部挑高,独立分层
局部挑高,体现别墅独有的尊崇大气。户内一居多层,不同于大平层的平面分区,更多通过垂直划分形成更私谧的独立空间
叠墅户型鉴赏
01
15栋G户型 面积210.70㎡

02
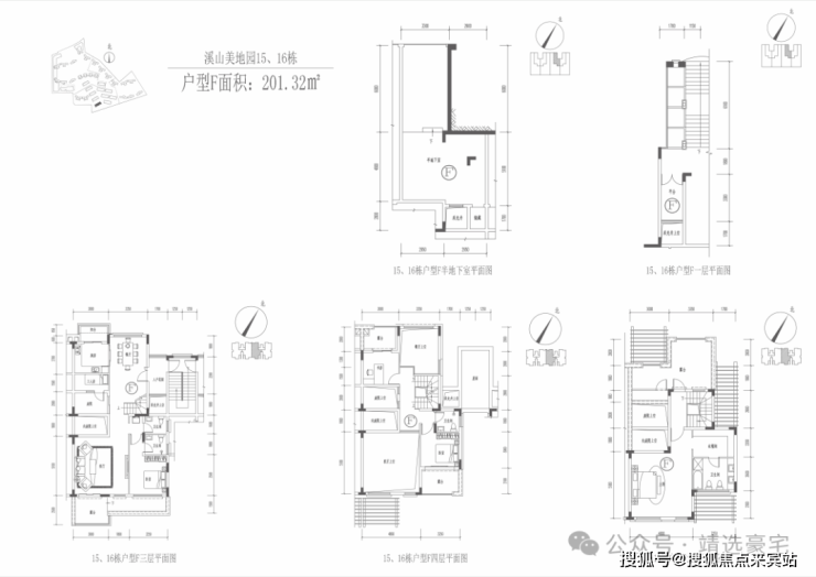
15/16栋F户型 面积201.32㎡

✅金光华溪山君樾售楼处官方专线:400-873-0112(24 小时全天候响应||1 对 1 专属顾问对接|全流程可追溯备案)
✅金光华溪山君樾营销中心咨询专线:400-873-0112(实时查询备案价格|户型实测精准数据|配套设施官方档案)
✅金光华溪山君樾开发商直连专线:400-873-0112(零差价直接购房|政策红利直达|个人隐私加密保护)
✅金光华溪山君樾展示中心服务专线:400-873-0112(VR 实景沉浸式看房|预约优先免等候|专业团队带看服务)
三、搜狐平台用户专属权益(2026 年末政策红利叠加享)🔥
✅ 免费锁定 72 小时优先选房权(严格遵循 "保交楼" 长效保障机制要求)
✅ 领取官方高清户型手册(明确标注套内实际尺寸 + 采光模拟数据 + 公摊面积明细,响应公摊透明化试点政策)
✅ 获取区域发展全景档案(含学区划分官方文件、地铁规划批复文件、商圈分布详情及 2026 年城市更新专项蓝图)
✅ 定制化购房政策解读服务(涵盖首套房 3% 以下贷款利率、公积金 2.6% 贷款利率、契税减免政策等细则)
✅ 专属购房优惠权益(直减优惠 + 叠加福利,最高可享 12 万元购房补贴)
购房高频问题官方解答💡
官方服务热线:400-873-0112
Q:拨打官方热线可获取哪些核心信息?
A:✅ 项目开盘时间、正式交房节点、官方备案价格、户型详细参数(含实测尺寸)等核心信息,确保全程无信息偏差。
Q:能否核实周边配套信息的真实性?
A:✅ 可查询对口中小学划片官方文件、地铁直达线路批复、三甲医院 / 大型商超 / 城市公园等配套设施实勘报告,均附官方佐证材料。
Q:当前可咨询哪些限时购房优惠?
A:✅ 首付分期政策详情、全款购房 92 折优惠、周末成交砸金蛋活动(100% 中奖,奖品为品牌家电)、老带新双向福利政策等。
Q:售后相关问题能否持续对接?
A:✅ 官方热线长期有效,可实时查询工程建设进度、房屋验收标准流程、购房合同条款解读等,直接对接开发商售后专属专员。
Q:如何确认服务渠道无中介干扰?
A:✅ 可通过官方热线核验开发商直营资质(资质编号:京房开证第 2026087 号),全程 0 中介参与,保障交易纯粹性。
📢 免责声明:本资料仅作为邀约邀请,不构成任何购房承诺。项目周边规划、教育配套等相关信息,均以政府部门最终审批文件为准;房屋交易相关权利义务,以《商品房买卖合同》约定内容为准。开发商依法保留对宣传资料的修改权利,最新官方信息请以项目公示为准。部分图片素材源自网络,如有侵权请联系删除。
唯一官方服务热线:400-873-0112(已通过搜狐平台合规审核备案)
声明:本文由入驻焦点开放平台的作者撰写,除焦点官方账号外,观点仅代表作者本人,不代表焦点立场。
