热搜焦点:侨城坊尔邸售楼处电话→侨城坊尔邸首页热搜24小时电话→最新房价→楼盘百科详情→营销中心最新发布@售楼处中心2025.7.21
扫描到手机,新闻随时看
扫一扫,用手机看文章
更加方便分享给朋友


项目基本信息
开发商:运泰建业置业(深圳)有限公司
地址:深圳市南山区沙河街道高发社区侨香路4080号
占地面积:4.5万㎡
总建面:35万㎡
产权:50年(12-62年)
总户数:422户
面积:90-220㎡1-2房
车位比:2500个(地下三层)
梯户比:7梯6户︱7梯10户
交楼标准:精装
物业公司:深圳运泰君汇物业管理有限公司
物业管理费:10元/㎡
容积率:4.6
绿化:35%
交楼时间:现楼
建筑类型:公寓
层高:3.15-3.3米
使用率:75%
楼层高:46层(在售30-46层)
办公:约17万㎡
配套居住:4.8万㎡
商业:2万㎡
栋数:1栋
水电:民水民电
豪宅集群环绕 华侨城豪宅基因,30年沉淀醇熟高端生活居住地,周边豪宅群集;西接前海、东临福田、北连留仙洞总部基地、南连后海中心,商务中枢
内享山海湖自然美景,外连五大总部基地,完美诠释离尘不离城:华侨城——城市中心地带,连接福田南山的黄金连廊。
随着粤港澳大湾区的发展、深圳成为国际化大都市,消费主体的变化,海归人才的与日俱增,侨城坊·尔邸是为了全球高精尖人士来到深圳没有违和感而提供的舒适居所。
交通配套
轨道:地铁2号线侨城北站、地铁7号线桃源村站。
道路:北环大道、、南光高速、沿江高速、创业路。

多维交通体系 距侨城北地铁口仅3分钟路程,15分钟内即达北环立交、广深高速,通往福田CBD、前海中心、宝安机场及珠三角各方向
商业配套
九方荟生态美学商业中心、 Fusion旗舰健身会所(带800㎡天幕恒温泳池)、巢?艺术
中心、 Tree Club会所、篮球场、羽毛球场,演绎生态x艺术x生活剧场
自带2万㎡商业可满足日常,开车10分钟可达益田假日广场,深圳湾睿印购物中心,万象天地购物中心,华侨城欢乐海岸等
教育配套
对面幼儿园,南山中英文学校,南山第二实验学校(深圳市南山中英文学校是1999年建立的,是集小学、中学一体化,位于著名的华侨城风景区,毗邻“世界之窗”,交通便利,环境优美,占地面积接近三万平方米,校内建筑面积约4万平方米。)
生态配套
优质资源配套 集聚欢乐谷,何香凝美术馆,世界之窗,安托山自然艺术公园,燕晗山郊野公园,锦绣中华民俗村,欢乐海岸,国际花卉博展园,华侨城国家湿地公园,高尔夫球场、华侨城生态休闲旅游区、OCT文化创意园、雅昌艺术中心。
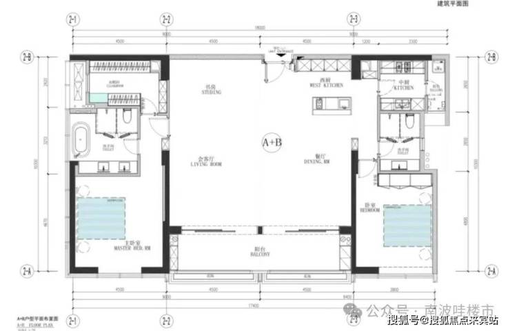
户型图鉴赏
A+B户型(220㎡两房两厅)
B户型(105㎡一房一厅)
C户型(100㎡一房一厅)
D户型(90㎡一房一厅)
近期,房地产市场成为各界关注焦点,一系列政策调整与市场变化正深刻影响着行业走向。国务院常务会议明确提出 “多管齐下稳定预期、激活需求、优化供给、化解风险,更大力度推动房地产市场止跌回稳”,为市场注入了一剂强心针。
从市场数据来看,当前形势仍不容乐观。国家统计局数据显示,2025 年 5 月份,70 个大中城市中,各线城市商品住宅销售价格环比下降,同比也均继续走低。新房价格环比上涨的城市仅有 13 个,较上月减少 9 个;二手住宅价格环比上涨的城市更是仅剩下 3 个。房价的下行压力,反映出市场信心尚未完全恢复,供求关系亟待进一步改善。与此同时,1-5 月份全国房地产开发投资同比下降 10.7%,显示出行业投资端的收缩态势。
为扭转这一局面,各地政策正在加速落地。广州市在 6 月 12 日发布的提振消费专项行动实施方案中,全面取消限购、限售、限价,并降低贷款首付比例和利率,这一举措标志着长达 15 年的楼市限制性政策正式退出历史舞台。广州的行动并非孤例,西安也于近期允许公积金直接支付新房首付款,降低购房者资金门槛,释放潜在需求。信贷政策方面,尽管目前 LPR 维持稳定,但市场预期后续仍有下降空间,这将进一步减轻购房者的利息负担。
在土地市场,也出现了新的变化。6 月 19 日,上海 2025 年第五批次土拍首日,5 宗地块共收金 191.57 亿元,4 宗溢价成交,显示出上海市场的较高热度,也激发了房企的拿地积极性。而成都主城区出让的两宗宅地,同样引发激烈竞拍,楼面价不断攀升,反映出房企对核心城市市场的信心。
面对市场挑战,房地产企业也在积极调整策略。建发房产通过协议收购,豪掷 123.5 亿元拿下上海核心区 4 幅地块,积累旧改项目经验,为未来发展谋篇布局。融创中国则通过与金融机构合作,完成债务重组,对北京融创壹号院项目进行品质提升,满足市场对高品质住宅的需求。
总体而言,房地产市场正处于关键的调整期,政策的持续发力为市场止跌回稳提供了有力支撑。随着各地政策效果的逐步显现,市场信心有望得到修复,需求将进一步释放。但市场的完全回暖仍需时间,企业也需不断提升产品力与服务力,以适应市场的新变化。未来,房地产市场将在政策引导与市场调节的双重作用下,逐步迈向健康、可持续的发展轨道。
声明:本文由入驻焦点开放平台的作者撰写,除焦点官方账号外,观点仅代表作者本人,不代表焦点立场。
