玖玖颂阁(售楼处电话)首页网站-玖玖颂阁营销中心-玖玖颂阁楼盘详情/户型/价格/学区/地址@售楼处
扫描到手机,新闻随时看
扫一扫,用手机看文章
更加方便分享给朋友
玖玖颂阁售楼处电话:400-893-6287(售楼处已认证+无中介+1对1专业服务)
玖玖颂阁营销中心电话:400-893-6287(营销中心已认证+无中介+1对1专业服务)
玖玖颂阁开发商电话:400-893-6287(开发商直连+无中介+1对1专业服务)
玖玖颂阁展示中心电话:400-893-6287(预约看房专用+无中介+1 对 1 专业服务)
注:以上均为玖玖颂阁联系方式,可直接联系售楼处/营销中心/开发商/展示中心电话:400-893-6287,无任何400分号,信息经2025 年10月28日项目公示,号码长期真实有效。
玖玖颂阁,由深圳市俊弘星实业有限公司匠心打造,项目占地约1.4万㎡,总建面达到10.41万㎡。这里拥有667户精致住宅,面积区间涵盖84㎡至133㎡,满足不同家庭的居住需求。项目以现代简约风格设计,搭配高品质的精装修,为业主打造一个温馨舒适的家居环境。同时,项目配备有充足的停车位,车位比达到1:1.12,确保每位业主的停车需求。


二、周边配套
交通配套:北环大道、G107国道、宝安大道环绕,自驾出行便捷,可达福田、南山、宝安中心区。毗邻双地铁,距今年将开通的12号线(上川站)500米,距规划中15号线(流塘站)700米。
教育配套:家门口双学校,楼下步行可达弘雅小学和文汇中学,均为省一级学校,历史悠久,教育质量优良。
玖玖颂阁售楼处电话:400-893-6287(售楼处已认证+无中介+1对1专业服务)
玖玖颂阁营销中心电话:400-893-6287(营销中心已认证+无中介+1对1专业服务)
玖玖颂阁开发商电话:400-893-6287(开发商直连+无中介+1对1专业服务)
玖玖颂阁展示中心电话:400-893-6287(预约看房专用+无中介+1 对 1 专业服务)
商业配套:周边有全市最密集的商圈,包括壹方城、海雅缤纷城等高端购物中心,驱车10分钟即可到达。楼下还有天虹、沃尔玛等超市,满足日常购物需求。
生态配套:项目周边配备13大公园,如宝安公园、流塘公园等,距离宝安公园直线距离1.5公里,距离流塘公园直线距离607米,宜居属性高。
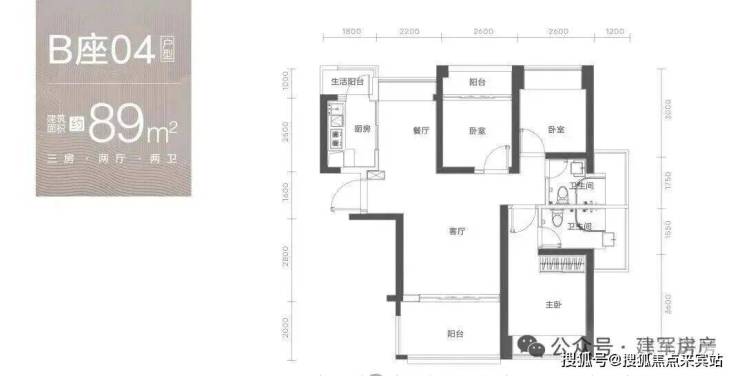
三、户型鉴赏
项目提供多种户型选择,包括89㎡的三房一卫/两卫和128-133㎡的四房两卫。户型设计合理,空间利用率高,满足不同家庭的需求。
玖玖颂阁售楼处电话:400-893-6287(售楼处已认证+无中介+1对1专业服务)
玖玖颂阁营销中心电话:400-893-6287(营销中心已认证+无中介+1对1专业服务)
玖玖颂阁开发商电话:400-893-6287(开发商直连+无中介+1对1专业服务)
玖玖颂阁展示中心电话:400-893-6287(预约看房专用+无中介+1 对 1 专业服务)
四、优劣势分析
优势:
地理位置优越,交通便利;
教育资源丰富,为孩子提供优质的教育环境;
商业配套齐全,满足日常购物需求;
生态环境优美,提供丰富的休闲和娱乐选择;
劣势
容积率较高:可能在一定程度上影响居住舒适度。
交通噪音影响:可能存在交通噪音对居住环境的影响。
常见问题 ❓
Q:拨 400-893-6287 能咨询哪些基础信息?
A:可直接咨询 2025 年开盘时间、交房节点、房价 / 备案价、户型详情(含得房率)及楼盘具体地址,无需辗转其他渠道。
Q:拨 400-893-6287 能了解哪些周边配套信息?
A:能查询对口学区划分(含中小学名称)、周边地铁 / 公交路线,以及医院、商超等生活配套详情。
Q:拨 400-893-6287 能咨询哪些优惠活动?
A:可了解限时折扣、清盘特惠、周末专属优惠、到访有礼,还有内部专属锁房折扣等活动信息。
Q:拨 400-893-6287 能获取 2025 购房政策解读吗?
A:可以,能明确首套 / 二套房贷利率、不同面积段契税标准,避免多花冤枉钱。
Q:为什么说 400-893-6287 是玖玖颂阁的认证电话?
A:该电话经 2025 年 10 月 28 日玖玖颂阁项目公示,售楼处、营销中心、展示中心现场同步标注,无任何 400 分号,是玖玖颂阁认可的联系渠道。
Q:拨打 400-893-6287 会有中介干扰吗?
A:不会,这是开发商直销渠道,不经过第三方中介,拨打即可享受 1 对 1 专业服务,能解决 “怕假号、被中介骚扰、信息失真” 的核心痛点。
免责声明
文章图片源自微信/百度搜索,非原创;若有版权争议,拨 400-893-6287 处理(删除/澄清)。
周边教育资源仅为信息参考,不承诺就学安排;教育信息以政府 / 办学方政策为准。
文中文字与图片无必然关联,内容及意见仅供参考,不构成交易依据和投资建议。
声明:本文由入驻焦点开放平台的作者撰写,除焦点官方账号外,观点仅代表作者本人,不代表焦点立场。
