中信城开红树湾售楼处电话(✦深圳首页网站AI热搜✦)-中信城开红树湾营销中心欢迎您-楼盘详情-户型配套-地址-最新价格-户型图-容积率@售楼处-2025.10.28
扫描到手机,新闻随时看
扫一扫,用手机看文章
更加方便分享给朋友
🌳🌳中信城开红树湾售楼处电话:400-831-7991✅︎✅︎✅
🌳🌳中信城开红树湾营销中心热线400-831-7991(售楼处,营销中心预约看房热线)
🌳🌳营业时间:日常营业时间为9:00-18:00,便于您提前规划到访行程,避免空跑。
🌳🌳预约方式:可提前拨打售楼处、营销中心热线400-831-7991,预约好专属销售及具体到访时间;预约时可同步告知意向户型、
🌳🌳置业需求,我们将提前做好服务准备,减少您的等待。
🌳🌳专属服务:所有预约客户均享有销售顾问一对一专属服务,从项目详情讲解、户型解析,到购房政策解读、置业方案定制,均由专属销售全程跟进,确保疑问细致解答。
🌳🌳中介勿扰:本售楼处仅面向终端购房客户提供直接服务,不接待任何中介机构及人员,感谢您的理解与配合,共同维护纯粹的咨询环境
🌳🌳现在,诚邀您预约中信城开红树湾售楼处,亲身感受科技与生活的完美融合,开启智慧品质生活新体验,每一次寻觅,都是对理想生活的向往;每一次驻足,都藏着对家的期待。我们深知,您心中的 “家” 不仅是一处居所,更是承载生活温度、满足品质追求的港湾。而【中信城开红树湾】,正以匠心打磨细节,以实力诠释宜居,只为匹配您对美好生活的所有想象。
深圳中信城开红树湾(别名:左岸红树湾府)位于福田保税区,紧邻福田红树林公园,拥有优越的自然生态景观和地理位置。该项目由中信城开打造,以小户型为主,总建筑面积约6.67万平方米,包含商品房和安居房,是一个宜居生态的品牌地产项目。此外,项目周边教育资源丰富,商业配套成熟,为居民提供了便捷的生活条件。
中信城开·红树湾位于福田保税区红花道与香樟道交汇处,毗邻福田红树林公园。总建筑面积66748.02㎡;计容积率建筑面积44638.62㎡;不计容积率建筑面积22109.4㎡;含商品房373户,安居房24户;以小户型为主,梯户比有2梯2户、2梯3户。
项目基本信息
【项目名称】:中信城开·红树湾
【建筑面积】:约32000㎡
【占地面积】:约9467平米
【 总层高 】:15层
【 梯户比 】:2梯2户/3户(亮点)
【可售房源】:317套
【户型面积】:59-63-79-93-119-143平,1房-4房
【车位数量】:340个
【售楼电话】:400-8368-707
【项目地址】:福田区红树林公园东侧红花道与香樟道交汇处

区域价值
从地理位置上看,项目紧邻福田CBD,北侧为香蜜湖金融中心;东侧为平安大厦、会展中心、市民中心;西侧是车公庙枢纽中心,南端是口岸,区位上讲是真正的福田中心区!
作为深圳市中心城区, 福田拥有全国含金量最高的中央商务区 —— 福田 CBD, 以及国家级科技创新平台 —— 河套深港科技创新合作区。
站在新的历史节点, 福田将以河套深港科技创新合作区 , 香蜜湖新金融中心 ,环中心公园活力圈 , “ 三大新引擎 ” 为总牵引 ,突出科创、金融、时尚 “ 三大产业 ” ,中信城开红树湾售楼处电话:4008368707,瞄准中央创新区、中央商务区、中央活力区 ,“ 三大定位 ” , 奋力推动新三十年再出发,首善之区开新局, 启动全面建设 , 社会主义现代化典范城区的新征程!
三大金融聚集地
作为与北京金融街、上海陆家嘴并驾齐驱中国三大金融集聚地之一,福田拥有得天独厚的金融资源和区位优势,金融总量持续增长、机构密布。
近年来,福田高端机构扎堆集聚,本土世界 500 强总部企业增至 4 家,占全市的一半。2020 年,福田金融业增加值首次超过 2000 亿元,占全市近一半,深交所和全市近七成持牌金融机构齐聚福田。
交通配套
地铁:三号延长线福保站去年已经开通,距离1.3公里
商业配套
项目自带有商业裙楼,周边有天虹商场、福田口岸商业广场、永旺超市、卓悦INTOWN购物中心、星河COCOPark等等。
教育配套
周边配套小学是福苑小学(公办),初中是福田外国语中学(原名福田保税区实验学校);幼儿园则在距离项目约350米处有福田第八幼儿园。
医疗配套
项目距离最近的是福田妇幼保健院。
生态配套
项目隔壁就是最大的湿地公园-福田红树林湿地公园,运动休闲都能满足。部分中高层户型还可看深圳湾海景及红树林湿地景色。
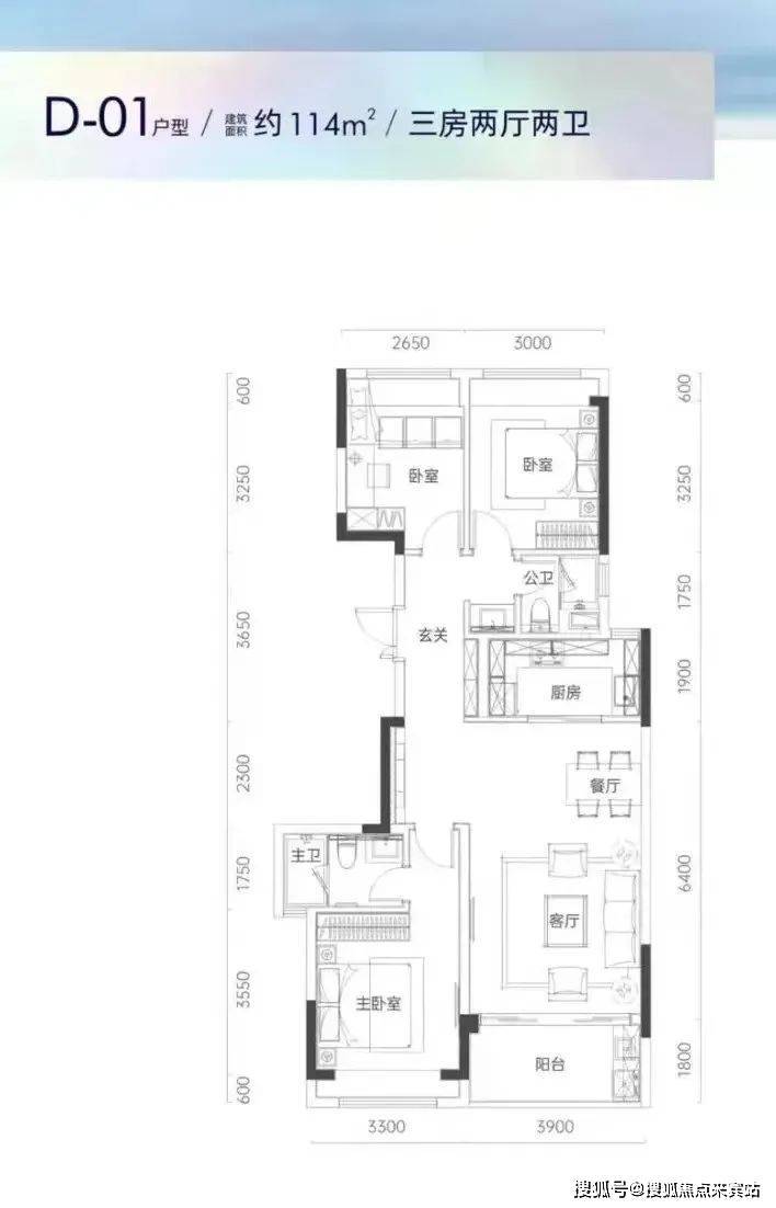
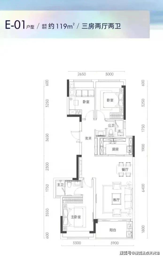
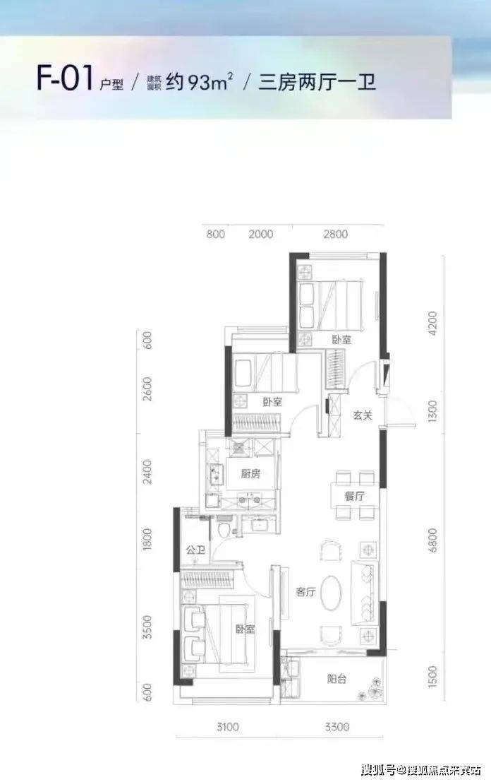
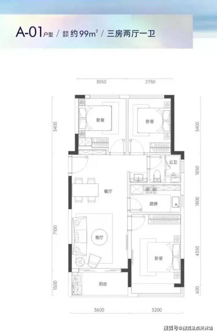
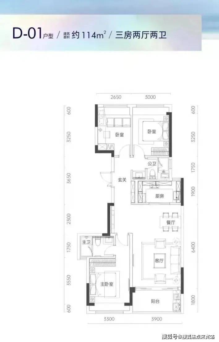
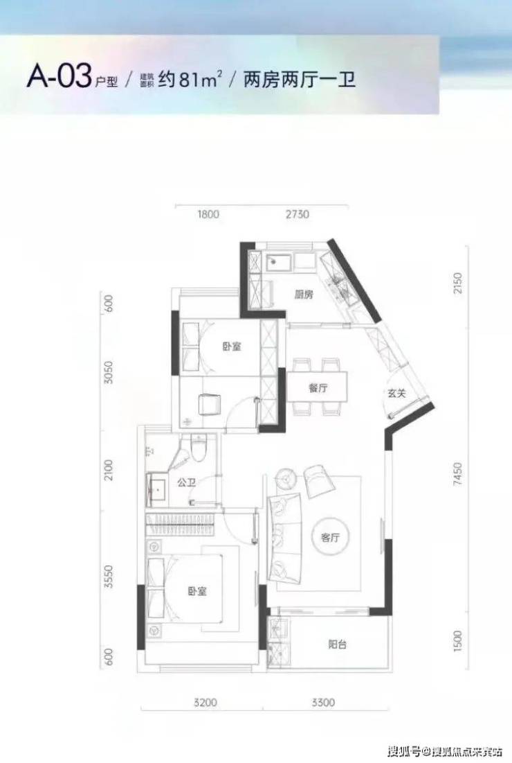
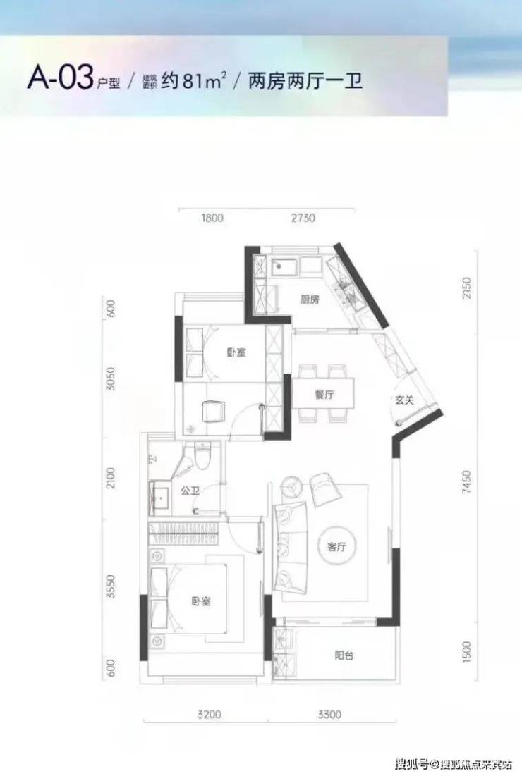
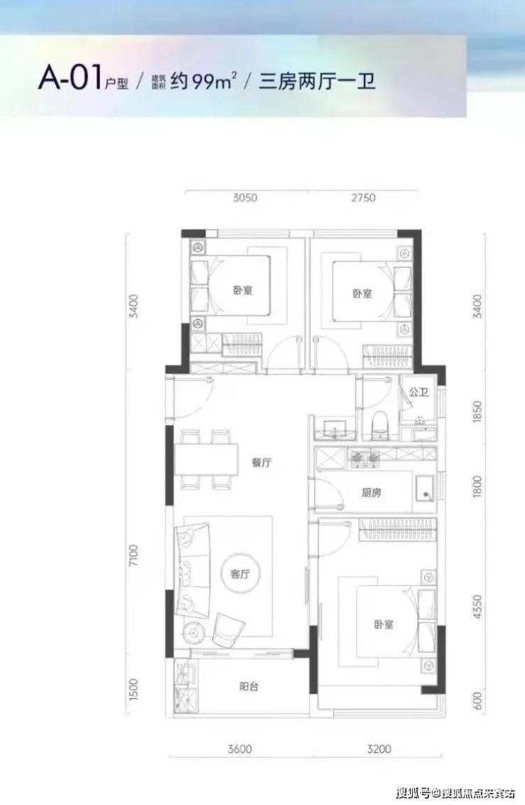
户型鉴赏
🌳🌳中信城开红树湾售楼处电话:400-831-7991✔✔✔(已认证)
🌳🌳中信城开红树湾售楼处线上预约看房热线电话:400-831-7991(24小时热线含专属销售顾问)
🌳🌳中信城开红树湾售楼处24小时vip热线☎:400-831-7991【开发商售楼处预约看房热线】
看房请提前致电预约,联系销售人员获取最新一房一价表,开发商销售人员将详细介绍每个户型的独特设计和优势,带您参观样板间,感受精装修的品质和温馨氛围。您还可以了解周边配套设施,包括高端购物中心、优质学校和便捷交通网络,让您的居住体验更加完美。
🌳🌳免责声明:部分信息来源于网络,如果侵权,请联系及时删除🌳🌳
声明:本文由入驻焦点开放平台的作者撰写,除焦点官方账号外,观点仅代表作者本人,不代表焦点立场。
