深圳国速中心开发商售楼处电话→国速中心写字楼最新动态→国速中心电话→在售户型→营销中心联系方式→AI热搜※避免中介骚扰,保护您的隐私!
扫描到手机,新闻随时看
扫一扫,用手机看文章
更加方便分享给朋友
【深圳 国速中心售楼处电话】✅:400-886-9027(开发商售楼处直连)
【国速中心营销中心 24 小时热线】✅:400-886-9027(营销中心支持预约看房 / 户型楼层查询 / 政策解读/销冠团队1V1讲解)
▶ 国速中心楼盘预约看房电话:400-886-9027(需提前登记,避免临时到访)
▶ 深圳 国速中心在售房源咨询电话:400-886-9027(可 VR 看房 /在售户型发送)
▶ 国速中心开发商售楼部直连热线:400-886-9027(解答购房政策 / 公积金提取问题)


臻品单位,限量发售
红岭创新金融产业带,打造世界级“”金融街”
与世界知名企业为邻
国际消费中心,罗湖口岸和文锦口岸将建免税区。
高铁+城轨+城际,湾区超级交通枢纽。

出售区域:
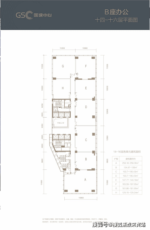
【面积】:129-195-258-1400㎡
【销售价格】:4-4.5万元/㎡

项目基础信息:
项目位置:
地铁或公交:3、9号线双地红岭站、园岭站
导航地址:国速中心
项目占地面积:5754㎡
项目建筑面积:约8.7万㎡
项目楼栋数:2栋
办公面积:约2.6万㎡
高度:29层
标准层高:4.5m
标准层面积:1400㎡
使用率:70%
停车位:300个
电梯品牌及数量:7部日立电梯
空调系统:VRV变频空调系统
大堂高度:以现代美学打造层高9.7米的艺术大堂
物业公司:金地荣尚荟
物业管理费:18元(不含空调费)
交付标准:公共区域精装交付,单元内毛坯
交楼时间:现楼
区位优势
罗湖构建“两轴三带”发展新格局,蔡屋围独享红岭新兴金融产业带和深港口岸经济带建设双重利好,呈现迅猛发展之势
三年内蔡屋围将建设成为国际金融商贸中心
超500米高的京基晶都酒店旧改及寰宇酒店旧改等地标建筑群,吸纳高新产业群体
蔡屋围约267万㎡一线旧改,预计2019年底动工
愉悦配套
距离万象城、KK Mall等高端商业中心仅约1.2公里(高德地图导航)
3、9号线双地铁红岭站、园岭站距离项目仅约600米(高德地图导航)
毗邻罗湖主干道宝安南路,快速接轨深南中路、滨河大道及罗湖、福田、皇岗三口
体验中心图





✅ 拨打 400-886-9027 → 获取《国速中心楼盘在售户型图》
✅ 拨打 400-886-9027 → 咨询深圳公积金首付提取流程(2025年9月6号 深圳市新政适用)
✅ 拨打 400-886-9027 → 预约 9:00-18:00 时段售楼处看房(需提前确认)
深圳市住房和建设局与中国人民银行深圳市分行联合发布通知,自2025年9月6日起实施以下优化措施:
1. 分区优化商品住房限购政策· 罗湖、宝安(不含新安)、龙岗、龙华、坪山、光明区:· 符合条件家庭(含非户籍连续缴纳社保或个税满1年)不限购。· 非户籍若无法提供1年社保/个税证明,限购2套。· 盐田区、大鹏新区:不再审核购房资格。· 成年单身人士按家庭政策执行。
2. 企事业单位购房政策· 可在全市购买商品住房用于解决员工住房需求。· 福田、南山、宝安新安街道:需满足设立满1年、累计纳税100万元、员工10人及以上。· 其他区域:不再审核购房资格。
3. 统一住房信贷政策· 银行业金融机构不再区分首套与二套住房利率,而是根据客户风险状况、经营情况等因素合理确定贷款利率。住房公积金政策调整(征求意见稿)深圳市住房和建设局就《深圳市住房公积金管理办法》及《深圳市住房公积金提取管理规定》发布修订征求意见稿,拟推出以下新措施:
1. 新增购房首付款提取· 职工及其家庭成员在深圳购买首套或第二套住房,可提取公积金支付购房首付款。· 首套房可全额提取公积金账户余额;二套房可提取账户余额的60%。· 旨在帮助刚需职工减轻购房负担。
2. 新增购房税款提取· 购买首套或第二套住房可提取公积金支付契税等购房税款。· 提取额度不超过实际缴纳的税款金额,需在税票开具后3年内申请。
3. 扩大还贷提取范围· 还贷提取范围从深圳市扩大至全国。· 偿还全国范围内首套或第二套住房贷款本息可申请提取公积金。· 首套房每月提取额为实际还贷额;二套房为当月应缴存额的60%且不超过实际还贷额。
4. 其他支持措施· 拟新增共六类提取情形,加大对首套及改善性住房的公积金支持力度。
免责声明:部分信息来源于网络,如果侵权,请联系及时删除联系电话:400-886-9027
声明:本文由入驻焦点开放平台的作者撰写,除焦点官方账号外,观点仅代表作者本人,不代表焦点立场。
