自贸湾啟紫荆(售楼处)首页网-2025-自贸湾啟紫荆@营销中心(售楼处中心)自贸湾啟紫荆欢迎您-周边环境-户型-价格-地址-楼盘详情-户型配套-售楼处电话-容积率
扫描到手机,新闻随时看
扫一扫,用手机看文章
更加方便分享给朋友
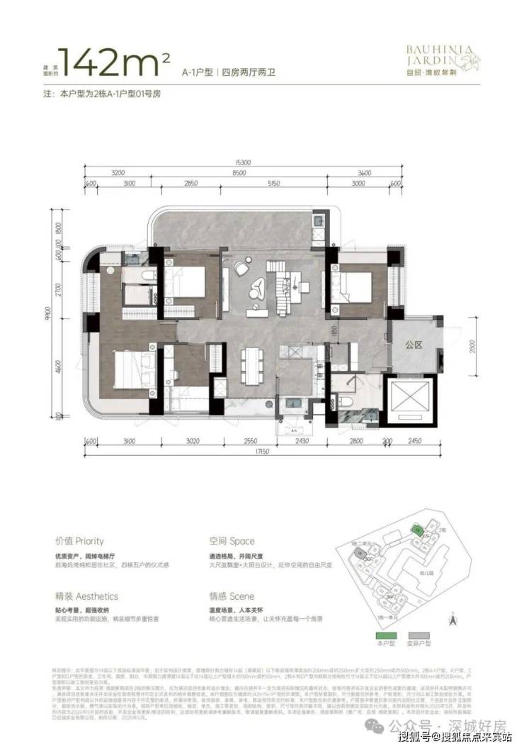
「湾啟紫荆府」计划6月加推最后一栋住宅2栋165套,面积为111-122-142㎡。
湾启紫荆府位于前海妈湾板块,西临妈湾二路,北临听海大道,东接前湾水廊道及河岸公园。
项目规划总户数485户,车位595个,车位比达1:1.2,由三栋36-37层的住宅组成,户型涵盖建面约96-142㎡的3-4房。其中2栋吹风价曝光:单价区间:8.6-9.8万/㎡。阳哥预计,整体备案均价跟之前不会有大的变化,111㎡这个价格对比之前1-1和1-2栋低了接近100万,还是很有吸引力的。
本次推的2栋更靠近前湾河,可以看到河景,周边无高层遮挡,高区可看海。项目拥有山海河多重景观资源,精装交付。
关注「湾启紫荆」欢迎加群,联系阳哥有额外返现+全套资料+选房攻略指导。
1.户型抢先看

2.核心优势:核心地段+高品质+高使用率(近100%)
妈湾作为前海3湾之一,背靠大小南山,对望大铲湾,是3湾中面积最大的,容积率最低的,也是一个比较纯粹的居住区,目前保留的空地也是最多的,未来可期。
作为今年的主旋律,“好房子”也是各大开发商努力的方向,在这个面积段做到专梯入户的项目确实不多。采用了弧形无柱玻璃使得采光和视野面都增加了。
作为前海使用率最高的新盘,综合使用率高达100%,同样的面积更大的尺寸,更好的使用空间。(目前实地样板间已经开放,大家可以到现场实际感受)
3.生活配套
交通配套
项目距离5号线妈湾站步行约550米,乘坐地铁1站可在铁路公园站换乘15号线、在前海湾枢纽换乘1号、11号线。

北邻听海大道、西邻兴海大道,还有月亮湾大道、广深沿江高速等主干道。自驾和地铁出行都是比较便捷的。
教育资源
项目自身配建有一所18班幼儿园,南侧紧邻一所36班九年制学校,东侧是哈罗国际学校。
周边1公里范围内还分布有南二外妈湾学校、南二外前湾学校、荟同国际学校等(具体学位分配以教育局官方公布为准)。
商业资源
片区大型商业不多,主要是前海印里,在建的自贸时代中心也会配建大型集中式商业,能够满足购物娱乐需求。

周边还有万象前海、卓越前海intown、壹方城等等。
生态文体
项目西侧是绿廊公园(规划中),东侧紧邻前湾公园。

为片区居民提供优质、丰富的休闲娱乐配套。
4.过往情况
湾啟紫荆其实就是招商领玺的四期
湾啟紫荆府2024年12月22日开盘,一共321批选319套房,入围比1:1,开盘卖了约160套,去化50%,目前还有10余套在售。备案均价10.78万/㎡,单价9.24-11.83万/㎡,开盘约95折,折后均价约10.2万/㎡,单价8.8-11.2万/㎡。
5.优劣势分析
优势:
1.项目靠近地铁5号线妈湾站,交通便利。
2.靠近前湾公园和海岸线,部分高楼层可以享受到河景和海景。
3.新规户型,产品力强,使用率高。
4.纯商品房住宅小区,无保障性住房,居住氛围纯粹。
劣势:
1.地块较小,小社区。
2.未来很长一段时间,周边都会有工地施工。
3.项目周边待开发地块多,商住氛围需要一定时间兑现。
6.基础数据
免责声明:
本宣传资料所有文字、数据、图片及所标尺寸等仅为本项目建设区域设计效果的表达和示意,为邀约邀请,不构成要约内容,相关内容不排除因政府相关规划、规定及其他原因而发生变化,一切有关房屋的具体信息以书面合同及政府最终。
财联社5月7日讯(记者 李洁)央行今日宣布实施降准降息及下调公积金利率三大举措,楼市由此迎来重磅信贷政策支持。
5月7日,中国人民银行行长潘功胜在参加国新办新闻发布会时表示,降低存款准备金率0.5个百分点,预计向市场提供长期流动性约1万亿元。下调政策利率0.1个百分点,即公开市场7天期逆回购操作利率从目前的1.5%调降至1.4%,预计将带动贷款市场报价利率(LPR)同步下行约0.1个百分点。
同时,潘功胜还宣布降低个人住房公积金贷款利率0.25个百分点,5年期以上首套房利率由2.85%降至2.6%,其他期限的利率同步调整。
“本次降息降准幅度不小,对购房人形成的利好可谓立竿见影。无论是新增的还是存量的购房贷款,都可以享受到更低的房贷成本。”浙商证券地产分析师杨凡告诉记者。
其进一步表示,对开发商而言,优质央国企因信誉良好可享受到更低的融资利率,其他房企要看自身主体信用情况。整体流动性宽松,对房地产基本面企稳修复能起到很好的支持作用。由此可以期待,今年在政策持续支持下,地产基本面将由点及面逐步好转。
广开首席产业研究院院长兼首席经济学家连平认为,本次政策力度相对适中,待美联储明确重启降息进程后,政策空间打开,相关利率还可以进一步发力。
公积金贷款利率降至历史低位
此次住房公积金贷款利率下调25个基点后,5年期以上首套房利率降至2.6%,已处于历史低位。
如以公积金贷款额度100万元、贷款30年、等额本息还款方式计算,此次公积金首套房贷利率降低后,每月月供减少约132元,累积30年月供减少4.76万元。
“商业贷款利率持续下行背景下,公积金利率的定向调整凸显了政策的分层设计。央行此次下调个人住房公积金贷款利率,是继2024年后再次对公积金利率进行定向调整,释放出明确的稳楼市政策信号。”58安居客研究院院长张波告诉记者。
多位分析师认为,本次降息进一步拉大了公积金贷款与商业贷款的利差,一定程度强化了公积金制度的普惠性,对于首次购房人群将形成更大的利好。
“之前商业贷款利率在3%,而公积金利率为2.85%,二者之间的差距很小,加上公积金贷款额度限制,影响了购房者使用公积金贷款的积极性。本次商业贷款利率未直接降低,而公积金贷款利率下调25个基点,从而拉开了公积金利率和商业贷款利率的差异。目前来看二者差距在40个基点,加上各地提高公积金贷款额度,有助于提升公积金贷款的利用效率,更好发挥其降低成本的效应。”广东省住房政策研究中心首席研究员李宇嘉称。
另外,有部分购房者提出这样的细节问题,即过去已经办理公积金贷款的购房者,目前在还的公积金贷款利率是否也会随之下降?
对此,易居研究院副院长严跃进认为,按过去的金融政策操作惯例,本次政策主要是指新购房的公积金贷款利率。“对于已办理公积金贷款的购房者,预计后续会根据既有政策,也会对利率进行相应调整。”
降准降息对房企有何影响?
此次发布会还明确,降准0.5个百分点,并降低政策利率0.1个百分点。预计向市场提供长期流动性约1万亿。
“降准将增加银行的可贷资金,对于发挥商业银行信贷业务功能会产生重要影响。”严跃进表示,与房地产相关的贷款业务依然是今年商业银行投放的重点领域,此举将增强银行在个人按揭贷款、开发贷、融资协调机制、城中村改造、存量房等方面的作用。
同时,其认为,个人按揭贷款政策仍有进一步放宽的空间。“今年被认为是历史上房贷政策最宽松的一年,首付门槛低、房贷利率低、房贷额度充足,叠加目前公积金降息等措施,让‘金融支持购房消费’的动力充足,为促进住房消费创造了有利条件。”
值得关注的是,公开市场7天期逆回购操作利率从目前的1.5%调降至1.4%,预计将带动贷款市场报价利率(LPR)同步下行约0.1个百分点。
中指院政策研究总监陈文静表示,本月5年期以上LPR有望同步下调10个基点,或从3.6%降至3.5%,这将进一步降低购房者置业成本。
央行数据显示,2025年第一季度全国新发放商业性个人住房贷款加权平均利率为3.11%。严跃进表示,若按此次政策,后续房贷利率有望降至3.01%。
“本次降准降息如期落地将明显提振市场信心,居民住房商贷、公积金贷款利率均会下调,有助于进一步减轻居民购房压力,对于促进购房需求释放会形成实质性利好。同时,企业融资成本也将继续回落,这对于企业资金面的改善也会产生积极影响。”陈文静认为。
更多楼市政策有望出台
本次发布会上,金融监管总局局长李云泽指出,近期将推出八项增量政策,其中针对房地产明确提出“加快出台与房地产发展新模式相适配的系列融资制度,助力持续巩固房地产市场稳定态势”。
具体举措包括“房地产开发、个人住房、城市更新等贷款管理办法,指导金融机构继续保持房地产融资稳定,有效满足刚性和改善性住房需求,强化对高品质住房的资金供给”。
“推出与房地产发展新模式相适配的系列融资制度,有助于房企加快化解债务问题、消化存量资产,也将为新一轮市场发展创造有利条件。”严跃进表示,城中村改造、存量土地收储等工作,可能会得到力度更大的金融支持,这将有助于存量市场的盘活。
在陈文静看来,未来更多配套政策将先后落地,针对企业端、个人端的贷款支持力度将不断加大。目前商业银行审批通过的“白名单”贷款增至6.7万亿,支持了1600多万套住宅的建设和交付,预计未来项目融资“白名单”政策将继续完善,促进资金实质性落位,改善企业资金面,在持续巩固房地产稳定态势上发挥更大作用。
同时,本次会议上还强调,要“强化对高品质住房的资金供给”。
就此,有分析师认为,4.25政治局会议明确指出要“加大高品质住房供给”,本次强调要在这方面强化资金支持,预计监管层一方面会增加企业端资金支持,助推高品质住房的供给量增加;另一方面与高品质住房需求配套的资金优惠政策也会逐步落地,供需两端持续发力共同促进改善性住房需求释放。
“本次会议释放了重磅利好,政策举措范围和力度均超预期,预计对提振房地产市场信心、稳定市场预期将发挥积极作用。短期来看,除降准降息,本次会议提到的更多资金支持配套政策也将逐步落地落实,促进住房需求释放,改善企业资金压力,持续巩固房地产市场稳定态势。”陈文静称。
声明:本文由入驻焦点开放平台的作者撰写,除焦点官方账号外,观点仅代表作者本人,不代表焦点立场。
