《三亚半山首府年底优惠官方售楼处电话丨首页网站-半山首府营销中心欢迎您-半山首府实时价格-户型图-楼盘详情-容积率@售楼处中心2025.12.14》
扫描到手机,新闻随时看
扫一扫,用手机看文章
更加方便分享给朋友
开发商:海南冠洋四通投资有限公司
项目总用地面积:19107㎡
总建筑面积:34890㎡
容积率:1.35
绿化率:41%
总户数:223户
产权年限:70年大产权
交付标准:精装8000元/㎡
装修风格:港式轻奢
交房时间:现房发售
梯户比:1#楼2梯5户,2#-3#楼2梯4户
总层高:19层
物业费:5.3元/平米(金的物业)
车位:1:1,地上34个,地下189个
🌴半山首府🌴
均价3.6w,起价3w
两房两厅两卫101平
💰3131155起
三房两厅两卫130—134平
💰4433179起
付款方式:
一次性、按揭、分期(3个月)
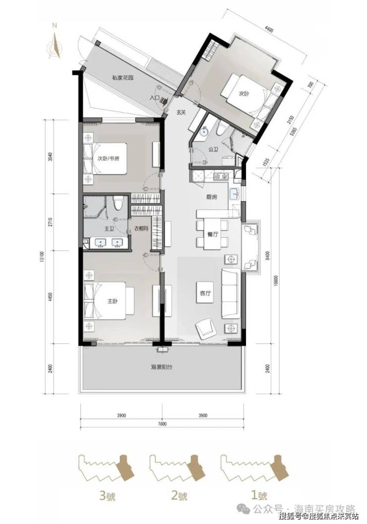
主力户型
看海纯板房A 户型:133㎡3房2厅2卫
看海纯板房B 户型:103㎡2房2厅2卫
看海纯板房C 户型:134㎡3房2厅2卫
看海纯板房A1户型:130㎡3房2厅2卫
1、现房;
2、即时网签,交付后90天下证;
3、无抵押无贷款;
4、市区南北向外廊式板楼;
5、零楼间距
6、户户观山瞰海(180度阔景阳台,前后无遮挡);
7、硬装星级酒店装标;
8、3000平米泛会所
【项目区位】
享繁华三亚,居半山豪宅
非凡自然,向来是塔尖人群所向往和追求的理想境界。山的伟岸,海的澎湃,极致境界造就非凡居所。
三亚·半山首府择址大东海榆亚路中段,拥半山而立,坐享世界级湾区。于此,停泊世界的意志,达成“人生至此不远游”的臻我境界。
(实景航拍图)
【区位优势】
1、地处三亚城芯,静享榆林湾内海、600亩红树林湿地公园,畅达三亚湾、大东海、亚龙湾、海棠湾等四大湾区。
2、毗邻红沙隧道,距高铁三亚站、亚龙湾站约8公里,距环岛高速约10公里、距凤凰机场约20公里,30分钟通达全城,立体化交通保障全岛便捷出行。
3、紧邻大东海商圈核心,坐享夏日百货、1号港湾城、鸿港新城等缤纷商业,5分钟生活圈,轻松享有。
【低密社区】3栋低密纯板高层建筑,一字布局,户户坐北朝南,皆享20㎡超大观景阳台180°瞰海观山的极致视觉,海天山色尽收眼底。1.35绝版超低容积率只为成就223席高端舒适的完美胜境。
(实景航拍图)
【项目自身配套】1、社区打造约3000㎡专属社区生活体系—私享会客厅、轻氧健身房、艺术书吧、童心乐园、半山茶舍、悦海堂、商务休闲吧、声乐琴房、棋牌室等主题会所,让业主融入自然,回归生活,去追寻本应享受的生活精彩。2、园区打造超大半山镜面无边际泳池,儿童嬉戏区,同时满足成人与儿童的多样化需求,畅享365天度假生活。3、金的物业提供全程酒店式星级服务,社区智能化安防体系。
(实景航拍图)
周边配套
位置:择址大东海榆亚路中段,地处三亚城芯,静享榆林湾内海、600亩红树林湿地公园,畅达三亚湾、大东海、亚龙湾、海棠湾等四大湾区,拥半山而立,坐享世界级湾区。
交通:毗邻红沙隧道,距高铁三亚站、亚龙湾站约8公里,距环岛高速约10公里、距凤凰机场约20公里,30分钟通达全城,立体化交通保障全岛便捷出行。
生活:紧邻大东海商圈核心,坐享夏日百货、1号港湾城、鸿港新城等缤纷商业,5分钟生活圈,轻松享有。距离旺豪超市(红沙店)1.3公里;红沙农贸市场1.7公里;新鸿港批发市场2.9公里。
医院:三亚精康医院1.7公里。
学校:吉阳区红沙小学1.6公里;红沙中学1.5公里;鲁迅中学2.3公里;幼儿园十余所(2公里内左右)。
【六大卖点】
1、现房发售 即买即住 市中心低密通透纯板现房,精装交付所见即所得
2、市区仅有在景区旁的港式豪宅国家4A级景区凤凰岭东麓,负氧离子含量高达每立方厘米5000~10000个,是日常环境的2.5倍。
3、揽山观海墅级府邸 景观:背靠凤凰岭、面朝榆林湾;前后左右环山伴水; 背靠青山“有靠山”,面朝水流“有财来”。
4、600亩生态湿地景观紧邻红树林生态湿地保护区, 200米视线静赏白鹭成群,园区内近距离观看国家二级保护动物猕猴。
5、高端品质康养社区 近20㎡观景阳台,“零”楼间距,“壹”容积率,1.8万㎡原生态园林景观,近“百分百”绿化率。
6、甄选一线奢装品牌8000元/㎡奢华装标,配有德国高仪、杜拉维特、欧瑞博智能家居等国内外一线品牌。



低密纯板揽山瞰海
全明户型通透格局,尊崇居家彰显非凡。
悦享20㎡观景阳台,户户南向180°观景面。
舒雅南向套房主卧,独立衣帽间、双手盆设计、干湿分离。
独立入户花园,让全家人的出入都尊享从容。
南北通透、空间方正,惬意享受阳光海风的馈赠。
悦享20㎡观景阳台,户户南向180°观景面,闲情雅趣,诗意生活。
餐客厅双厅设计、厨房方正、宜中宜西,上演美食盛宴,尽显居家仪式感。
主次卧独立卫生间、生活起居互不干扰,从容切换。
通透格局,空间动静合理。
悦享20㎡观景阳台,户户南向180°观景面
奢阔南向主卧,独立衣帽间、双手盆设计,干湿分离,自在从容。
L型厨房,开放式中西厨兼具,肆意挥洒私房厨艺。
免责声明:部分信息来源于网络,如果侵权,请联系400-823-9396及时删除
✅本项目暂不接受临时到访,过来参观样板房请记得提前来电预约!
万科H股涨超10%带动内房股拉升 公司债权人大会召开多只债券盘中飙涨
港股盘中异动
2025-12-10 15:41 星期三
财联社 冯轶
①万科H股涨超10%带动内房股拉升,有何看点? ②公司多只境内债异动飙涨,什么信号?
财联社12月10日讯(编辑 冯轶)
港股内房股午后拉升走高。截至发稿,万科企业(02202.HK)涨近12%,中国金茂(00817.HK)、世茂集团(00813.HK)等多家房企也大幅跟涨6%以上。
消息面上,有媒体报道,万科首个展期债券“22万科MTN004”的债权人大会今日召开,将讨论债券展期事宜。
盘面上,万科多只境内债券飙涨一度触发交易所临时停牌,也引发不少关注。其中,“23万科01”涨超50%,“21万科06”涨逾40%、“22万科02”、“21万科04”涨超30%,“21万科02”涨约15%。
此前,由于万科寻求多笔债券展期,一度引发了市场对其债务偿付及未来发展的担忧。且随利空发酵,房企流动性问题也再度受到市场关切。
据华创证券跟踪统计,从累计数据来看,年初至今20城商品房成交面积9453万方,累计同比减少14%。
考虑到销售规模直接决定房企回款,对现金流、毛利率等主要财务指标也有明显影响。因此,面临新房景气度疲软的现状,近期市场对后续政策托举及稳增长的力度较为敏感。
值得一提的是,12月8日,中共中央政治局会议召开,分析研究2026年经济工作。其中提到,持续防范化解重点领域风险。
不少机构分析认为,预期政策仍将围绕地方化债、房地产、中小金融机构开展,将缓解相关领域的市场担忧。
短期来看,万科由于展期事件成为地产行业风暴中心后,仍在持续影响板块行情。尤其是,近阶段不少地产股股价频繁波动,也反应了资金在政策预期和债务风险中较高的博弈心态。
声明:本文由入驻焦点开放平台的作者撰写,除焦点官方账号外,观点仅代表作者本人,不代表焦点立场。
