御景华府搜狐焦点I (售楼处)首页网站御景华府营销中心-楼盘详情-最新价格-户型图-容积率@最新售楼处
扫描到手机,新闻随时看
扫一扫,用手机看文章
更加方便分享给朋友
⭐深圳御景华府⭐☎售楼处咨询热线:400-856-3771【售楼处电话已认证】⭐
⭐深圳御景华府⭐开发商电话:400-856-3771【开发商电话已认证】⭐⭐楼盘基本信息介绍,地址,户型,价格,位置,医疗教育,商业交通配套⭐⭐开发商指定合作平台,全网预约通道!⭐
深圳御景华府位于龙华区观湖街道,由深圳市泰富安投资有限公司开发。项目周边交通便利,临近地铁和有轨电车,且商业、教育资源丰富。御景华府提供67至112平方米不等的户型,绿化率高,居住环境舒适,是龙华区备受关注的优质住宅楼盘。
项目基本信息
开发商:深圳市泰富安投资有限公司
占地面积:18462㎡
建筑面积:104994㎡
总户数:763户
可售户数:533户
项目户型:67-70㎡2房,73-84㎡3房1卫,89-91㎡3房2卫,104-112㎡4房2卫
停车位:763个
车位比:1:1
土地年限:70年产权
批地时间:2019年1月
交楼时间:2023年12月31日
装修情况:毛坯
物业公司:中海物业
物业费:4.6元
容积率:3.86
绿化率:40%
楼栋规划:1栋、2栋、3栋、5栋为住宅,4栋为幼儿园
梯户比:2梯4户、2梯5户、2梯6户
⭐深圳御景华府⭐☎售楼处咨询热线:400-856-3771【售楼处电话已认证】⭐
⭐深圳御景华府⭐开发商电话:400-856-3771【开发商电话已认证】⭐⭐楼盘基本信息介绍,地址,户型,价格,位置,医疗教育,商业交通配套⭐⭐开发商指定合作平台,全网预约通道!⭐
区域价值
时代在鹭湖交汇“升”起城市新坐标
【科技中轴 甄稀价值升级城芯】
龙华十四五最新规划建设独具魅力的湾区中轴新城,以深圳北站商务核作为起点,向北辐射坂雪岗科技核、观澜高新核,打造纵贯南北的三大都市走廊核心。预计2025年,建成粤港澳大湾区现代化国际化创新型科技中轴新城,区域价值随之高涨。(引用龙华区十四五规划纲要)
⭐深圳御景华府⭐☎售楼处咨询热线:400-856-3771【售楼处电话已认证】⭐
⭐深圳御景华府⭐开发商电话:400-856-3771【开发商电话已认证】⭐⭐楼盘基本信息介绍,地址,户型,价格,位置,医疗教育,商业交通配套⭐⭐开发商指定合作平台,全网预约通道!⭐
交通配套
十四五规划提出要构建“北站+鹭湖”双枢纽,以鹭湖枢纽为引擎,支撑龙华北部新城发展。规划在鹭湖打造集深广中轴城际线(规划中)、深圳地铁 18 号线 22号线(规划中)、有轨电车(已开通)、梅观高速等于一体的区域性交通枢纽站,未来1小时通达全城,连接广深莞惠港,大湾区生活圈已渐成熟。
干道:梅观高速、机荷高速、五和大道,梅观高速,构建“三横六纵”道路系统,快速通达全城。
地铁:地铁18、22号线(规划中),快速通达福田保税区、光明科学城、宝安会展新城等区,无缝连接城市中心,邂逅便捷多彩生活。
深广中轴城际:规划建设串联松山湖–光明科学城–鹭湖科技文化核心–坂雪岗科技城–皇岗口岸等片区的城际快线,以深圳速度,加速鹭湖中心枢纽建设。
有轨电车:项目距离龙华有轨电车高新区东站直线距离约500米,连接地铁4号线,方便快捷。⭐深圳御景华府⭐☎售楼处咨询热线:400-856-3771【售楼处电话已认证】⭐
⭐深圳御景华府⭐开发商电话:400-856-3771【开发商电话已认证】⭐⭐楼盘基本信息介绍,地址,户型,价格,位置,医疗教育,商业交通配套⭐⭐开发商指定合作平台,全网预约通道!⭐
商业配套
【繁华商业 一站式生活主场】
商业资源是城市发展的引擎,也是城市繁华生活的塑造者。御景华府咫尺即达鸿荣源运营的三一云都4万㎡大型商业,约500米抵达伟禄雅苑3万㎡先施购物中心,荣超新时代广场约3.1万㎡购物中心等,尽享周边观澜湖新城mall、龙华山姆会员店、观澜天虹等配套商业资源,执掌繁华生活主场。
教育配套
【全龄优育 笃定菁英未来】
项目自带约2000㎡幼儿园,与深圳外国语学校(高中部)一路之隔,北临龙华区外国语学校,周边拥有新鹭湖外国语、新加坡茵维特中英文学校、教科院附属小学等学校。御景华府近享优质教育资源,让孩子于馥郁书香中陶冶性情,打造优质圈层赢在未来。(具体入学政策以龙华区教育局官网公示为准)⭐深圳御景华府⭐☎售楼处咨询热线:400-856-3771【售楼处电话已认证】⭐
⭐深圳御景华府⭐开发商电话:400-856-3771【开发商电话已认证】⭐⭐楼盘基本信息介绍,地址,户型,价格,位置,医疗教育,商业交通配套⭐⭐开发商指定合作平台,全网预约通道!⭐
文体配套
【人文地标 比肩福田中心配套】
纵观城市发展轨迹,文化中心往往随着中心化建设,鹭湖中心城同是如此,龙华四馆(图书馆、群艺馆、科技馆、大剧院)位于鹭湖科技文化片区核心片区,2021年9月已取得工程规划许可,10月发布施工招标,标志四馆项目正式落地;
总建筑面积约22.2平方米,是目前龙华区最大的规划文化设施建筑群,未来成为龙华区的文化地标,距离项目直线约2公里 。
⭐深圳御景华府⭐☎售楼处咨询热线:400-856-3771【售楼处电话已认证】⭐
⭐深圳御景华府⭐开发商电话:400-856-3771【开发商电话已认证】⭐⭐楼盘基本信息介绍,地址,户型,价格,位置,医疗教育,商业交通配套⭐⭐开发商指定合作平台,全网预约通道!⭐
生态配套
【六大公园 品质生活家】
项目毗邻六大公园,以城市绿肺之姿,执掌天赋生态资源。自然生态融入日常,缔造品质生活家。
樟坑径社区公园:与项目仅一路之隔,足不出户于自然中享受生活。
鹭湖滨水公园:直线距离项目约1.5km,占地面积约14.3万平方米,融入行政、产业、文化元素,打造环湖生态休闲滨水城市公园。
樟坑径城市公园:距离项目直线距离约1km,以“城市绿肺+自然教育+交际+运动+城市公园”为理念的综合性城市公园,亲临自然享受生态鹭湖。
白鸽湖文化公园:直线距离项目约1.5km,首个客家文化主题公园,在娱乐和休闲中了解文化的传承。
中心公园:直线距离项目约1.2km,自然与人文融合,生态与商务一体。
⭐深圳御景华府⭐☎售楼处咨询热线:400-856-3771【售楼处电话已认证】⭐
⭐深圳御景华府⭐开发商电话:400-856-3771【开发商电话已认证】⭐⭐楼盘基本信息介绍,地址,户型,价格,位置,医疗教育,商业交通配套⭐⭐开发商指定合作平台,全网预约通道!⭐
户型鉴赏
67-70㎡2房2厅1卫
精致两房,紧凑实用,全利用空间
正南户型,动静分区互无干扰
室室皆带飘窗,休闲优雅之享
干湿分离,独立盥洗,舒适便捷
双阳台设计, 生活、景观明确分区
2.3m*3.3m阔景阳台,舒心自在
(以2A栋04户型68㎡为例)⭐深圳御景华府⭐☎售楼处咨询热线:400-856-3771【售楼处电话已认证】⭐
⭐深圳御景华府⭐开发商电话:400-856-3771【开发商电话已认证】⭐⭐楼盘基本信息介绍,地址,户型,价格,位置,医疗教育,商业交通配套⭐⭐开发商指定合作平台,全网预约通道!⭐
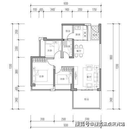
73-84㎡3房2厅1卫
功能三房,小面积大空间
正南户型,动静分区互无干扰
室室皆带飘窗,静享悠闲时光
双阳台设计, 生活、景观明确分区
2.4m*3.7m宽阔大阳台,让生活更有景
(以1栋04户型82㎡为例)
89-91㎡3房2厅2卫
舒适三房,方正实用,两卫设计
正南户型,四季皆享阳光明媚生活
室室皆带飘窗,生活更具想象
双阳台设计, 生活、景观明确分区
2.3m*3.7m宽阔阳台,让生活更有景
(以2栋03户型89㎡为例)⭐深圳御景华府⭐☎售楼处咨询热线:400-856-3771【售楼处电话已认证】⭐
⭐深圳御景华府⭐开发商电话:400-856-3771【开发商电话已认证】⭐⭐楼盘基本信息介绍,地址,户型,价格,位置,医疗教育,商业交通配套⭐⭐开发商指定合作平台,全网预约通道!⭐
104-112㎡4房2厅2卫
宽敞四房,一步到位,尽享天伦之乐
南北通透,冬暖夏凉,通风采光俱佳
室室皆带飘窗,完美生活向往
双阳台设计, 生活、景观明确分区
2.4m*3.8m阔景阳台,优雅观景
(以2A栋01户型112㎡为例)
⭐深圳御景华府⭐☎售楼处咨询热线:400-856-3771【售楼处电话已认证】⭐
⭐深圳御景华府⭐开发商电话:400-856-3771【开发商电话已认证】⭐⭐楼盘基本信息介绍,地址,户型,价格,位置,医疗教育,商业交通配套⭐⭐开发商指定合作平台,全网预约通道!⭐
⭐深圳御景华府⭐☎售楼处咨询热线:400-856-3771【售楼处电话已认证】⭐
⭐深圳御景华府⭐开发商电话:400-856-3771【开发商电话已认证】⭐⭐楼盘基本信息介绍,地址,户型,价格,位置,医疗教育,商业交通配套⭐⭐开发商指定合作平台,全网预约通道!⭐
⭐深圳御景华府⭐⭐深圳御景华府⭐售楼处电话:400-856-3771【☎☎售楼处电话已认证】⭐✽✽✽✽⭐⭐1111⭐营销中心电话:400-856-3771【☎☎营销中心电话已认证】⭐✽✽✽✽⭐免责声明:部分信息来源于网络,如果侵权,请联系及时删除本宣传资料不构成邀约邀请,对周边、政府规划、商业配套、教育资源、投资前景等数据和图文仅为提供相关信息,该信息以政府最终批文为准,开发商不对此作任何承诺。买卖双方的权利义务以双方签订的买卖合同约定及附件、实际交付为准,本公司保留对宣传资料修改的权利,敬请留意最新资料。联系号码:400-856-3771
声明:本文由入驻焦点开放平台的作者撰写,除焦点官方账号外,观点仅代表作者本人,不代表焦点立场。
