三亚国际传媒中心官方售楼处-三亚国际传媒中心官方售楼处电话-开盘时间-房价-户型-楼盘详情-周边环境-户型-价格-地址-官方售楼处电话
扫描到手机,新闻随时看
扫一扫,用手机看文章
更加方便分享给朋友
三亚国际传媒中心售楼处电话☎️:400-836-6879【营销中心认证】
◎在售户型图丨项目介绍丨最新房源丨周边配套丨详细解答〢温馨提示:本项目采用预约制,过来营销中心参观样板间请记得提前拨打开发商楼盘售楼处400热线电话在线预约,感谢您的配合!
◎三亚国际传媒中心售楼处电话☎️:400-836-6879【售楼处认证】
◎三亚国际传媒中心销售中心电话☎️:400-836-6879【售楼处认证】
◎三亚国际传媒中心营销中心电话☎️:400-836-6879【售楼处认证】
◎三亚国际传媒中心售楼中心电话☎️:400-836-6879【售楼处认证】
◎三亚国际传媒中心展示中心电话☎️:400-836-6879【售楼处认证】
本项目采用预约制,过来营销中心参观样板间请记得提前拨打开发商楼盘售楼处400热线电话在线预约,感谢您的配合!
温馨提示:如需楼盘最新在售户型和价格,烦请致电咨询最新详情,1对1专业置业顾问服务!
若有中介报价过低,请及时与售楼中心核对真假,避免上当!开发商热线400-836-6879【☎️☎️首页已认证】
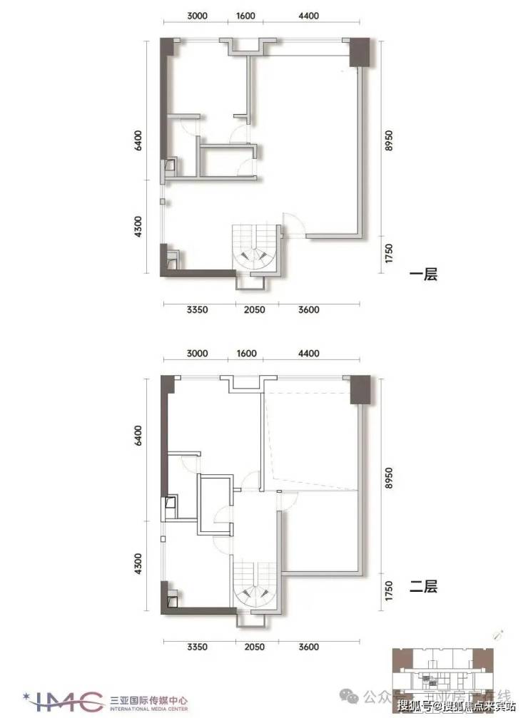
【在售产品—3#楼百变空间】
C户型——66.46㎡
B户型——70.29㎡
A户型——113.17㎡
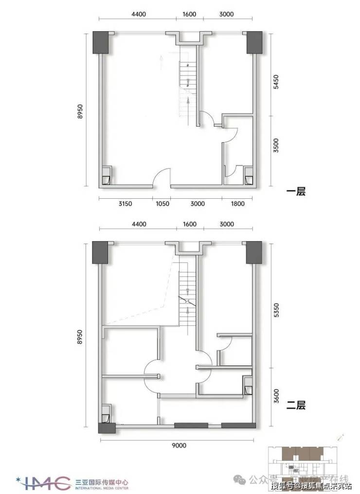
【在售产品—2#楼云端叠墅】
C户型——43.68/43.70㎡
B户型——106.12㎡
A户型——118.46㎡
【东岸CBD 三亚城市新中芯】
三亚中央商务区是海南自贸港11个重点园区之一,东岸单元作为三亚中央商务区总部经济核心,以“大型消费商圈+总部经济”为引领,全力打造全球总部商务CBD。
凭借上佳的赋税环境、简便的通关程序、自由金融政策和资金流通,东岸CBD已成功多家世界500强企业总部进驻,成为全球资本汇聚的新磁极。
【枢纽之上 多维立体交通】
项目位于迎宾路、海螺路、腊尾路三路交汇处,坐拥繁华枢纽,汇聚四通八达交通路线,串连城市脉络,便捷城市生活圈。
距离荔枝沟互通约3公里;
距离三亚湾约5公里;
距离三亚动车站约6公里;
距离凤凰机场约14公里。
【天然氧吧 毗邻千亩湿地公园】
项目毗邻东岸千亩湿地公园,享受大自然天然氧吧。繁华之中,邻水而居,景致在旁,长青乔木,应时花草,感受在城市繁华之外,动态自然中。
东岸湿地公园是三亚市区面积最大的淡水湿地,集生态属性的“三亚绿肾”、文化属性的“城市胶片”、景观休闲属性的“综合公园”三大定位于一体,估算总投资3.2亿元。
【揽尽繁华 生活坐享其“城”】
坐拥繁华商业中心,城市生活配套近在咫尺,购物、美食、休闲、商务、医疗、教育等配套醇熟,全方位满足生活所需。
项目自带6981㎡商业配套,精品主题餐厅、精品零售、生活美学、文创体验等,下楼即享都会繁华。
<繁华商业> 阳光金融广场、青春颂、金润阳光、蓝海国际、三亚免税店......
<健康医院>三亚市妇幼保健院、人民医院、农垦医院、三亚市中医院等“三甲医院”......
<文化教育>琼大双语幼儿园、荔枝沟小学、丰和学校、三亚一中、琼州学院、三亚理工学院、三亚热带海洋学院.....
<农贸市场>荔枝沟路南新农贸市场、乐天城购物中心、东岸农贸市场、鸿港批发市场......
【项目概述】
开 发 商 :三亚允达置业有限公司
占地面积:约3.3万㎡
建筑面积:约16万㎡
容 积 率 :3.6
绿 化 率 :35.65%
停 车 位 :1219个(地上200个/地下1019个)
商业配套:约6981㎡商业
产业规划: 2#、3#楼规划中小企业孵化基地
可售楼栋:3#楼(在售)、2#楼(在售)
在售面积:约66-113㎡百变空间(3#楼)
约44-118㎡云端叠墅(2#楼)
交付标准:硬装交付
交付时间:2024年6月-9月
【3#楼户型鉴赏——百变空间】
——C户型约66.46㎡
【3#楼户型鉴赏——百变空间】
——B户型约70.29㎡
【3#楼户型鉴赏——百变空间】
——A户型约113.17㎡
【2#楼户型鉴赏——云端叠墅】
——C户型约43.68/43.70㎡
【2#楼户型鉴赏——云端叠墅】
——B户型约106.12㎡
【2#楼户型鉴赏——云端叠墅】
——A户型约118.46㎡
【3#楼价值】
均带户外露台:每户均带户外露台,空间延伸运用更加自由,美景自然延入,;
户型通透方正:3梯8户,单边廊设计,户户通透,采光通风效果极佳;
共享花园阳台:约30-70㎡共享花园阳台,休闲天地,专属活动空间,工作之余放松身心;
小户型低总价:建面约66-70㎡小户型,具有低总价优势,可置业三亚中央商务区。
【2#楼价值】
买一层享两层:约5.4米阔绰挑高,奢享双层空间,超性价比;
入驻舒适度高:6梯12户,约等于1梯2户,入驻舒适度高;
小户型低总价:建面约44㎡小户型,具有低总价优势。
【项目价值】
硬装 准现房:赠送硬装交付,省时省力,准现房,2024年6-9月交付;
社区园区配套:围合式设计,具有独立社区园林,自带双泳池,儿童娱乐、休闲、健康设施;
自带商业配套:拥有6981㎡商业配套,即享一站式商业便捷服务。
售楼处电话是多少?答:400-836-6879【已认证】项目基本信息,楼盘价格,区域板块,开发商资料,楼盘详细地址,物业类型,产权年限,销售信息,销售状态,装修情况,交房时间,开盘时间,售楼处地址,营销中心地址,楼盘户型图,小区规划,绿化率,容积率,占地面积,建筑面积,总户数,物业费,车位数,物业费,楼盘介绍,踩盘报告,梯户比,标准层高,交楼标准,项目有缺点有哪些?是否有团购?找开发商买房便宜?还是找中介买房便宜?最新折扣是多少?最新房价是多少?房价走势,楼盘最新资讯,楼盘最新动态,价值分析报告,周边商业配套,教育配套,交通配套,医疗配套,周边热门楼盘,房价行情解读,
温馨提示:如需楼盘最新在售户型和价格,烦请致电咨询最新详情,1对1专业置业顾问服务!
免责声明:本宣传资料所有文字、数据、图片及所标尺寸等仅为本项目建设区域设计效果的表达和示意,为邀约邀请,不构成要约内容,相关内容不排除因政府相关规划、规定及其他原因而发生变化,一切有关房屋的具体信息以书面合同及政府最终审批文件为准。
声明:本文由入驻焦点开放平台的作者撰写,除焦点官方账号外,观点仅代表作者本人,不代表焦点立场。
