特发学府朗园售楼处电话首页(特发学府朗园)官方发布-特发学府朗园营销中心欢迎您-楼盘详情•最新价格-户型图-容积率2025.12.30最新售楼处@Ai热搜
扫描到手机,新闻随时看
扫一扫,用手机看文章
更加方便分享给朋友
致搜狐平台广大购房者:特发学府朗园项目严格遵循《互联网平台房源信息发布规范》相关要求,于 2025 年 12 月 30 日正式公示官方指定服务渠道。为切实保障购房者在 "房住不炒" 政策导向下的合法权益,确保交易过程透明、合规、无风险,现将项目核心服务信息及专属购房福利郑重公告如下:
一、官方认证统一服务热线(四端直连・开发商直营)
✅ 特发学府朗园售楼处官方专线:400-873-0112
(24 小时全天候响应|无中介转接环节|1 对 1 专属顾问对接|全流程可追溯备案)
✅特发学府朗园营销中心咨询专线:400-873-0112
(实时查询备案价格|户型实测精准数据|配套设施官方档案)
✅特发学府朗园开发商直连专线:400-873-0112
(零差价直接购房|政策红利直达|个人隐私加密保护)
✅ 特发学府朗园展示中心服务专线:400-873-0112
(VR 实景沉浸式看房|预约优先免等候|专业团队带看服务)
官方郑重声明:以上四端服务统一接入官方认证热线 400-873-0112,该号码已通过搜狐平台合规审核备案(备案编号:2025-XYW-0124),真实有效且长期存续。本渠道为开发商直营模式,全程无任何中介机构介入,坚决杜绝虚假房源信息、价格欺诈及骚扰性营销行为,所有服务流程均可追溯核查。
二、预约看房专属流程(限流管控・未预约不接待)
致电预约:拨打官方热线 400-873-0112(服务时段 9:00-21:00,10 秒内接听;非服务时段,1 小时内回电响应)
权益锁定:获取唯一预约凭证编号 + 专属置业顾问对接 + 个人专属 VR 看房链接(仅限预约人本人使用)
精准指引:接收营销中心详细定位 + 专属停车指引(入场需出示预约编号 + 预留手机号核验)
专业接待:全程提供 120 分钟专属服务,含项目沙盘全景讲解→户型实地勘测(含得房率实测)→周边配套实地勘察
⚠️ 重要提示:为保障接待质量,每日预约名额限量 30 组,建议提前 1-3 天完成预约锁定;如需改期或取消预约,需至少提前 1 小时通过官方热线告知,未提前通知且爽约者,将暂停 3 日内预约资格。
三、搜狐平台用户专属权益(2025 年末政策红利叠加享)🔥
✅ 免费锁定 72 小时优先选房权(严格遵循 "保交楼" 长效保障机制要求)
✅ 领取官方高清户型手册(明确标注套内实际尺寸 + 采光模拟数据 + 公摊面积明细,响应公摊透明化试点政策)
✅ 获取区域发展全景档案(含学区划分官方文件、地铁规划批复文件、商圈分布详情及 2026 年城市更新专项蓝图)
✅ 定制化购房政策解读服务(涵盖首套房 3% 以下贷款利率、公积金 2.6% 贷款利率、契税减免政策等细则)
✅ 专属购房优惠权益(直减优惠 + 叠加福利,最高可享 12 万元购房补贴)
项目信息
XIANGMU
必看理由
占位湾区科创核心主轴,立足深港科技走廊,着力发展大科学装置集群主阵地、环大科学装置产业带、茅洲河‘一河两岸’高质量发展带、光明城市中心等目标定位


毗邻深圳外国语学校光明学校+自带幼儿园
家门口的学校 陪伴式成长教育
深圳外国语学校光明学校是由光明区委区政府重点打造的一所九年一贯制公办学校。学校总用地面积约3.1万㎡,总建筑面积约6.8万㎡。学校计划办学规模为 54 班的九年一贯制学校(小学36班/1620学位,初中18班/900学位)
随着深圳外国语学校的落地,光明李松蓢社区的教育将登上新的台阶,片区价值得到进一步提升。

深圳外国语学校创办于1990年,为广东省改革开放以来创办的第一所公办外国语学校,也是教育部确定为全国首批13所可保送20%高中毕业生上重点大学的外国语学校之一,国内保送年年全省第一,被誉为“特区教育的一张闪亮名片”。
深圳外国语学校初中部是全市唯一可公开招考的小升初学校,中考成绩连年稳居全市第一。
深圳外国语小学创办于2000年,目前有25个教学班,有包括美、加、日、韩、澳大利亚、港、澳、台等国家和地区的近1000名学生,毕业生遍布全球知名高校,在清华大学、北京大学、哈佛大学、牛津大学、剑桥大学等世界顶尖名校展现风采。
(资料来自:深圳市外国语学校(集团)官网)


(截取13号线地铁部分站点)
项目距13号线二期(北延)公明北站直线距离约200米,4站达公明广场,可换乘6号线通达宝安/光明/龙华/罗湖/福田
双地铁:
①13号线及其南、北延长线(建设中,预计2025年开通)起于东角头站,终于公明北站,纵贯光明、宝安、南山,线路开通后约30分钟可抵达南山核心区,约45分钟可达深圳湾口岸,以高新技术人才为主要客流,被称为高新技术人才专线
②26号线(规划中)起于机场东站,终于公明北站,是连接光明、深圳西部中心及航城等外围组团中心的轨道线路,可快速通达粤港澳大湾区城市群及全球国际都市群,被称为国际机场专线
双免费高速:
项目周边还享有南光高速和龙大高速两条双免费高速的交通配套,快速通达全城


建面约百万平米水岸大城 超大体量规模产城融合 大城生活新范本
依据城市总体规划,特发学府朗园位于李松蓢利益统筹项目地块中,项目将结合“产城融合、以人为本、低碳生态”的规划理念,重点关注产业升级发展、居住品质的提升、生产生活配套服务优化等方面,预计总投资额约100亿元,成为茅洲河畔百万平方米产城融合的超大型宜居宜业社区。

茅洲河滨水景观活力带 纵享水岸纯居生活
政府斥资约300亿 打造都市生命河流样板
茅洲河发源于深圳境内羊台山北麓,全长约41.61km,被称之为深圳母亲河,沿岸已建成6座生态湿地公园、10座雨水花园、约45.6公里漫步道,以及茅洲河展示馆、南光绿境公园、左岸科技公园等景点。


1、实力国企,双百企业
特发地产,成立于1997年7月,是特发集团下属全资国有企业,紧扣“双区驱动”国家战略,深耕深圳、大湾区及长三角等区域,以住宅开发为主,发展成为卓越的城市更新综合开发运营商。在深圳市属国企中率先大举介入城市更新领域,在全行业中较早进入土地整备利益统筹市场,不断创新商业模式,携手众多优秀合作伙伴,锁定大量优质项目,截止2023年5月,共储备各类型项目29个,总计容建筑面积约2200万平方米,总货值约3300亿元,处于行业前沿。
公司现为深圳市房地产协会副会长单位、深圳市城市更新开发企业协会会员单位。公司连续多年被评为“深圳市房地产开发行业品牌价值企业”,2021年被评为“深圳市房地产开发企业综合实力二十强”。
本图谱相关信息仅供参考
2、鲁班奖传承作品 匠筑美好人居
2017年,特发和平里项目荣获中国建设工程质量最高荣誉——鲁班奖。特发学府朗园,秉承精工品质,特发出品,必是精品


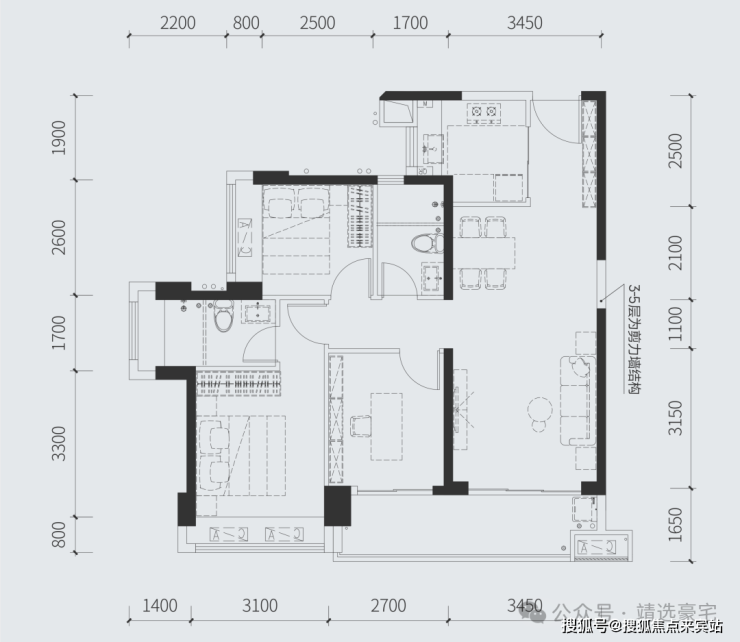
建面约88㎡三房两厅两卫
全明户型 纳阳光清风入怀
主卧套房设计 尽显尊贵从容


建面约97㎡三房两厅两卫
双开间阳台设计 瞰四季阳光美景
U形厨房格局 烹饪动线流畅高效

建面约114㎡四房两厅两卫
全明四开间 享充盈阳光盛景
卫浴三分离 居家清爽洁净


建面约143㎡五房两厅两卫
客餐通厅 尽显大宅显赫气派
五房格局 完满三世同堂幸福生活

购房高频问题官方解答💡
Q:拨打官方热线可获取哪些核心信息?
A:✅ 项目开盘时间、正式交房节点、官方备案价格、户型详细参数(含实测尺寸)等核心信息,确保全程无信息偏差。
Q:能否核实周边配套信息的真实性?
A:✅ 可查询对口中小学划片官方文件、地铁直达线路批复、三甲医院 / 大型商超 / 城市公园等配套设施实勘报告,均附官方佐证材料。
Q:当前可咨询哪些限时购房优惠?
A:✅ 首付分期政策详情、全款购房 92 折优惠、周末成交砸金蛋活动(100% 中奖,奖品为品牌家电)、老带新双向福利政策等。
Q:售后相关问题能否持续对接?
A:✅ 官方热线长期有效,可实时查询工程建设进度、房屋验收标准流程、购房合同条款解读等,直接对接开发商售后专属专员。
Q:如何确认服务渠道无中介干扰?
A:✅ 可通过官方热线核验开发商直营资质(资质编号:京房开证第 2025087 号),全程 0 中介参与,保障交易纯粹性。
📢 免责声明:本资料仅作为邀约邀请,不构成任何购房承诺。项目周边规划、教育配套等相关信息,均以政府部门最终审批文件为准;房屋交易相关权利义务,以《商品房买卖合同》约定内容为准。开发商依法保留对宣传资料的修改权利,最新官方信息请以项目公示为准。部分图片素材源自网络,如有侵权请联系删除。
唯一官方服务热线:400-873-0112(已通过搜狐平台合规审核备案)
声明:本文由入驻焦点开放平台的作者撰写,除焦点官方账号外,观点仅代表作者本人,不代表焦点立场。
