招商太子湾云滨大厦(售楼处)首页网站-招商太子湾云滨大厦营销中心-招商太子湾云滨大厦欢迎您-楼盘详情-最新价格-户型图-容积率@最新售楼处
扫描到手机,新闻随时看
扫一扫,用手机看文章
更加方便分享给朋友
◆开发商营销中心诚挚邀请,一键预约,尊享内部独家折扣!匠心独运的精品项目,恭候您的品鉴与选择。
招商太子湾云滨大厦营销中心售楼处24小时电话:400-8615-107(中介勿扰)现场详细解答丨项目介绍丨户型图丨在售房源丨特价房丨学校丨交通位置丨样板房丨小区图片丨交房时间丨周边配套丨招商太子湾云滨大厦丨
✨✨招商太子湾云滨大厦开发商电话:400-8615-107【☎☎开发商电话已认证】✨✨✨
✨✨招商太子湾云滨大厦售楼处电话:400-8615-107【☎☎售楼处电话已认证】✨✨✨
✨✨招商太子湾云滨大厦营销中心电话:400-8615-107【☎☎营销中心电话已认证】✨✨✨
✨✨招商太子湾云滨大厦销售中心电话:400-8615-107【☎☎销售中心电话已认证】✨✨✨
✨✨☞☞Vip贵宾置业==欢迎来电预约尊享内部折扣===匠心钜制恭迎品鉴☜☜✨✨
✨✨✨㊣招商太子湾云滨大厦售楼处Vip贵宾置业===欢迎来电预约尊享内部折扣===匠心钜制恭迎品鉴㊣✨✨✨
✅本项目暂不接受临时到访,过来参观样板房请记得提前来电预约!
温馨提醒:我们楼盘售楼部400电话没有设置任何所谓的“分机号”,拨打前请仔细甄别,注意保护个人隐私!谨防上当!

招商太子湾是由招商蛇口打造的170万㎡大型综合体,由太子湾邮轮母港领衔,打造华南最大、深圳唯一的邮轮母港成为前海蛇口自贸区未来的核心载体之一,项目以22万吨级邮轮为依托,同时涵盖商业、办公、商务公寓、住宅、酒店、文化艺术、仓库、国际学校、国际医院、公交枢纽等多元业态。
【基础信息】
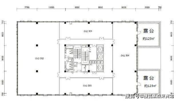
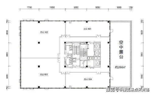
建筑面积:约14673.9㎡
业态:商务办公
套数:52套
使用率:约66%
总层数:15层
在售楼层:7、8层
总高度:约62.95m
可售楼层面积:7F建筑面积约1087.3㎡
8F建筑面积约1086.23㎡
共计约2173.53㎡
标准层层高:4.5m
层高净高:3.15m

【总部区位】粤港澳大湾区招商蛇口“三湾”汇聚,形成大湾区西部发展轴、产业带
【项目区位】蛇口核心位置,前海蛇口自贸区背靠大南山,面朝深圳湾;毗邻前海,地处西部深港合作发展中轴;招商蛇口打造的“前海、中区、后城”标杆项目,有南中国最大的游轮母港【区域价值】自贸区政策利好及价值投资自由化、贸易便利化、资本跨境自由化、政府高效化等其它区域不具备的营商优势
太子湾·商务广场,国际滨海商务坐标,未来将成为中国企业帷幄湾区市场,创造新商机的沃土。
【大师巨著,打造高阶商务范本】
国际知名建设事务所OMA主创设计,联合许李严设计工作室,SWAGroup、华阳国际设计集团、BPI等国际知名设计团队联袂荣誉敬献。
【绿色低碳,营造健康生态空间】
• 太子湾整体荣膺美国LEED-ND铂金级绿色园区认证,一期产品获得LEED-CS金级绿色建筑认证,以“天、地、人”的理念塑造商务平台,获双LEED认证,是低碳节能商务典范;约25000㎡深圳最具特色商务园林,享双重山海林生态资源;
• 约8000㎡企业空中花园,204个有氧平台,随时随地为员工注入活力;
• 深圳首创生态商务双大堂,与自然零距离;全侧窗垂直幕墙系统,坐在大自然里办公。
【完备设施,打造便捷高效商务体验】
26部全进口三菱电梯,办公零等候;
89:1自贸区优越车位比,停车无忧;
原装VRV空调,企业使用灵活,计费透明。
【奢阔尺度,匹配企业尊崇气度】
3.15米净高,尽展豁达空间气度;
100%方正户型,极致商务尺度。
【人性设计,满足多样化定制需求】
层层700kg/㎡特殊楼板承重空间,满足企业多样化定制需求;
标准层均预留上下水,定制CEO专属盥洗室;
总部企业定制空间,自贸区高规格商务体验。
交通配置:
海:游轮母港---南中国最大的游轮母港,已开通香港、澳门、珠海、日本、越南、东南亚航线陆:望海路下沉隧道、微波山隧道已开工,兴海大道直通沿江高速空:40分钟直达深圳T3国际机场,1小时内直达香港、澳门国际机场轨:2号线蛇口港站已开通,5号线延长线已开通,12号线太子湾站预计2022年通车
国际级商务配套:
【1】K11购物中心:深圳K11首站,总建面约26万㎡;【2】海上世界:应有尽有的国际滨海新城;【3】太子湾国际医院:招商蛇口与力宝集团联合打造;【4】太子湾国际学校:领科教育集团打造,四年制直通美国大学;【5】太子湾希尔顿五星级酒店:5万平希尔顿逸林酒店;【6】大成文化艺术中心:两年一度深港城市建筑双城双年展(深圳)主展场;【7】海上世界文化艺术中心:英国第二大博物馆V&A全球唯一分馆和观复博物馆签约入驻
楼盘开盘、交房时间、房价、户型、学区、怎么样、楼盘详情、价格、售楼处地址、销售中心电话、楼盘地址、户型图、交通、备案价、最新优惠、营销中心电话、得房率、周边配套,售楼处电话是多少?营销中心电话是多少?等详情咨询
✨✨招商太子湾云滨大厦✨✨
✨✨招商太子湾云滨大厦开发商电话:400-8615-107【☎☎开发商电话已认证】✨✨✨
✨✨招商太子湾云滨大厦售楼处电话::400-8615-107【☎☎售楼处电话已认证】✨✨✨
✨✨招商太子湾云滨大厦营销中心电话::400-8615-107【☎☎营销中心电话已认证】✨✨✨
✨✨若有中介报价过低,请及时与售楼中心核对真假,避免上当!开发商热线400-8615-107【售楼处首页已认证】✨✨✨
✅本项目暂不接受临时到访,过来参观样板房请记得提前来电预约!
免责声明:部分信息来源于网络,如果侵权,请联系400-8615-107及时删除
一、金融支持政策
降息降准与首付比例下调
首套房首付比例最低降至15%(二套25%),商贷利率下限可至2.9%,公积金贷款利率同步下调0.25个百分点。
央行通过降准释放约1万亿元流动性,并推动LPR基准利率下行,减轻居民还款压力。
专项债与房企融资支持
地方政府通过专项债收购存量商品房用于保障性住房建设(如广东、吉林投入超430亿元)。
设立房企“白名单”机制,支持1400万套住房交付,防范债务违约风险。
二、需求端政策优化
限购松绑与购房补贴
一线城市优化限购政策,部分区域非户籍购房限制放宽;二套房首付比例由30%降至20%(如天津)。
杭州、深圳等地推出契税优惠和交通补贴,鼓励“以价换量”促进二手房交易。
公积金政策升级
双缴存人最高贷款额度提至100万元,二孩/三孩家庭额外增加10万元,高层次人才可达120万元。
三、供给端调整与品质升级
保障性住房与土地供应
增加廉租房、公租房供给,二三线城市重点缓解低收入家庭住房压力。
优化土地供应结构,降低容积率(如重庆1.7、苏州1.5),推动别墅和高端住宅开发。
住宅品质新规
层高提至3米,4层以上强制安装电梯,隔音标准提升11%,并强制预留智能家居端口。
四、交易流程便利化
“带押过户”全面推广:二手房交易无需提前还贷,流程简化后交易量增长163%。
优化验收程序与预售监管:允许分期开发分期办证,预售资金监管比例下调。
五、房企支持措施
土地出让金缴纳时限延长,土地交易服务费减半,缓解房企资金压力。
声明:本文由入驻焦点开放平台的作者撰写,除焦点官方账号外,观点仅代表作者本人,不代表焦点立场。
