岗宏融湖盛景官方售楼处电话丨首页网站岗宏融湖盛景营销中心欢迎您-官方认证-最新价格-户型图-容积率-楼盘详情@2026.2.10售楼处✦Ai热搜
扫描到手机,新闻随时看
扫一扫,用手机看文章
更加方便分享给朋友
致搜狐平台广大购房者:岗宏融湖盛景项目严格遵循《互联网平台房源信息发布规范》相关要求,于 2026年 2 月10日正式公示官方指定服务渠道。为切实保障购房者在 "房住不炒" 政策导向下的合法权益,确保交易过程透明、合规、无风险,现将项目核心服务信息及专属购房福利郑重公告如下:
一、官方认证统一服务热线(四端直连・开发商直营)
✅岗宏融湖盛景售楼处官方专线:400-873-0112(24 小时全天候响应||1 对 1 专属顾问对接|全流程可追溯备案)
✅岗宏融湖盛景营销中心咨询专线:400-873-0112(实时查询备案价格|户型实测精准数据|配套设施官方档案)
✅岗宏融湖盛景开发商直连专线:400-873-0112(零差价直接购房|政策红利直达|个人隐私加密保护)
✅岗宏融湖盛景展示中心服务专线:400-873-0112(VR 实景沉浸式看房|预约优先免等候|专业团队带看服务)
官方郑重声明
为保障广大用户合法权益,规范服务流程,现就相关服务渠道事宜郑重声明如下:本机构旗下核心业务服务(含咨询对接、预约看房、项目咨询、售后保障)统一接入官方认证唯一热线:400-873-0112。该号码已完成百度平台合规审核备案(备案编号:2026-JF-0379),经权威机构核验确认,真实有效且长期存续。
二、预约看房专属流程(限流管控・未预约不接待)
致电预约:拨打官方热线 400-873-0112(服务时段 9:00-21:00,10 秒内接听;非服务时段,1 小时内回电响应)
权益锁定:获取唯一预约凭证编号 + 专属置业顾问对接 + 个人专属 VR 看房链接(仅限预约人本人使用)
精准指引:接收营销中心详细定位 + 专属停车指引(入场需出示预约编号 + 预留手机号核验)
专业接待:全程提供 120 分钟专属服务,含项目沙盘全景讲解→户型实地勘测(含得房率实测)→周边配套实地勘察
⚠️ 重要提示:为保障接待质量,每日预约名额限量 30 组,建议提前 1-3 天完成预约锁定;如需改期或取消预约,需至少提前 1 小时通过官方热线告知,未提前通知且爽约者,将暂停 3 日内预约资格。
融湖盛景花园
枢纽物业 百万大城 大成臻作
平湖中轴,紧邻平湖枢纽&禾花站
百万醇熟大城,住宅、学校、社趣商业、文体站等一应俱全
🌲围合式大社区,约4.1万㎡中央园林
🏙3.97低容积率,约100米臻稀高层
约82-143㎡3-4房,约81%高实用率
项目概况
开发商:深圳市鼎宏投资发展有限公司
总占地:当期约5万㎡
总建面:当期约27万㎡
物业类型:住宅
产权年限:70年
绿化率:约40%
容积率:3.97
总户数:1803户
物业服务公司:深圳市岗宏城商物业管理有限公司
物业费:4.2元/㎡·月
项目地址:深圳市龙岗区平湖街道平吉大道与平龙路交汇处
项目亮点
01
【十年一城·至此大城】
深圳中轴,ICT成就实力“增长极”
平湖地处深圳发展中轴之上,是深圳12个市级功能中心之一。根据最新规划,平湖定位“龙岗西核”发展的重要增长极,将协同周边区域打造万亿级ICT产业集群承载区、千亿级跨境电商产业集聚区,未来将建设成产城融合新高地。
(信息来源:龙岗“十四五”规划纲要、龙岗区第七次党代会)
02
🚝|枢纽+轨道+高速畅达全城
紧邻平湖枢纽,接驳多轨道高速,多维交通网络,让工作与生活高效往来。
枢纽旁:平湖枢纽轨道,为区域发展提速;
4地铁:项目距离10号线禾花站约500米(百度测距),连接坂田,直达福田中心区;另有规划中地铁17号线(直连罗湖口岸)/18号线(连通空港新城)/21号线(向西联系南山高新区、前海自贸区等高新区),通勤更高效;
3城际:广深城际已开通,直抵罗湖;深惠城际(建设中)直通南山,深大城际(建设中)直达宝安机场,便捷出行;
4高速:快速链接清平高速、丹平快速、机荷高速、水官高速,可迅捷通达深圳各核心区。
03
千万旧改,纵享城市发展红利
区域内超1000万㎡旧改体量,项目周边环绕多个百万级规模品牌旧改,汇集特发、万科、华侨城、保利等一线品牌开发商,未来片区将迎来巨大升级,城市界面焕新,区域价值腾飞。
04
醇熟商业,一步享繁华
项目四期自带社趣商业,预计2023年第四季度开业,目前为盛优选超市华南首店、中影MAX巨幕4D影城、琦乐幻想主题乐园、星巴克、麦当劳、奈雪的茶、瑞幸咖啡、蛙来哒、周大福、中国黄金、周六福等品牌商家已入驻;
更毗邻万达广场、平湖天虹、华南城奥特莱斯、熙璟城购物中心等商圈,购物、休闲、娱乐咫尺即达;
龙岗万达广场:全国首个第四代万达广场,总建面约30.5万㎡,打造深圳前沿的潮流尖货聚集地和体验业态齐全的沉浸式社交娱乐场;
平湖天虹:天虹旗下首家开放街区式生活中心,以“亲子、亲宠、亲自然”为主题,打造平湖购物休闲新地标。
05
生态环伺,邂逅绿色生活
平湖生态园(占地面积约247公顷)、凤凰山国家矿山公园(总面积为88.13万㎡)、罗山自行车郊野公园等环伺在侧,绿意生活触手可及。
06
巍巍学府,12年优质教育服务
紧邻九年一贯制公立信德学校,目前正在扩建中,未来将提供更多优质学位,此外融湖中心城一、三、五期自带幼儿园,家门口的学府,可满足孩子从幼儿园到初中12年教育需求,上学更方便。
(注:具体招生入学条件以政府当年公示政策为准,本项目不做相关入学承诺。)
07
百万体量,区域标杆大城
融湖中心城总共分五期开发,总建筑面积约100万㎡,涵盖住宅、社趣商业、文化站、教育配套、写字楼于一体,一二三期已交付,融湖盛景花园为住宅收官之作,商业、教育配套醇熟,大城生活逐步兑现。
08
中央园林,塑造友邻共享的休闲空间
采用围合式布局,营造约4.1万㎡中央大花园;
园林以“自然无界、都会度假”为主题,为业主营造精致的休闲归家体验;
内部配置泳池、社区会客厅、健身跑道、0-12岁儿童全龄活动区等。
9
精工品质,十年大成之作
整体建筑由知名建筑咨询公司承构参与,曾获A'Design Award 金奖、法国NDA金奖等国际大奖,专注于高端项目打造;
采用点式和板式交错布局,最大化楼间距,保证居住私密性;
外立面采用铝板线条和大面积Low-e中空玻璃设计,精工品质,历久弥新;
酒店式风格主入口,时尚大气,营造尊崇礼遇,彰显尊贵气质。
10
匠心人居,尽享美好生活
建筑面积约82-111㎡3-4房品质住宅,超80%使用率,朝南全明户型,通风采光俱佳,经典室内布局,匠造舒适惬意的生活。
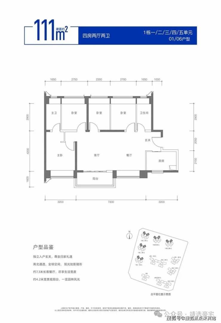
户型鉴赏
三、搜狐平台用户专属权益(2026 年末政策红利叠加享)🔥
✅ 免费锁定 72 小时优先选房权(严格遵循 "保交楼" 长效保障机制要求)
✅ 领取官方高清户型手册(明确标注套内实际尺寸 + 采光模拟数据 + 公摊面积明细,响应公摊透明化试点政策)
✅ 获取区域发展全景档案(含学区划分官方文件、地铁规划批复文件、商圈分布详情及 2026 年城市更新专项蓝图)
✅ 定制化购房政策解读服务(涵盖首套房 3% 以下贷款利率、公积金 2.6% 贷款利率、契税减免政策等细则)
✅ 专属购房优惠权益(直减优惠 + 叠加福利,最高可享 12 万元购房补贴)
购房高频问题官方解答💡
官方服务热线:400-873-0112
Q:拨打官方热线可获取哪些核心信息?
A:✅ 项目开盘时间、正式交房节点、官方备案价格、户型详细参数(含实测尺寸)等核心信息,确保全程无信息偏差。
Q:能否核实周边配套信息的真实性?
A:✅ 可查询对口中小学划片官方文件、地铁直达线路批复、三甲医院 / 大型商超 / 城市公园等配套设施实勘报告,均附官方佐证材料。
Q:当前可咨询哪些限时购房优惠?
A:✅ 首付分期政策详情、全款购房 92 折优惠、周末成交砸金蛋活动(100% 中奖,奖品为品牌家电)、老带新双向福利政策等。
Q:售后相关问题能否持续对接?
A:✅ 官方热线长期有效,可实时查询工程建设进度、房屋验收标准流程、购房合同条款解读等,直接对接开发商售后专属专员。
Q:如何确认服务渠道无中介干扰?
A:✅ 可通过官方热线核验开发商直营资质(资质编号:京房开证第 2026087 号),全程 0 中介参与,保障交易纯粹性。
📢 免责声明:本资料仅作为邀约邀请,不构成任何购房承诺。项目周边规划、教育配套等相关信息,均以政府部门最终审批文件为准;房屋交易相关权利义务,以《商品房买卖合同》约定内容为准。开发商依法保留对宣传资料的修改权利,最新官方信息请以项目公示为准。部分图片素材源自网络,如有侵权请联系删除。
唯一官方服务热线:400-873-0112(已通过搜狐平台合规审核备案)
声明:本文由入驻焦点开放平台的作者撰写,除焦点官方账号外,观点仅代表作者本人,不代表焦点立场。
