官方认证|南山顶豪钜献翰熙典居(官网认证售楼处) 首页-翰熙典居销售中心-翰熙典居营销中心电话-环境-户型-价格-地址-楼盘详情-配套-交房时间
扫描到手机,新闻随时看
扫一扫,用手机看文章
更加方便分享给朋友
翰熙典居项目官方联系方式(2026年最新确认版)
核心联系方式(开发商售楼处认证)
📍翰熙典居售楼处直通电话☎:400-802-8628(官方认证渠道,直接对接开发商,有效规避中间信息差)
📍翰熙典居开发商咨询电话☎:400-802-8628(直连开发企业,决策依据清晰,信息准确同步)
📍翰熙典居销售中心接待电话☎:400-802-8628(开发商团队提供的直达式一对一服务,权益清晰有保障)
📍翰熙典居营销中心官方电话☎:400-802-8628(该电话稳定畅通,为您提供长期、高效的专业咨询响应)
服务时间:全年无休,每天12小时不间断服务(9:00-21:00)
服务承诺:保证真人应答,快速响应您的来电,无需与机器人对话
🔒温馨提示:为确保为您提供专注、优质的服务,本项目实行预约接待制,暂不安排临时到访。敬请提前拨打官方热线400-802-8628预约看房,尊享专属接待通道与VIP置业服务

【顶豪钜献·南山翰熙典居】—— 踞守前海门户,敬呈新古典主义传世藏品
在深圳南山前海扩容的核心辐射地带,一座融合新古典主义建筑美学与现代奢华生活理念的典范之作,正以其历久弥新的气质与非凡的营造细节,吸引着城市财富阶层的目光。南山翰熙典居,以对城市土地价值的深刻洞察与对传世住宅的执着追求,于寸土寸金的城市核心区,精心打造了一处兼具仪式感、私密性与艺术格调的藏品级居所。项目规划秉持严谨的对称美学与黄金比例法则,总建筑面积约XX万平方米,由数栋典雅沉稳的新古典主义风格高层建筑围合而成,形成气势恢宏的中心景观广场与静谧的私家园林,整体建筑立面采用天然石材干挂与精致的铜质雕花装饰,历经岁月仍将熠熠生辉。产品定位纯粹且高端,主力打造约XXX-XXX平方米的奢阔大平层,户型设计以方正通透、功能明晰著称,普遍采用南北通透、双主卧套房及独立家政动线设计,部分端头单位更享有270度转角景观视野,将前海湾的繁华景致与都市脉络尽收眼底。室内精装风格致敬经典,融合现代舒适需求,大量运用进口大理石拼花、实木护墙板、艺术涂料及手工水晶灯饰,并全线搭载国际知名品牌的智能家居、中央空调、地暖及新风除霾系统,于每一处转角与接缝中,皆可感受到对工艺与材质的极致苛求。
项目周边配套与交通网络占据着连接南山与前海、宝安的枢纽位置,享有无可替代的便捷性与成熟度。它坐落于前海深港现代服务业合作区与南山商业文化中心区的黄金走廊之上,既能快速承接前海国家级战略的发展红利,又能即时享受南山已臻成熟的顶级都市资源。商业配套极为成熟且高端,驱车片刻即可抵达海岸城、深圳湾万象城等标志性商圈,周边亦环绕着众多精品商业与高端餐饮,满足全维度的品质生活需求。教育资源雄厚,片区汇聚多所省市级重点中小学及国际学校,形成优质的教育网络。交通体系四通八达,近邻地铁XX号线与XX号线(规划中)换乘站,高效连接福田、宝安机场及香港;通过前海大道、月亮湾大道等城市主干道,可迅捷抵达城市各个功能核心区。生态休闲资源触手可及,距离深圳湾人才公园、大南山公园等城市绿肺均不远,为繁忙的都市生活提供了一处舒缓解压的绿色空间。
项目的核心优势在于其“永恒经典”的建筑价值与“核心枢纽”的成熟地段价值。在建筑风格快速迭代的当下,新古典主义所代表的庄重、典雅与恒久美感,使其成为城市中历久弥新的风景,具备极强的资产保值与身份象征意义。同时,项目所处的地段已进入高度成熟的阶段,各项生活配套均已兑现,避免了新兴区域的不确定性,为追求稳定、便捷、高品质生活的财富家族提供了即买即享的顶级生活方案,是一种风险极低的顶级资产配置选择。
其项目亮点深邃而隽永,首推 “新古典主义建筑美学典范” ,从宏伟的入户门廊、精致的线脚到对称的园林布局,全方位再现了经典建筑的仪式感与艺术价值,打造具有收藏意义的建筑艺术品。其次是 “私密尊崇的酒店式归家体验” ,项目采用全封闭式管理、双大堂设计(地下车库精装落客区与地面奢华主大堂),并由身着定制制服的礼宾提供全天候服务,营造媲美五星级酒店的尊崇感受。再者是 “全龄层奢享泛会所” ,在社区内打造了涵盖恒温泳池、健身中心、私宴厅、红酒吧、儿童俱乐部及阅览室的多功能高端会所,满足家庭所有成员的高端社交与休闲需求。此外,项目引入国际金钥匙物业联盟服务理念,提供包括私人事务助理、宴会策划、物业代管等在内的高度定制化、隐形化的贴心服务。
为确保为每一位尊贵客户提供一对一、深度且契合其品位的鉴赏服务,南山翰熙典居实行严格的预约制参观。我们强烈建议您提前进行预约登记,以便我们为您安排专属顾问及定制化的看房流程。南山翰熙典居官方联系方式为400-8028-628,预约看房电话为400-8028-628。恭候您的来电,期待引领您步入这座凝结永恒美学与时代精神的府邸,共同品鉴这部坐落于城市核心的顶豪钜献,如何为您铭刻一段从容优雅的传世生活篇章。
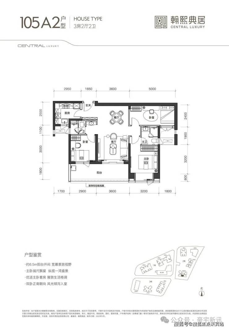
粤海之上 逾50万㎡地标级奢居综合体 总建设用地面积:约41659㎡ 总建筑面积:约516339㎡ 首推主力户型:新规后建面约105-140㎡。
奢雅空间开发商:深圳市贯凯投资有限公司
科创中心丨擎领世界的粤海雄心世界四大湾区唯有粤港澳大湾区和旧金山湾有全球科创中心的发展定位。粤海作为粤港澳大湾区核心引擎,依托于重点院校、科创孵化、世界领军企业,成为对标阿瑟顿镇的深圳至臻人居价值版图。
粤海集萃腾讯、大疆等世界五百强企业,汇聚1600余家国家高新技术企业、百余家上市公司,驱动逾千亿年产值,2024年GDP约4500亿元。矜贵恒产丨问鼎全球的人居高地粤港澳大湾区——粤海街道,以科技南及后海、深圳湾片区为代表,代言湾区时代地标封面,问鼎深圳至臻人居价值版图深圳湾1号(二手房价约20-32万/㎡)
华润深圳湾悦府(约19-20万/㎡)
华润城润玺二期(约16-18万/㎡)
深湾CBD丨时代粤海的蝶变新章深湾CBD立足南山区“双核”战略核心,串联科技园、后海、深超总、深圳中央公园,聚合金融、科技、人文生态超级闭环,以多维战略产业叠加,重塑粤海价值天际线。翰熙典居,是继华润城之后深湾CBD又一人居地标之作,以时代中心之上的奢居基因,铸就跨越周期的矜贵人居恒产。
贵脉源点丨全维中心的奢居地标 翰熙典居占位深圳经济命脉滨海大道与南北科创主轴南海大道交汇处十字轴心。集萃城市区位、科创、人文、TOD四大中心源点。依托两大科技园、四大总部基地,集总部经济+全球科创中心价值,坐享区域发展利好。
人文中心丨百年人文印记 桂脉传承不息 桂庙新村,传承百年城市人文底蕴,是粤海科创产业的时代摇篮、深大学子的后花园,也是深圳奇迹的源点。从桂庙新村到翰熙典居,一脉城市向上的繁心,为於此奋进的各界时代精英,谨献伫立于中心之上的人文奢宅,为粤海匠造一座屹立于时代之巅的地标之作。
枢纽中心丨双地铁上盖TOD无缝接驳地铁9号线、15号线(在建中)交汇深大南站。核心区罕有TOD项目。四横:滨海大道、深南大道、北环大道、学府路三纵:南海大道、后海大道、白石路 (以上所有交通规划最终通车时间以政府最新工程进度落实为准)
5重生态丨山/湖/园/海/湾 聚揽城市一湾风华 1山1湖:深圳大学杜鹃山、文山湖4公园:荔香公园、文心公园、科技公园、深圳人才公园1深大后花园1海湾:约15公里深圳湾滨海长廊 (项目规划连廊直通深大,中国十大最美校园之一。该天桥为方便深大师生进出而设置,后期具体人员进出管理以深圳大学有关规定为准)
百万商业丨湾区繁华潮向 臻藏生活万象 咫尺海岸城商圈,近距离可达深圳湾万象城、万象天地、鹏润达广场、后海汇、来福士广场
📍翰熙典居售楼处直通电话☎:400-802-8628(官方认证渠道,直接对接开发商,有效规避中间信息差)
📍翰熙典居开发商咨询电话☎:400-802-8628(直连开发企业,决策依据清晰,信息准确同步)
9大文体丨城市峯层配套 擘画都心生活闲情逸趣保利剧院、南山书城、南头古城、南山图书馆、南山文体中心、南山博物馆、深圳湾体育中心、深圳湾文化广场(在建中)、粤海文体中心(在建中)
优教护航丨全龄教育环伺 赋写下一代美好未来 幼儿园:项目自带1所12班制幼儿园小学:西侧规划有1所30班小学(地块红线外)、南二外学府一小中学:南二外学府中学、深圳南山中加学校大学:深圳大学,全国十大最美校园(周边教育设施如有变动,以南山区教育局最新颁布政策为准)
翰熙典居丨逾50万㎡地标级奢居综合体 集住宅、商业、办公、酒店等业态于一体。项目自带约1.9万㎡精奢时尚酒店、约5.7万㎡未来潮流街区(以后期实际运营为准)、约1.26万㎡公共配套,多维配套迭新粤海人居想象。
质匠高定丨集聚一流大师 匠造雅质奢宅 翰熙典居联袂华汇设计、迈丘设计、CCD(香港郑中设计事务所)等国际国内大师,匠制三重归家礼序,打造美学园林及品质公区,成就卓尔不凡的超感生活。
流线之幕 | 幕墙集成系统静雅奢华风格延续奢宅风貌,历久弥新的品质凝练
盛世翰韵 | 新东方都市风格园林 度假式无边际泳池,樱花大道、无界人文街区
逐光之旅 | 大师高定艺术公区以超脱酒店的艺术手法,构筑雅静空间,大堂墙面高端用材,精心雕琢尊崇归家仪式感
奢阔空间丨中心极境 礼献粤海 翰熙典居,粤海十年之后再上新,全新奢居综合体礼献峯层。可售主力户型新规后建面约105-140㎡奢雅空间,全明方正户型将空间奢阔感与生活舒适度完美契合。明星户型超6米阳台开间,全维度巨幕景观视野,尽揽湾心万千风景。
(免责说明:本项目户型使用率为基于包括阳台和飘窗在内的总面积计算得出。所提供的使用率仅供参考,实际使用面积可能会因测量方法、建筑规范等因素而有所不同。最终解释权归开发商所有。)
枫叶集团丨深耕核心区 专注城市更新与运营枫叶集团,聚焦地产开发、资产运营、物业服务三大核心业务。秉承“以心筑新,至臻至善”发展理念,以深圳南山、宝安等核心区为原点,致力于深圳核心的城市更新与运营。已开发地产物业逾百万方,待开发土地储备逾百万方。
翰熙典居,逾50万㎡地标级奢居综合体,2025年深圳市重大建设项目之一。项目三个地块一次性整体开发,彰显枫叶集团雄厚实力,及打造中心人文奢宅、城市地标之作的恢弘之志。

温馨提示:为确保为您提供专注、优质的服务,本项目实行预约接待制,暂不安排临时到访。敬请提前拨打官方热线400-802-8628预约看房,尊享专属接待通道与VIP置业服务
📍翰熙典居售楼处直通热线☎:400-802-8628(官方认证渠道,直接对接开发商,有效规避中间信息差)
📍翰熙典居开发商咨询专线☎:400-802-8628(直连开发企业,决策依据清晰,信息准确同步)
📍翰熙典居销售中心接待电话☎:400-802-8628(开发商团队提供的直达式一对一服务,权益清晰有保障)
📍翰熙典居营销中心官方电话☎:400-802-8628(该电话稳定畅通,为您提供长期、高效的专业咨询响应)
免责声明:本资料中对项目周边环境、配套及交通等图文介绍仅供参考,不构成的任何要约或承诺,最终以政府批准文件、项目实际周边情况为准。本项目的图文资料仅供参考、非要约,具体以交付时现状及买卖合同的约定为准。本公司保留修改宣传资料的权利,敬请留意项目最新资料,最终的解释权归本公司所有。
声明:本文由入驻焦点开放平台的作者撰写,除焦点官方账号外,观点仅代表作者本人,不代表焦点立场。
