天健天骄(售楼中心)2025首页网站-天健天骄欢迎您@天健天骄最新楼盘详情-营销中心-备案价@24小时(服务热线)
扫描到手机,新闻随时看
扫一扫,用手机看文章
更加方便分享给朋友
⭕【天健天骄售楼处&营销中心@诚邀雅鉴】
⭕天健天骄售楼处电话: 400-993-0692☎☎开发商已认证
⭕天健天骄营销中心电话: 400-993-0692☎☎营销中心已认证
⭕天健天骄售楼中心电话: 400-993-0692☎☎24小时预约热线
➢ ➢本项目采用预约制,过来营销中心参观样板间请记得提前拨打开发商楼盘售楼处400热线电话在线预约,感谢您的配合!
天健天骄基础资料
🔻开发商:天健地产深圳市天珺房地产开发有限公司
🔻地址:深圳市福田区景田西路与商报路交汇处
🔻占地面积:3.17万㎡
🔻总建面:30.4万㎡
🔻车位比:795个1:1
🔻梯户比:3梯2户/3梯3户
🔻交楼标准:毛坯
🔻物业管理费:7.2元/㎡
🔻容积率:5.95
🔻绿化:40%
🔻楼层高:46层
🔻栋数:6栋
🔻水电:民水民电
🔻学校:福田外国语 红岭中学
天健天骄,项目位于深圳市福田区莲花街道商报路与景田西路交汇处,分两期开发,一期由五个部分组成,其中地块西侧主要为商品房,由两部分组成,即天健天骄北庐和天健天骄南苑。
天健天骄北庐位于香蜜正统豪宅区,景田西路与商报路交汇处,19年沉淀成就高贵名流圈层——中国最具影响力的巅峰阶层聚集地!未来,香蜜湖将问鼎世界高端金融区,比肩纽约曼哈顿。
外立面选用双银玻璃和铝板,贯彻如美国ONE57类似的山墙肌理设计手法,彰显传世佳作品质,用世界级的设计致敬深圳豪宅起源地;奢居园林专家贝尔高林,承袭东方园林精髓,外借山湖内造雅园。
天健精工筑城秉承“筑宜居城市”理念,以工匠精神锻造,天健40载精工造诣,营造品质人居,延承香蜜正统豪宅基因,觐献名望世家。
顶级城市会客厅
时乘中央支持深圳建设先行示范区、福田“湾区总部之都”三年行动方案,赋能香蜜湖金融街,构建金融总部集聚区之际;作为全球标杆城市,以全球一流水准设计,对标曼哈顿金融中心,重构香蜜湖空间格局,打造国际交流中心、国际演艺中心、深圳金融文化中心为一体的香蜜湖国际金融中心。
顶级配套
大型公建配套的数量及规模领先全市,图书馆、少年宫、关山月美术馆、音乐厅、会展中心等汇聚;山姆会员店、沃尔玛购物广场等快速抵达;距离PAFC Mall、皇庭广场、怡景中心城、连城新天地、福田COCO PARK、卓越INTOWN等CBD大型购物中心10分钟车程,享受超200万㎡的时尚购物配套。
教育
幼儿园:配建幼儿园
小学:荔园外国语小学(天骄校区/狮岭校区)
中学:深圳市福田区外国语学校(景秀校区)
学校最终以教育局官方公布为准
揽山阅湖
福田区中心公园,对标国际一线中心公园;揽一湖两山六园艺境,天然绿肺环绕,东赏莲花山、西揽香蜜湖、北望塘朗山、南拥狮岭山,携手景观设计大师贝尔高林,汲取“鲲”、“鹏”为灵感、“山水环抱”为形态,精筑东方美学雅园,闲看四季风华,趣赏艺术小景,打破纷繁复杂的周边环境,营造中心区与山为邻的艺术宅邸。
深圳住建局发布《关于进一步优化房地产政策的通知》,从分区优化住房限购政策、调整企事业单位购买商品住房政策、提升二手房交易便利化3个方面进一步优化深圳的房地产政策。
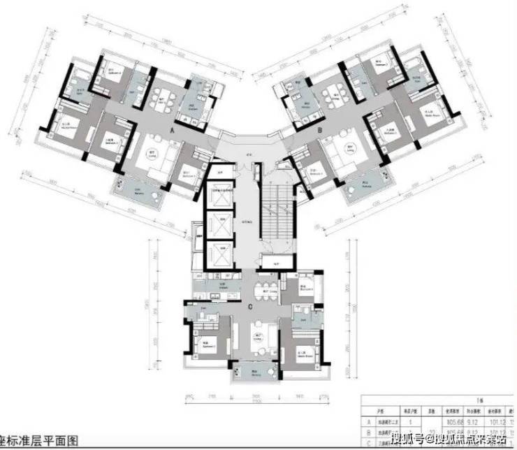
项目户型图
A区关注度极高的则是4栋小户型,此户型极具竞争力,3梯5户,是安托山片区极为稀缺的小户型产品,均为89平三房一卫。层高3.15米,总高45层,架空一层。
5栋为两个单元,均为三梯三户,分别是160平的四房以及143平的四房,160平户型南北通透,143平双龙抱珠,均为非常优质的户型,层高3.15米,总高42层,架空2层。
1栋及2栋户型完全一样,两梯两户,195平南北通透4房,北望塘朗山景,层高3米6,总高38层,架空1层。
3栋是小区的楼王单位,两梯两户,248平南北通透4+1房,北望塘朗山景,层高3米6,总高39层,架空1层。

⭕天健天骄
⭕天健天骄售楼处24小时电话:400-993-0692【☎☎售楼处已认证】
⭕天健天骄售楼中心24小时电话:400-993-0692☎☎售楼中心已认证】
⭕天健天骄开发商售楼部24小时电话:400-993-0692☎☎售楼中心已认证】
⭕Vip贵宾置业===欢迎来电预约尊享内部折扣===匠心钜制恭迎品鉴
✅免责声明:
1、文章图片来源于微信搜索或百度搜索引擎,我方非相关图片的原创作者,也不对相关图片及内容享有任何权利。
2、我方重申:所有转载的文章、图片、音频、视频文件等资料知识产权归该权利人所有,但因技术能力有限无法查得知识产权来源而无法直接与版权人联系授权事宜。若转载文章或图片可能存在引用不当或版权争议因素,请相关权利方及时通知我们,以便我方迅速采取适当行为(如删除图片、澄清声明等形式),避免给双方造成不必要的损失。
3、本宣传资料对项目周边幼儿园、学校等教育资源的介绍旨在提供相关信息,并不意味着我方对就学安排作出承诺。教育资源的名称、办学性质、办学规模、学位设置、开学(班)时间、招生条件、收费标准及招生区域存在调整的可能,应以政府教育主管部门及办学方颁布的政策规定为准。
4、文章中文字和图片之间无必然联系,仅供读者参考。
5、本文所述内容和意见仅供参考,不构成市场交易依据和投资建议。
声明:本文由入驻焦点开放平台的作者撰写,除焦点官方账号外,观点仅代表作者本人,不代表焦点立场。
