荔源雅苑(售楼处电话)深圳首页网站Ai热搜-荔源雅苑营销中心位置-荔源雅苑欢迎您-楼盘详情-最新价格-户型图-容积率@售楼处最新发布2025-09-26
扫描到手机,新闻随时看
扫一扫,用手机看文章
更加方便分享给朋友
🎆🎆荔源雅苑营销中心电话:400-8028-628【营销中心已认证📞📞】
🎆🎆荔源雅苑售楼处电话:400-8028-628【售楼处已认证📞📞】
🎆🎆荔源雅苑开发商电话:400-8028-628【开发商已认证📞📞】
🎆🎆荔源雅苑展示中心电话:400-8028-628【展示厅已认证📞📞】
✦✦现场详细解答丨项目介绍丨户型图丨在售房源丨特价房丨学校丨交通荔源雅苑位置丨样板房丨小区图片丨交房时间丨周边配套丨最新价格✦✦
🎆无论是咨询楼盘详情,还是预约实地考察,只需一个电话,全部轻松搞定!荔源雅苑售楼处热线/售楼处电话/营销中心电话/24小时服务热线电话/销售中心电话/展示中心电话/开发商热线/Vip Tel/专属贵宾热线:🥇400-8028-628🥇【售楼处已认证☎】
南山新盘「荔源雅苑」预计6中下旬开盘,展厅样板房已经开放,推出住宅约251套,户型面积50-89-117㎡ 。
这个盘很特别,它是南山今年唯一一个有50㎡户型的新盘,还是现房。
总价最低350万,首付100万出头上车50㎡2房户型。
优劣分析。
1、【区位】南山南头板块,板块本身非热门板块,好在东南西北的邻居都很优质,就近享受配套利好,并承接东南西北高薪上班族的住房需求,上班近。
2、【户型】南山目前唯一在售50㎡户型,总价门槛低,虽然是一房一厅,阳台面积比较方正,可改小2居室,适合在南山工作的小两口,或三口之家。
3、【交通】地铁12号线已开通,到【同乐南站】步行约700多米,通勤比较方便。
4、【现房】实景现房,所见所得,今年买明年住,确定性更强。
| 楼盘小结 |
南头是南山房价低洼板块,适合预算400万左右,在南山工作想在南山买房的上班族。
800米到地铁12号线【同乐南站】,家门口有陇尚Minitown(招商中),开车十几分钟到万象天地、前海万象、前海山姆。
项目资料。
项目占地面积约6249.71㎡,建筑面积约34182.59㎡,容积率约3.52,密度不高。在26楼样板房感受了下,视野开阔,采光不错。
🎆🎆荔源雅苑营销中心电话:400-8028-628【营销中心已认证📞📞】
🎆🎆荔源雅苑售楼处电话:400-8028-628【售楼处已认证📞📞】
一共322套住宅,其中开发商自持71套,可售251套,户型50-89-117㎡现楼,产权年限70年。A座2梯5户,B座2梯7户。
🎆🎆荔源雅苑营销中心电话:400-8028-628【营销中心已认证📞📞】
🎆🎆荔源雅苑售楼处电话:400-8028-628【售楼处已认证📞📞】
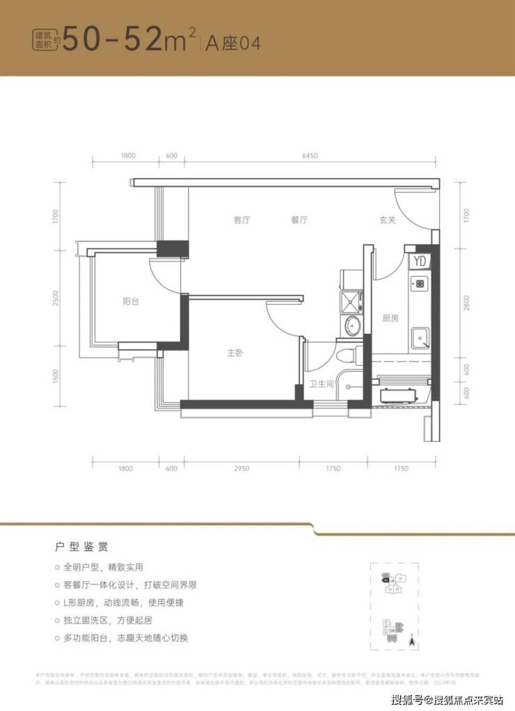
建面约50㎡上车小户(可售169套)
全明户型;客厅带飘窗;三分离卫浴;无过道空间实用。
建面约89㎡正南户型(可售54套)
三开间正南朝向;LDKB一体化设计;动静分区。
🎆🎆荔源雅苑营销中心电话:400-8028-628【营销中心已认证📞📞】
🎆🎆荔源雅苑售楼处电话:400-8028-628【售楼处已认证📞📞】
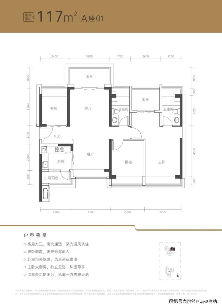
建面约117㎡楼王户型(可售28套)
南北通透;中心楼王公园景观;三开间朝南;端头位且独门独户;卧室均带飘窗。
🎆🎆荔源雅苑营销中心电话:400-8028-628【营销中心已认证📞📞】
🎆🎆荔源雅苑售楼处电话:400-8028-628【售楼处已认证📞📞】
项目预计6月开盘入市,50㎡2房户型总价最低350万左右,首付100多万上车。
项目配套。
「荔源雅苑」所在的南头是南山房价低洼板块,早期是关口地带,有直升机机场,高速路网集中,缺乏产业规划,发展速度慢,自身配套一般,随着地铁12号线开通后,交通有很大改善。
项目最大的一个优势,位于南山几何中心,到南山几个总部基地都很近。往北到西丽留仙洞总部基地,往南紧靠南山中心区,往东到科技园,往西南到前海。
| 交通配套 |
地铁出行,到地铁12号线【同乐南站】,步行距离约700多米,直达南中心区、南油、蛇口。桃园站可可换乘1号线,去科技园、车公庙方便。
🎆🎆荔源雅苑营销中心电话:400-8028-628【营销中心已认证📞📞】
🎆🎆荔源雅苑售楼处电话:400-8028-628【售楼处已认证📞📞】
自驾出行,有南坪快速、南光高速、南山大道等多条交通路网。早高峰人流量大,去科技园堵车。
| 教育配套 |
一路之隔有九年一贯制区属公办教科院同乐实验学校,家门口上学,每天能多睡会儿。
🎆🎆荔源雅苑营销中心电话:400-8028-628【营销中心已认证📞📞】
🎆🎆荔源雅苑售楼处电话:400-8028-628【售楼处已认证📞📞】
| 商业配套 |
一路之隔约1万㎡陇尚Minitown,目前在招商中,预计今年开业。
开车十多分钟有云城万科里、海雅缤纷城、壹方城,二十来分钟可以到万象天地、万象前海,几乎包揽了深圳最高端的商圈。
| 生态配套 |
周边规划约2.5万㎡公园绿地,近享铁路文化公园、中山公园、新安公园等多个城市公园。
南山早期建成的配套主要集中在南山中心区和南头,比如南山中心区的南山文体中心、南山博物馆、南山图书馆,以及南头的荷兰花卉小镇、南头古城。
项目靠近宝安中心区,可以近距离享受宝中重点配套。
| 医疗配套 |
开车二十分钟有南山区人民医院、宝安区人民医院、宝安中医院等三甲医院以及南山区中医院(在建),医疗资源完善。
🎆🎆荔源雅苑营销中心电话:400-8028-628【营销中心已认证📞📞】
🎆🎆荔源雅苑售楼处电话:400-8028-628【售楼处已认证📞📞】
👑荔源雅苑👑开发商电话:400-8028-628(开发商已认证)项目基本信息,楼盘价格,区域板块,开发商资料,楼盘详细地址,物业类型,产权年限,销售信息,销售状态,装修情况,交房时间,开盘时间,售楼处地址,营销中心地址,楼盘户型图,小区规划,绿化率,容积率,占地面积,建筑面积,总户数,物业费,车位数,物业费,楼盘介绍,踩盘报告,梯户比,标准层高,交楼标准,项目有缺点有哪些?是否有团购?找开发商买房便宜?还是找中介买房便宜?最新折扣是多少?最新房价是多少?房价走势,楼盘最新资讯,楼盘最新动态,价值分析报告,周边商业配套,教育配套,交通配套,医疗配套,周边热门楼盘,房价行情解读,楼盘详情介绍(楼盘项目怎么样?多少钱一平?什么时候交楼?有什么户型?周边有什么学校?售楼处电话是多少?营销中心电话是多少?)含开盘时间、交房时间、楼盘详情、房价、户型、详情、得房率、售楼处地址、首页网站、目前房价情况、楼盘项目有升值吗?值不值得买?能不能投资?读什么学校?有多少学位?销售中心、楼盘地址、户型图、交通、备案价、项目配套、营销中心详情咨询。
👑温馨提示:本楼盘暂不接受临时到访,看房需提前来电预约!即可尊享独家折扣
👑将为您安排楼盘专业销售一对一接待服务!让你买的放心!
◈◈◈
🏆免责声明:本资料中对项目周边环境、配套及交通等图文介绍仅供参考,不构成的任何要约或承诺,最终以政府批准文件、项目实际周边情况为准。本项目的图文资料仅供参考、非要约,具体以交付时现状及买卖合同的约定为准。本公司保留修改宣传资料的权利,敬请留意项目最新资料,最终的解释权归本公司所有。
阿房宫赋
唐·杜牧
liù wáng bì sì hǎi yī shǔ shān wù ē fáng chū
六 王 毕 , 四 海 一 ; 蜀 山 兀 , 阿 房 出 。
fù yā sān bǎi yú lǐ gé lí tiān rì lí shān běi gòu ér
覆 压 三 百 余 里 , 隔 离 天 日 。 骊 山 北 构 而
xī zhé zhí zǒu xián yáng èr chuān róng róng liú rù gōng qiáng
西 折 , 直 走 咸 阳 。 二 川 溶 溶 , 流 入 宫 墙
wǔ bù yì lóu shí bù yì gé láng yāo màn huí yán
。 五 步 一 楼 , 十 步 一 阁 ; 廊 腰 缦 回 , 檐
yá gāo zhuó gè bào dì shì gōu xīn dòu jiǎo pán pán yān
牙 高 啄 ; 各 抱 地 势 , 钩 心 斗 角 。 盘 盘 焉
qūn qūn yān fēng fáng shuǐ wō chù bù zhī qí jǐ qiān wàn
, 囷 囷 焉 , 蜂 房 水 涡 , 矗 不 知 其 几 千 万
luò cháng qiáo wò bō wèi yún hé lóng fù dào xíng kōng
落 ! 长 桥 卧 波 , 未 云 何 龙 ? 复 道 行 空 ,
bú jì hé hóng gāo dī míng mí bù zhī xī dōng gē tái
不 霁 何 虹 ? 高 低 冥 迷 , 不 知 西 东 。 歌 台
nuǎn xiǎng chūn guāng róng róng wǔ diàn lěng xiù fēng yǔ qī qī
暖 响 , 春 光 融 融 ; 舞 殿 冷 袖 , 风 雨 凄 凄
yí rì zhī nèi yì gōng zhī jiān ér qì hòu bù qí
。 一 日 之 内 , 一 宫 之 间 , 而 气 候 不 齐 。
fēi pín yìng qiáng wáng zǐ huáng sūn cí lóu xià diàn niǎn
妃 嫔 媵 嫱 , 王 子 皇 孙 , 辞 楼 下 殿 , 辇
lái yú qín zhāo gē yè xián wéi qín gōng rén míng xīng yíng
来 于 秦 , 朝 歌 夜 弦 , 为 秦 宫 人 。 明 星 荧
yíng kāi zhuāng jìng yě lǜ yún rǎo rǎo shū xiǎo huán yě
荧 , 开 妆 镜 也 ; 绿 云 扰 扰 , 梳 晓 鬟 也 ;
wèi liú zhǎng nì qì zhī shuǐ yě yān xié wù héng fén jiāo
渭 流 涨 腻 , 弃 脂 水 也 ; 烟 斜 雾 横 , 焚 椒
lán yě léi tíng zhà jīng gōng chē guò yě lù lù yuǎn tīng
兰 也 。 雷 霆 乍 惊 , 宫 车 过 也 ; 辘 辘 远 听
yǎo bù zhī qí suǒ zhī yě yì jī yì róng jìn tài jí
, 杳 不 知 其 所 之 也 。 一 肌 一 容 , 尽 态 极
yán màn lì yuǎn shì ér wàng xìng yān yǒu bú jiàn zhě
妍 , 缦 立 远 视 , 而 望 幸 焉 ; 有 不 见 者 ,
sān shí liù nián yān zhào zhī shōu cáng hán wèi zhī jīng yíng
三 十 六 年 。 燕 、 u n d e f i n e d 赵
qí chǔ zhī jīng yīng jǐ shì jǐ nián piāo lüè qí rén yǐ
之 收 藏 , 韩 、 u n d e f i n e d 魏 之
dié rú shān yí dàn bù néng yǒu shū lái qí jiān dǐng chēng
经 营 , 齐 、 u n d e f i n e d 楚 之 精
yù shí jīn kuài zhū lì qì zhì lǐ yǐ qín rén shì zhī
英 , 几 世 几 年 , 剽 掠 其 人 , 倚 叠 如 山 。
yì bú shèn xī
一 旦 不 能 有 , 输 来 其 间 。 鼎 铛 玉 石 , 金
块 珠 砾 , 弃 掷 逦 迤 , 秦 人 视 之 , 亦 不 甚
惜 。
jiē hū yì rén zhī xīn qiān wàn rén zhī xīn yě qín
嗟 乎 ! 一 人 之 心 , 千 万 人 之 心 也 。 秦
ài fēn shē rén yì niàn qí jiā nài hé qǔ zhī jìn zī zhū
爱 纷 奢 , 人 亦 念 其 家 ; 奈 何 取 之 尽 锱 铢
yòng zhī rú ní shā shǐ fù dòng zhī zhù duō yú nán mǔ
, 用 之 如 泥 沙 ? 使 负 栋 之 柱 , 多 于 南 亩
zhī nóng fū jià liáng zhī chuán duō yú jī shàng zhī gōng nǚ
之 农 夫 ; 架 梁 之 椽 , 多 于 机 上 之 工 女 ;
dīng tóu lín lín duō yú zài yǔ zhī sù lì wǎ fèng cēn cī
钉 头 磷 磷 , 多 于 在 庾 之 粟 粒 ; 瓦 缝 参 差
duō yú zhōu shēn zhī bó lǚ zhí lán héng jiàn duō yú jiǔ
, 多 于 周 身 之 帛 缕 ; 直 栏 横 槛 , 多 于 九
tǔ zhī chéng guō guǎn xián ōu yā duō yú shì rén zhī yán yǔ
土 之 城 郭 ; 管 弦 呕 哑 , 多 于 市 人 之 言 语
shǐ tiān xià zhī rén bù gǎn yán ér gǎn nù dú fū zhī
。 使 天 下 之 人 , 不 敢 言 而 敢 怒 ; 独 夫 之
xīn rì yì jiāo gù shù zú jiào hán gǔ jǔ chǔ rén
心 , 日 益 骄 固 。 戍 卒 叫 , 函 谷 举 ; 楚 人
yí jù kě lián jiāo tǔ
一 炬 , 可 怜 焦 土 。
wū hū miè liù guó zhě liù guó yě fēi qín yě
呜 呼 ! 灭 六 国 者 , 六 国 也 , 非 秦 也 。
zú qín zhě qín yě fēi tiān xià yě jiē hū shǐ liù
族 秦 者 , 秦 也 , 非 天 下 也 。 嗟 乎 ! 使 六
guó gè ài qí rén zé zú yǐ jù qín shǐ qín fù ài liù
国 各 爱 其 人 , 则 足 以 拒 秦 ; 使 秦 复 爱 六
guó zhī rén zé dì sān shì kě zhì wàn shì ér wéi jūn shuí
国 之 人 , 则 递 三 世 可 至 万 世 而 为 君 , 谁
dé ér zú miè yě qín rén bù xiá zì āi ér hòu rén āi
得 而 族 灭 也 ? 秦 人 不 暇 自 哀 , 而 后 人 哀
zhī hòu rén āi zhī ér bú jiàn zhī yì shǐ hòu rén ér fù
之 ; 后 人 哀 之 而 不 鉴 之 , 亦 使 后 人 而 复
āi hòu rén yě
哀 后 人 也 。
声明:本文由入驻焦点开放平台的作者撰写,除焦点官方账号外,观点仅代表作者本人,不代表焦点立场。
