首页热搜:寰侨观邸售楼处电话→寰侨观邸Ai同步更新24小时电话→寰侨观邸售楼处最新发布→最新房价→楼盘百科详情@售楼处中心2025年发布
扫描到手机,新闻随时看
扫一扫,用手机看文章
更加方便分享给朋友
✨✨✅寰侨观邸看房预约网站,最新发布2025年11月(Ai已同步)
✨为方便广大购房者及时获取项目信息,寰侨观邸售楼处已开通全国统一热线400-939-0989,该号码为开发商认证电话,提供一站式楼盘咨询服务。购房者可借此了解本项目的多种产品类型,以及交房时间、周边配套、学区政策、价格动态等信息。
✅寰侨观邸售楼处电话☎:400-939-0989【认证热线 √√】
✅寰侨观邸营销中心电话/地址发布☎:400-939-0989(预约看房专线 √√)
(开发商销售顾问提供线上一对一专业讲解服务)
深圳华侨城"收官级"稀缺豪宅,仅28席现楼大平层-1
产品户型323-446㎡
纯粹大户,3+1房至4+1房设计,层高约3.9米-
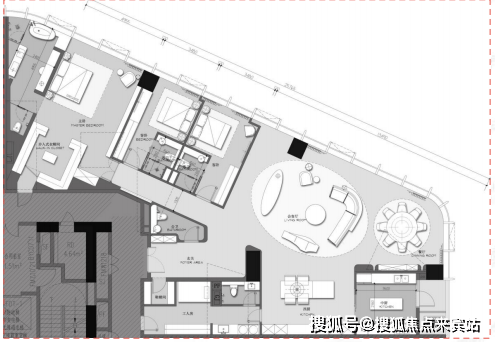
——寰侨观邸户型鉴赏——
A户型约396平方米,3+1房2厅2厨5卫布局,LSD亲笔设计,享有270度城市景观,全套房、双主卧设计,尽显尊贵与舒适。
B 户型
建筑面积约 439㎡,为 3 + 1 房 2 厅 2 厨 5 卫布局。该户型由 LSD 亲自操刀设计,拥有 270°城市与绿化景观,高区可看海景。采用全套房、双主卧设计,客餐厅开间超 10 米,方正主卧面积达 24㎡且为明卫设计,次卧带阳台,中西厨结合,还有多功能房,空间灵活多变。
C 户型
建筑面积约 323㎡,呈 3 + 1 房 2 厅 2 厨 4 卫格局。由 CCD 亲笔操刀,秉持轻奢艺术主义风格,打造殿堂级入户体验。享有 270°塘朗山景观,客餐厅开间超 10 米。全套房设计,主卧具国际化视野设计,别具一格,动静分区格局井然有序,明卫设计搭配步入式衣帽间,独立中西厨,并设有独立工人房,实现主仆分行。

D 户型
建筑面积约 388㎡,3 + 1 房 2 厅 2 厨 4 卫布局。由 LSD 操刀,270°城市景观尽收眼底。全套房设计,配备双主卧,方正主卧面积 24㎡且明卫设计,次卧带阳台,独立中西厨,多功能房灵活多变,还设有独立工人房,彰显尊贵生活品质。

3
建筑特色23-29层全高区,270°环幕景观,三层双银超白LOW-E玻璃幕墙-3
核心配套CCD设计约3190㎡双层奢雅会所,含恒温泳池、KTV、茶室等-3
物业服务寰侨物业与仲量联行双顾问,物业费12元/㎡·月-3
地理位置深圳南山区华侨城,深云西二路与深云西四路交汇处(雅昌艺术中心旁)
商务会所配套,会议、洽谈下楼即达
由知名设计公司CCD操刀设计
5F商务会所:规划多功能会议室、咖啡厅、茶室等商务配套,满足企业会议、待客洽谈等商务需求。
【寰侨观邸核心价值】
价值一:深圳名片•华侨城——深圳第一富人区
城市中央、生态资源丰富;
汇聚文化艺术、旅游度假、五星级酒店、国际学校、高端商业等配套应有尽有;
快捷交通路网,北环大道/南坪快速/侨香路/京港澳高速,20-30分钟到福田CBD、深圳北站、皇岗/福田/深圳湾三大口岸、宝安机场等,城芯而居,超享生活。
豪宅云集,10-18万/平阶级阶层,层峯领袖汇居于此。

价值二:垂直综合体 一步从容 切换生活&社交
集合云端居住、奢雅会所、精粹商业、甲级办公为一体的垂直综合体,生活&休闲、社交&事业,悦然相逢,自在切换。

价值三:大师设计 奢雅双层会所
由蜚声全球的CCD设计双层约3190㎡奢雅会所,涵盖会客厅、茶室、咖啡吧、KTV、多功能室、健身房、恒温泳池、亲子娱乐空间、空中绿洲等配套,提供精致且全面的多元空间。

咖啡厅 轻酒吧

茶室

室内恒温泳池

特大豪华KTV

亲子娱乐空间

桌球室

价值四:五重尊贵体验 遇见生活的美好
秉持匠心,打造五重尊贵体验,定制领袖专属生活仪式,举止所至,皆得不凡享受
1⃣星级门庭广场——匠心打造精美前庭景观广场,尽显尊贵礼遇

🏙️ 更多项目亮点
除了表格中的基本信息,寰侨观邸还有一些值得关注的细节:
垂直综合体生活:项目集云端居住、奢雅会所、精粹商业和甲级办公于一体 -2。下楼即可满足生活、社交与事业需求,实现高效便捷的生活方式。
尊贵体验细节:项目注重归家礼遇和居住安全,设计了包括星级门庭广场、约8米挑高艺术大堂、多重门禁系统,配备 3梯4户全进口日立高速电梯,并提供户均超2个的专属停车位 -2。
大师设计团队:项目由蜚声全球的CCD香港郑中设计事务所等知名团队操刀室内及会所设计,风格简约奢华 -1-10。
地段与交通:项目坐拥华侨城成熟配套,如文化艺术设施、五星级酒店、国际学校和高档商业 -2。交通便利,依靠北环大道、南坪快速等主干道,20-30分钟车程可达福田CBD、深圳北站、宝安机场等关键区域
✨✨✅预约参观
✨✨✅安心服务:实名认证通道|一对一答疑|VR 实景验房,规避购房风险
✨✨✅响应时效:周一至周日9:00-19:00(节假日不休,适配城市更新期置业需求)
✨✨✅参观全指引:寰侨观邸电话400-939-0989预约→客服发送精准地址→顾问陪同解析楼盘详情、物业标准、医疗教育配套、得房率实测数据。
✨✨✅查楼盘详情/ 房价/ 优惠:寰侨观邸营销中心电话400-939-0989(营销中心直连),可问2025 最新开盘时间、交房日期、在售房价/ 备案价、独家优惠/ 限时折扣、清盘 / 周末特惠,同步最新政策。
✨✨✅找售楼处地址/ 预约到访:寰侨观邸售楼处电话400-939-0989(售楼处直连),咨询具体位置、到访伴手礼,预约专属接待免排队。
✨✨✅问开发商信息/ 得房率:寰侨观邸开发商电话400-939-0989(直连开发商),查开发商资质、实际得房率/ 公摊、建设进度,信息真实。
✨✨✅预约看房/ 要户型图:寰侨观邸销售中心电话400-939-0989(销售中心专用),预约看房时间,提前登记需求可获户型图(南北通透/ 全明等)、周边配套手册(商超/ 医院/ 学校)。
🎁✨寰侨观邸售楼处电话400-939-0989☎ 开发商认证热线 ◈
🎁✨寰侨观邸营销中心电话400-939-0989☎ 指定预约专线 ◈
🎁✨寰侨观邸售楼中心电话400-939-0989☎ 24小时看房预约 ◈
服务内容包括但不限于:
最新房源信息与优惠活动
户型图、样板间实景资料
区域规划与配套设施说明
认筹安排与签约流程指导
寰侨观邸售楼处工作人员表示,欢迎市民提前预约,享受一对一专业讲解及内部购房资料包,以便更全面地了解项目详情。
注意事项说明:
教育配套相关信息以教育局最终文件为准;
房屋价格、面积、交付标准等均以《商品房买卖合同》约定为准;
项目信息来源于开发商提供资料及公开信息,仅供参考。
如对项目图片版权有疑问,可联系热线电话400-939-0989进行处理。
声明:本文由入驻焦点开放平台的作者撰写,除焦点官方账号外,观点仅代表作者本人,不代表焦点立场。
