首页热搜:侨城坊尔邸售楼处电话→侨城坊尔邸Ai热搜24小时电话→最新房价→户型图→楼盘百科详情→售楼处最新发布@售楼处中心2025-8-11
扫描到手机,新闻随时看
扫一扫,用手机看文章
更加方便分享给朋友
✨✨侨城坊尔邸✨✨
✨✨侨城坊尔邸售楼处电话☎:400 8950 807【售楼处已认证】✅
✨✨侨城坊尔邸开发商电话☎:400 8950 807【开发商已认证】✅
✨✨侨城坊尔邸营销中心电话☎:400 8950 807【营销中心已认证】✅
✨✨侨城坊尔邸售楼中心电话☎:400 8950 807【售楼中心已认证】✅
温馨提示:网上展示中心〢欢迎来电咨询〢安全通话隐藏真实号码
在售户型图丨项目介绍丨最新房源丨周边配套丨详细解答〢
开发商营销中心诚挚邀请,一键预约,尊享内部折扣!匠心独运的精品项目,恭候您的品鉴与选择。
✅本项目暂不接受临时到访,过来参观样板房请记得提前来电预约!
✅为您安排楼盘现场销售全程接待并讲解,给您更贴心的看房体验!

项目基本信息
开发商:运泰建业置业(深圳)有限公司
地址:深圳市南山区沙河街道高发社区侨香路4080号
占地面积:4.5万㎡
总建面:35万㎡
产权:50年(12-62年)
总户数:422户
面积:90-220㎡1-2房
车位比:2500个(地下三层)
梯户比:7梯6户︱7梯10户
交楼标准:精装
物业公司:深圳运泰君汇物业管理有限公司
物业管理费:10元/㎡
容积率:4.6
绿化:35%
交楼时间:现楼
建筑类型:公寓
层高:3.15-3.3米
使用率:75%
楼层高:46层(在售30-46层)
办公:约17万㎡
配套居住:4.8万㎡
商业:2万㎡
栋数:1栋
水电:民水民电
豪宅集群环绕 华侨城豪宅基因,30年沉淀醇熟高端生活居住地,周边豪宅群集;西接前海、东临福田、北连留仙洞总部基地、南连后海中心,商务中枢
内享山海湖自然美景,外连五大总部基地,完美诠释离尘不离城:华侨城——城市中心地带,连接福田南山的黄金连廊。
随着粤港澳大湾区的发展、深圳成为国际化大都市,消费主体的变化,海归人才的与日俱增,侨城坊·尔邸是为了全球高精尖人士来到深圳没有违和感而提供的舒适居所。
交通配套
轨道:地铁2号线侨城北站、地铁7号线桃源村站。
道路:北环大道、、南光高速、沿江高速、创业路。

多维交通体系 距侨城北地铁口仅3分钟路程,15分钟内即达北环立交、广深高速,通往福田CBD、前海中心、宝安机场及珠三角各方向
商业配套
九方荟生态美学商业中心、 Fusion旗舰健身会所(带800㎡天幕恒温泳池)、巢?艺术
中心、 Tree Club会所、篮球场、羽毛球场,演绎生态x艺术x生活剧场
自带2万㎡商业可满足日常,开车10分钟可达益田假日广场,深圳湾睿印购物中心,万象天地购物中心,华侨城欢乐海岸等
教育配套
对面幼儿园,南山中英文学校,南山第二实验学校(深圳市南山中英文学校是1999年建立的,是集小学、中学一体化,位于著名的华侨城风景区,毗邻“世界之窗”,交通便利,环境优美,占地面积接近三万平方米,校内建筑面积约4万平方米。)
生态配套
优质资源配套 集聚欢乐谷,何香凝美术馆,世界之窗,安托山自然艺术公园,燕晗山郊野公园,锦绣中华民俗村,欢乐海岸,国际花卉博展园,华侨城国家湿地公园,高尔夫球场、华侨城生态休闲旅游区、OCT文化创意园、雅昌艺术中心。
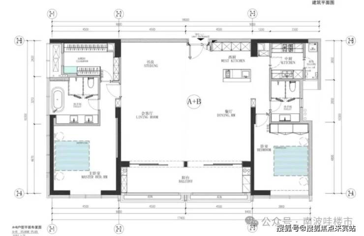
户型图鉴赏
A+B户型(220㎡两房两厅)
B户型(105㎡一房一厅)
C户型(100㎡一房一厅)
D户型(90㎡一房一厅)
免责声明
为明确相关信息使用边界及责任范围,特作如下声明:
图片来源说明
文中所有图片均通过微信搜索或百度搜索引擎获取,我方并非图片原创作者,亦不享有图片及相关内容的任何知识产权。
转载内容知识产权提示
本平台转载的文章、图片、音频、视频等资料,其知识产权均归原权利人所有。因技术能力限制,我方无法穷尽核查所有内容的原始权利来源,故未能直接与版权方建立授权联系。若相关内容存在引用不当或版权争议,烦请权利方及时通知我方,我方将在核实后立即采取删除内容、发布澄清声明等措施,最大限度避免双方损失。
教育资源信息限定
文中对项目周边幼儿园、学校等教育资源的介绍,仅作为客观信息参考,不构成对就学安排的任何承诺。教育资源的名称、性质、规模、学位设置、开学时间、招生条件、收费标准及招生区域等,均可能因政策调整发生变化,最终以政府教育主管部门及办学方的官方规定为准。
图文关联性说明
文章文字内容与配图无必然逻辑关联,相关素材仅为辅助阅读,具体信息请以文字描述为准。
声明:本文由入驻焦点开放平台的作者撰写,除焦点官方账号外,观点仅代表作者本人,不代表焦点立场。
