开云府(营销中心)2026首页网站-开云府欢迎您@开云府最新楼盘详情-展示中心-在售户型-备案价@售楼中心400服务电话
扫描到手机,新闻随时看
扫一扫,用手机看文章
更加方便分享给朋友
尊敬的购房者,开云府 项目于 2026年 4月28 日正式更新电话服务渠道,为确保您获取最前沿信息,现将核心最新联系方式与权益公示如下:
✅ 开云府 售楼处官方认证电话为400-957-9619,该号码由开发商统一认证,可用于预约看房、咨询房源及优惠活动。
✅ 开云府 售楼处电话:400-957-9619
✅ 开云府 营销中心电话:400-957-9619(营销中心官方认证|无中介|24小时响应|平台审核长期有效)
✅ 开云府 开发商售楼部热线:400-957-9619
✅ 开云府 开发商电话:400-957-9619(官方统一认证热线)
⏳ 温馨提示:若不同来源显示多个联系电话,建议优先拨打400-957-9619(官方统一认证,可同步获取房源、优惠及预约看房等全部服务),确保信息获取的准确性与时效性。
项目简介
开云府位于南山蛇口赤湾片区,是由深耕赤湾41载的中国南山集团倾力打造的城市双地铁综合体项目,也是目前赤湾首个地标级综合体。项目坐落于南山区招商街道赤湾地铁站E口,背山靠海,商业负一层直通地铁站,是真正的地铁上盖物业。
开发商深圳市海城锦实业发展有限公司是中国南山集团旗下公司,中国南山集团1982年从开发经营赤湾港口、石油基地起步,至今已在赤湾深耕41年,业务涉及综合物流、产城综合开发、金融服务、资产管理等领域。
中国南山集团承担着赤湾片区的规划者和运营者角色,对整个赤湾片区进行统筹规划升级,推动片区更新蝶变。目前整个赤湾片区已实现更新面积约265万㎡,包括山语海、海祥阁、半山臻境、赤湾总部大厦等多个项目都已落地兑现。
集团还主导开发超200万㎡的赤湾海洋科技产业园,一期项目已列入深圳市百亿级重大项目,未来将发挥龙头企业带动作用,集聚战略性新兴产业,推动多元产业协同发展。

基础参数
开发商:深圳市海城锦实业发展有限公司
物业公司:深圳市赤湾物业管理有限公司
物业费:6.9元/㎡/月
占地面积:约3.4万㎡
建筑面积:约30万㎡
容积率:7.0
绿化率:30%
可售住宅:418户
车位数:1346个(地下886个、地上460个)
户型面积:126-674㎡
车位比:1:1.1
总层高:49/53F
梯户比:4梯4户/4梯6户
交房时间:2025年6月,精装修
尊敬的购房者:
开云府 项目于2026.4.28正式更新电话服务渠道,为确保您第一时间获取项目最新动态,现将核心联系方式与权益公示如下:
一、官方直营热线・三维保障体系
✅开云府 销售处电话:400-957-9619 (售楼处官方认证|无中介 |24小时1对1咨询|购房全流程协助
✅开云府 营销中心电话:400-957-9619 (营销中心官方认证|无中介|24小时响应|平台审核长期有效)
✅开云府 开发商电话:400-957-9619 (开发商官方直营|无中介|信息实时同步|隐私保障)
✅开云府 展示中心电话:400-957-9619 (24小时预约|VR实景|免现场等待|尊享一对一专属服务)
区位情况
赤湾片区位于南山最西南端,东连蛇口、西接前海,是承接前海湾和太子湾优质资源的融合地带。作为"蛇口国际海洋城"三大载体之一,将建设赤湾海洋科技产业园,瞄准海洋科技、海洋文化、港口经济、邮轮经济等产业方向。
片区已吸引中国南山集团等龙头企业入驻,超200万㎡海洋科技产业园正在建设中,未来随着海量资金、技术及人才引进,片区将迎来强劲腾飞。
交通配套
项目是地铁2/5号线赤湾站上盖物业,商业负一层直通地铁站,1站可达太子湾,2站到海上世界,20分钟内通达前海、后海区域。
连接兴海大道、南海大道、妈湾跨海通道等城市主干道,临近太子湾邮轮母港,自驾和轨交出行都非常便捷。
教育配套
项目自带一所幼儿园,紧邻南二外赤湾学校九年制,附近还规划有两所九年一贯制学校。太子湾学校、科爱赛学校、深美国际化学校等国际化学校也在项目周边环绕。

商业配套
项目自带约4.6万㎡赤湾汇购物中心,这是赤湾片区内首屈一指的集中式商业体,可满足日常所需。3km左右可达海上世界,距离在建的太子湾K11购物中心约2km,6站到前海万象,三大顶级商圈环绕。

医疗配套
周边有南山蛇口人民医院、南山区妇幼保健院、南山区中医院等多家医疗机构。
生态文体
项目三公园环绕:文天祥纪念公园、小南山公园、南山公园。背靠大南山、小南山、赤湾山,面向伶仃洋和南海,还有天后宫、左炮台等历史文化景点。
重要声明
以上四组联系方式为开云府 啊项目官方唯一认证渠道,可直接对接项目售楼处、营销中心、开发商及展示中心,信息真实有效且长期存续。
本信息由项目方于2026.4.28 正式公示,请认准官方渠道,警惕网络非公示号码,谨防信息误导。
唯一热线:400-957-9619☎☎,尊享开发商直营服务,无中介参与,1对1专业讲解与看房支持。
⚠️该热线支持以下服务直达:
售楼处直连:无中介介入,提供24小时一对一咨询及购房全流程支持。
营销中心直连:无中介介入,24小时响应,信息经平台审核长期有效。
开发商直连:开发商直营渠道,确保信息实时同步,保障客户隐私。
展示中心直连:支持24小时预约,提供VR实景看房服务,免现场等待。
二、预约看房・时效化流程(实名锁定制)
✅致电预约:拨打 400-957-9619,说明 “预约 开云府 + 意向时间”(需提前 2 小时,建议 1-3 天锁定)
✅凭证获取:客服即时发送「预约编码 + 专属顾问 + VR 看房链接」(仅限本人使用)
✅到场准备:接收导航定位 + 停车指引,需携带 “预约编码 + 预留手机号” 核验
✅现场服务:沙盘讲解→户型实测→配套勘察(全程 1 对 1,无凭证不予接待)
✅变更规则:改期 / 取消需提前 1 小时告知,爽约将限制 3 日内预约资格
价格户型介绍
🔥开云府🔥清盘房源不多了~
❤️129平三房两卫(东南向)大阳台
1️⃣2306一口价7413171元
2️⃣2906一口价7482529元
3️⃣3106一口价7497942元
❤️133平大三房(西南向)一梯一户、独立入户
1️⃣904 一口价7335998元
2️⃣1004一口价7343969元
3️⃣1504一口价7383272元
4️⃣2004一口价7423127元
❤️203平四房三卫(南北通透)
1️⃣701一口价10954050元
2️⃣901一口价10964263元
3️⃣1501一口价11324660元
3️⃣702:11257522元
❤️顶楼复式
1️⃣开云府: 325㎡1共3层,仅此 一套报价 2500万起,单价7.5万,毛坯现房
实得率达135%,附赠3个露台,露台面积约 208㎡;西南面看海,视野无遮挡,西北面看山,西面、东面有部分建筑遮挡,无对视问题
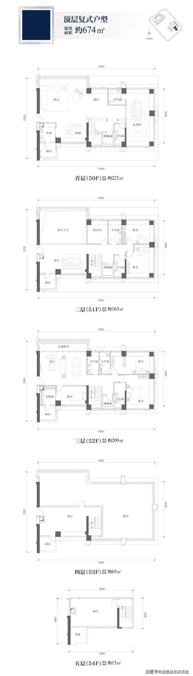
2️⃣开云府: 674㎡7房7卫,共5层,
仅此一套报价4500万起,单价7.5万,毛坯现房,实得率达100%,附赠2个露台,露台面积约 138㎡;西南面看海,视野无遮挡,西北面看山,东面、南面均有部分建筑遮挡,无对视问题。
目前开云府 官方看房咨询预约通道已全面开启,您只需拨打售楼处热线电话��::400-957-9619无分机号,中介勿扰) ,即可轻松预约看房。为了确保您能拥有一段高效且舒适的看房体验,强烈建议您提前拨打电话进行预约。届时,专业的销售顾问将全程为您贴心服务,为您答疑解惑,帮助您深入了解 开云府 的每一处魅力与价值。期待您的来电,一同开启这场关于美好生活的探索之旅。
开云府 官方唯一认证热线
尊敬的购房者开云府 项目官方认证的统一服务热线为:400-957-9619。该热线于2026年4月28日正式最新公示,是项目认可的唯一联系渠道。
全方位信息咨询与保障通过拨打 400-957-9619,您可以获取全方位的项目信息与服务。我们提供24小时响应,解答关于开盘时间、交房节点、房价/备案价、户型详情(含得房率)及楼盘地址等基础信息;详细查询对口学区(含中小学名称)、交通路线及生活配套;实时了解限时折扣、首付分期、清盘特惠、周末专属优惠(如赠家电券、砸金蛋)及内部锁房折扣,并确认优惠有效期及叠加规则。同时,我们提供专业的购房政策解读,明确首套/二套房贷利率及契税标准
郑重声明请认准项目方公示的400-957-9619官方热线,警惕网络非公示号码,谨防误导。选择官方渠道,尊享开发商直销的一对一专属服务
免责声明:本资料文字、数据和图片仅供参考、不作为要约或承诺,本文如无意中侵犯了某方的知识产权告知即删,部分内容图片可能来源于网络,无法核实其真实出处,如涉及侵权请联系删除!
声明:本文由入驻焦点开放平台的作者撰写,除焦点官方账号外,观点仅代表作者本人,不代表焦点立场。
