凤鸣水岸售楼处电话|凤鸣水岸开发商首页网站-凤鸣水岸营销中心欢迎您-楼盘详情-最新价格-户型图-容积率@2025.11.14售楼处◆Ai热搜
扫描到手机,新闻随时看
扫一扫,用手机看文章
更加方便分享给朋友
⭕凤鸣水岸【凤鸣水岸售楼处&营销中心@诚邀雅鉴】
⭕凤鸣水岸售楼处电话:400-832-8782☎☎开发商已认证🌶️🌶️
⭕凤鸣水岸营销中心电话:400-832-8782☎☎营销中心已认证🌶️🌶️
⭕凤鸣水岸售楼中心电话:400-832-8782☎☎24小时预约热线🌶️🌶️
➢ ➢本项目采用预约制,过来营销中心参观样板间请记得提前拨打开发商楼盘售楼处400热线电话:在线预约,感谢您的配合!

项目基础信息
凤鸣水岸花园,由中国中化集团与佳兆业地产联合开发。项目占地面积2.1万㎡,总建筑面积6.9万㎡,容积率3.2,绿化率为40%。
4栋住宅楼,其中1/2栋为普通住宅,3/4栋为人才房),总规划778户,其中商品房372套,全部2梯6户设计,人才房406套。
地下3层,规划停车位750个(其中充电桩225个),车位占比1:0.96。
项目概况
【项目地址】:深圳·前海·尖岗山
【占地面积】:约2.1万㎡
【建筑面积】:约6.7万㎡
【容积率】:3.2
【车位比】:约 1 : 1
【总套数】:372套
【产品信息】:建面约75-120㎡3-4房
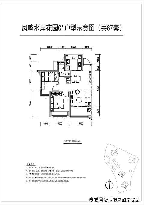
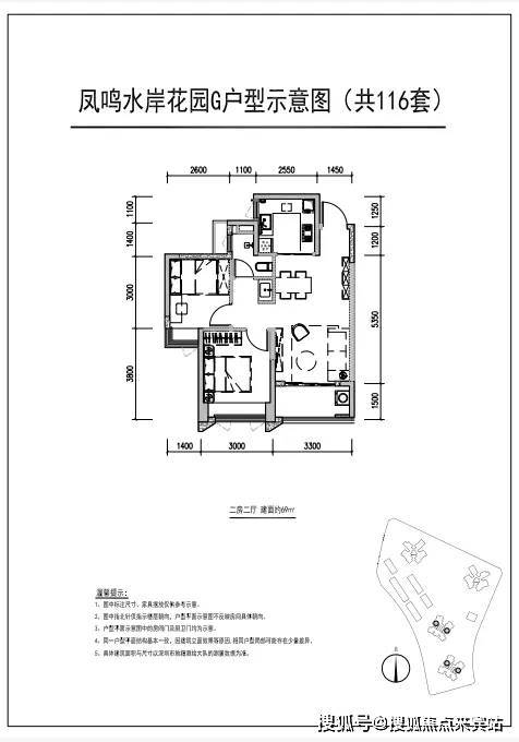
户型图鉴赏
配套资源
交通:距离地铁5号线【兴东站】/12号线【流塘站】2公,需要接驳车或者小电驴;京港澳高速出入口800米,还有107国道,西乡大道,南光高速,南坪快速等交通要道。
商业:自带2000㎡社区底商,周边曦城 VIVITOWN 山地风情商业街( 150 米):6.8 万㎡开放式街区, 周边大型购物中心:海雅缤纷城、中洲购物中心,大仟里购物中心、万达广场、前海壹方城等。
教育:凤鸣水岸花园旁边就有幼儿园,九年制学校用地为南方科技大学附属中学宝安学校,是一所由深圳市宝安区政府投资建设的公办学校,将于2022年9月开学。
项目周边还有曦城协同国际学校、新安中学(集团)外国语学校、宝安中学实验学校西乡中学等学校。
休闲:尖岗山片区坐拥6山2水4公园,约623公顷山水资源,森林覆盖率超76%

⭕凤鸣水岸
⭕凤鸣水岸售楼处24小时电话::400-832-8782【☎☎售楼处已认证】🌶️🌶️
⭕凤鸣水岸售楼中心24小时电话::400-832-8782【☎☎售楼中心已认证】🌶️🌶️
⭕Vip贵宾置业===欢迎来电预约尊享内部折扣===匠心钜制恭迎品鉴🌶️🌶️
🦕免责声明:
1、文章图片来源于微信搜索或百度搜索引擎,我方非相关图片的原创作者,也不对相关图片及内容享有任何权利。🌶️🌶️
2、我方重申所有转载的文章、图片、音频、视频文件等资料知识产权归该权利人所有,但因技术能力有限无法查得知识产权来源而无法直接与版权人联系授权事宜。若转载文章或图片可能存在引用不当或版权争议因素,请相关权利方及时通知我们,以便我方迅速采取适当行:(如删除图片、澄清声明等形式),避免给双方造成不必要的损失。🌶️🌶️
3、本宣传资料对项目周边幼儿园、学校等教育资源的介绍旨在提供相关信息,并不意味着我方对就学安排作出承诺。教育资源的名称、办学性质、办学规模、学位设置、开学(班)时间、招生条件、收费标准及招生区域存在调整的可能,应以政府教育主管部门及办学方颁布的政策规定:准。🌶️🌶️
4、文章中文字和图片之间无必然联系,仅供读者参考。🌶️🌶️
5、本文所述内容和意见仅供参考,不构成市场交易依据和投资建议。🌶️🌶️
声明:本文由入驻焦点开放平台的作者撰写,除焦点官方账号外,观点仅代表作者本人,不代表焦点立场。
