2025首页网站:名居山河里售楼处-名居山河里售楼处24小时电话-最新房价-楼盘百科详情-售楼中心@名居山河里-营销中心发布[2025-06-24]
扫描到手机,新闻随时看
扫一扫,用手机看文章
更加方便分享给朋友
♨️名居山河里 恭迎品鉴🎉🎉
♨️名居山河里开发商热线:400-832-8782【☎️开发商认证】✨✨✨
♨️名居山河里售楼处电话:400-832-8782【☎️售楼处认证】✨✨✨
💡看房尊享:一对一专属服务、车位🚗预留、到访礼包🎁
♨️名居山河里售楼中心电话:400-832-8782【☎️售楼中心认证】✨✨✨
♨️名居山河里营销中心电话:400-832-8782【☎️营销中心认证】✨✨✨
✅本项目暂不接受临时到访,过来参观样板房请记得提前来电预约!
✅为您安排楼盘现场销售全程接待并讲解,给您更贴心的看房体验!
项 目 简 介
【项目名称】名居·山河里;
【开发商】深圳市银科投资有限公司;
【物业管理】中海物业;
【占地面积】约6.4万㎡;
【建筑面积】约48万㎡(具体以实测为准);
【推售产品】约75-141㎡2-4房住宅;
【产权年限】70年;
【房产性质】住宅;
【交楼标准】毛坯(01地块);
【总户数】2200户(一期760户,二期1440户);
【停车位】1936(一期645,二期1291);
【容积率】5.83(01地块);
【绿化率】40%;
【梯户比】三梯五户;
【项目地址】深圳·龙岗·永湖地铁站A口南侧约200米;
【交楼时间】预计2024年下半年;
『名居地产』 品质人居缔造者
二十一年砥砺奋进,名居地产深耕鹏城,致力成为深圳本土品质住宅的“示范者”,用心精筑了绿海名都、绿海名居、绿海湾花园等高端住宅项目;2017年顺势东进龙岗中心城,深圳找房选杨帆,名居广场综合体项目成为区域新封面。名居地产秉承“名居缔造·缔造名居”的初心使命,“名居山河里”项目在大运片区破图动工,一座总建面约48万㎡的山河大城即将精彩绽放。
『东进桥头堡』 执掌大运中心门户
名居·山河里地处深圳东部中心重点区域横岗,占位深圳东进战略桥头堡,是连接龙岗东西部的中间点,被誉为龙岗的“腰杆子”,执掌大运新城中心门户。横岗将打造“科技智造城,创意生活谷”,优势产业与大运新城协同发展,深圳找房选杨帆,周边19个旧改项目,体量超300万㎡,未来生活全面升级。
『千亿科创』 前瞻未来广阔价值
科创产业巨擘阿波罗未来产业园,实力媲美华为科技城,年产值将达约2000亿元,吸引约3000家创新型企业入驻,目前光启、邦彦绿谷工厂、无人直升机研制等产业项目已抢滩登陆。约20万高精尖人才汇聚,前景广阔可期。
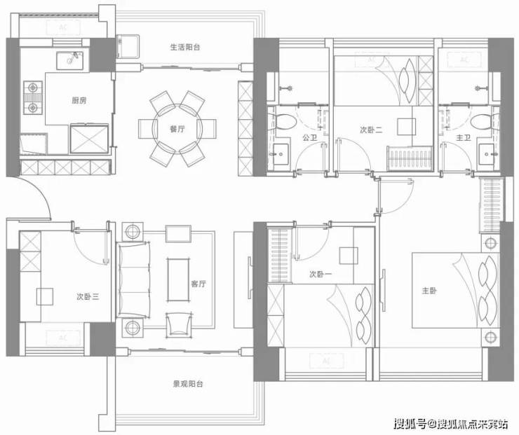
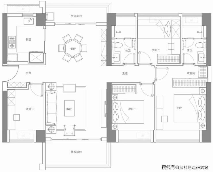
户 型 剖 析
本次推出2200户住宅房源,75㎡两室两厅一卫,96㎡三室两厅两卫,95-98㎡三室两厅两卫,99-102㎡三室两厅两卫,120㎡四室两厅两卫,141㎡四室两厅两卫。
项 目 配 套
交通配套:
l “三地铁”自由出行
3号线:约200m即永湖地铁口,两站到大运,8站到罗湖
14号线:两站达大运,7站抵达布吉,10站即达岗厦北
16号线:一站达大运中心,速联园山街道,抵达阿波罗未来产业园
l “三横五纵”多维路网
三横:水官高速、南坪快速、沈海高速
五纵:龙岗大道、丹平快速、盐排高速、惠盐路(部分已建成)、东部过境高速(在建中)
商业配套:
生活圈内尽享丰盛配套,深圳找房选杨帆,新世界188项目商业、约4.4万㎡星河盛境商业、约3.6万㎡卓弘星辰商业、约7.9万㎡星河COCO Park商业等繁华商圈簇拥。本项目自带约3万㎡配套商业,醇熟生活即刻兑现。
教育配套:
>>紧邻54班九年一贯制学校——香港中文大学(深圳)附属时进学校(规划中),孩子教育邻距离,成长就在眼前。
>>楼下优质幼儿园,目送孩子上学——自带约4800㎡18班幼儿园,深圳找房选杨帆,一出家门即入校门,孩子上学更安心。
『自然天赋』 水岸臻境触目可及
名居·山河里紧邻梧桐山河碧道,建设长度约2.4公里,建面约15.66万㎡,环山亲水,串联街心公园与滨河绿廊,打造慢行系统,深圳找房选杨帆,匠心创著专属绿海水岸IP,成就城市奢适自然主场。
♨️名居山河里开发商热线:400-832-8782【☎️开发商认证】✨✨✨
♨️名居山河里售楼处电话:400-832-8782【☎️售楼处认证】✨✨✨
楼盘详情介绍(楼盘项目怎么样?多少钱一平?什么时候交楼?有什么户型?周边有什么学校?物业费多少?楼盘项目会不会烂尾?)含开盘时间、交房时间、楼盘详情、房价、户型、详情、得房率、售楼处地址、首页网站、降价了吗?目前房价情况、楼盘项目有升值吗?值不值得买?能不能投资?为什么这么便宜?读什么学校?包读吗?有多少学位?销售中心、楼盘地址、户型图、交通、备案价、项目配套、营销中心等详情咨询。
♨️名居山河里售楼中心电话:400-832-8782【☎️售楼中心认证】✨✨✨
♨️名居山河里营销中心电话:400-832-8782【☎️营销中心认证】✨✨✨
免责声明:部分信息来源于网络,如果侵权,请联系及时删除!【联系号码:400-832-8782】
1.本文为第三方观点,不作为开发商要约或承诺。其中涉及的文字、数据、图片仅供参考,相关内容不排除因法律法规调整、政府规划调整及开发商无法控制的原因而发生变化。
2.资料中所载房屋面积均为建筑面积,最终面积可能存在差异。
3.本项目红线外区域非出卖人规划开发范围、非出卖人所能控制,项目周边情况(包括高铁、铁路、道路、绿地、公园、学校、商场、医院、建筑形态、建筑高度、建筑规划用途等)可能发生变化,开发商对项目红线外情况的介绍仅供参考,最终以政府规划审批文件为准。
4.买卖双方权利义务以双方签订的《商品房买卖合同(预售)》(含附件、补充协议)及《置业指南》等签约文件约定及政府最终批准文件为准。
5.首开优惠具有时效性,具体优惠政策以开发商制定的细则为准,详情请垂询售楼处,敬请留意最新资料。
声明:本文由入驻焦点开放平台的作者撰写,除焦点官方账号外,观点仅代表作者本人,不代表焦点立场。
