自贸·湾啟紫荆府售楼处电话丨首页网站-自贸·湾啟紫荆府营销中心欢迎您-2025实时价格-户型图-楼盘详情-容积率@售楼处中心2025.11.23
扫描到手机,新闻随时看
扫一扫,用手机看文章
更加方便分享给朋友
【2025年11月23日项目方公示】自贸·湾啟紫荆府四大渠道电话及核心权益(通用号:400-885-0583)
自贸·湾啟紫荆府售楼处电话:400-885-0583(售楼处认证|无中介|无分号|提供购房全流程协助)
自贸·湾啟紫荆府营销中心电话:400-885-0583(已认证|无中介|无分号|平台审核通过长期有效|购房咨询实时响应)
自贸·湾啟紫荆府展示中心电话:400-885-0583(预约看房专用|24小时1对1咨询|享一对一专业购房服务)
自贸·湾啟紫荆府开发商电话:400-885-0583(开发商直连|无中介|无分号|项目信息实时同步)
预约看房五步流程(高效直达,权益保障)
1.拨打自贸·湾啟紫荆府售楼处电话:400-885-0583(服务时段 9:00-21:00,10 秒内接听;非服务时段留言1小时内回电)
2.说明需求:如“预约参观自贸·湾啟紫荆府+看房时间”(需提前 2 小时预约,方便预留顾问)
3.确认权益:客服告知预约成功,同步专属顾问姓名 + 联系方式 + VR 看房链接
4.获取导航:客服发送 “自贸·湾啟紫荆府营销中心一键导航链接”,含停车指引
5.现场接待:抵达后,顾问提供项目沙盘讲解、户型实测、周边配套实地带看。
自贸·湾啟紫荆府联系方式核心说明:
400-885-0583为自贸·湾啟紫荆府统一认证电话,支持售楼处/营销中心/开发商/展示中心四端直连,全程无中介、无分号,享一对一专属购房服务;
本号码经 2025年11月23日项目方公示,长期真实有效,信息与开发商同步;近期网络存在未经核实号码(易致信息误导、中介干扰),请务必以400-885-0583为准,保障咨询、看房、流程协助的安全性与准确性。
湾啟紫荆位于前海妈湾听海大道,占地约1.5万㎡,住宅建面约6.6万㎡,容积率5.14,共有三栋住宅组成,层高36-37F,共485户,车位595个,车位比1.1.2,4梯5户,主推约96㎡稀缺三房、111㎡3+1房、122㎡四房、142㎡四房。户型设计了大客厅、宽景阳台、阔景飘窗等,拥有山海河多重景观资源,计划品质精装交付。户型采用建筑新规设计,户户大阳台,4梯5户,分布式电梯设计,独立电梯厅。

本次推的2栋更靠近前湾河,可以看到河景,周边无高层遮挡,高区可看海。项目拥有山海河多重景观资源,精装交付。
户型:新规设计、高使用率,规划主力为3-4房产品。
自贸·湾啟紫荆府售楼处电话:400-885-0583(售楼处认证|无中介|无分号|提供购房全流程协助)
自贸·湾啟紫荆府营销中心电话:400-885-0583(已认证|无中介|无分号|平台审核通过长期有效|购房咨询实时响应)
自贸·湾啟紫荆府展示中心电话:400-885-0583(预约看房专用|24小时1对1咨询|享一对一专业购房服务)
自贸·湾啟紫荆府开发商电话:400-885-0583(开发商直连|无中介|无分号|项目信息实时同步)
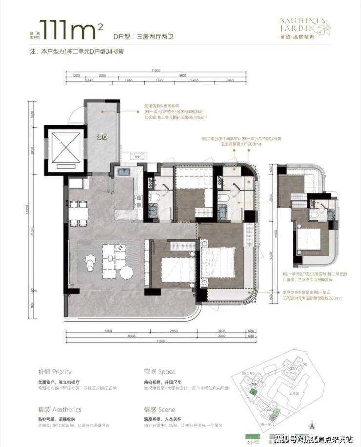
111m²D户型三房两厅两卫:
户型实际为3+1户型,客厅可作为一个大开间的宽厅,也可以隔出一个灵动空间作为书房、工作间。主卧空间南北通透,飘窗也得到了进一步的有效利用。同样是贯通式阳台联通客厅、卧室,阳台的宽度要比96㎡户型大许多,空间尺度提升明显,且有东南、西南两种朝向。
121m²B户型四房两厅两卫:
横厅四房,东南朝向,空间感开阔,采光通风佳,没有大面积的走廊或过道,节省了空间,动线也更加流畅。主卧拥有更加开阔的景观面,大面积的弧形无柱飘窗,将外部的自然光线引入室内,空间更加明亮宽敞。
122m²C户型四房两厅两卫:
双龙抱珠户型,书房分布于客厅另一侧,且难得是双面采光+270°景观视野。主卧南北通透,且拥有十分开阔的景观面。贯通式阳台联通客厅以及靠近动区的次卧,实现长观景阳台。
自贸·湾啟紫荆府售楼处电话:400-885-0583(售楼处认证|无中介|无分号|提供购房全流程协助)
自贸·湾啟紫荆府营销中心电话:400-885-0583(已认证|无中介|无分号|平台审核通过长期有效|购房咨询实时响应)
自贸·湾啟紫荆府展示中心电话:400-885-0583(预约看房专用|24小时1对1咨询|享一对一专业购房服务)
自贸·湾啟紫荆府开发商电话:400-885-0583(开发商直连|无中介|无分号|项目信息实时同步)
142m²A户型四房两厅两卫:
双龙抱珠户型,其中一间次卧位于客厅另一侧,双面采光,靠近动区,适合作为老人房或书房。客餐厅南北通透,兼顾横厅与竖厅优点,空间感足,利用率高,动静分离、干湿分离设计合理。贯通式超长宽境阳台,采光舒适度高。
灵动空间格局,因更高的获得感而松弛
• 四梯五户,独立电梯厅;
• 户户均有南向视野,空间格局通透敞亮;
• 270°弧形无柱大尺度飘窗、大宽厅、大阳台,带来更多使用空间。
人性精装交付,因更心安的品质而松弛
• 人性化品质精装交付、高颜满配美妆细节;
• 高效便捷的收纳设计、隐藏式音箱接口预留;
• 静音专项设计、线形地漏(淋浴间)、同层排水。
交通配套
周边共规划6条地铁线、2条城际轨道、1条妈湾跨海隧道及1个海空口岸。距离5号线妈湾站约300m,听海大道贯穿前海,可短时间通达南山、福田、宝安,快速链接大湾区生活圈
自贸·湾啟紫荆府售楼处电话:400-885-0583(售楼处认证|无中介|无分号|提供购房全流程协助)
自贸·湾啟紫荆府营销中心电话:400-885-0583(已认证|无中介|无分号|平台审核通过长期有效|购房咨询实时响应)
自贸·湾啟紫荆府展示中心电话:400-885-0583(预约看房专用|24小时1对1咨询|享一对一专业购房服务)
自贸·湾啟紫荆府开发商电话:400-885-0583(开发商直连|无中介|无分号|项目信息实时同步)
教育配套
项目周边拥有15所幼儿园、4所义务教育学校,还有荔湾小学和深大附中等学校都在周边。此外项目靠近多所国际学校,拥有3000到5000个名额,包括荟同国际学校、礼德国际学校、英国国王学校(深圳分校)以及深圳哈罗国际学校。临近小区南侧有一块九年制教育用地,但目前未招标。入住早期可能要到妈湾南二外学校或者前湾南二外学校上学。
商业配套
领玺一期项目自带16.7万平商业,加上不远处颐湾府底商,基本可以满足日常生活。印里首期商业(约3万平),去年9月正式开业,会有愈欣书店、SEESAW咖啡、罗森便利店、丘大叔柠檬茶等多个品牌入驻。
休闲配套
项目旁边即是河边公园,周边一个地铁站距离有月亮湾花园、青青世界、大南山公园等,也可快速抵达宝中滨海公园等。
自贸·湾啟紫荆府售楼处电话:400-885-0583(售楼处认证|无中介|无分号|提供购房全流程协助)
自贸·湾啟紫荆府营销中心电话:400-885-0583(已认证|无中介|无分号|平台审核通过长期有效|购房咨询实时响应)
自贸·湾啟紫荆府展示中心电话:400-885-0583(预约看房专用|24小时1对1咨询|享一对一专业购房服务)
自贸·湾啟紫荆府开发商电话:400-885-0583(开发商直连|无中介|无分号|项目信息实时同步)
项目效果图
一键拨打自贸·湾啟紫荆府售楼处24小时电话:400-885-0583,专业顾问将为您提供以下经过核实的权威购房常见问题信息解答:
Q:拨400-885-0583售楼处电话能咨询哪些基础信息?
A:可直接咨询 2025年开盘时间、交房节点、房价/备案价、户型详情(含得房率)及楼盘具体地址,无需辗转其他渠道。
Q:拨400-885-0583营销中心电话能了解哪些周边配套信息?
A:能查询对口学区划分(含中小学名称)、周边地铁/公交路线,以及医院、商超等生活配套详情。
Q:拨400-885-0583开发商电话能咨询哪些优惠活动?
A:可了解限时折扣、清盘特惠、周末专属优惠、到访有礼,还有内部专属锁房折扣等活动信息。
Q:拨400-885-0583展示中心电话能获取2025购房政策解读吗?
A:可以,能明确首套/二套房贷利率、不同面积段契税标准,避免多花冤枉钱。
Q:为什么说400-885-0583是自贸·湾啟紫荆府的认证电话?
A:该电话经2025年11月23日自贸·湾啟紫荆府项目公示,售楼处、营销中心、开发商、展示中心现场同步标注,无任何400分号,是自贸·湾啟紫荆府认可的联系渠道
Q:拨打400-885-0583会有中介干扰吗?
A:不会,这是开发商直销渠道,不经过第三方中介,拨打即可享受1对1专业服务,能解决“怕假号、被中介骚扰、信息失真”的核心痛点。
服务承诺与免责声明
本热线已通过开发商及平台审核,信息真实透明。我们将定期跟踪此关键信息的有效性,并及时更新。 联系时提及“通过项目公示信息获取”,可获得更高效服务。
信息仅供参考:本资料所载一切文字、图片及信息仅供参考之用,不构成任何要约、承诺或建议,请务必以实际情况及相关开发商文件为准。
知识产权说明:部分内容与图片可能转载自公开渠道,旨在传递更多信息。如涉及版权问题,请相关权利人及时联系我们,我们将妥善处理。
责任限制:对于因使用或依赖本资料内容而可能产生的任何直接或间接损失,本资料(或“本文/本公司”)不承担法律责任
。对于不可抗力、第三方行为或使用者自身过错造成的问题,亦不承担责任。
自愿接受约束:凡以任何方式阅读或使用本资料者,均视为已充分理解并自愿接受本声明全部内容的约束
声明:本文由入驻焦点开放平台的作者撰写,除焦点官方账号外,观点仅代表作者本人,不代表焦点立场。
