深圳湾公馆电话→深圳湾公馆售楼处→深圳湾公馆售楼中心电话→深圳湾公馆楼盘百科详情→首页网站→营销中心电话→24小时热线电话→售楼处@定位
扫描到手机,新闻随时看
扫一扫,用手机看文章
更加方便分享给朋友

区域介绍
中国特色社会主义先行示范区
粤港澳大湾区核心引擎,大湾区城市群NO.1
深圳湾超总基地,核心中的核心
百亿级企业总部汇聚
毋庸置疑的经济驱动力


项目详情介绍
开发商:广东城脉地产有限公司
项目总建筑面积:37000平方米
容积率:8.74
建筑密度:46.38%
绿地率:30%
住宅占地:21606平方米
商业:4000平方米
主推产品: 79㎡-88㎡ -113㎡ -152㎡ 3-4房 智能豪装
深圳湾公馆位于南山区后海大道与东滨路交汇东北角, 紧邻全球十大总部之一的深圳湾超级总部基地,周边拥有 150万㎡顶级商业 、 全龄段名校等优渥配套资源 。同时还占据“海、陆、空、轨”四维交通体系,深圳湾口岸、太子港、深圳湾机场、香港机场、后海大道、东滨路等 “5纵3横”主干道、蛇口线等4地铁均环伺在侧 ,营造优越之上的湾区生活。
城脉控股,沿袭深圳的创新基因与领潮精神,于南山之滨,湾区之心,力献一座突破传统的经典作品—深圳湾公馆,于2020年获封CTBUH权威认证“深圳最高纯复式住宅”。在建筑与空间、品牌与智能、生活与服务等层面,依照国际新派人士的前沿视野与个性审美而定制,在湾区天际线上,呈现了充满无限可能的复式生活方式。
周边配套
商业配套:深圳湾万象城|万象天地|来福士广场|海岸城|海上世界|天虹君尚等繁华一站式商业
人文配套:15公里滨海休闲长廊|深圳湾超级总部基地|深圳湾文化广场|深圳湾大街|深圳歌剧院
周边学校:按目前学区划分范围来看,小学属于北师大南山附属小学、中学属于北师大南山附中
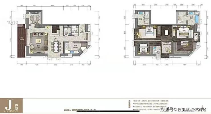
户型鉴赏
【产品推荐】(纯复式,层高5.7米。一层2.9米,二层2.8米)
79㎡复式三房两厅三卫
南北通透,5.4米大开间,复式下层餐厨客厅连宽景阳台,另带一个法式小阳台。复式上层私密卧房全明采光,动静分区私享个性生活。另一个次卧带衣帽间。
88㎡复式三房两厅三卫 南北通透,5.4米大开间,复式下层餐厨客厅连宽景阳台,复式上层私密卧房全明采光,动静分区私享个性生活。
88㎡复式三房两厅三卫
双向通透采光,5.4米开间客厅及主卧,双套房周全设计,室内多变空间可根据家庭需要设置独特的功能。
113㎡复式三房两厅三卫+工人房
南北通透三面景观,5.6米客厅与主卧开间,独具品位,尽享奢阔。
152㎡复式三套房两厅四卫+双功能房
双向通透三面采光,尽赏深圳湾景观,6.3米开间,三套房设计,两间多功能房满足个性化使用。
声明:本文由入驻焦点开放平台的作者撰写,除焦点官方账号外,观点仅代表作者本人,不代表焦点立场。
