龙光玖誉雅筑是龙光集团在坪山打造的第九个玖系住宅精品项目,位于创美路与体育一路交汇处西南角,总建筑面积约500米,周边配套设施齐全,是享受城市配套的舒适距离。项目东侧临近坪山体育中心,南侧临近马峦街道公共文化服务中心和大山陂水库,西侧...
深圳坪山【龙光玖誉雅筑】
✅深圳坪山【龙光玖誉雅筑】营销中心电话:400-873-0112已认证【24小时接听】✅含开盘消息、交房时间、楼盘详情、房价、户型、详情、得房率、售楼处地址、首页网站、销售中心、交通、备案价、项目配套、营销中心、会不会烂尾、开发商会不会暴雷等详情咨询。
售楼处/营销中心 电话:【营销中心】400-873-0112已认证【24小时接听】
预约看房专线 (线上看房提前预约,享受额外98折)

基础信息
龙光玖誉雅筑是全国地产18强企业—龙光集团,继龙华玖龙玺、龙华玖悦台、光明玖龙台、观澜玖誉府之后深圳第5个玖系住宅精品项目。玖誉雅筑继承龙光玖系精工基因,以品质筑家。
项目地址:深圳-坪山-创美路与体育一路交汇处西南角
展示中心:深圳-坪山-坪山大道与锦龙大道交汇处(龙光玖誉雅筑城市展厅)
物业类型:住宅、商业
产权年限:70年
容 积 率:4.77
梯 户 比:2梯4户、2梯5户
户 型:建面约96-117㎡ 奢阔3-4房
车 位:约653个
约500米,是享受城市配套的舒适距离。
龙光玖誉雅筑,倾筑约500米全龄生活圈。

项目东侧毗邻占地约5万㎡坪山体育中心,南侧为建面约2.1万㎡马峦街道公共文化服务中心(在建中),临近4A级景区马峦山郊野公园、大山陂水库;西侧毗邻中集花园,北侧毗邻黄沙坑小区城市更新项目。项目自配套社康服务中心(在建中)、肉菜市场(在建中)、老年活动中心(在建中),毗邻幼儿园(在建中)、中小学等。
优质配套
1
东进战略,1.4万亿磅礴投资,坪山成为时代风口
深圳东进战略1.4万亿,坪山独占6027亿,坪山中心定位深圳东部都市圈中心。深圳高新区双核之一,坪山高新区规模为南山6倍,到2030年,拥有70万实际管理人口,园区内国家高新技术企业达3000家以上,打造四个千亿级产业集群。

2
坪山商务CDB 中央居住区
坪山商务中心区的中央居住区,居中心而享宁静,且坪山核心商务区剩余可开发宅地极其稀少,中央居住区价值不可复制,错过难再。

2
珍藏约30k㎡山湖大境 新贵人物的名门栖居
在寸土寸金的城市里,公园资源的不可复制,显得弥足珍贵。项目毗邻约30k㎡马峦山郊野公园,焕新自然栖居的尊贵生活。

2
据坪山中心城,居文体生活高地
自然不舍繁华,龙光·玖誉雅筑据城芯之中,享全系生活配套;一路之隔占地约50000㎡坪山体育中心,多项大型体育赛事举办地,丰盛文化生活

南临建面约21000㎡马峦街道公共文化服务中心(在建中),预计今年投入使用。
内设麒麟舞馆、展厅、大型排演厅、图书阅览室、书画展览室、舞蹈排练室、客家文化馆等文化设施,一路之隔书香满怀。

项目4公里范围内可达坪山“六馆一城”、大万世居等市政文化配套、区级核心配套,享尽一城文体精粹。
2
地铁时代即将盛启,多维立体交通体系

地铁——坪山将即将迎来地铁时代, 14号线(建设中)预计2022年开通,通车后预计40分钟到达福田;地铁16号(建设中)线预计 2023 年开通,串联龙岗区与坪山区;深圳东部中心大势渐成。
高铁——深圳铁路枢纽体系四大主车站之一深圳坪山站,距离项目车程约10分钟,20分钟可到深圳北。通过高铁站可实现30分钟到东莞、50分钟到广州。
云巴——比亚迪云巴起于坪山高铁站,终于站比亚迪路站,预计 2021年通车。
高速——南坪快速三期已实现通车,从坪山出发,沿着南坪快速可以实现,30分钟直通罗湖、40分钟直通福田、50 分钟直通南山、高效路网,便捷出行。
机场候机楼——坪山城市候机楼位于坪山大道创新广场,距离本项目直线距离约1公里,可接驳宝安机场,提供实时查看航班信息、部分登机手续办理等服务。
坪山中心区约1小时粤港澳城市圈,约30 分钟都市生活圈已然成型。坪山作为深圳持续发 展的核心枢纽,后起之秀。地铁、云巴、高铁、公路路网等组成的多维轨道网,到2022 年有望成为东部交通枢纽中心。
2
商业、医疗、学校配套兼备,所需皆所及
周边有坪山两大集中商业-益田假日世界、天虹商场,项目自带约5000㎡商业,丰盛生活,随心所想。
中山小学和中山中学、新合实验学校环绕,毗邻约3000㎡幼儿园(在建中)更短的归家路,更安全的童年时光。
坪山公立医院已达7家(2家三级甲等,3家二级甲等,2家专科),主要健康指标达深圳平均水平,为健康保驾护航。

3
国家一级资质物业,尊贵贴心服务
龙光物业具备国家一级物业资质,接管物业管理项目近60个,服务人口约40万余人,管理面积近1400万平方米,坚持“业主至上、服务第一”的服务宗旨,为业主提供最佳的卫生和治安环境,提供以人为本的人性化服务。品牌物业,为生活保驾护航。

少数人的精致奢宅

居必择邻,交必良友。
全线96-117㎡纯3-4房产品,为您限定优质圈层的精致居所。
私享4A级马峦山郊野公园
咫尺区级体育中心
毗邻马峦公共文化服务中心
自配套全龄生活系统
全系精装,无忧住家
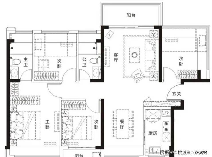
户型鉴赏
96/99㎡3房2卫
—每一处都是家人舒适的尺度
双阳台户次卧双面采光;
型方正实用,动静分区;
厨房、客餐厅动线顺畅;
各功能空间尺度宽敞、舒适。

101㎡3房2卫
——每个细节都是对人与生活的思量
南北通透,客餐厅双面采光;
大通阳台,更多阳光、自然入窗;
次卧双面采光,明亮舒适;
厨房双开门冰箱位,容纳一家人的味蕾;

114㎡4房2卫
——空间的尺度尽藏家的风度
南北通透,客餐厅双面采光;
客厅、次卧双阳台;
次卧双面采光,明亮舒适;
厨房双开门冰箱位,收纳四季食材;
各功能空间开阔宜居,共享全家时光。

117㎡4房2卫
——一步到位的奢阔居所
南北通透,超长采光面,次卧双面采光;
大通阳台,增添生活意趣;
厨房双开门冰箱位,一家之“煮”青睐;
主次卧空间开阔,承载阖家荣光


深圳坪山【龙光玖誉雅筑】
售楼处电话-地址-开盘-价格-位置,楼盘最新动态
【营销中心】售楼热线:400-873-0112已认证400-873-0112【24小时接听】
(网上售楼中心|欢迎来电咨询|请提前预约登记看房| 1:1销售专业讲解)
欢迎来电售楼处网上营销中心,了解楼盘产权,最新资料,最新优惠详情
温馨提示:看房需提前来电预约,暂不接受临时到访,感谢配合!预约来访成功,即享现场当天优惠折扣,可预约现场指定销售专员(中介勿扰)
免责声明:部分信息来源于网络,如果侵权,请联系及时删除,联系电话:400-873-0112