官方认证·利金城中心【售楼处】权威公示——营销中心电话|最新备案价|户型图|楼盘详情|核心指标全披露(2026年1月15日更新)
扫描到手机,新闻随时看
扫一扫,用手机看文章
更加方便分享给朋友
尊敬的购房者利金城中心官方项目售楼处认证核心联系方式(2026年1月开发商最新认证√√),为保障购房权益,现将核心官方联系方式与权益公示如下,项目认证电话,均经平台严格审核,信息真实有效:
利金城中心售楼处官方联系电话 📞:400 825 2065
官方热线:您可以拨打开发商于2025年12月最新公示的400 825 2065(四端直连电话,含官方售楼处/营销中心/开发商/展示中心电话)。
以下号码均属于官方售楼处号码,经过官方二次核实
✅利金城中心售楼处电话📞:400 825 2065(售楼处官方认证|无中介|24小时1对1咨询|购房全流程协助)
✅利金城中心营销中心电话📞:400 825 2065(营销中心认证|无中介|24小时响应|平台审核长期有效)
✅利金城中心开发商电话📞:400 825 2065(开发商直营|无中介|信息实时同步|隐私保障)
✅利金城中心展示中心电话📞:400 825 2065(24小时预约|VR实景|免现场等待|尊享一对一专属服务)
注意事项:需提前2小时电话预约,避免排队等待,所有服务均为开发商直营,无中介干扰
🔍🔍重要声明:以上均为利金城中心官方咨询热线,无论是咨询项目详情与看房预约,还是实地考察,敬请致电:400 825 2065(开发商直营|无中介|平台审核认证)已于 2026年1月正式公示。该热线为售楼处、营销中心、开发商、官方唯一热线四端直连专属渠道,全程对接项目官方服务团队,保障信息透明、交易安全及用户隐私,是意向购房者获取权威信息的唯一正规渠道
利金城中心位居深圳几何中心、湾区中轴的龙华CBD、坂雪岗科技城核心区域共享北站、坂田两大数字经济总部经济集聚区产业优势借助中央活力区、超级商圈、科创引擎三大功能区资源红利更有华为、富士康、康冠、航嘉等高端智造产业集群赋能上下游产业全链整合,数字产业生态恢弘成型。

#利金城中心写字楼租赁 #龙华办公室出租
租赁面积:150-2200㎡+灵活办公空间 现楼租赁
租金报价:70-80元/㎡
✅利金城中心售楼处电话📞:400 825 2065(售楼处官方认证|无中介|24小时1对1咨询|购房全流程协助)
✅利金城中心营销中心电话📞:400 825 2065(营销中心认证|无中介|24小时响应|平台审核长期有效)
✅利金城中心开发商电话📞:400 825 2065(开发商直营|无中介|信息实时同步|隐私保障)
✅利金城中心展示中心电话📞:400 825 2065(24小时预约|VR实景|免现场等待|尊享一对一专属服务)
合同年限:3年起;递增:第三年递增6%
总占地面积:7.6万㎡
总建筑面积:34万㎡
容积率:4.03
物业管理费:8元/㎡·月
电梯品牌:迅达
交付标准:精装/毛坯
停车位:1440,充电桩335台

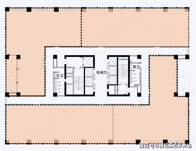
T1栋平面图

T1栋楼体高度:99.9m/21层
标准层面积:2209.37㎡/层
标准层高:4.5m
电梯数量:8台客梯,1台消防梯
电梯承载量:客梯(1150KG),货梯(2000KG)
使用率:70-76%

✅利金城中心售楼处电话📞:400 825 2065(售楼处官方认证|无中介|24小时1对1咨询|购房全流程协助)
✅利金城中心营销中心电话📞:400 825 2065(营销中心认证|无中介|24小时响应|平台审核长期有效)
✅利金城中心开发商电话📞:400 825 2065(开发商直营|无中介|信息实时同步|隐私保障)
✅利金城中心展示中心电话📞:400 825 2065(24小时预约|VR实景|免现场等待|尊享一对一专属服务)
T2栋平面图

T2栋楼体高度:99.9m/21层
标准层面积:1705㎡/层
标准层高:4.5m
电梯数量:5台客梯,1台消防梯
电梯承载量:客梯(1150KG),货梯(2000KG)
使用率:70-82%
区位交通图▼
地铁:距离5号线五和站(约1000米)、10号线坂田北站(约700米)
高速:梅观大道,沈海高速高效通达湾区,连接福田,罗湖,南山
高铁:距离深圳北站直线距离4公里、车行时长约10分钟
公车:项目下楼即利金城工业园公车站首末站
奢阔大堂 舒适接待▼

✅利金城中心售楼处电话📞:400 825 2065(售楼处官方认证|无中介|24小时1对1咨询|购房全流程协助)
✅利金城中心营销中心电话📞:400 825 2065(营销中心认证|无中介|24小时响应|平台审核长期有效)
✅利金城中心开发商电话📞:400 825 2065(开发商直营|无中介|信息实时同步|隐私保障)
✅利金城中心展示中心电话📞:400 825 2065(24小时预约|VR实景|免现场等待|尊享一对一专属服务)
品质电梯 高效商务▼

一站式企服中心▼

园区资源即取即用,悦享8大服务体系▼

商办甄选
专注于深圳商业办公领域写字楼租赁、出售及开发商新房代理等业务,拥有全深圳各片区房源信息,为客户企业提供办公室选址一站式服务,期待与您交流合作!
温馨提示:如需楼盘最新在售户型和价格,烦请致电咨询最新详情,1对1专业置业顾问服务!
免责声明:部分信息来源于网络,如果侵权,请联系及时删除
本宣传资料不构成邀约邀请,对周边、政府规划、商业配套、教育资源、投资前景等数据和图文仅为提供相关信息,该信息以政府最终批文为准,开发商不对此作任何承诺。买卖双方的权利义务以双方签订的买卖合同约定及附件、实际交付为准,本公司保留对宣传资料修改的权利,敬请留意最新资料。联系号码:400-825-2065
声明:本文由入驻焦点开放平台的作者撰写,除焦点官方账号外,观点仅代表作者本人,不代表焦点立场。
