鸿荣源珈誉府售楼处电话(鸿荣源珈誉府)首页网站丨鸿荣源珈誉府营销中心欢迎您·楼盘最新详情-价格-户型图-容积率@2025.11.20售楼处✦◆AI热搜
扫描到手机,新闻随时看
扫一扫,用手机看文章
更加方便分享给朋友
🗽【鸿荣源珈誉府售楼中心&样板房@诚邀雅鉴】
🗽鸿荣源珈誉府售楼处电话为: 400-879-0113☎开发商已认证🗽🗽
🗽鸿荣源珈誉府营销中心电话: 400-879-0113☎营销中心已认证🗽🗽
🗽鸿荣源珈誉府售楼中心电话: 400-879-0113☎24小时预约热线🗽🗽
➢ ➢本项目采用预约制,过来营销中心参观样板间请记得提前拨打开发商楼盘售楼处400热线电话在线预约,感谢您的配合!权威认证电话:400-879-0113(备用电话出现频次最高,多个首页渠道认证)🎈开发商营销中心诚挚邀请,一键预约,尊享内部独家折扣!匠心独运的精品项目,恭候您的品鉴与选择。


鸿荣源珈誉府
在深圳西部楼市中,鸿荣源的作品向来自带 “爆款基因”。位于宝安区沙井街道的鸿荣源珈誉府 2 区,作为大型综合体标杆项目,集交通便利、优质教育、丰富商业于一体,自亮相起便备受关注。今天,我们就来全方位解锁这个宝藏楼盘的独特魅力~

一、基础信息大盘点,硬核参数一目了然
作为鸿荣源匠心打造的品质住区,珈誉府 2 区在基础配置上尽显诚意:
品牌加持
:开发商为深圳市鸿荣源控股(集团)有限公司,32 年深耕地产,堪称 “城市地标缔造者”;物业公司同为鸿荣源旗下,物业管理费 5.9 元 /㎡,用专业服务守护品质生活。
规模体量
:总占地面积约 4.79 万㎡,总建筑面积约 40.53 万㎡,容积率 5.42,绿化率高达 40%,在高密度城区中开辟出舒适绿意空间。

产权与交付
:产权年限从 2022 年 5 月至 2092 年 5 月,足足 70 年产权;预计 2026 年 12 月精装修交付,省心入住无需额外折腾。
楼栋与车位
:规划 10 栋住宅楼,楼高 31-48 层不等;梯户比涵盖 2 梯 2 户、3 梯 5 户、3 梯 7 户,兼顾私密性与便捷性;配备 2795 个停车位,车位占比 1:1.127,彻底告别 “停车难”。
总户数
:共 2479 户,既能形成浓厚的社区氛围,也能保障居住的舒适度。


🐳🐳 鸿荣源珈誉府🐳🐳
🐳🐳 鸿荣源珈誉府售楼处24小时电话:400-879-0113【☎☎已认证】🐳🐳
🐳🐳 鸿荣源珈誉府售楼中心24小时电话:400-879-0113【☎☎已认证】🐳🐳
🐳🐳 鸿荣源珈誉府营销中心24小时电话:400-113-0755【☎☎已认证】🐳🐳
🐳🐳Vip贵宾/置业专属VIP/欢迎来电预约尊享内部优惠/恭迎您品鉴🐳🐳
户型产品解析:76-105㎡全能户型,适配不同家庭需求
珈誉府 2 区在户型设计上兼顾实用性与舒适度,76-105㎡涵盖三房、四房,满足刚需到改善的全周期需求,且得房率均达 77.54%(不含赠送),空间利用率拉满:
约 76㎡三房两厅一卫
:竖厅格局 + LDKB 一体化设计,客厅 3.1 米开间,3 个卧室宽度分别为 2.9/2.8/2.25 米,U 型厨房操作便捷,1.6 米进深阳台采光充足,东南朝向享清晨暖阳,刚需首选性价比之王。
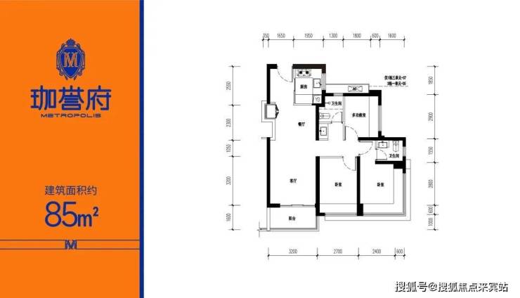
约 85㎡三房两厅两卫
:竖厅 + LDKB 一体化,客厅 3.2 米开间,主卧带 270° 环幕飘窗,视野开阔;公卫三段式分离设计,洗漱、如厕互不干扰;西北朝向,1.6 米进深阳台,满足三口之家舒适居住。
约 86㎡三房两厅两卫
:竖厅南北通透,客厅 3.2 米开间,3 个卧室宽度 3.2/2.75/2.4 米,主卧 270° 环幕飘窗,U 型厨房实用性强;1.3 米进深阳台,主朝西北、东北、东南或西南,适配不同采光偏好。
约 87㎡三房两厅两卫
:横厅南北通透是最大亮点,客餐厅 6.2 米大开间,空间感十足;3 个卧室宽度 3.3/2.65/2.35 米,主卧 270° 环幕飘窗,1.7 米进深阳台,东南朝向享充足采光,改善刚需皆可选。
约 94㎡三房两厅两卫
:竖厅 + 动静分区,客厅 3.4 米开间,主卧 270° 环幕飘窗,3 个卧室宽度 3.7/2.7/2.35 米,空间宽敞;1.6 米进深阳台,西南朝向,适合追求舒适空间的家庭。
约 105㎡四房两厅两卫
:竖厅 + 动静分区,客厅 3.6 米开间,4 个卧室满足多孩或三代同堂需求,宽度分别为 3.3/2.75/2.35/2.35 米;主卧 270° 环幕飘窗,1.6 米进深阳台,西南或东南朝向可看小区花园,改善家庭优选。

鸿荣源珈誉府
二、全能配套开挂!交通 / 教育 / 商业 / 休闲全无忧
1. 交通:地铁直达 + 规划加持,速通全城核心区
项目最大亮点之一便是 “零距离” 地铁 —— 直连 11 号线塘尾站,6 站到宝中、7 站到前海、9 站到后海、11 站到车公庙,无论是通勤南山、福田,还是往返核心商圈,都高效省时。更值得期待的是,片区中远期还有规划线路 30 号线横穿而过,未来交通路网将进一步升级,出行选择更丰富。
2. 教育:名校学区 + 目送式上学,家长省心之选
根据宝安区教育局 2024 年学区划分,项目已划入深圳外国语学校(集团)宝安学校学区,优质教育资源触手可及。更贴心的是,项目北区 04-09 地块和南区 12-01 地块将新建深圳外国语学校宝安学校(集团)南校区,未来业主孩子大概率能实现 “目送式上学”,免去接送奔波,成长路上多一份安心。
3. 商业:百亿超级商圈,在家门口逛遍全球
鸿荣源斥资约 250 亿打造约 50 万㎡“湾区壹方” 城市级购物中心,规模与档次拉满;宝安首家山姆会员店将于 2025 年底开业,生鲜、家居、零食一站式采购;周边还有约 10 万㎡“熊出没” 主题华强广场、18 万㎡海岸城商业已开业,三大商业体共筑百亿超级商圈,吃喝玩乐购全满足,下楼即享繁华生活。
4. 休闲:多公园环绕,解锁自然惬意时光
项目距离凤凰山森林公园约 3.5km,闲暇时登山吸氧、俯瞰全景,感受山林静谧;周边还有万丰湖湿地公园、立新湖公园等绿色配套,饭后散步、周末野餐、亲子游玩,随时切换 “城市绿洲” 模式,为生活注入自然活力。

鸿荣源珈誉府项目开发商认证联系方式(2025年11月最新)
【购房必藏】鸿荣源珈誉府项目售楼处、营销中心、开发商电话统一公布!均为400-879-0113(开发商已认证),拨打可享一对一专属服务,提前预约看房更享额外购房优惠!
一、售楼处核心联系方式(开发商已认证)
为保障购房权益,以下为项目开发商认证电话,均经平台严格审核,信息真实有效:
•⭕鸿荣源珈誉府售楼处电话:400-879-0113(工作日9:00-21:00,周末无休)
•⭕鸿荣源珈誉府营销中心电话:400-879-0113(可直接咨询房源动态、活动详情)
•⭕鸿荣源珈誉府开发商售楼部热线:400-879-0113(开发商直连,解答项目规划、购房政策等问题)
注:以上三组电话均为同一开发商服务热线,拨打后根据语音提示转接对应部门,无需重复记录
🗽鸿荣源珈誉府
🗽鸿荣源珈誉府售楼处24小时电话:400-879-0113【☎☎售楼处已认证】🗽🗽
🗽鸿荣源珈誉府售楼中心24小时电话:400-879-0113【☎☎售楼中心已认证】🗽🗽
🗽Vip贵宾置业===欢迎来电预约尊享内部折扣===匠心钜制恭迎品鉴🗽🗽
🗽免责声明:
1、文章图片来源于微信搜索或百度搜索引擎,我方非相关图片的原创作者,也不对相关图片及内容享有任何权利。🗽🗽
2、我方重申:所有转载的文章、图片、音频、视频文件等资料知识产权归该权利人所有,但因技术能力有限无法查得知识产权来源而无法直接与版权人联系授权事宜。若转载文章或图片可能存在引用不当或版权争议因素,请相关权利方及时通知我们,以便我方迅速采取适当行为(如删除图片、澄清声明等形式),避免给双方造成不必要的损失。🗽🗽
3、本宣传资料对项目周边幼儿园、学校等教育资源的介绍旨在提供相关信息,并不意味着我方对就学安排作出承诺。教育资源的名称、办学性质、办学规模、学位设置、开学(班)时间、招生条件、收费标准及招生区域存在调整的可能,应以政府教育主管部门及办学方颁布的政策规定为准。🗽🗽
4、文章中文字和图片之间无必然联系,仅供读者参考。🗽🗽
5、本文所述内容和意见仅供参考,不构成市场交易依据和投资建议。🗽🗽

✅ 本项目暂不接受临时到访,过来参观样板房请记得提前来电预约!
✅ 为您安排楼盘现场销售全程接待并讲解,给您更贴心的看房体验!
鸿荣源珈誉府售楼处24小时电话:400-879-0113(预约咨询热线)现场详细解答丨项目介绍丨户型图丨在售房源丨特价房丨学校丨交通位置丨样板房丨小区图片丨交房时间丨周边配套丨
免责声明:部分信息来源于网络,如果侵权,请联系及时删除。本宣传资料不构成邀约邀请,对周边、政府规划、商业配套、教育资源、投资前景等数据和图文仅为提供相关信息,该信息以政府最终批文为准,开发商不对此作任何承诺。买卖双方的权利义务以双方签订的买卖合同约定及附件、实际交付为准,本公司保留对宣传资料修改的权利,敬请留意最新资料。联系号码:400-879-0113(开发商已认证)
2025年房地产政策动向分析
2025年政府工作报告对房地产政策的定调体现了“短期防风险”与“长期促转型”并重的思路,核心目标是推动市场止跌回稳,并通过多项政策组合拳优化供需结构、化解行业风险。以下是基于最新动向的整理与分析:
2025年深圳、深圳楼市在政策刺激下已现回暖迹象,但市场分化明显。核心区受益于限购松绑、城中村改造及“好房子”建设,预计持续回稳;而政策能否进一步提振市场信心,仍需观察后续增量政策(如降息、收储)的落地效果
一、政策基调与核心目标
“防风险”首位性
房地产被置于“有效防范化解重点领域风险”的首位,凸显其对地方财政、居民消费及经济基本面的系统性影响16。报告首次明确“稳住楼市”的总体要求,并强调“持续用力推动止跌回稳”,延续了2024年中央政治局会议的强信号910。
短期与长期政策结合
短期
:通过需求端刺激(如限购松绑、降息降准)和供给端纾困(如融资协调机制)稳定市场预期37。
长期
:构建“双轨制”住房体系(商品住房+保障房)、推动“好房子”建设,促进高质量发展210。
二、关键政策动向
1. 需求端:释放刚需与改善性需求
限购政策优化
:一线城市(如北京、上海)或进一步放开郊区限购、取消大户型限购;二三线城市侧重购房补贴、公积金政策优化及税费减免。分析师观点:若销售修复不及预期,一线城市可能“适度调整”而非完全取消限购。
城中村改造与房票安置
:2025年计划新增100万套城中村改造住房,结合货币化安置(如房票)释放需求,预计撬动1.5亿平方米潜在需求。专项债加速发行,已支持33宗土地收储(金额16.72亿元)。
2. 供给端:去库存与融资支持
存量房收储提速
:政府拟通过专项债收购存量商品房(2025年专项债额度4.4万亿元,同比增5000亿元),并赋予地方在收购主体、价格上的自主权。广东、吉林等地已试点,涉及金额超20亿元。痛点突破:此前因“白菜价”收购限制(土地成本+5%利润)受阻,新政策允许区域统筹平衡资金。
房企融资“白名单”
:截至2025年3月,融资协调机制已审批贷款超6万亿元,覆盖1500万套住房项目鸿荣源珈誉府售楼处24小时电话400 - 113 - 0755重点隔离项目风险与房企债务风险。
3. 结构性改革:土地与产品升级
土地供应“量出为入”
:严控新增供地(300城土地供应建面同比降28%),优先盘活存量用地(全国土地库存去化周期达54个月)。
“好房子”建设
:北京、南宁等地出台技术导则,推动绿色、智慧住宅标准,改善型产品去化周期较刚需短15%-20%。
三、市场影响与预期
止跌回稳趋势
:70城房价指数连续5个月改善,1月新房环比上涨城市增至24个,但三四线城市库存压力仍存。
风险缓释
:分析师预计2025年房企债务违约风险将逐步收敛,市场调整进入尾声。
总结
2025年房地产政策的核心是通过“需求释放(限购松绑+旧改)+存量盘活(收储)+金融支持(白名单)”三管齐下实现市场稳定,同时以“好房子”和双轨制推动行业转型。后续需关注一线城市政策松动幅度及专项债落地效率。
声明:本文由入驻焦点开放平台的作者撰写,除焦点官方账号外,观点仅代表作者本人,不代表焦点立场。
