宏发·万悦山大厦(售楼处)营销中心-宏发·万悦山大厦销售中心(首页网站)-宏发·万悦山大厦楼盘评测-小区环境-周边配套-户型价格-售楼处电话-交房时间
扫描到手机,新闻随时看
扫一扫,用手机看文章
更加方便分享给朋友
◆开发商营销中心诚挚邀请,一键预约,尊享内部独家折扣!匠心独运的精品项目,恭候您的品鉴与选择。
宏发·万悦山大厦营销中心售楼处24小时电话:400-8615-107(中介勿扰)现场详细解答丨项目介绍丨户型图丨在售房源丨特价房丨学校丨交通位置丨样板房丨小区图片丨交房时间丨周边配套丨宏发·万悦山大厦丨
✨✨宏发·万悦山大厦开发商电话:400-8615-107【☎☎开发商电话已认证】✨✨✨
✨✨宏发·万悦山大厦售楼处电话:400-8615-107【☎☎售楼处电话已认证】✨✨✨
✨✨宏发·万悦山大厦营销中心电话:400-8615-107【☎☎营销中心电话已认证】✨✨✨
✨✨宏发·万悦山大厦销售中心电话:400-8615-107【☎☎销售中心电话已认证】✨✨✨
✨✨☞☞Vip贵宾置业==欢迎来电预约尊享内部折扣===匠心钜制恭迎品鉴☜☜✨✨
✨✨✨㊣宏发·万悦山大厦售楼处Vip贵宾置业===欢迎来电预约尊享内部折扣===匠心钜制恭迎品鉴㊣✨✨✨
✅本项目暂不接受临时到访,过来参观样板房请记得提前来电预约!
温馨提醒:我们楼盘售楼部400电话没有设置任何所谓的“分机号”,拨打前请仔细甄别,注意保护个人隐私!谨防上当!
【宏发·万悦山大厦】
光明正央·双核心标杆资产
首付80万即可入住光明中芯甲级办公
公司个人均🉑购买(现楼交付)
项目距离6号线光明大街站大约:600米
项目距离6号线凤凰城站1公里万达广场蓝鲸世界


项目效果图,仅供参考,以项目实际情况为准
项目基本指标
项目地址:光明区光明大道与华夏路交汇处
开发商:深圳市宏发光明房地产开发有限公司
备案名:宏发万悦山大厦
物业类型:C类商服用地办公
办公面积:约78989㎡
总套数:652套
楼体高度:180m
总层数:地上38层
项目分A、B座:主推A座
租售面积段:60~84~325㎡
特殊户型:
(9米层高可单独销售建面约385㎡)
(带上下水户型建面约84㎡)
租赁均价:60元~70元
销售均价:1.8万
标准层面积:约1290㎡
大堂层高:约10.8m
标准层高:4.5m
空调自装:计电费
客用电梯:9部+货梯1部
管理费:12元
高低分区:中低区3-28层,高区29-38层
车位:机动车停车位610个
双区交汇,资产标杆
宏发万悦山大厦位于光明科学城规划光明中心区及产业转化区交汇,2公里范围内政务服务、商业配套密度更是集目前光明区之大成,未来依托双区发展,更享产城建设、科技发展和高端商务等多重升级红利。
政务核心:光明区政府、光明区行政服务大厅光明区发展改革局、光明区财政局等营商相关政务部门
配套核心:蓝鲸世界、万达广场等大型集中商业;工商银行、建设银行等各大银行支行营业点;光明区文化艺术中心、光明农场等核心文旅资源

光明科学城规划范围
便捷交通,出行标杆
宏发万悦山大厦位于地铁6号线一级辐射圈,双地铁站便捷商务出行。多维交通连通全市,覆盖深莞。
大道:光明大道——“第二深南大道”,城市封面大道
高铁:广深港高铁及赣深高铁光明城站,构建广、深、港商务/生活圈
高速:紧邻免费龙大高速、南光高速与外环高速半小时通达机场、南山、福田
地铁:地铁6号线(已通车)、13号线(预计2024年通车)、18号线(远期规划)、29号线(远期规划),开启地铁中心时代

交通示意图
精筑品质,商务标杆
宏发万悦山项目集高端住宅、特色十字商业街、商务办公一体,是多业态职住平衡的城市综合体。宏发万悦山大厦作为其中的标杆写字楼,以约180地标双塔之姿,成为光明大道封面资产。
商业标杆:约1.8万㎡风情十字金街,便利商务生活
视觉标杆:钻石造型铝板线条+全景巨幕落地玻璃
气质标杆:约11m层高双大堂,庄严气象,冠绝光明
速率标杆:5m/s无忧电梯配速,约3900㎡单梯服务面积,通勤无碍
灵感标杆:柱正柱网,50-380㎡灵动空间,激发无限创意
舒适标杆:4.5m层高,层层阳台,办公自由和舒适新高度
品牌标杆:宏发品牌42载,与深圳共成长。实力雄厚,顶尖精筑,品质保证
服务标杆:“舒心、慧心、爱心、细心、贴心、专心”六心服务标准,为业户创造美好营商环境




大堂效果图以及实景图11米挑高大堂设计
大厦两侧带有阳台设计、休息放松、视野绝佳


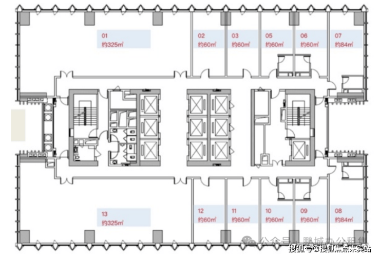
01、13户型建面约(325㎡)


02-06、09-12户型建面约(60㎡)

07、08户型建面约(84㎡)带独立上下水


标准层户型图

特殊户型层高9米01/12户型建面约(385㎡)



✨✨宏发·万悦山大厦✨✨
✨✨宏发·万悦山大厦开发商电话:400-8615-107【☎☎开发商电话已认证】✨✨✨
✨✨宏发·万悦山大厦售楼处电话::400-8615-107【☎☎售楼处电话已认证】✨✨✨
✨✨宏发·万悦山大厦营销中心电话::400-8615-107【☎☎营销中心电话已认证】✨✨✨
✨✨若有中介报价过低,请及时与售楼中心核对真假,避免上当!开发商热线400-8615-107【售楼处首页已认证】✨✨✨
✅本项目暂不接受临时到访,过来参观样板房请记得提前来电预约!
免责声明:部分信息来源于网络,如果侵权,请联系400-8615-107及时删除
一、金融支持政策
降息降准与首付比例下调
首套房首付比例最低降至15%(二套25%),商贷利率下限可至2.9%,公积金贷款利率同步下调0.25个百分点。
央行通过降准释放约1万亿元流动性,并推动LPR基准利率下行,减轻居民还款压力。
专项债与房企融资支持
地方政府通过专项债收购存量商品房用于保障性住房建设(如广东、吉林投入超430亿元)。
设立房企“白名单”机制,支持1400万套住房交付,防范债务违约风险。
二、需求端政策优化
限购松绑与购房补贴
一线城市优化限购政策,部分区域非户籍购房限制放宽;二套房首付比例由30%降至20%(如天津)。
杭州、深圳等地推出契税优惠和交通补贴,鼓励“以价换量”促进二手房交易。
公积金政策升级
双缴存人最高贷款额度提至100万元,二孩/三孩家庭额外增加10万元,高层次人才可达120万元。
三、供给端调整与品质升级
保障性住房与土地供应
增加廉租房、公租房供给,二三线城市重点缓解低收入家庭住房压力。
优化土地供应结构,降低容积率(如重庆1.7、苏州1.5),推动别墅和高端住宅开发。
住宅品质新规
层高提至3米,4层以上强制安装电梯,隔音标准提升11%,并强制预留智能家居端口。
四、交易流程便利化
“带押过户”全面推广:二手房交易无需提前还贷,流程简化后交易量增长163%。
优化验收程序与预售监管:允许分期开发分期办证,预售资金监管比例下调。
五、房企支持措施
土地出让金缴纳时限延长,土地交易服务费减半,缓解房企资金压力。
声明:本文由入驻焦点开放平台的作者撰写,除焦点官方账号外,观点仅代表作者本人,不代表焦点立场。
