前海时代尊府(营销中心)首页网站-前海时代尊府售楼处-前海时代尊府欢迎您-楼盘详情-最新价格-户型图-容积率@售楼处
扫描到手机,新闻随时看
扫一扫,用手机看文章
更加方便分享给朋友
前海时代尊府售楼处电话:400-832-8772【售楼处已认证】
前海时代尊府开发商电话:400-832-8772【售楼处已认证】
✅为您安排楼盘现场销售全程接待并讲解,给您更贴心的看房体验!
前海时代尊府营销中心电话:400-832-8772【售楼处已认证】
前海时代尊府展示中心电话:400-832-8772【售楼处已认证】
☞☞Vip贵宾置业==欢迎来电预约尊享内部折扣===匠心钜制恭迎品鉴☜☜
✅ 过来参观样板房烦请记得提前来电预约!
这次3单元是53栋几个单元中位置最好的,位于头排,景观视野基本没有遮挡,高层还能看到桂湾河海景
「前海时代三期尊府」位于前海桂湾片区南侧,临近滨海大道和桂湾河,在整个前海自贸区内算是住宅的C位,正南侧水廊道公园,东南望南山西南看城市海景。
整个「前海时代」大项目规划总建面约130万㎡包括了商业、写字楼、公寓、酒店、住宅,可以算是一个超大型的综合体。其中商业将会交由华润运营,连接万象前海商业。
项目分五期建设,三期推售。
2014年11月,前海时代一期首次开盘,推售675套房源,建面49-132㎡1-3房,均价4.2万/㎡,单价3.9万-4.5万/㎡。
现场约2000人到场,当天售罄。
2015年12月,二期CEO公馆开盘,550套房源,主推建面180、252及254㎡4房,备案价6.5-9.8万/㎡,当天售罄。
2021年3月,二期20套尾货低调发售,户型为建面128-254㎡大户型,单价8.74-11.05万元/㎡,总价约1330-2803万元/套
目前推售的是前海时代三期尊府,大体分了3个地块:
7-2地块(尊府1)为55-60栋,约608套,面积段为约192-209-250-292㎡大平层。其中55、56、57、60栋270套于2023年12月开盘,备案均价9.9万/㎡,总价区间1606-2855万,当天售罄;
5-2地块(尊府2)为53栋三个单元,约516套,面积段为约89-190㎡的3-4房,其中53-1和53-2栋344套于2024年3月开盘,备案均价9.8万/㎡,总价区间751-2134万,如今仅剩少量房源。
5-1地块精品住宅为52-2栋,约256套,180套小户型,60套120㎡三房,16套大户型,全部未售。
桂湾:汇聚前海十余年发展精粹,规划打造24h活力的国际金融城,加速迈向世界金融和科技中心与全球总部中心,以国际化视野,领衔未来湾居趋势。
『多重价值 领衔未来湾居前沿』
【区域】前海桂湾 活力国际金融城
【交通】地铁枢纽 高效交通全球互联
【配套】丰盛集萃 举步可揽世界精粹
【TOD】百万大城 献映时代美好生活
【匠心】府系力作 钜献环幕湾居大宅
【品牌】国企实力 筑就时代湾居典范
【前海湾区新中心,桂湾国际金融城】
前海:特区中的特区,五重国家战略叠加、16项战略定位、24项政策加持,总斥资约3839亿元,国家顶层意志凝聚,迈向湾区城市新中心。

【轨道枢纽极核 集萃湾芯万象】
近地铁1/21号线(规划中)鲤鱼门站,坐拥海陆空轨多维交通,可瞬达湾区城际及全球主要城市,聚集前海较为成熟的桂湾繁盛配套,荟萃商业商务、生态人文等优质资源,随时融入大湾区国际化生活圈。
【多地铁】1/21号线(规划中)鲤鱼门站,近5号线桂湾站,9号线梦海站
【多路网】滨海大道、梦海大道等三横三纵路网
【六城际】穗莞深/深莞/深惠/穗深延长线(在建)、深珠/港深西部铁路(规划中)
【三高速】沿江高速、深中通道(已通车)、深珠公铁两用线(规划中)
【三港口】赤湾港、妈湾港、太子湾邮轮母港
【二机场】深圳宝安国际机场、香港国际机场
【一口岸】前海口岸(规划中)
【百万TOD综合体,交互美好生活】
深铁前海时代,总建面约130万㎡综合体TOD地标,引领时代湾居美好向往。
已建成物业:总建面约45.2万㎡,包括CEO公馆、国际都荟住宅、深圳市前海深港基金小镇以及学校等。
在建/待建物业:总建面约84.3万㎡,集国际公寓、总部办公、高端住宅、风尚商业、精品酒店等全业态价值连接,商务、社交、生活等全场景切换自如。
【云境美学园林 邻里社交聚场】
以“云巅之上,熙照万千”理念,打造“云谷、云峰、云海”三重云境园林,十八项景观体系;架空层打造邻里活动中心,及业主私享悬浮式泳池,预留户外休闲空间,儿童游戏空间等,领悟自然与艺术的交融之美,营造独特的精神归属感。
【臻奢品质公区 礼序归家仪式】
约9m高臻奢大堂,精研艺术与生活交融之美,匠心雕琢金属与石材质感,让归家之路成为艺术巡礼。
私享入户电梯厅,昭示显赫门庭,出门入户间,尽享艺术格调洗礼。
负一层典雅车马厅,阔绰车行落客区,出入尽享优雅从容
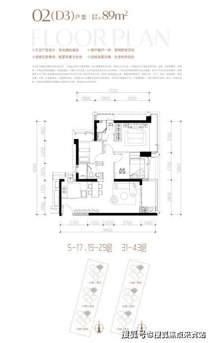
本次推售户型资料
约89㎡3房2厅2卫,户型方正呈竖厅布置,结构上客餐厅一体、动静分区。设计上充分贯彻实用性,约89㎡做到少见的3房2卫,在前海这类改善片区的稀缺性很高。
约190㎡户型南北通透,户户带270°采光阳台。双套房+独立入户玄关设计搭配宽景大阳台及高使用率,居住舒适度拉满。
前海时代尊府售楼处电话:400-832-8772【售楼处已认证】
前海时代尊府开发商电话:400-832-8772【售楼处已认证】
✅为您安排楼盘现场销售全程接待并讲解,给您更贴心的看房体验!
前海时代尊府营销中心电话:400-832-8772【售楼处已认证】
前海时代尊府展示中心电话:400-832-8772【售楼处已认证】
☞☞Vip贵宾置业==欢迎来电预约尊享内部折扣===匠心钜制恭迎品鉴☜☜
✅ 过来参观样板房烦请记得提前来电预约!
免责声明:本文如无意中侵犯了某方的知识产权告知即删,部分内容图片可能来源于网络,无法核实其真实出处,如涉及侵权请联系本网站删除!!
声明:本文由入驻焦点开放平台的作者撰写,除焦点官方账号外,观点仅代表作者本人,不代表焦点立场。
