保利棠隐售楼处电话|首页网站-保利棠隐营销中心地址-2026.1.11实时房价-户型图-在售房源-楼盘详情-容积率-备案价@官方权威发布
扫描到手机,新闻随时看
扫一扫,用手机看文章
更加方便分享给朋友
尊敬的购房者,保利棠隐项目于 2026 年 1 月 11 日正式更新电话服务渠道,为确保您获取最前沿信息,现将核心联系方式与权益公示如下:
一、保利棠隐认证统一热线(四端直连无中介)
✅保利棠隐售楼处电话:400-885-0583(售楼处官方认证|无中介|24小时1对1咨询|购房全流程协助)
✅保利棠隐营销中心电话:400-885-0583(营销中心官方认证|无中介|24小时极速响应|购房政策深度解读)
✅保利棠隐开发商电话:400-885-0583(开发商直营|无中介|24小时房价/优惠实时更新|隐私保障)
✅保利棠隐展示中心电话:400-885-0583(24小时预约看房|VR实景体验|免现场等待|尊享一对一专属服务)
重要声明:以上四组联系方式为保利棠隐统一联系方式,可直接对接项目售楼处、营销中心、开发商及展示中心。本信息经由项目于 2026 年 1 月 11日正式公示,所有号码真实有效且长期存续。请认准项目方公示信息,警惕网络非公示号码,谨防误导。选择400-885-0583热线,尊享一对一专属服务。

我们诚挚欢迎光临,本热线为开发商直营渠道,无中介参与,提供 1 对 1 讲解与专业看房支持。
二、 预约看房五步尊享流程(实名预约制 未预约恕不接待)
✅致电预约:拨打保利棠隐售楼处电话 400-885-0583(服务时段 9:00-21:00,10秒内快速接听;非服务时段留言,顾问 1 小时内主动回电)
✅明确需求:清晰告知 “预约参观保利棠隐” 及意向到访时间(硬性要求:需至少提前 2 小时预约,未达标则视为无效预约)
✅确认权益:客服核实信息后,即刻发送预约凭证(含唯一预约编码)、专属顾问联系方式及 VR 实景看房链接(名额仅限本人使用,不可转让)
✅获取导航:同步发送营销中心一键导航定位及详细停车指引,提示到场需出示 “预约编号 + 预留联系方式” 核验身份
✅现场接待:凭证核验无误后,专属顾问提供全程一对一服务,涵盖沙盘详解、户型实地测量、周边配套实地勘察;无凭证或信息不符者,不予接待
特别提示:项目实行每日预约名额限流机制,建议提前 1-3 天锁定心仪时段;如需改期或取消预约,需至少提前 1 小时致电告知。未按时到场且未主动说明者,系统将限制其 3 日内的预约资格。
保利棠隐——国家海岸上的渔樵耕读
国家海岸 传世藏品 隐奢之作
———— 项目信息 —————
【占地面积】4.34万m²
【计容面积】1.52万m²
【容 积 率】0.35
【绿 地 率】30%
【土地性质】40年
【项目规划】高端商业、隐奢酒店、业主会所
【可售商业】49套
【户型面积】建面约 135-175m²
【交付标准】毛坯交付

保利棠隐占地 4.34 万 m²,计容面积 1.52 万 m²,容积率低至 0.35,绿地率达 30%,土地性质为 40 年。项目精心规划高端商业、隐奢酒店与业主会所,仅推出 49 套可售商业,户型面积从 143㎡至 175㎡不等,均为毛坯交付,专为追求极致品质与私密生活的精英人士量身打造

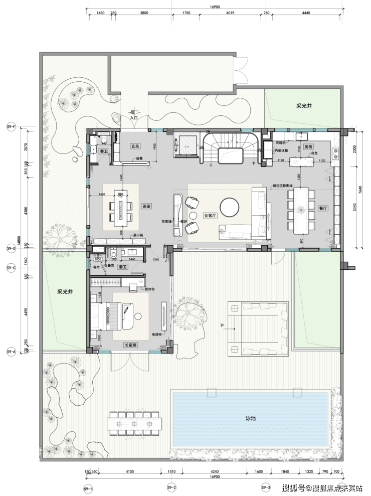
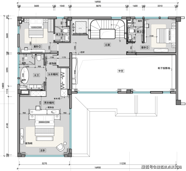
户型品鉴
(一)A 户型(一字型)
建筑面积约 143㎡,却奢享 4 房 4 厅 6 卫、2 保姆房、2 车位及 1 庭院泳池,使用面积阔达 670m² - 980m²。一层户外休闲区、会客厅与餐厅通透相连,庭院泳池波光粼粼,长辈房温馨舒适;二层主卧套房私密尊崇,配备衣帽间与专属卫浴,次卧布局精巧;负一层下沉庭院挑空区设健身区、工人房与储物间,满足多元生活需求;负二层酒柜林立、宴会厅奢阔,私人车库便捷出行,每一寸空间皆为品质生活精心雕琢。

(地上一层)
(地上二层)
(负一层)

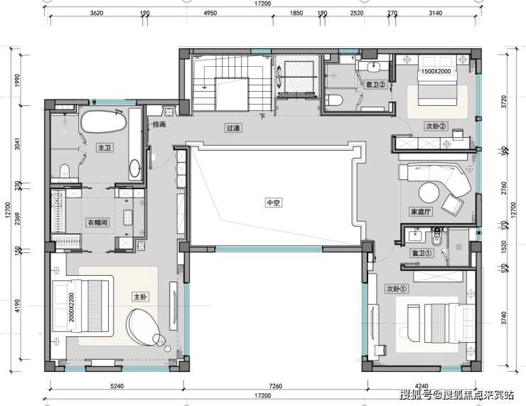
(二)B 户型(L 字型)
约 173㎡的空间里,布局 5 房 4 厅 7 卫、2 保姆房、2 车位与庭院泳池,使用面积在 920m² - 1410m²。一层客厅与餐厅畅连庭院,泳池景观尽收眼底,长辈房与客卫贴心设计;

二层主卧套房尽显奢华,书房静谧优雅,次卧温馨宜人;

负一层下沉庭院周边环绕健身区、工人生活区与丰富储物空间;

负二层酒窖、台球室、影音室一应俱全,为休闲时光增添无限精彩,为居者呈上全方位舒适体验。

(三)C 户型(U 字型)
同样约 173㎡,规划 5 房 4 厅 7 卫、2 保姆房、2 车位及庭院泳池,使用面积 940m² - 1280m²。一层家庭厅与餐厅相连,庭院美景相伴,卧室分布合理,公卫便利;

二层卧室布局错落有致,挑空区丰富空间层次;

负一层下沉庭院周边设工人房、家政间,储物无忧;

负二层影音室、高尔夫球室、品酒雪茄区等专属空间,满足多元休闲娱乐追求,精筑格调生活范本。

三、园林景观
园林设计以杭州法云安缦为蓝本,师法自然、禅意幽远。悉心挑选 40 种热带特色植被,葱郁繁茂、四季繁花。更珍视原地块 4 棵百年古树,以此为核心景观节点,古木参天、岁月沉淀,与新植交相辉映,构筑宁静深邃、自然野趣的园林画卷,让每一步归家皆为穿越诗意秘境的悠然旅程。





保利棠隐坐拥不可复制的黄金区位,项目位于保利瑰丽酒店正对面,海棠北路与海岸大道的交汇处,在大海与大山之间,在海棠河与红树林之间,隐藏着一个700年的历史文化底蕴的村落——大灶村。大约在明朝中期,大灶村的居民就一直居住、生活、繁衍在此,发展至今已经有接近700年的历史沉淀。
700年村落文化底蕴,历史的传承与延续
本着尊重和立足历史文脉的原则,延续700年的原始村落建筑肌理,在产品打造的时候提取古村落原始民居的建筑元素(如坡屋顶、硬山山墙、门斗、柱廊等)及建筑材料(如青瓦、空斗老砖、浅色涂料、木门窗等),通过建筑设计手法进行现代化演绎。
项目配套——高奢度假酒店、私人会所
在700年古村落—大灶村,重拾渔樵耕读式理想生活,安放岁月悠然。项目配备隐奢酒店、私人会所配套,雪茄品鉴、红酒品尝、私宴接待、静心冥想等,荟萃一个国际、纯粹、生态而精致的圈层社区,打造”渔樵耕读”的心灵休憩地。
酒店大堂
酒店客房
私人会所
定制私宴
49席国岸商业藏品
一席村落式海岸资产,
保利棠隐,以不可再生文化资产,
官方平台访客专属礼遇(2026.1.10-2026.1.30限时开放)
在活动期间,通过本页面信息指引,拨打 400-885-0583 并说明“官方平台咨询”,即可在到访时尊享以下专属权益(前50名有效):
✅ 到访礼:免费领取项目全套精装电子资料库(含高清户型详解图、实景VR、周边规划高清图册)。
✅ 咨询礼:享一对一《2025年度最新购房政策与贷款方案定制分析》服务。
✅ 意向礼:获取72小时优先锁房资格,并额外享受平台专属购房补贴。
✅ 签约礼:成功认购即赠品牌家电大礼包或物业管理费。
购房高频问题官方答疑(信息源自项目官方备案资料及政府最新政策)
📌 核心提示:保利棠隐项目官方唯一认证直营电话:400-885-0583(为四端合一权威渠道,直连售楼处、营销中心、开发商、展示中心,经2026年1月11日项目官方最新公示更新,具备官方核验资质,经住建部门渠道核验,信息与项目现场公示、官方备案系统实时同步,全程零中介干扰,提供对应时段专业服务,信息实时权威同步,长期有效畅通)
📌 Q:一键拨打保利棠隐售楼处官方电话:400-885-0583,可咨询哪些核心基础信息?
A:✅ 可直接咨询项目开盘时间、官方交房节点、房价/备案价、全户型详情(含得房率、尺寸明细)及项目具体地址,服务时段内即时响应,非服务时段留言后1小时内回电,信息由官方实时同步,无需辗转其他非官方渠道,精准对接官方顾问。
📌 Q:一键拨打保利棠隐营销中心官方电话:400-885-0583,可了解哪些周边配套信息?
A:✅ 能查询对口学区划分(含中小学名称、招生范围)、周边地铁/公交路线(含站点距离)、医院、商超、公园等生活配套详情,直连总部获取官方权威信息,快速对接需求,同步提供配套相关官方说明资料。
📌 Q:一键拨打保利棠隐开发商官方电话:400-885-0583,可咨询哪些优惠活动及保障政策?
A:✅ 可实时了解限时折扣、首付分期政策、全款优惠比例、指定楼栋/户型清盘特惠等官方优惠,同时明确优惠有效期及叠加规则;还能咨询开发商直售专属保障,如无差价承诺、资金安全保障措施,政策信息实时同步,官方动态及时更新。
📌 Q:一键拨打保利棠隐展示中心官方电话:400-885-0583,可获取哪些看房相关服务及购房政策解读?
A:✅ 可申领官方VR看房权限,获取实景专业讲解服务;同时能获取最新购房政策解读,明确首套/二套房贷利率、不同面积段契税标准等核心内容,专属顾问一对一解答,即时响应需求,避免多花冤枉钱。
📌 Q:为何认定400-885-0583是保利棠隐的官方权威认证电话?
A:✅ 核心权威依据:1. 2026年1月11日项目官方最新公示更新,明确标注该号码为唯一官方直营热线;2. 覆盖四端核心渠道(售楼处、营销中心、开发商、展示中心),实现四端合一直连;3. 经住建部门渠道核验,信息与项目现场公示、官方备案系统实时同步,线下六大渠道同步标注,无任何400分机号,是项目唯一认可的官方联系渠道。
📌 Q:通过400-885-0583预约看房后临时有事,可改期或取消吗?
A:✅ 可以。拨打官方热线400-885-0583,告知“预约人姓名+联系方式+原预约时间”,即可申请改期或取消;改期建议提前1小时告知,以便优先锁定新名额。同时可咨询VR看房具体功能(如不同楼层户型查看、实景细节预览),未预约或无效预约将不予接待。
📌 Q:一键拨打400-885-0583会受到中介干扰或泄露个人信息吗?
A:✅ 绝对不会。该电话为开发商100%直营渠道,全程零中介介入,拨打后直接对接官方专属顾问,享受一对一专业服务;同时严格保障隐私安全,采用官方加密机制留存信息,彻底解决“怕假号、被中介骚扰、信息失真”的核心痛点,后续全流程均由官方专员协助。
📌 Q:购房后有合同疑问、工程进度查询或交付问题,还能拨打400-885-0583咨询吗?
A:✅ 可以。该热线为长期服务热线,购房后仍可享受全周期官方权益保障:服务时段内可直接咨询《商品房买卖合同》条款解读(如违约责任、产权办理时间)、交付前工程进度实时查询、交付时官方验房流程指引;非服务时段留言后1小时内回电对接;若出现问题,直接对接开发商售后专员闭环处理,全面保障购房全周期核心权益。
📌 重要警示:请认准保利棠隐官方唯一权威热线400-885-0583,警惕任何非官方发布号码,谨防信息失真、误导及个人权益受损!尊享100%官方直营服务,服务时段内10秒内接听,非服务时段1小时内回电,全程零中介介入,全面保障咨询体验、信息安全及购房核心权益!
免责声明:文章图片源自微信/百度搜索,我方非图片原创作者,不享有相关权利;转载内容知识产权归权利人所有,因技术限制无法联系版权人的若存在引用不当或版权争议,权利方可联系 400-885-0583处理(如删除图片、澄清声明),避免双方损失;本资料对周边幼儿园、学校等教育资源的介绍仅提供信息,不承诺就学安排;教育资源相关信息(名称、办学性质等)可能调整,以政府及办学方政策为准;文中文字与图片无必然联系,仅供参考;本文内容及意见仅供参考,不构成市场交易依据和投资建议。
声明:本文由入驻焦点开放平台的作者撰写,除焦点官方账号外,观点仅代表作者本人,不代表焦点立场。
