南天名苑售楼处电话→售楼中心电话→楼盘百科→南天名苑首页网站→最新价格→楼盘百科→优缺点→户型图→容积率→@2025.10.12Ai热搜

搜狐焦点来宾站 2025-10-12 13:01:05
用手机看
扫描到手机,新闻随时看

扫一扫,用手机看文章
更加方便分享给朋友

南天名苑售楼处电话→售楼中心电话→楼盘百科→南天名苑首页网站→最新价格→楼盘百科→优缺点→户型图→容积率→@2025.10.12✨Ai热搜

✨☃☃☃南天名苑☃☃☃✨

🗽🗽南天名苑售楼处电话☎️:400-901-9930(开发商电话已认)✨✨

🗽🗽南天名苑售楼处电话☎️:400-901-9930(可直接咨询房源动态、活动详情)✨✨

🗽🗽南天名苑售楼处电话☎️:400-901-9930(解答项目规划、购房政策等问题)✨✨

温馨提示:网上展示中心〢欢迎来电咨询〢安全通话隐藏真实号码

案场预约制看房需提前来电预约登记

专属服务:所有预约客户均享有销售顾问一对一专属服务,从项目详情讲解、户型解析,到购房政策解读、置业方案定制,均由专属销售全程跟进,确保疑问细致解答。

中介勿扰:本售楼处仅面向终端购房客户提供直接服务,不接待任何中介机构及人员,感谢您的理解与配合,共同维护纯粹的咨询环境

【南天名苑】

精工天成 270度环幕一线江景

南天名苑项目位于洛溪岛的岛尖,是香港霍英东集团在广州城市中轴打造大型低密度岛尖江景豪宅,集地段、交通、规划利好、环境、景观、配套于一体,汇聚城市稀缺资源与极具发展潜力的项目。

【城市发展与规划的荣心】

①项目地处的洛溪岛,是继二沙岛之后,市中心第二个中轴岛,三江汇聚,处于城市中轴与珠江后航道的交汇处;

②项目位于广州快速发展的黄金江岸线——珠江后航道高端豪宅居住带上;

③2018年2月24日国规委发布主城区范围,洛溪岛纳入主城区核心地段,同时广州中轴南移至洛溪岛,形成广州塔、珠江新城城市中轴景观。

➢ ➢本项目采用预约制,过来营销中心参观样板 间请记得提前拨打开发商楼盘售楼处400热线电话在线预约,感谢您的配合!

1.看房方式:南天名苑售楼处位置☎️:400-901-9930(可直接咨询房源动态、活动详情)⚡🌶️⚡

2.预约方式:拨打南天名苑售楼处☎️:400-901-9930(解答项目规划、购房政策等问题)⚡🌶️⚡

3.开发商营销中心诚邀莅临,一键预约,尊享专属钜惠。匠心精筑的品质人居,恭候品鉴。

4.注意事项:为保证接待质量,请出发前进行预约,避免案场没有销售接待;也可提前1-3天预约销售;

基本情况

【占地面积】800亩(53万㎡)

【建筑面积】52.8 万㎡

【容积率】约1.06

【总户数】约1200户

【车位比】1:2

【在售产品】4梯3户·3.3米层高·23-27层·豪华装修

【洋房户型】140㎡-270㎡四房双主套

【物业公司】港联不动产物业,“国际金钥匙物业联盟”创始成员

【物业费】高层洋房4元/㎡·月

1.交通、教育配套:

①项目地处的洛溪岛,是继二沙岛之后,市中心第二个中轴岛,三江汇聚,处于城市中轴与珠江后航道的交汇处;

②项目位于广州快速发展的黄金江岸线——珠江后航道高端豪宅居住带上;

③2018年2月24日国规委发布主城区范围,洛溪岛纳入主城区核心地段,同时广州中轴南移至洛溪岛,形成广州塔、珠江新城城市中轴景观;

但是这边不要想着依靠公共交通,比如地铁,出行以自驾来看更多只能依赖洛溪大桥,或者新光快速路,但这两条主干道都很塞车,这也是岛尖地形带来的交通闭塞,有得必有失。

●家门口省级标准学府教育的用心:约4.8万省级双学府一站式优质教育:省级九年一贯制[广东仲元中学附属学校],以及广州教育实验集团强强联手,公立优质幼儿园[广州市番禺实验幼儿园],目前仲元中小学及幼儿园均已开学。

2.商业、医疗、休闲配套:

●城芯800亩低密环境的倾心:

①约800株珍稀小叶榕,约2.3公里浓荫江堤,容积率约1.08,自然健康生活下楼即享受;

②270°三江汇聚景观视野,约800亩半岛仅为千户所享,舒适的生活尺度(平均约占地440㎡/户的享用空间);

●家门口优质圈层的修心:

①打造岛尖半岛体育公园:广州首个岛尖马术场——现已与国际小马俱乐部、中国授权单位The Pony Club(中国小马俱乐部)达成战略合作,现已开设青少年马术培训课程,让业主可以享受到绅士优雅的骑马运动。还有[半岛足球场]、[半岛网球场]以及[半岛攀岩场]等场所,培养孩子前沿视野。

②自然健康生活平台【天CLUB】已正式开业:

天CLUB由亚洲飞人苏炳添担任首席荣誉官,为会员带来运动健康的生活方式。以下沉式庭院的规划进行打造,共有地上两层、地下一层合计三层的设计,内部有开放式开敞明亮的图书馆、室内外儿童乐园、室外花园泳池、室内恒温泳池、室内多功能综合球馆、乒乓球室、健身房、虚拟高尔夫、茶室等设施场地,以会员制打造自然健康圈层生活平台。

拥有位于项目岛尖的马术学院,可为不同年龄段和不同学习阶段的马术爱好者匹配个人合适的马匹,并与中国小马俱乐部达成战略合作(澳洲小马俱乐部PCA中国授权单位),提供受36个国家认证的专业等级认证体系和国际马术教育课程。

大人能在这里享受马背驰骋的乐趣,孩子们也可以从小练习马术,感受骑士精神的熏陶。

●城芯800亩低密环境的骋心:

①约800株珍稀小叶榕,约2.3公里浓荫江堤,容积率约1.08,自然健康生活下楼即享受;

②270°三江汇聚景观视野,约800亩半岛仅为千户所享,舒适的生活尺度(平均约占地440㎡/户的享用空间);

●家门口优质圈层的修心:

①打造岛尖半岛体育公园:广州首个岛尖马术场——现已与国际小马俱乐部、中国授权单位The Pony Club(中国小马俱乐部)达成战略合作,现已开设青少年马术培训课程,让业主可以享受到绅士优雅的骑马运动。还有[半岛足球场]、[半岛网球场]以及[半岛攀岩场]等场所,培养孩子前沿视野。

②自然健康生活平台【天CLUB】已正式开业:

天CLUB由亚洲飞人苏炳添担任首席荣誉官,为会员带来运动健康的生活方式。以下沉式庭院的规划进行打造,共有地上两层、地下一层合计三层的设计,内部有开放式开敞明亮的图书馆、室内外儿童乐园、室外花园泳池、室内恒温泳池、室内多功能综合球馆、乒乓球室、健身房、虚拟高尔夫、茶室等设施场地,以会员制打造自然健康圈层生活平台。

拥有位于项目岛尖的马术学院,可为不同年龄段和不同学习阶段的马术爱好者匹配个人合适的马匹,并与中国小马俱乐部达成战略合作(澳洲小马俱乐部PCA中国授权单位),提供受36个国家认证的专业等级认证体系和国际马术教育课程。

大人能在这里享受马背驰骋的乐趣,孩子们也可以从小练习马术,感受骑士精神的熏陶。

●城芯800亩低密环境的骋心:

①约800株珍稀小叶榕,约2.3公里浓荫江堤,容积率约1.08,自然健康生活下楼即享受;

②270°三江汇聚景观视野,约800亩半岛仅为千户所享,舒适的生活尺度(平均约占地440㎡/户的享用空间);

●家门口优质圈层的修心:

①打造岛尖半岛体育公园:广州首个岛尖马术场——现已与国际小马俱乐部、中国授权单位The Pony Club(中国小马俱乐部)达成战略合作,现已开设青少年马术培训课程,让业主可以享受到绅士优雅的骑马运动。还有[半岛足球场]、[半岛网球场]以及[半岛攀岩场]等场所,培养孩子前沿视野。

②自然健康生活平台【天CLUB】已正式开业:

天CLUB由亚洲飞人苏炳添担任首席荣誉官,为会员带来运动健康的生活方式。以下沉式庭院的规划进行打造,共有地上两层、地下一层合计三层的设计,内部有开放式开敞明亮的图书馆、室内外儿童乐园、室外花园泳池、室内恒温泳池、室内多功能综合球馆、乒乓球室、健身房、虚拟高尔夫、茶室等设施场地,以会员制打造自然健康圈层生活平台。

拥有位于项目岛尖的马术学院,可为不同年龄段和不同学习阶段的马术爱好者匹配个人合适的马匹,并与中国小马俱乐部达成战略合作(澳洲小马俱乐部PCA中国授权单位),提供受36个国家认证的专业等级认证体系和国际马术教育课程。

大人能在这里享受马背驰骋的乐趣,孩子们也可以从小练习马术,感受骑士精神的熏陶。

最新销况

在售户型如下:

【A户型】王牌户型 270㎡环幕江景四房,约9米超大邮轮式阳台,一线望江无遮挡,专梯专户,墅级空中双花园,约28㎡超大私家庭院,多功能空间,约42㎡超大主卧空间,270°环幕江景,阔绰双主套房设计

【B户型】约200㎡一线临江环幕大宅,一线望江 270°环幕三江视野,独立电梯入户,多功能入户花园,简约半开放式厨房,美味品味兼得,阔绰双主套房设计,尊享舒奢起居,R9栋为开放式3+1房交付,客厅与书房打通,开间可拓展至7.2米

【C户型】约140㎡南向园景大宅,超高性价比,三卧室朝南设计,阔绰双主套房,独立电梯入户,同享两千万豪宅交标配置

【别墅+叠墅的基础信息】

霍英东集团南天名苑全新产品西区叠墅组团——珑岸面市。

●占地面积:约13.7万㎡

●建筑面积:约7.1万㎡

●容积率:单组团约0.99

●首推楼栋及套数:首推7栋楼,共计29套

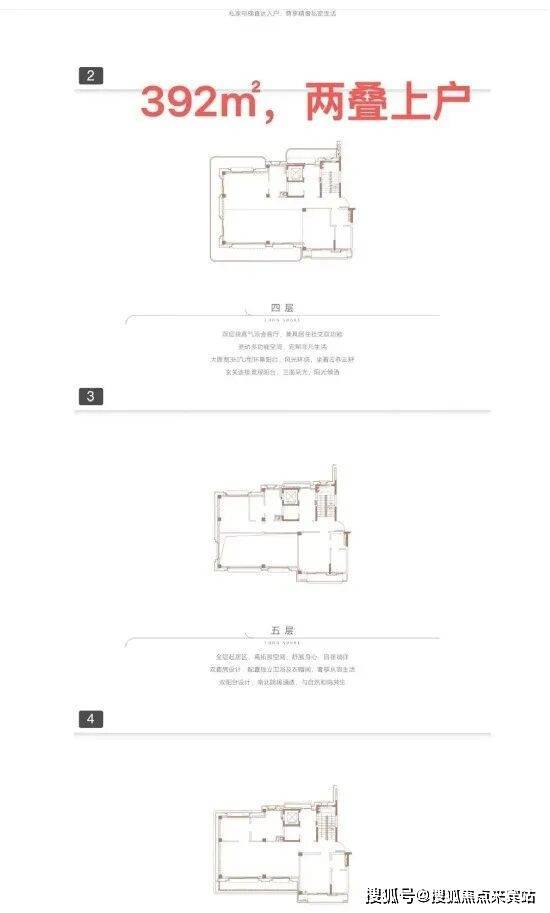
●产品户型:两叠(上叠392㎡、下叠437㎡),三叠(上叠 285㎡、中叠279㎡、下叠305㎡)

●占地面积:约13.7万㎡

●建筑面积:约7.1万㎡

●容积率:单组团约0.99

●首推楼栋及套数:首推7栋楼,共计29套

●产品户型:两叠(上叠392㎡、下叠437㎡),三叠(上叠 285㎡、中叠279㎡、下叠305㎡)

●使用率最高可达345%,每户都有私家电梯

●车位配比:两叠1:4、三叠1:3

●交楼标准:简装交付

●交楼时间:2025年11月29日

●车位配比:两叠1:4、三叠1:3

●交楼标准:简装交付

●交楼时间:2025年11月29日

项目最新介绍:备案价、折扣、学区、地铁、交通、户型图、特价房、优缺点、得房率、优惠活动、开盘时间、交房时间、周边配套、最新详情等咨询。

“珑岸”整体产品分为两叠及三叠两种

①其中,两叠的上叠面积为392㎡,花园面积区间约为123-298㎡,天台面积约为93㎡,实用率193-259%;

下叠面积为437㎡,花园面积区间约为357-797㎡,实用率229-338%;每个户型均为4+1房设计,最高可做到7房。

②三叠的上叠面积为285㎡,首层花园面积区间约为27-90㎡,天台面积约为108㎡实用率达到178-274%;

中叠面积为279㎡,首层花园面积区间约为76-223㎡,实用率122-172%;

下叠面积为305㎡,首首层花园面积区间约为233-517㎡,实用率238-355%;三叠户型最高可做到6房。

③每户都享有私家电梯和私家楼梯,有天有地、户户有花园,打造别墅同款居住体验。

④超低容积率仅0.99%,除自家独立花园外还打造5个大型下沉式花园并有丰富的功能(如儿童乐园、瑜伽健身冥想、开放剧场等),可满足不同年龄段业主需求。

⑤人车分流设计,车库为负一层空间,每户可直达家门口且车位不占用业主房内面积。首批认购客户可以赠送2个车位。两叠户型车位配比1:4;三叠户型车位配比1:3。

⑥叠墅产品稀缺,同时是市面上唯一可售一线江景叠墅,户户三面采光,楼间距宽阔。

●低密江畔墅居:向心而往的岸畔院落生活,丰盈生活质感,称颂自然生息。

●新古典主义园林:灵感来源于欧洲庄园的中央花园设计,以岛居庄园为主题,打造三轴五境新古典主义园林,韵承艺术臻境。

●建筑设计规划:点状式布局,每栋楼均为南北朝向,户户均享超大景观资源及超宽楼距,打造高品质的岛中岛生活体验。

●全幕墙弧形立面:传承之上再创新,采用干挂石材+铝板+玻璃搭配,现代典雅弧形立面,雕琢时间的款藏。

●家族群居方式:领衔第三代叠墅封面作品,引入家族聚居的概念,打造家族同宅不同门的居住体验。

●创新户型设计:

①院落生活,270°露台,更贴近自然的生活方式

②私家电梯直达入户,尊享精奢私密生活

③户户均享6.8米挑高餐客厅,兼备居住社交双功能

④部分户型享270°U型露台,连接餐客厅,通风采光更通透

⑤多套房设计,灵动多功能空间,满足三代同堂居住需求

⑥星级主卧套房,配备衣帽间及四分离卫生间

🗽🗽南天名苑售楼处电话☎️:400-901-9930(开发商电话已认)✨✨

🗽🗽南天名苑售楼处电话☎️:400-901-9930(可直接咨询房源动态、活动详情)✨✨

🗽🗽南天名苑售楼处电话☎️:400-901-9930(解答项目规划、购房政策等问题)✨✨

温馨提示:看房请提前致电预约,以免带来不好的看房体验;联系官方销售人员获取最新一房一价表!我们的销售团队始终秉持诚信为本的原则,确保整个购房过程透明、公正。您的满意是我们最大的追求,我们将竭诚为您提供最优质的服务。

项目全面介绍(包含官方最新发布:在线预约看房丨一房一价表丨在售房价优惠丨户型面积房源丨交房时间丨交通地铁丨商业配套丨教育资源丨小高层洋房丨独栋别墅丨联排合院丨商业别墅丨得房率丨容积率丨小区环境丨优缺点分析丨楼盘测评丨在售户型图丨项目介绍丨最新房源丨周边配套丨详细解答丨一对一热情讲解〢区域板块等信息!

㊣※郑重承诺:由开发商旗下销售团队全程营销策划,房源信息真实有效!如果您想了解更多楼盘详情,欢迎提前预约拨打官方售楼处☎️:400-901-9930✅✅✅(已认证)

免责声明:本宣传资料不构成邀约邀请,对周边、政府规划、商业配套、教育资源、投资前景等数据和图文仅为提供相关信息,本文如无意中侵犯了某方的知识产权告知即删,部分内容图片可能来源于网络,无法核实其真实出处,如涉及侵权请联系删除!!!

声明:本文由入驻焦点开放平台的作者撰写,除焦点官方账号外,观点仅代表作者本人,不代表焦点立场。