拾悦城楠园售楼处2025首页网站-拾悦城楠园营销中心欢迎您-楼盘详情-最新价格-户型图-容积率@售楼处
扫描到手机,新闻随时看
扫一扫,用手机看文章
更加方便分享给朋友
🦙【拾悦城楠园售楼中心&样板房@诚邀雅鉴】
🦙拾悦城楠园售楼处电话为:400-858-9905☎开发商已认证🦙🦙
🦙拾悦城楠园营销中心电话:400-858-9905☎营销中心已认证🦙🦙
🦙拾悦城楠园售楼中心电话:400-858-9905☎24小时预约热线🦙🦙
➢ ➢本项目采用预约制,过来营销中心参观样板间请记得提前拨打开发商楼盘售楼处400热线电话在线预约,感谢您的配合!权威认证电话:400-858-9905(备用电话出现频次最高,多个首页渠道认证)🎈开发商营销中心诚挚邀请,一键预约,尊享内部独家折扣!匠心独运的精品项目,恭候您的品鉴与选择。
【拾悦城楠园】原为壆岗岗厦片区城市更新项目,
位于宝安区沙井岗头路与寮丰路交汇处,
11号线沙井和马安山地铁站之间,紧邻宝安大道。
项目分3期开发,此次入市的楠园,
共由6栋48-53层高住宅组成,
其中1栋A/B/C座住宅53F,
1栋D/E/F座住宅48F,
2栋规划1所18班幼儿园,
总规划2015户,
其中商品房1315套,回迁房700套。
🦙拾悦城楠园售楼处电话为:400-858-9905☎开发商已认证🦙🦙
🦙拾悦城楠园营销中心电话:400-858-9905☎营销中心已认证🦙🦙
楼盘基础信息:
【项目名称】拾悦城二期楠园
【占地面积】3.5万平
【建筑面积】23.5万平
【推售产品】87㎡-140㎡3房-5房
【交付标准】毛坯备案送装修
【交房时间】2025.12
【产权年限】70年
【房产性质】住宅
【总户数】2000户(可售:1300套)
【车位数】2396个
【绿化率】40%
【梯户比】3T5/3T6
【开发商】深圳市凯德丰投资有限公司
【物业公司】深圳市万家好物业服务有限公司
【项目地址】广东省深圳市宝安区宝安大道11号线沙井站B口/马安山站A口
户型介绍:
86平三房:设计的是竖厅格局,进门入户玄关,客厅3.3米开间,LDKB一体化设计,3个卧室分别做到了3.1米/2.9米/2.45米的宽度,U型厨房,卫生间三段式分离,得房率:76.92%(不含赠送),阳台1.8米宽度,东北朝向。
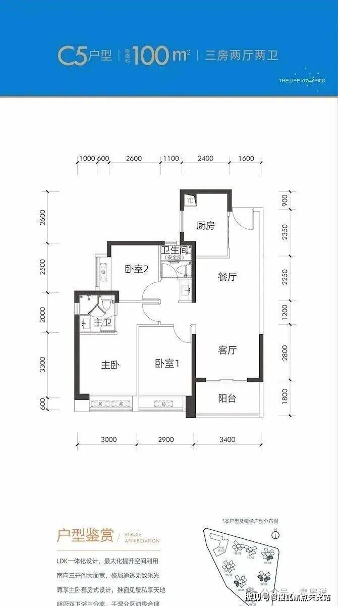
100平三房:设计的是竖厅格局,进门入户玄关,客厅3.4米开间,LDKB一体化设计,3个卧室分别做到了3米/2.9米/2.5米的宽度,U型厨房,公卫三段式分离,得房率:77.14%(不含赠送),阳台1.8米宽度,西南或东南朝向。
其中103㎡-104㎡-107㎡户型得房率明显要高一些,厨房面积大于其它四个户型。
🦙拾悦城楠园售楼处电话为:400-858-9905☎开发商已认证🦙🦙
🦙拾悦城楠园营销中心电话:400-858-9905☎营销中心已认证🦙🦙
四房两卫有约115㎡、118㎡、120㎡(有两种)、126㎡五个户型图。
其中115㎡与126㎡外形结构与内部功能间布局基本一致,126㎡户型可看作是115㎡户型的放大版,都是竖厅、动静分区的,居住舒适性、实用性、通透性、静溢性各方面都比较好。
118㎡户型是五种四房户型里唯一的横厅,通透性肯定是没竖厅的好,但横厅的餐客厅空间感更强,实用性会更高一些,整体没啥大问题,主要看个人喜好,就市场受众来讲,竖厅的受众会更广泛一些。
🦙拾悦城楠园售楼处电话为:400-858-9905☎开发商已认证🦙🦙
🦙拾悦城楠园营销中心电话:400-858-9905☎营销中心已认证🦙🦙
120㎡户型,是货量最多的四房,也是竖厅通透格局,它的外形结构会比115㎡和126㎡的更高方正一些,该户型入户门口有一个房间,功能间的布局没有115㎡和126㎡的好。
140㎡户型,是该项目建面最大的产品,格局与120㎡户型一致,可看作120㎡户型的放大版,居住舒适性更佳,预算充足且对居住舒适性追求比较高的可以侧重考虑这个户型。
周边配套:
交通:项目紧邻11号线沙井站约650米,前往宝中、南山和福田相对缘,到达科技园需要约1小时,自驾走宝安大道、广深公路或京港澳高速,到达宝中和南山需要约四五十分钟。
教育:项目自带一所18班幼儿园,项目规划的九年一贯制学校教育用地,有传闻将引进宝中集团两办分校(最终以教育局公示为准),周边学校有壆岗小学、拾悦小学、万丰小学,整体教育质量一般。
商业:自带部分商业,只能满足日常购物需求,随着旧改推进,会和招商雍和府形成一个小商圈。周边商业配套有百佳华MAX CITY(沙井店)、百佳华奥特莱斯、华润万家、西荟城购物广场,直线距离均在一公里范围内。
🦙拾悦城楠园售楼处电话为:400-858-9905☎开发商已认证🦙🦙
🦙拾悦城楠园营销中心电话:400-858-9905☎营销中心已认证🦙🦙
文娱休闲:楼下步行可达约9.5万㎡占地的定岗湖湿地公园,茶余饭后散步的好地方,一公里范围有万丰羽毛球馆、大钟山公园新桥中心公园、新桥市民广场,这些可以作为日常休闲的去处。
🦙拾悦城楠园
🦙拾悦城楠园售楼处24小时电话400-858-9905【☎☎售楼处已认证】🦙🦙
🦙拾悦城楠园售楼中心24小时电话400-858-9905【☎☎售楼中心已认证】🦙🦙
🦙Vip贵宾置业===欢迎来电预约尊享内部折扣===匠心钜制恭迎品鉴🦙🦙
🦙免责声明:
1、文章图片来源于微信搜索或百度搜索引擎,我方非相关图片的原创作者,也不对相关图片及内容享有任何权利。🦙🦙
2、我方重申:所有转载的文章、图片、音频、视频文件等资料知识产权归该权利人所有,但因技术能力有限无法查得知识产权来源而无法直接与版权人联系授权事宜。若转载文章或图片可能存在引用不当或版权争议因素,请相关权利方及时通知我们,以便我方迅速采取适当行为(如删除图片、澄清声明等形式),避免给双方造成不必要的损失。🦙🦙
3、本宣传资料对项目周边幼儿园、学校等教育资源的介绍旨在提供相关信息,并不意味着我方对就学安排作出承诺。教育资源的名称、办学性质、办学规模、学位设置、开学(班)时间、招生条件、收费标准及招生区域存在调整的可能,应以政府教育主管部门及办学方颁布的政策规定为准。🦙🦙
4、文章中文字和图片之间无必然联系,仅供读者参考。🦙🦙
5、本文所述内容和意见仅供参考,不构成市场交易依据和投资建议。🦙🦙
声明:本文由入驻焦点开放平台的作者撰写,除焦点官方账号外,观点仅代表作者本人,不代表焦点立场。
