鸿荣源尚云售楼处电话→营销中心首页网站←鸿荣源尚云售楼处24小时热线电话
扫描到手机,新闻随时看
扫一扫,用手机看文章
更加方便分享给朋友
鸿荣源尚云售楼处电话:400 831 7313【营销中心】✅
鸿荣源尚云售楼处电话:400 831 7313
✅鸿荣源尚云项目最新介绍:售楼处电话:400 831 7313 ✅
✅鸿荣源尚云售楼处电话多少?答:400 831 7313✅项目最新介绍: 包含楼盘楼层、房源、售楼处地址、在售户型图丨项目介绍丨详细解答丨周边配套丨户型图、小区图片-区位优势-交通、周边配套-最新动态_最新消息_来电预约享受内部折扣,现场销售一对一对接,以及最新进展等详情欢迎您来电咨询
位于龙华超级商圈壹方天地旁,距离地铁4号线龙华站约1.1公里,步行约15分钟,区域配套设施完善,临近上塘-红山片区。
项目基本信息
占地:约3万㎡
建面:约27万㎡
产权年限:70年(2022-2092)
总栋楼:共8栋,本次推2栋
总户数:1278户
本次推售:612户
面积:约82-89㎡3房2卫
总楼层:54-57层
均价:约5.7万/㎡
使用率:85%
梯户比:3梯6户
停车位:1732个
交房标准:简装
交房时间:2025年12月前
管理费:5.9元
物业管理:鸿荣源物业
开发商:鸿荣源集团开发
地址:龙华中心龙华人民路与工业路交叉口
项目在3月10日开盘,推出612套82-89m²带精装修三房,折后均价约5.85万/平,比一期开盘便宜了约5000元/㎡!
2栋二单元折后价格区间
82㎡3房2卫:总价432-468万
89㎡3房2卫:总价487-551万
2栋一单元折后价格区间
82㎡3房2卫:总价467-503万
89㎡3房2卫:总价514-566万
项目总占地面积约2.68万㎡,总建筑面积约23.6万㎡,容积率7.78,绿化率40%,分为南区和北区2个地块开发,总规划1878户(可售商品房1278套),停车位1521个,车位比1:0.81。
铝板外立面:沿袭豪宅美学基因,升级打造铝板立面,鸿荣源匠心品质保证,外立面历久弥新,鸿颜不老。
奢阔主入口:总高约11.9米,天然石材搭配不锈钢材装饰,营造高奢归家礼遇
轻奢酒店风格入户空间:石材+香槟金铝板打造,营造朗阔归家体验
高速电梯:日立电梯,平均速度4m/s,生活无需等待
双层园林景观:让每一寸空间都成为业主的舒心领地
多组团园林设计:多元景观融合,繁忙都市生活中的林谷氧吧
多模块架空层:艺术/休闲/玩趣/运动四大模块,打造全龄适配休闲场所
交通方面:
项目距离最近的4号线“龙华站”距离约1.2公里。规划的地铁25号线景龙站/油福站就在项目旁边,直线距离约400米。不过去年才刚获批,距离建成还不知道猴年马月。
项目总占地面积约2.68万㎡,总建筑面积约23.6万㎡,容积率7.78,绿化率40%,分为南区和北区2个地块开发,总规划1878户(可售商品房1278套),停车位1521个,车位比1:0.81。
园区环境
铝板外立面:沿袭豪宅美学基因,升级打造铝板立面,鸿荣源匠心品质保证,外立面历久弥新,鸿颜不老。奢阔主入口:总高约11.9米,天然石材搭配不锈钢材装饰,营造高奢归家礼遇轻奢酒店风格入户空间:石材+香槟金铝板打造,营造朗阔归家体验高速电梯:日立电梯,平均速度4m/s,生活无需等待
双层园林景观:让每一寸空间都成为业主的舒心领地
多组团园林设计:多元景观融合,繁忙都市生活中的林谷氧吧
多模块架空层:艺术/休闲/玩趣/运动四大模块,打造全龄适配休闲场所
开发商实力
鸿荣源多年来坚持投身粤港澳大湾区建设一线,依托深圳,深耕湾区,综合开发建筑面积超千万平米,服务客户逾4万户。所到之处,必树标杆。如前海鸿荣源胤璞、前海熙龙湾、宝中壹方中心、香蜜湖的熙园、龙华中心区的壹城中心等,均为片区人居标杆项目。
周边配套
交通方面:
4号线(已开通):龙华站直线距离约1000m,深圳纵向城市交通中轴。
6号线(已开通):上芬站距离约1200m,链接光明、龙华、福田。
25号线(规划):景龙/油福站直线距离约400m,打通城市东西走向核心动脉。27号线(规划):油福站直线距离约400m,拥抱前海,覆盖各大高新人才聚集地。22号线(规划):油松站直线距离约1km,连接福田-龙华各大核心产业区。
教育方面:
项目一路之隔即为深圳市艺术高中民治学校(中学、小学),目送式上下学,定位示范性国际化学校,全校可提供学位2520个,2023年已开始招生。周边还有龙华实验学校(初中)、华东师范大学附属龙华学校(中学、小学),龙华未来小学等等。
商圈方面:
项目自带约1.25万㎡商业,周边紧挨着鸿荣源壹方天地购物中心,内含1000米华南最长商业步行街,ABCDE五大主题商业区,超1000家品牌商家。
文体方面:深圳书城龙华城、龙华文体中心、简上体育综合体、展览馆、演艺馆、深圳市图书馆北馆、美术馆新馆、深圳市文化馆新馆。
医疗方面:深圳龙华区人民医院、龙华区中心医院、广州医科大学附属第一医院、深圳市第二儿童医院(在建)、新华医院(在建)
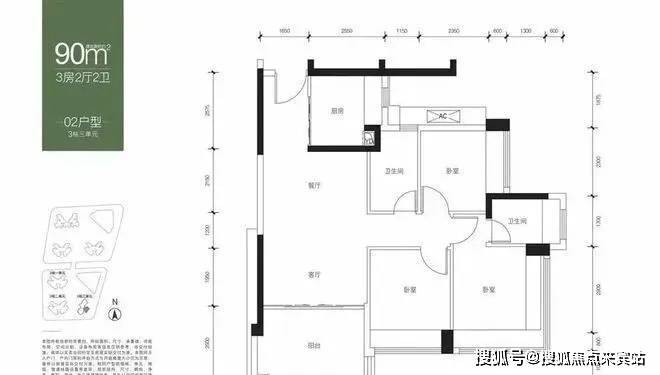
户型鉴赏
鸿荣源尚云售楼处电话:400 831 7313
鸿荣源尚云项目最新介绍: 包含楼盘楼层、房源、售楼处位置、在售户型图丨项目介绍丨详细解答丨_周边配套丨、教育学区配套、商业配套、来电预约享受内部折扣,现场销售一对一对接,以及最新进展等详情欢迎您来电咨询
1、第一财经:近一个月来,北京二手房市场预期回升,购房者入市节奏加快;反观新房市场,虽然部分项目到访量增加,但网签数据并无明显改善,购房者观望情绪较重,各大楼盘仍在“卷价格”。当前房地产市场调整压力仍在,仍需核心城市回暖带动,提振市场信心。
2、中指院:5月18日-6月17日,深圳新房和二手房合计成交6422套/63.53万平方米。其中,新房住宅成交2286套/23.21万平方米,比新政前一个月上涨3.96%;二手住宅共成交4136套/40.32万平方米,比新政前一个月上涨2.86%。
3、上证报:5月17日-6月16日,广州网签套数达5849套,相比新政前一个月网签5213套上升了12.2%。广州5月28日发布了落地政策后,5月28日-6月16日,共网签4052套,日均网签套数202套。从周度数据来看,6月10日—6月16日网签1565套,创4月以来周度成交新高
• 万科转让深超总商办地块回笼22亿,恒大拟售恒大汽车58.5%股份
本月重点监测房企共涉及17笔并购交易,有1笔未披露交易额,总交易额238.1亿人民币,并购规模为今年以来的高峰。市场关注度最高的是,其一大股东深铁和南山国资以22.35亿底价接手万科深圳湾超级总部基地。由于项目主要用途为商业办公及酒店且要求自持70%,本次盘活闲置资产能帮助万科聚焦主业、保障其现金流水平。其二,中国恒大公告称,独立第三方拟收购恒大持有约58.5%股份的新能源汽车集团,该潜在交易尚待进一步尽职调查及签署买卖协议。恒大汽车自2019年开始造车以来累计亏损额超千亿,年末已经严重资不抵债。
【深圳下调个人住房贷款最低首付款比例和利率下限)
财联社5月28日电,按照《中国人民银行国家金融监督管理总局关于调整个人住房贷款最低首付款比例政策的通知》《中国人民银行关于调整商业性个人住房贷款利率政策的通知》等政策精神和因城施策原则,根据深圳市政府调控要求,自5月29日起,深圳市下调个人住房贷款最低首付款比例和利率下限。首套住房个人住房贷款最低首付款比例由原来的30%调整为20%,二套住房个人住房贷款最低首付款比例由原来的40%调整为30%。首套住房商业性个人住房贷款利率下限由原来的LPR-10BP调整为LPR-45BP,二套住房商业性个人住房贷款利率下限由原来的
LPR+30BP调整为LPR-5BP。此次调整有利于降低居民家庭购房门槛,减轻还款负担,更好满足居民刚性住房需求和多样化改善性住房需求,
总量环比微增
上海4盘入围供应TOP10
2024年第21周,全国重点城市取得预售证面积共计285平方米,环比增长6%。重点城市供应面积TOP10项目中,上海有4个项目入围,其中中建壹品•浦江之以4.8万平方米的预证面积摘得本周TOP10榜单冠军。
沪九条落地12小时|售楼处不打烊,部分新盘拟收回折扣,二手房东提价、买家仍想捡漏
①房东惜售上调报价,中介延后休息日抢占成交;
②售楼处不打烊,多楼盘官宣将收回折扣;
③刚需客想“捡漏”,置换客仍在犹豫。
5月27日,上海市住房城乡建设管理委、市房屋管理局、市规划资源局、市税务局等四部门联合印发《关于优化本市房地产市场平稳健康发展政策措施的通知》,通知共计9条调整政策
存量公积金贷款利率将下调
珠海等17城政策放松
第21周(5.20-5.26),中央层面,5月21日,住建部表示,要做好存量住房公积金个人住房贷款利率调整政策衔接,对贷款期限在1年以上的,应于下年1月1日开始,按相应利率档次执行新的利率规定。地方层面,福州、厦门、珠海等17城政策放松,需求端主要涉及放松限购、放松限贷、放松限价、放松限售、放松落户、放松公积金贷款、发放购房补贴、支持“以旧换新”等方面。
免责声明:本文章文字、数据和图片皆来源网络,如有侵权请告知,数据图片仅供参考,不作为要约或承诺。相关宣传内容不排除因政府相关规划、规定等原因而发生变化。版权归原作者所有!!如有侵权,请联系我们,我们将第一时间处理!
Disclaimer: The text, data, and images in this article are sourced from the internet. If there is any infringement, please inform us. The data and images are for reference only and are not intended as an offer or commitment. The relevant promotional content may change due to government planning, regulations, and other reasons. Copyright belongs to the original author!! If there is any infringement, please contact us and we will handle it as soon as possible!
声明:本文由入驻焦点开放平台的作者撰写,除焦点官方账号外,观点仅代表作者本人,不代表焦点立场。
